“设计的主要出发点是探索城市纪念空间的经典重塑。”————主创:秦洛峰
嘉兴博物馆图书馆改扩建工程位于嘉兴市“七一”广场以东,七一广场是城市政治形象的代表,广场中心建筑——南湖革命纪念馆(新馆)有着深厚的党和国家的历史与政治意义及背景。设计前期周边建筑基本上每个风格迥异,失去了与广场空间的呼应。因此在扩建设计中,更加注重遵循新旧建筑在空间,形态,材料等领域,以及与广场的的和谐与对话。
规划设计-城市纪念空间的经典重塑
设计从整体城市设计入手构思,通过扩建部分的形体控制,简洁干净的立面规划,以及城市空间系统规划与整合设计,将原本各自为政的建筑个性进行弱化,同时归纳整合,与广场周边,特别是核心的革命纪念馆相呼应、协调。
在建筑层面,改扩建设计通过对功能进行的有效扩展,体块的穿插围合,立面关系的虚实处理,让新旧整合区域改建后的空间更具历史感与庄重感。
空间设计-新旧建筑的有机融合
在改扩建设计中,最大限度保留原有建筑形态与空间等,通过巧妙的构思,将新旧建筑有机的融合在一起。 棱角分明的两个新馆将造型复杂的各自旧馆兼容包并,在不破坏旧馆内部结构和平面设计的同时,又使博物馆重新和谐融入革命纪念馆与广场周边建筑。
博物馆新馆位于旧馆北侧,在外部简洁的建筑形态与材料的统一之下,更强调建筑内部的围合与庭院规划,以及新建部分与原有建筑之间产生的过度空间设计。图书馆新馆位于旧馆南侧,新旧部分以内庭院为中心进行围合,形成通透和连续的空间序列。庭院、露台、开放的公共空间相互组合,收放有致。
建筑风格-化繁为简的设计手法
博物馆与图书馆老馆原有立面风格迥异,同时与革命纪念馆立面反差较大,设计师采用化繁为简的方法,通过简单硬朗的几何形与线性元素进行空间与形态的组织。
面向“七一”广场的西侧立面,新建筑的立面延伸、融入老建筑,竖向的线条与简单庄重的肌理给人们带来强烈的秩序感,彰显了历史与文化建筑的纪念性与历史性。
立面材料-历史的传承,延续与发展
为了体现新旧建筑整体设计的和谐与统一,新馆尊重并尽量采用旧馆立面材料,其中博物馆新馆的立面材料找到并采用了老馆原地出产的石材。
老图书馆立面的红色面砖已经不再生产,因此经过筛选,新馆立面采用了质感与色相类似的干挂花岗岩处理,既符合新的建筑设计与功能要求,同时与老馆也形成了友好的呼应与延续。
结语
在整体规划层面,本设计更好地体现了对“七一”广场及南湖革命历史博物馆等历史建筑肌理以及城市空间文脉的尊重与延续,从各方面满足城市对于当今文化建筑的需求和愿景,将“七一”广场塑造成一个具备时代性,文化性,历史性与纪念性的城市与建筑改造更新经典案例。
项目图纸
△总平面图
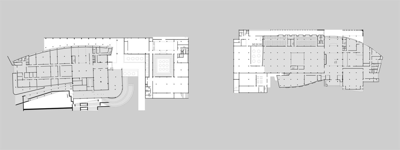
△一层平面图
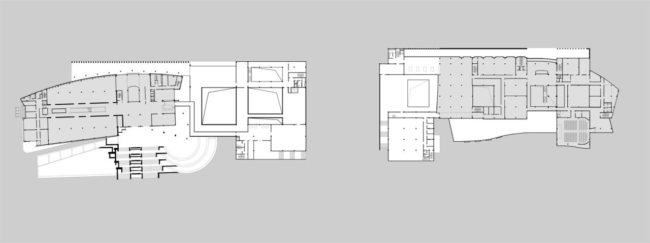
△二层平面图
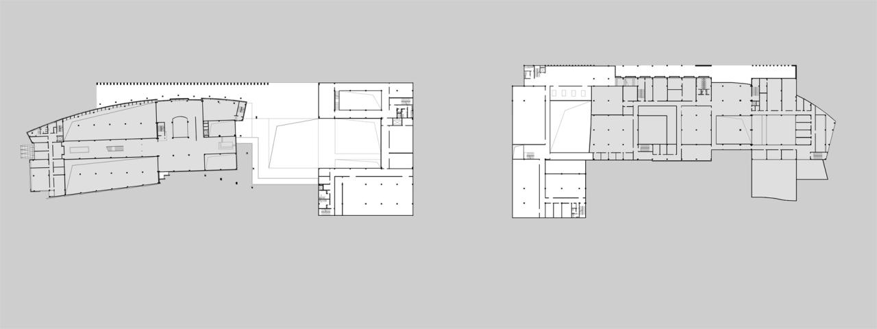
△三层平面图
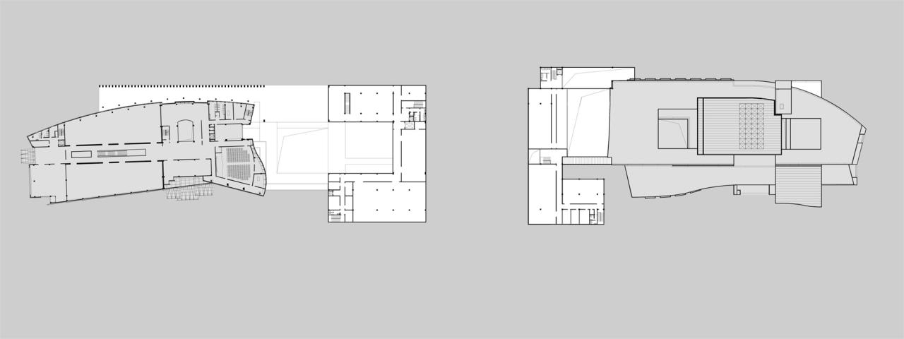
△四层平面图
△剖面图
△剖面图
项目信息
项目地点:浙江省嘉兴市南湖区
项目来源:竞赛中标
项目时间:图书馆2012-2019/博物馆2015-2023
建筑面积:25991.59平方米
设计主创:秦洛峰(STI创始人/主持建筑师/浙江省院特聘副总建筑师)
总负责人:张细榜 张瑾
建筑团队:张晓静 俞淳流 朱林俏 傅正彦 陈伟伟 Lena Knebel Jens Eckert 何青松 杨伟鹏 等
结构团队:洪渊 马建 等
设备团队:马慧俊 王皓 扬长明 周晨亮 杨婷 等
建筑摄影:王大丑 俞淳流 等
业主单位:嘉兴文化局 等
设计机构:浙江省建筑设计研究院
STI思图意象建筑与城市设计事务所

BIM建筑网


































