入口位置项目位于田园综合体的入口区,是美丽乡路的首站驿点。所在区位亦算是田园综合体的首要形象片区。建设原址是一片已拆宅墟,和一片待拆民居。结合未来田园景区化的长线运营,政府考虑1-3年内将已有居民迁出,保留项目景区化的完整经营。
合院里的路廊驿站服务中心为一组交互错落的合院格局,东西开放导入人流/驻足活动;南北放置建筑聚落以游廊为串联,延续文化单体在乡村建设中的符号使命,在有限的空间内构建出多样的田园生活。
取名路廊,寓意当地在路廊下展开的市集商贸传统,通过“游动屋面下的市集聚落”这一载体,期待在未来建筑使用中换发新的活力。
廊与舟的和合互望入口的服务中心与湖心岛的四叶草堂相依互望,驿为手/堂为心,两者互为联系,和合共生。功能上前者承担游客中心和非田园功能的便民服务及少年宫授课,后者承接在湖心岛的婚礼/研学/沙龙活动,成为田园综合体中的实际活动载体和营收主力。
乡建的设计趋势
“乡建”这一近几年出现的专有名词,在共富主题的烽火建设中逐渐模糊,我们看到乡镇如城市般蔓延,城市逐渐如乡村般充满生态与情怀。
“乡村文化综合体”通过针灸式的点式改造,低成本/高成效的特征,越来越成功地唤醒城乡返流的活力和审美提升。本土化地农村包围城市成为可能,模糊的城市乡镇集群或许成为可行的探索方向之一。
迭代更新的创作团队持续建筑景观一体化的设计逻辑,围绕“由内及外的文化场所”这一核心理念,讲述建筑里的故事。通过类IP的风格化单体的实践,塑造属于工作室的隐性价值和设计逻辑
项目图纸
△一层平面图
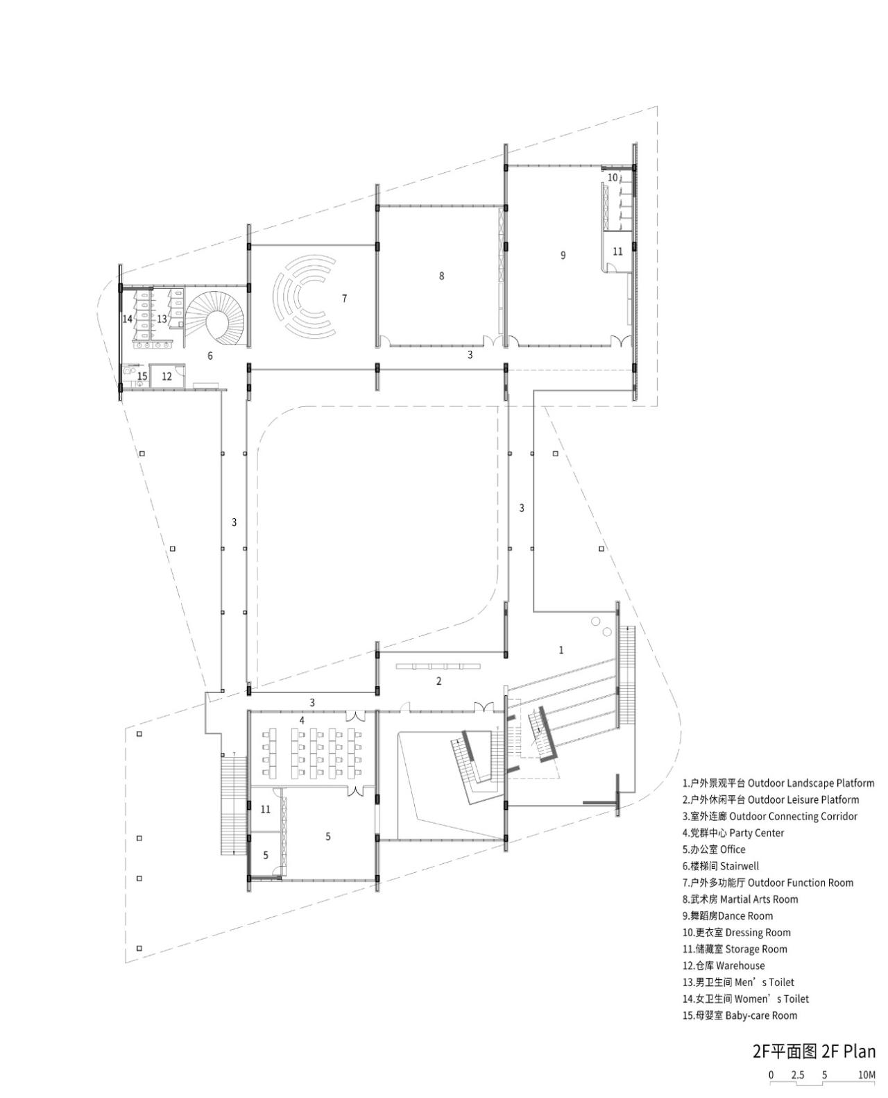
△二层平面图
△动态剖面图
△分析图
项目图纸
建筑师:园舍建筑景观
面积:2500m²
项目年份:2023
摄影师:直译建筑摄影
设计团队:应王波、曹蓦、王晟、蒋蕾蕾、章敏敏、江招洋、樊昊、柴雨航
结构设计:CUC同构
景观设计:南京尺木景观工程有限公司
合作方:浙江美源建筑设计有限公司
委托方:台州市路桥区新桥镇人民政府
地点:台州

BIM建筑网









































