智慧新天地创新中心项目位于杭州市高新区,钱塘江北岸,之江大桥旁,是汇集商业服务、商务办公功能为一体的智慧产业集聚区和孵化基地,未来将吸引一批高新技术产业和战略性新兴产业的入驻。场地的独特区位与未来特定人才的聚集,提出了不同于传统办公的新诉求。
为什么是模块化基地位于之江大桥进入滨江的门户位置,所在的沿江一面已经有成片的城市建筑作为背景,与其隔江对望的是连绵的山脉。绿色的缺失使得城市中的新生建筑正在失去与自然的联系,面对场地周边的环境,我们便产生了引入自然、模拟山体的想法。通过像素化的方式拆分形体,产生多平台,创造同自然山体般可攀登、可驻足的场景。
模块之山我们设置两栋独立的高层建筑满足不同企业对办公空间的需求。塔楼前后错动,并自然形成了入口及临江两个相互联系的广场。模拟山体的堆叠形式,两座塔楼由场地中心自下而上,逐层退让,获得两个楼栋间的最大距离,尽量减小相互干扰。受快速道路和临近规划高层的影响,退让的体块进一步交错移动;同时引入屋顶花园和共享观景平台,使自然从江边蔓延到建筑内部。
弹性生长高新技术产业的发展往往超越当下社会的普遍认知,有一定的不可预测因素,这需要建筑空间的设计具备“弹性”,以适应各类新兴企业在发展过程中对办公空间拓展的需求。每个“盒子”设定为标准柱网和3-5层的模块化单元,适应了小型企业不同阶段的发展,可单层使用,亦可整体出租。
立体花园传统办公塔楼的密封形态因为自然活动空间的缺失,造成办公环境枯燥沉闷。我们在项目中使用一系列灵活错动的体块,创造出丰富的户外露台空间。屋顶绿化与空中花园的植入打破了通常标准化办公空间的僵化现象,开放畅通的活动场所为其增添了活力,在带来积极体验的同时,也强化了绿色办公的理念,建立与自然的对话,促进使用者的社会交往,激发企业员工的凝聚力和创造力。
怎么做模块让模块更像模块创新中心建筑的形象是一组堆叠的白色模块。传统结构做法中,同层板面平齐的情况下,悬挑部分下挂,露台部分面层叠加,错动的体块间会呈现咬合的形态。但在本项目中,我们想追求一种更为极致平整的观感,实现模块相接面的干净利落。我们将每个模块立面的上限控制在上层悬挑部分的吊顶收口高度,同层露台外部立面同样受此线控制。露台部分降低面板,预留足够的面层和室内外防水高差。不同标高的顶板通过斜梁联系为整体,实现悬挑、普通层、露台三个位置穿孔板顶部平齐的堆叠效果。同时,为了避免室外机设备和凸出的电梯冲顶井道对平整度的影响,我们将核心筒分高低区分散布置。低区核心筒电梯提前一层收口,楼梯保留满足疏散需求。利用露台与下层面板的高差区设置降板空间,作为电梯冲顶的缓冲。原先应外置在露台的设备也整合藏于降板空间内,顶部设通风百叶,提升了露台的空间品质,也让“盒子”之间的边界更加清晰,建筑形体更显轻盈。
从模块到模数立面上,我们采用了内部玻璃外衬穿孔板的双层幕墙体系,以减少对桥面交通造成光学影响。为了与形态的极致呈现相契合,形体错动与建筑立面均遵循一定逻辑:错动距离与结构柱网的1/3、1/4计算相对应,再以最小公约数将进退尺寸拆解为更小单元对立面进行控制。设置南北3米、东西2.8米的立面模数框架,使得立面分割与错动位置都严格受此控制形成上下对应。再在框架上覆以1/4宽度的穿孔板,采用渐变肌理,延伸至角部通高空间处逐步剥离。一系列的控制措施实现了建筑形体的精准感与纯粹性,同时,模数化的控制也落实于景观、设备等方面,构成统一秩序。
结语智慧新天地创新中心在设计师追求精巧、偏执于精致的坚持下最终得以呈现。它代表了高新企业办公的前沿面貌,也表达了我们对新一代城市空间的思考。作为可持续、创新和面向未来工作场所的典范,期冀它成为滨江高新区高质量发展的一个缩影,形成沿江区域自然和科技和谐共存的办公花园。
项目图纸
△模型图
△模型图
△模型图
△模型图
△模型图
△模型图
△模型图
△模型图
△模型图
△模型图
△模型图
△基地示意图
△总平面图
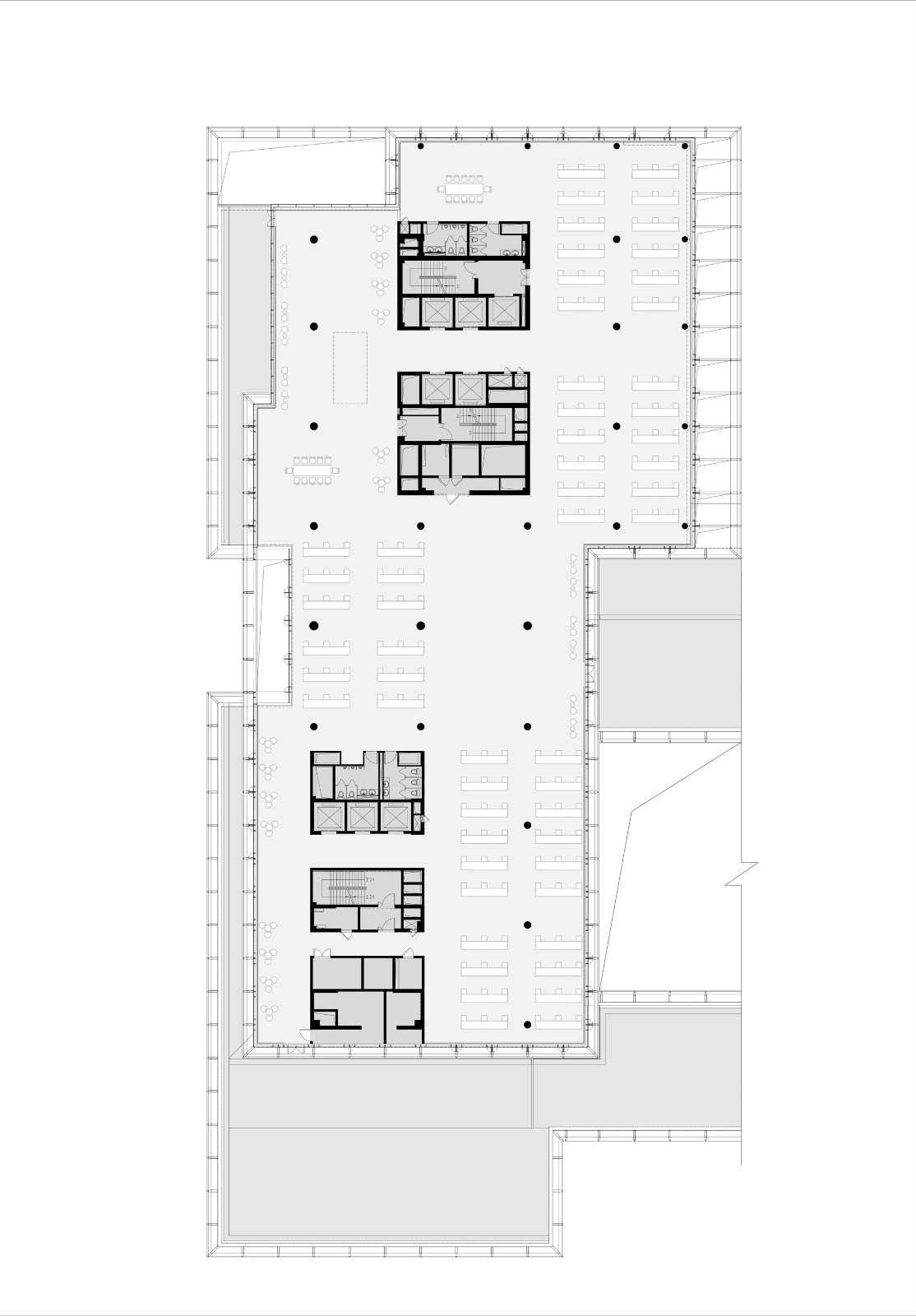
△一层平面图
△平面图
△立面图
△立面图
△立面图
△立面图
△剖面图
△剖面图
△剖面图
△剖面图
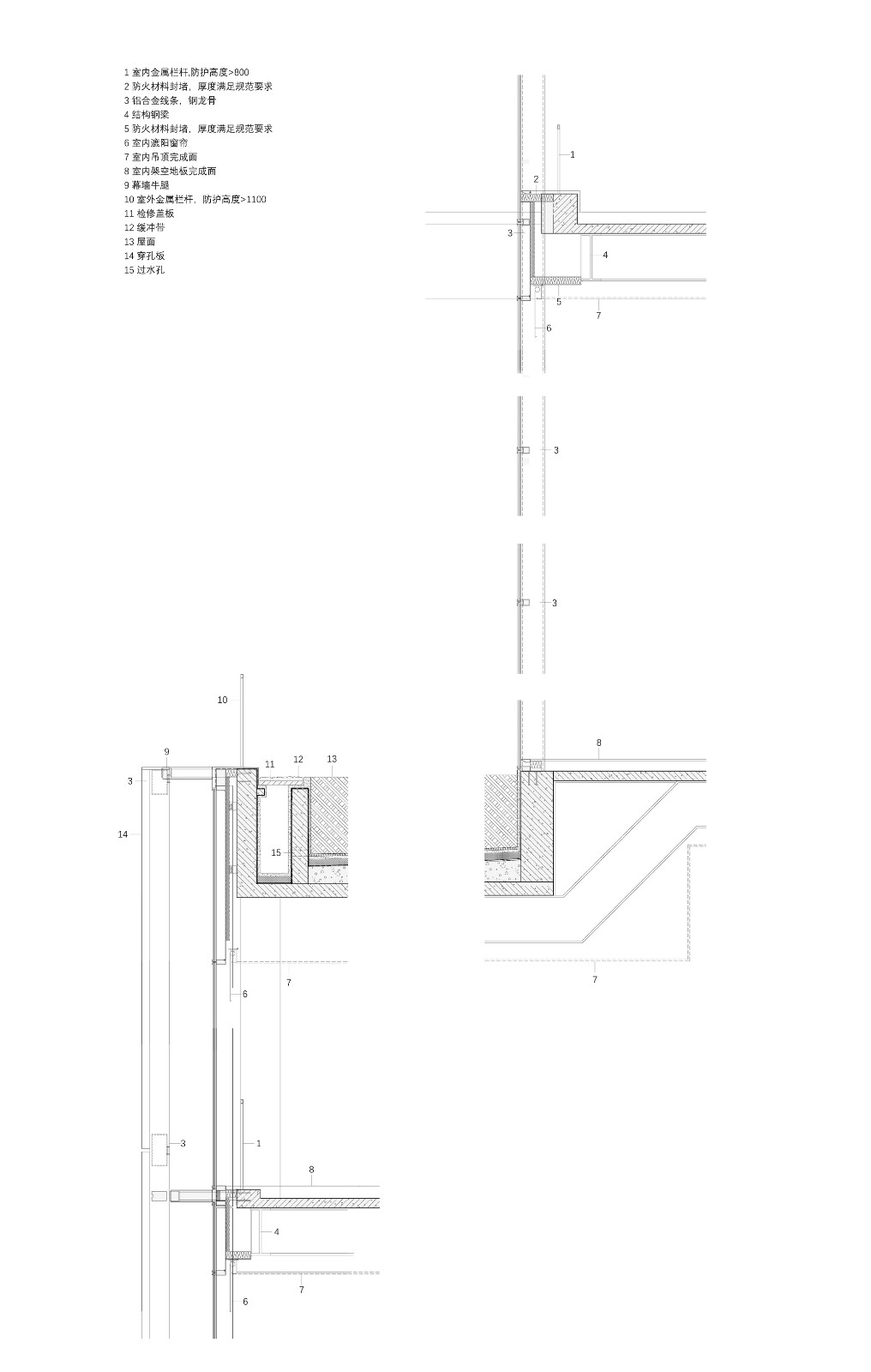
△细部大样图
△细部大样图
△细部大样图
△体块生成图
△体块生成图
△体块生成图
△体块生成图
△体块生成图
项目信息
建筑师:郭宇、周润、王丁丁
面积:89891m²
项目年份:2023
摄影师:建筑译者
厂家: 信义玻璃,高仕达
项目总监:张微
项目主创:程越
团队成员:郑一林、郭欣欣、孙骏、施懿媛、章静
结构设计:宋仁乾、钟舟能
给排水设计:张斌、胡挺
暖通设计:李金牛
电气设计:卓祖航、余海洋
景观设计:郭宇、周润、王丁丁
室内设计:典尚建筑装饰有限公司
业主方:杭州高新金投控股集团有限公司
地点:杭州


BIM建筑网






















































