内向推拿的沈阳店,选址于一栋底商裙房的三层,一层仅有一突出门头,而三层近3000㎡的室内是“整齐”的大柱网空间,规则、空旷、限制条件少,如何将三层的空间“内向”设计,成为设计的难点。
▲中庭 ©张雷
缩影城市
我们希望客人在这个空间中有更丰富的空间体验,除了进出相对私密的房间以外,还能够在这个“缩影城市”里面游览。就像在城市中漫游,除了功能各异的建筑,还拥有丰富且有趣的公共空间。
▲设计概念分析 ©素造建筑
于是我们将规则的室内空间重新规划,让体验变得有“节奏”。从入口的“前院”,到中心的柱廊“广场”,穿过连通空间的“巷道”,或是进入私人的“宅院”或是走进城市中的“公共建筑”。在强调空间私密性的同时,又创造出开放互动的“公共空间”。
空间秩序
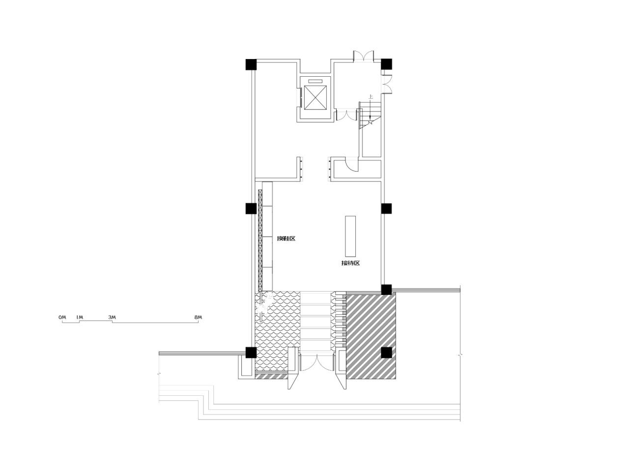
门厅:一层的空间分为内外两个部分,外部空间用作接待,客人进入门厅后在左侧换鞋,内部空间暨电梯候梯前室,顾客乘坐电梯上三楼。
▲入口门厅 ©张雷
▲换鞋休息区 ©张雷
▲前台接待 ©张雷
过廊:像古罗马的浴场那样,沐浴者过拱廊,然后揭开金色空间的神秘面纱。在这个空间外,黑暗被点亮,一个“洗礼池”正在等待游客的到来,并在这里享受全新的时光。
▲走廊 ©张雷
广场:柱网空间的单一空间语汇被重新组织,在一系列的空间曲折与序列之上,创造了若干新的空间节点。
▲小品©张雷
“巴西利卡”:三层的中庭,我们将其作为纯粹的社交空间,外侧用可放下的纱帘,增强空间的私密性,同时营造一种若隐若现的神秘感。
▲中庭空间 ©张雷
浴场:三层空间的南北向中轴线,端头设淋浴室和卫生间,并将公共空间置于轴线两侧,让体验变得有“节奏”。
▲淋浴间 ©张雷
▲卫生间 ©张雷
餐厅:客人洗浴放松后便可前往餐厅,饱餐一顿以满足口腹之欢。
▲餐厅 ©张雷
“礼拜堂”:后勤空间原本有一楼梯间,拆除后形成一个天然的拔高空间,我们将其预留出来并作为冥想空间。为整个按摩空间增添一丝神性的光辉。
▲冥想空间 ©张雷
氛围营造
按摩室内部犹如一个个山洞,这是室内空间设计与拓扑学结合的产物,使人产生独特的“洞穴式”空间体验。人们在这样的室内空间中,可以远离城市喧嚣和压力,享受当下。
▲客房 ©张雷
按摩室内的墙壁上设置透光格栅,将走廊和室外的阳光透过墙壁洒向室内,作为装饰和引导。
▲灯光氛围细部 ©张雷
暖黄的灯光在脚下延伸,氤氲平缓舒适的氛围,圆润的曲面,像是被拥抱、包裹、放松,在这里避世片刻,身心被治愈。
▲建筑细部 ©张雷
踏入店内,仿佛穿越回了古老的时空。昏暗的灯光、砖石墙壁、木质家具,所有元素共同构成了古罗马浴场般的神秘氛围。这里没有城市喧嚣的声音,只有轻柔的乐曲和滋润的茶香,带来无与伦比的沉浸体验。
我们在繁杂的尘世中,辟出一块净土的同时,也创造了一个窗口,在卸去满身的乏惫的同时,还可以从这里窥视你熟悉的城市的寻常巷陌。走出了纯粹的按摩推拿空间,真正融入沈阳的日常生活。
设计图纸
▲一层建筑平面 ©素造建筑
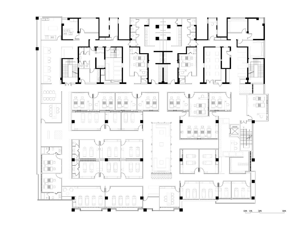
▲三层建筑平面 ©素造建筑
▲建筑立面 ©素造建筑
项目信息
建筑设计:素造建筑
面积:2184.27㎡
项目年份:2022年
摄影师:张雷
主创建筑师:
设计团队:尹晓文 董文 杜杰 崔莹 郭旌 张雯 赵阳 马丽娜 赵胜超 王思君 俞淏文 杨宇航
委托方:内向推拿
地点:辽宁省沈阳市和平区长白东路23号8门

BIM建筑网

































