Brillhart Architecture 设计的这个海滨项目位于迈阿密最严峻的洪水区,为抬升的沿海建筑提供了一种新的设计美学。Stewart Avenue 公寓不仅从适应性和复原力的角度应对环境挑战,还融入了创造性的建筑装置,并提供了概念性的、基于材料的策略——抬升迈阿密的滨水景观。
在 2017 年经历了 Irma 飓风之后,Brad Heman知道,是时候建造新的东西了。这座位于距离 Biscayne Bay 仅 900 英尺的运河上理想的南椰林社区中的 1923 年老房子,从 2005 年他购房数月后的 Wilma 开始就遭受了飓风和热带风暴的严重破坏,每次都要花几个月的时间才能恢复正常,理清保险事宜并完成维修。
由于联邦紧急事务管理局对建筑的洪水保险赔付上限是 25 万美元(对于修复房屋的重大结构性损坏来说,这是一个相对较小的数额);随着时间的推移,这栋房子成为一堆拼凑的碎片,根本不值得再去为它努力。Herman 现在是镇上著名的外科医生,他找到了 Brillhart Architecture,在同一地点建造新的住宅。
该项目位于迈阿密最严峻的洪水区(VE)——项目的第一层必须抬高到海平面以上 12 英尺(约 3.66 米)的地方(整整一层)——它是专门为应对飓风、风暴潮、洪水和海平面上升而设计的。通过 Stewart Avenue 住宅,Brillhart Architecture 试图从根本上重新思考如何提升/加强高架住宅结构的建筑设计:1)将底层空间作为建筑中一个基础且突出的特色;2)在空中重新构建一个新的地平面;3)打破建筑的体量,使建筑不那么雄伟,更具热带风情。
因此,该项目自破土动工以来就获得了人们的持续关注。“它看起来就是和迈阿密的其他地方不一样,细节、材料以及设计的周到性都达到了 PAMM 博物馆的水平。现在它已经完工了,每周至少有一到两次有人来敲我的门,问我是否会考虑出售。甚至还有人来看了附近的其他房子后停下来,说他们想买我的房子,” Herman 说。
虽然高架结构并不新鲜(想想美国沿海社区在电线杆上架起的房屋),但在我们面临气候变化不断升级的现实时,“高架房屋”的设计策略正成为在滨水区建设的先决条件。典型的建筑基本上是把一个看起来属于地面的房子扔在一系列的柱子上面,而不考虑底层或上层可居住空间的设计。
项目图纸
△总平面图
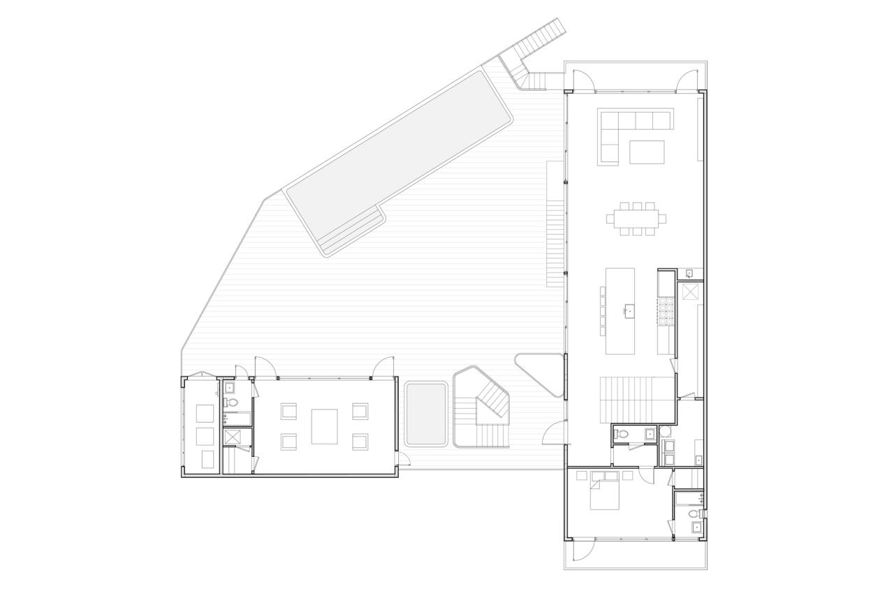
△一层平面图
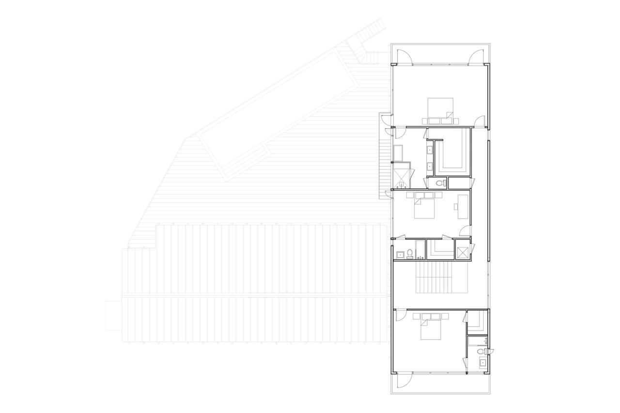
△二层平面图
△剖透视
△剖透视
△分析图
项目信息
建筑师: Brillhart Architecture
面积: 4500 ft²
项目年份: 2021
摄影师:Stephan Goettlicher, Michael Stavaridis
主持建筑师: Jacob Brillhart, Andrew Aquart
顾问: Energy Sciences
景观建筑师: Chris Cawley Landscape Architects
总工程师: ASD Consulting Engineers
总承包商: Ibuild Construction
地点: 美国,迈阿密

BIM建筑网




























