三座建筑,三种功能位于 Guy-Môquet 大道和 Rue du Colonel-Fabien 街的拐角处,该项目由三座独立的建筑组成,可以独立运作。教育楼和体育馆的主要入口位于 Mail Yvonne-Hagnauer,这是瓦伦东市政府最近在 Rue du 8-Mai-1945 和 Rue du Colonel-Fabien 之间开放的一个步行区。这个空间不受汽车交通的影响,为学生和家庭提供了一个平静和安全的环境。六个员工宿舍(双人间或三人间的T5公寓)位于该地块的北部,与附近的住宅结构相连。他们面向 Guy-Môquet 大道,允许居住者与他们的职业环境断开联系。
体育馆有一个集体运动场(用于手球、篮球等),一个舞蹈室,以及一个 14 米高的攀岩墙。根据日期、时间和用户提供各种操作模式。在课余时间,它也提供给协会和体育俱乐部使用。一楼是学生可以直接从校园进入的地方,设有多功能厅、更衣室和厕所。一楼是专门用于体育活动的。它由带有底层横梁的木质框架组成,并在西北立面上有高大的开口,由五个面向东北方向的长方形屋顶灯延伸。
中学学生有一个自行车和机车的停放区,由入口大门边上的雨棚遮挡。他们从操场进入教室(项目要求),要穿过位于教学楼下的有顶棚的走道。建筑物朝南的方向允许最大限度的冬季太阳能增益,并通过电动百叶窗(可调节和倾斜的板条)保护教室免受夏季高温的影响。大部分时间,操场只被植被遮挡。在内部,主要的颜色是白色、木材和原始混凝土。
淡雅的色调与明亮的空间相得益彰。通过木铝混合框架内的连续三层玻璃实现了充足的自然采光。一百多条光导管(不锈钢管,弯曲或笔直)为中央走廊和实用工作间(用于艺术和科学教育)的后部提供自然采光。
所有的外墙都有相同的设计语言,无论是教育楼、体育馆,还是工作人员的住所。窗框、窗户和百叶窗的颜色为乳白色,与木质内饰相呼应。MOB(木制框架)的填充物用浅灰色的纤维水泥板(Equitone)进行包覆。作为遮阳板的钢制遮阳板被安装在楼梯和独特的空间(如图书馆和体育馆)前面,以创造不同的照明氛围,其动力由一天中的时间和阳光引导。
按照惯例,ARCHIPENTE 预计在建筑的 “第五立面”安装光伏板的可能性。朝南的屋顶坡度、技术规定和结构尺寸都是为了适应面板及其框架的重量。考虑到能源价格的大幅上涨,该部门已经接受了自己生产电力的想法。一项研究已经被批准在学院的屋顶上实施一个光伏发电站。然后,该项目将符合“被动式建筑 ”认证的标准。
开放式计划,积极的框架基本上有两种方法来建造节能建筑。第一种涉及到依靠厚厚的绝缘材料和机器的效率。第二种方法涉及优化设计阶段,考虑到不花在技术上的钱可以投资在材料选择和空间上。在 Valenton,第二种方法显然更受青睐。在这方面,木材是一个很好的盟友。木材框架代替了混凝土结构,可以在其框架内容纳大部分的绝缘材料。在该项目中,总共使用了约 1000 立方米的木材,其中 85%来自法国。
使用干式建筑方法建造地板需要精确的结构规划。所有的胶合木框架都安装在 120 厘米的网格上,这个尺寸与木板(或木质衍生物)的标准宽度相一致。因此,项目中的所有尺寸都是 30 厘米的倍数(60 厘米、1.20 米、2.40 米、3.60 米,等等)。没有隔断墙阻碍了开放式建筑的原则,这使得根据不断变化的需求来修改隔断变得灵活。楼梯的混凝土核心部分和一些斜向支撑部件足以稳定木质结构。
ARCHIPENTE 设想的“主动框架”概念是项目灵活性的另一个有价值的工具。它涉及到在中央走廊的两侧保留一系列长的服务管道,用于分配电力和公用设施。这一策略简化了双流通风系统的空间管理,降低了假天花板的层高,并允许在不影响教室的情况下访问技术元件。在为学校实施光伏发电系统时,这种方法将特别有利。正如杰出的阿尔瓦罗-西萨所强调的,“当所有的限制都被整合时,建筑就开始了”。
项目图纸
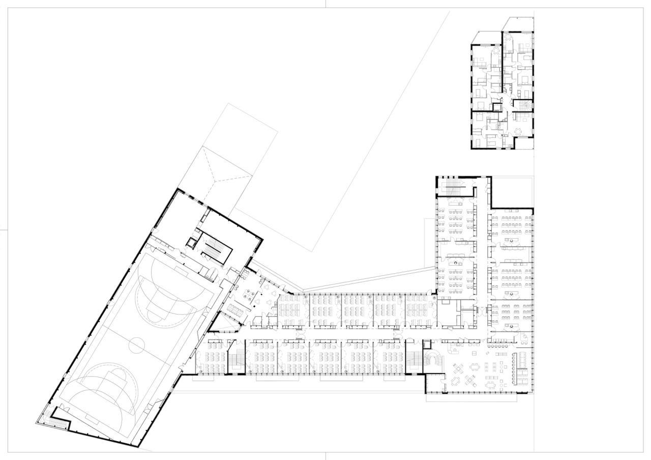
△总平面图
△一层平面图
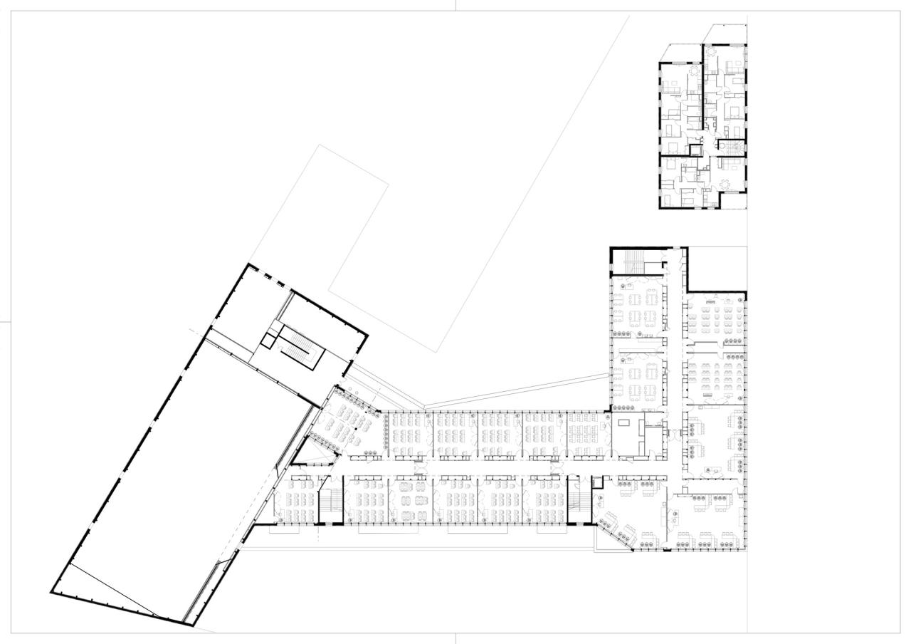
△二层平面图
△三层平面图
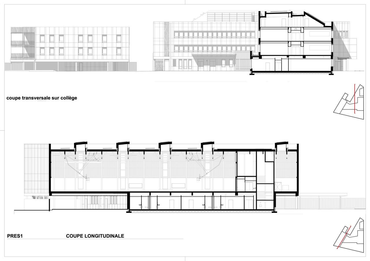
△剖面图
△立面图
项目信息
建筑师: Archipente
面积: 8500 m²
项目年份: 2022
摄影师:Nicolas Trouillard
建筑师: Edouard Molard, Christophe Lauer, Victor Caballero, Christian Pupier
项目业主: Département du Val-de-Marne
景观设计: Omnibus
结构顾问: betrec INGENIOR structure
流体工程顾问: Enertech
声学顾问: Rez’On
人体工学: Preventech Consulting
地点: 法国,Valenton

BIM建筑网






























