葬礼和悲伤是充满感情的。我们经常面对墓地,这是我们最后一次带着恐惧与家人告别的地方。什么样的建筑能够驱走恐惧,承受情感和记忆的空虚,同时又能成为我们定居和回忆过去的空间?我们需要一个承载悲伤和失落的载体,这并不意味着我们离开后留下了什么,而是意味着什么样的空间鼓励我们去面对过去。
在这个墓地里,它需要承载 70000 个过去,也就是说它需要承载 70000 个无法弥补的遗憾。
倾斜的城墙堆叠在一起,营造出被群山包围的景象。在“山腰”放置熏香、蜡烛和鲜花,创造了一堵墙和一个让我们沉浸在思想中的机会。墙面倾斜,面向天空,映射出太阳的光芒,陪伴我们面对恐惧。在厚重的混凝土结构中间的天窗轻轻地将光线和希望投射到院子里。
墙是一个构成距离的元素。在这种情况下,以不同的角度倾斜墙壁可以营造出一种逐渐离开的视觉效果。这些墙创造了一个离开的距离,而不是分离。长方形的入口通道会招致不可预测的气候,倾斜的墙壁会从不同的方向引入风。由于墓地位于风城新竹。这座风塔的设计和建造方法讲述了这座城市的故事和回忆。
项目图纸
△轴测图
△总平面图
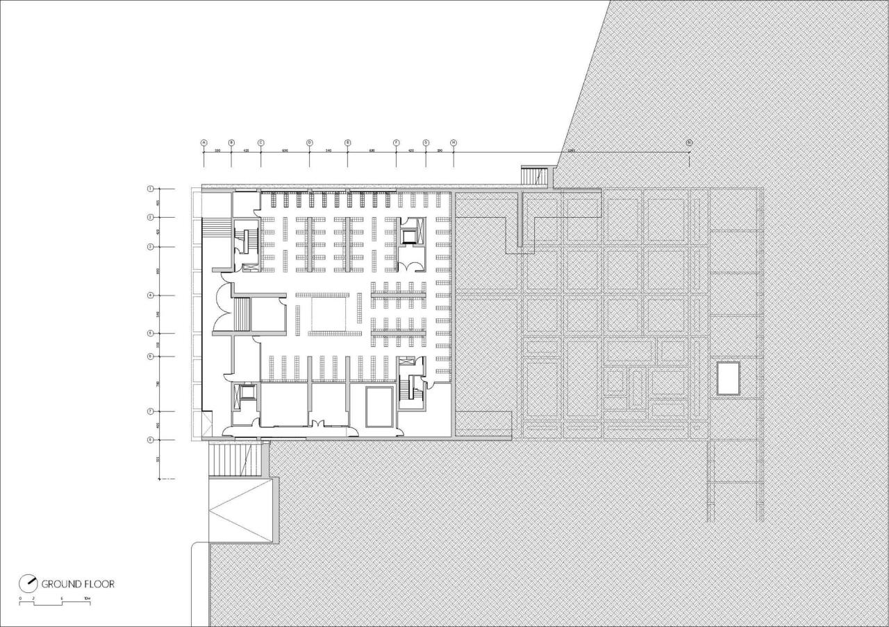
△一层平面图
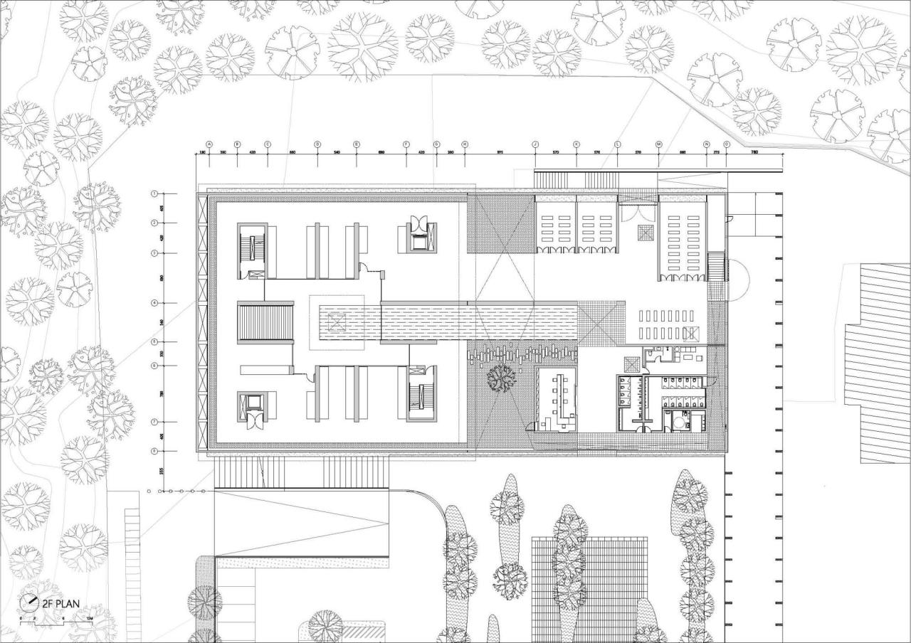
△二层平面图
△三层平面图
△四层平面图
△五层平面图
△屋顶平面图
△立面图
△立面图
△立面图
△立面图
△剖面图
△剖透视
△细部大样图
△分析图
项目信息
建筑师:Behet Bondzio Lin Architekten
面积:7579m²
项目年份:2022
摄影师:YuChen Chao Photography
厂家: Alex 電光企業,Siemens,Ya Tung 亞東水泥
本地建筑师:Yen Partnership+Fuguach Architecture
总承包商:Zhou Shong Co., Ltd
结构工程师:Top Technic Engineering Consultant Co., Ltd
MEP 工程师:Ming Jhan Co.,Ltd
项目管理:Peng Da Wang
地点:中国,台湾

BIM建筑网




































