成都天府新区是中国“公园城市”理念肈造及其实践发轫的地方。从宏观城市设计到中观具体开发地块详细规划再到单体建筑及其具身可感尺度的建成环境,如何让这一条漫长的设计接力流程始终贯彻公园城市的理念,在交付给市民体验的末端让大家感受到真真切切的公园城市美好体验是天府新区每一个单体建筑作品的责任,成都天投国际社区当代艺术中心的设计给出了自己的答案。
天府新区是秉承“公园城市”理念最早一批付诸践行的总体城市设计,它以大尺度生态廊道为纵横网络,有机建构带形生态化的基础骨架,以相对集中的城市空间组团为主体,在关键处放大生成集中城市公园节点。具体到本项目地块,基于互文思维,设计师决心让当代艺术中心所成为天府新区一个小尺度的公园节点,一切的设计创意均生发自这一初心。
规划层面,我们采用了如下三个方法:
1、营造小节点上的口袋公园和街角公园,让“城在园中”的理念落实到近人尺度;
2、较高贴线率和“街墙”效果,塑造高等级城市道路一侧的饱满城市界面;
3、将总体城市设计预留的大尺度纵横生态廊道街细分到街区尺度,在各地块内蔓延并与结构性廊道 平滑衔接。
对应地,建筑设计手法,也归结为三点:
1、将地面的口袋公园和街角公园的边界垂直拓展,端到空中,通过垂直绿化和屋顶绿化让绿色继续蔓延,渗透到建筑内外,让楼内的视野在近、中、远景三个层次上都被绿色掩映;
2、高贴线率的要求需要单体建筑提供鲜明、完整的城市界面,内部展厅空间也不允许不规则和零碎的空间,于是其体量以纯粹的 24mX36mX24m 的平行六面体为原形,这也是“幻方”昵称的由来;
3、找到上位规划和城市设计本就预留的穿过本场地的绿廊轴线,通过立面实体上打开的透明界面与之呼应,同时也放开了多个可以专门观看特定景观的节点,塑造内部动线上在观展间歇穿插观景的体验流程预设,让人们即便在建筑内部游走也可以沉浸在对公园城市的审美体验中。
互文见义,闭环自洽,整体考虑,细节对应。建成空间与生态空间呈现出“楼在园中,园在楼中”的融合状态,这是对上位规划和城市设计“城在园中,园在城中”宏观构思在近人尺度的体验交付。
项目图纸
△建筑单体与城市公园的互文关系
△建筑单体与城市公园的互文关系
△建筑单体与城市公园的互文关系
△总平面图
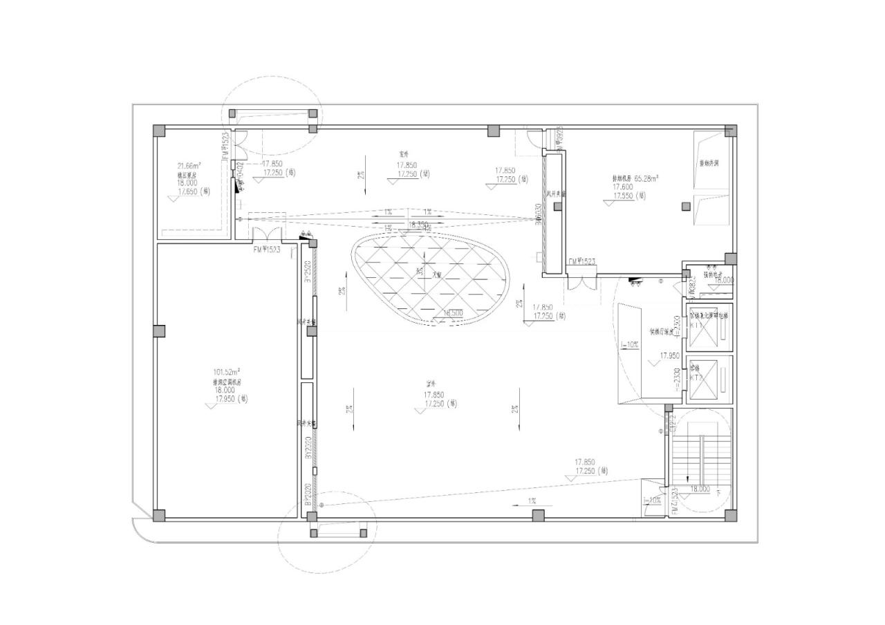
△一层平面图
△二层平面图
△三层平面图
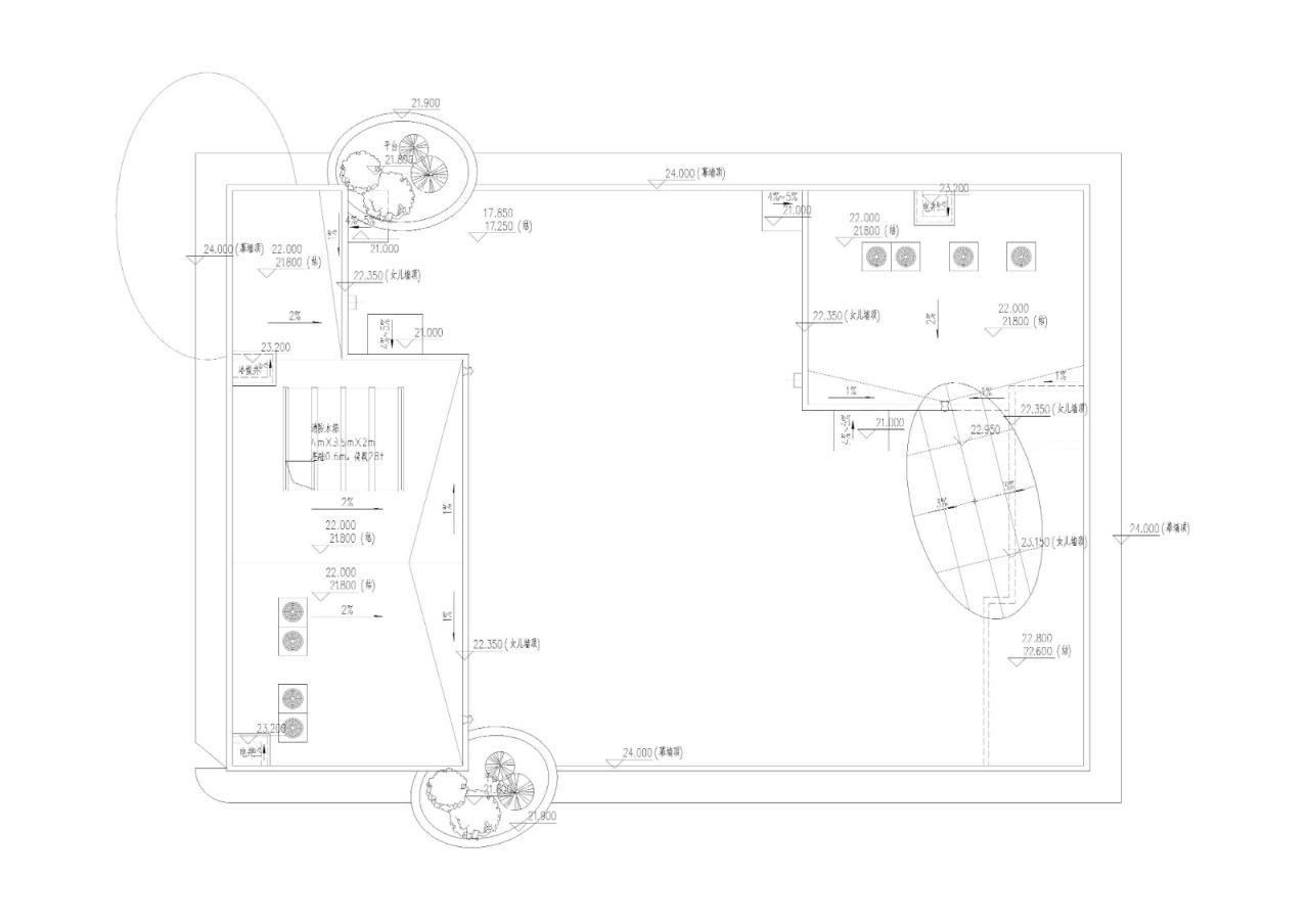
△屋顶平面图
△屋顶平面图
△东立面图
△西立面图
△体块生成图
△解剖轴测图
△节点分析图
项目信息
项目名称:成都天投国际社区当代艺术中心
项目完成年份:2022年
建筑面积:2500平方米
设计单位:中国建筑集团西南建筑设计研究院有限公司(执行单位) 贝尔高林(景观) MOD墨臣设计(室内)、上海境澜建筑设计有限公司(原创合作)
联络人姓名:朱子晔
主创建筑师: 朱子晔
委托方:成都天投地产开发有限公司
合作设计方:中国建筑集团西南建筑设计研究院有限公司
结构设计: 中国建筑集团西南建筑设计研究院有限公司
景观设计: 贝尔高林(景观)
其他合作方: 中国建筑集团西南建筑设计研究院有限公司(执行单位) MOD墨臣设计(室内)、上海境澜建筑设计有限公司(原创合作)
主创设计师:朱子晔
设计团队: 朱子晔、李建硕、沈燕军、龚泽琦、杨金珂、白济东
摄影师: 裴昊然

BIM建筑网












































