塱头古村坐落在广州市北郊,建村至今已有六百余年。作为远近闻名的“书香科甲村”,塱头存有大量保存完好的书院、祠堂、民居、古巷等建筑空间。
△塱头古村
△比邻古村的艺文中心
△横跨荷塘的步行桥将艺文中心与古村相连
△建筑融入风光旖旎的当地自然环境
“塱”字的本意是江旁边的洼地,也引申为湖泽、池塘。古村被众多的水塘所环绕:荷塘、鱼塘、风水塘,微风拂过荷叶荡漾,俨然一派岭南水乡景象。我们设计的塱头艺文中心——“春阳台”正是立于村头的一片荷塘之中。
△从入口侧俯瞰春阳台
△主入口
呼应历史尺度
为了与古村的尺度与格局形成对话,建筑采用聚落式格局,将项目所需的展览、阅读、观演、研学、餐饮等功能分散布置在十座小型单体建筑中。
△入口楼梯
△俯看下沉庭院
△单体建筑之间的弧形“楼”
单体建筑通过弧形的“楼”相串联,同时也围合出尺度怡人的街巷与庭院。
△下沉庭院里,展览入口(右侧)
△街巷
△庭院
△弧形“楼”作为单体建筑之间的过渡
△楼内仰视
△楼内空间
△藏书楼
△亲子体验室
△从剧场室内看荷塘中可作为观众席和舞台的双向看台
△可与户外联通的剧场
△剧场舞台背景门开启
融入自然景致
我们在建筑屋面设置了近三十组不同尺寸的种植池,其中茂盛的水生植物既是野趣的景观,也降低了建筑能耗。一条架空步道穿梭于屋面,从这里望去,种植池与下沉水院、周边的天然荷塘相互呼应,使春阳台成为一座融入环境、高低错落的 “立体荷塘”。
△纵横的屋面架空步行道
△屋面荷花种植池使建筑与自然荷塘浑然一体
△步道的尽端将游人引入大自然
△从屋面架空步行道看荷塘及塘边村落
△高低错落的立体荷塘
△建筑之间的水景
承袭地域文化
建筑以古村中常见的红瓦、青砖为材,加上质朴的素混凝土,意在打造一处根植于塱头的乡土文化设施。
△红瓦外立面
△红瓦墙面细部
△从室内看镂空红瓦墙
△红瓦外立面和青砖外立面
△室内青砖墙面及天窗
△混凝土楼梯和立面
作为对“龙船脊”以及“月梁”等岭南建筑元素的当代演绎,建筑立面上的月牙形开窗既为建筑内部空间带来更加微妙和柔和的采光,又是观察环境的弧形画框,同时也是春阳台标志性的建筑符号。
△从月牙墙后看荷塘 ©潘鸿
△月牙窗
△华灯初上的餐厅
△从荷塘遥看春阳台
△黄昏中的春阳台
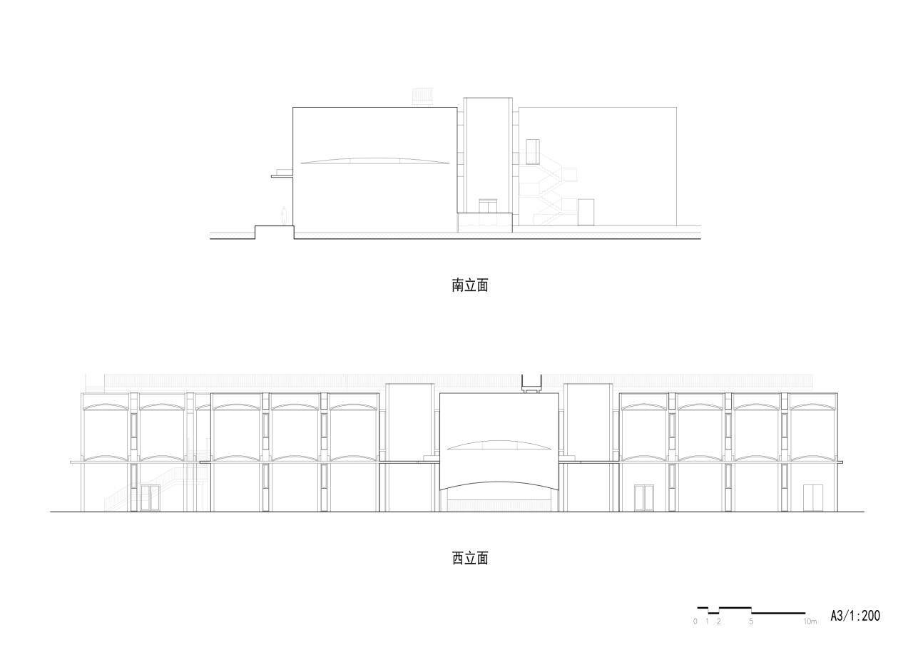
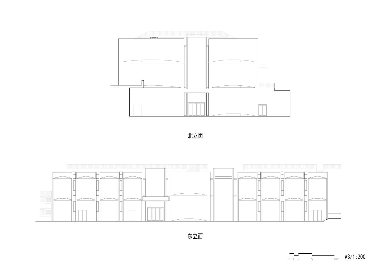
项目图纸
△总平面图
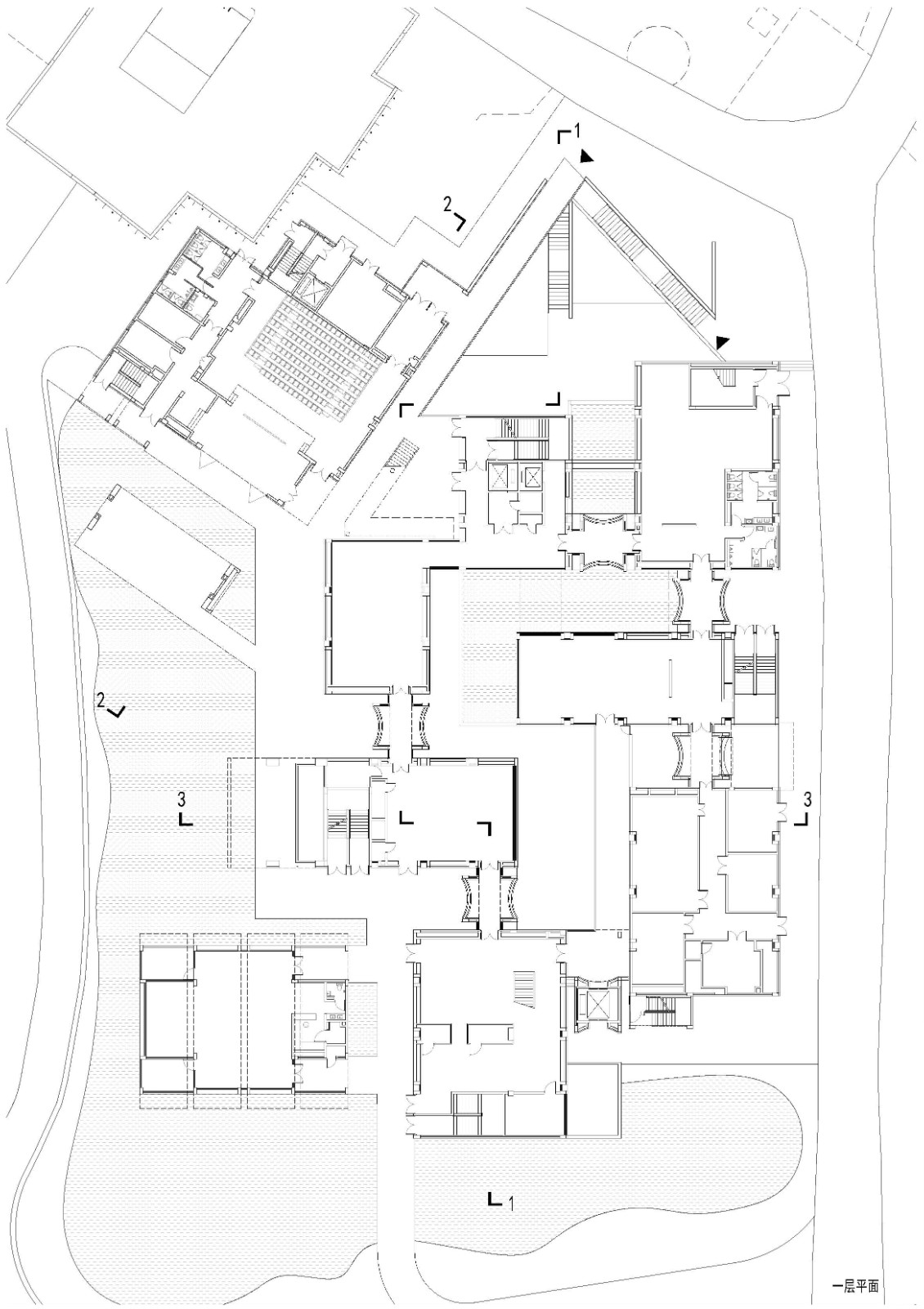
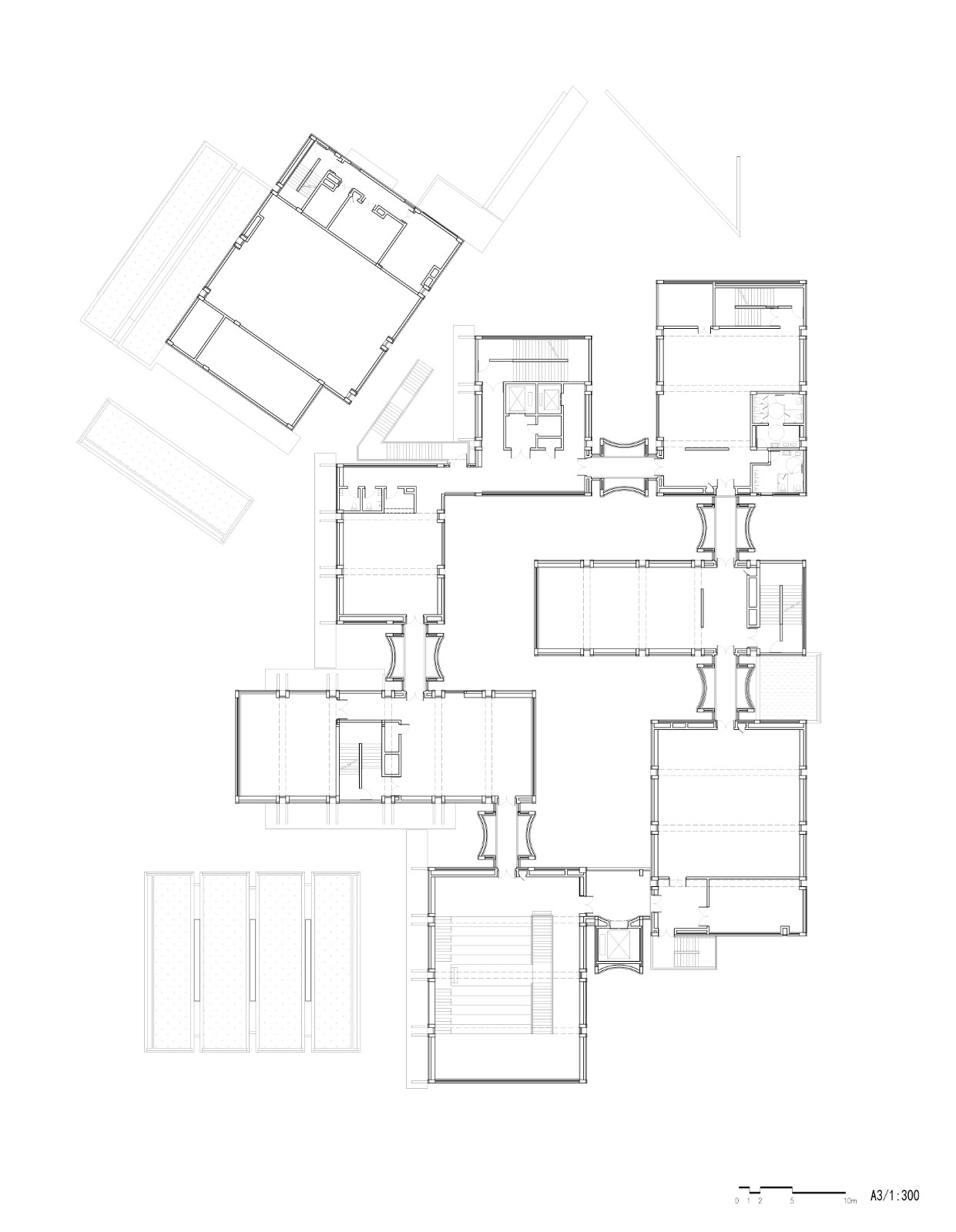
△一层平面图
△地下一层平面图
△二层平面图
△屋顶平面图
项目信息
客户: 广东省唯品会慈善基金会
地点: 广州市花都区炭步镇塱头古村
主持设计: 张永和,鲁力佳
项目团队: 程艺石 梁小宁 叶冬青
设计合作: 华南理工大学建筑设计研究院
室内及常设展设计:陸工作室,XL Studio,新纪元-成工作室,访落工作室
景观设计:广州怡境景观设计有限公司
照明设计:栋梁国际照明设计
摄影师:田方方
建筑面积: 8602 m2
基地面积: 7217 m2
建筑高度: 12 m
设计时间: 2021
竣工时间: 2023

BIM建筑网



















































