为契合慧谷湖科创小镇的上位发展,慧谷湖科创小镇白鹭湾示范区利用三栋既有废弃建筑进行改造或重建,旨在给市民、游客提供规划展示、会议办公及休闲配套服务等功能。
解读|环山抱水的自然本底慧谷湖拥有原始且生态的自然景观:远山翠绿绵延,湖面泛起波澜,林海轻舞生姿。在这景观视野极佳的自然生态环境之中,团队需要做的是通过建筑引导人与自然进行深度对话,展现出自然的本底力量。
研判|优劣并存的原生建筑1号楼造型缺乏层次,但整体质量较好,因此采取保留原有结构进行加固处理并依托主体结构进行改造更新的策略。2号楼为砖混结构,具有诸多不利于改造的因素,团队决定采取原址重建的策略,3号楼现状保存完好且立面节奏协调,采用最小的介入手段。
边界|回应自然的关键线索对于1号楼的改造,体量消解、边界柔化是核心策略。通过盒子、屋顶、廊道、室内外空间的经营,在原本呆板的建筑中形成了多个呼吸孔。2号楼采用了化整为零的策略:通过局部高起,屋顶跌落,平台悬挑等手段达到形体消解的目的。
路径|梳山理水的空间内核平台、路径的组织得以塑造出“行望游居”般别样的山水体验。因地制宜,巧借山水,细心经营使得自然与建筑在行进中被欣赏,营造出一个有机复合、多层级的漫步体系。
细节|整体到局部的有机统一在材料的选择上,依托本真和自然的设计理念,深浅色对比,吸引视线,相同色系融合,映照环境,与镂空墙体、木制格栅共同构成一幅自然画卷。
希冀|身体和精神的双重诉求希望人们能够从繁忙的工作中抽出身来,在这个与自然交融的环境中,找到内心的宁静和平衡,感受水的流动与变化,洞察湖光的变幻和远山的静谧,实现“梦栖诗画里,心泊山水间”的生活理想。
项目信息
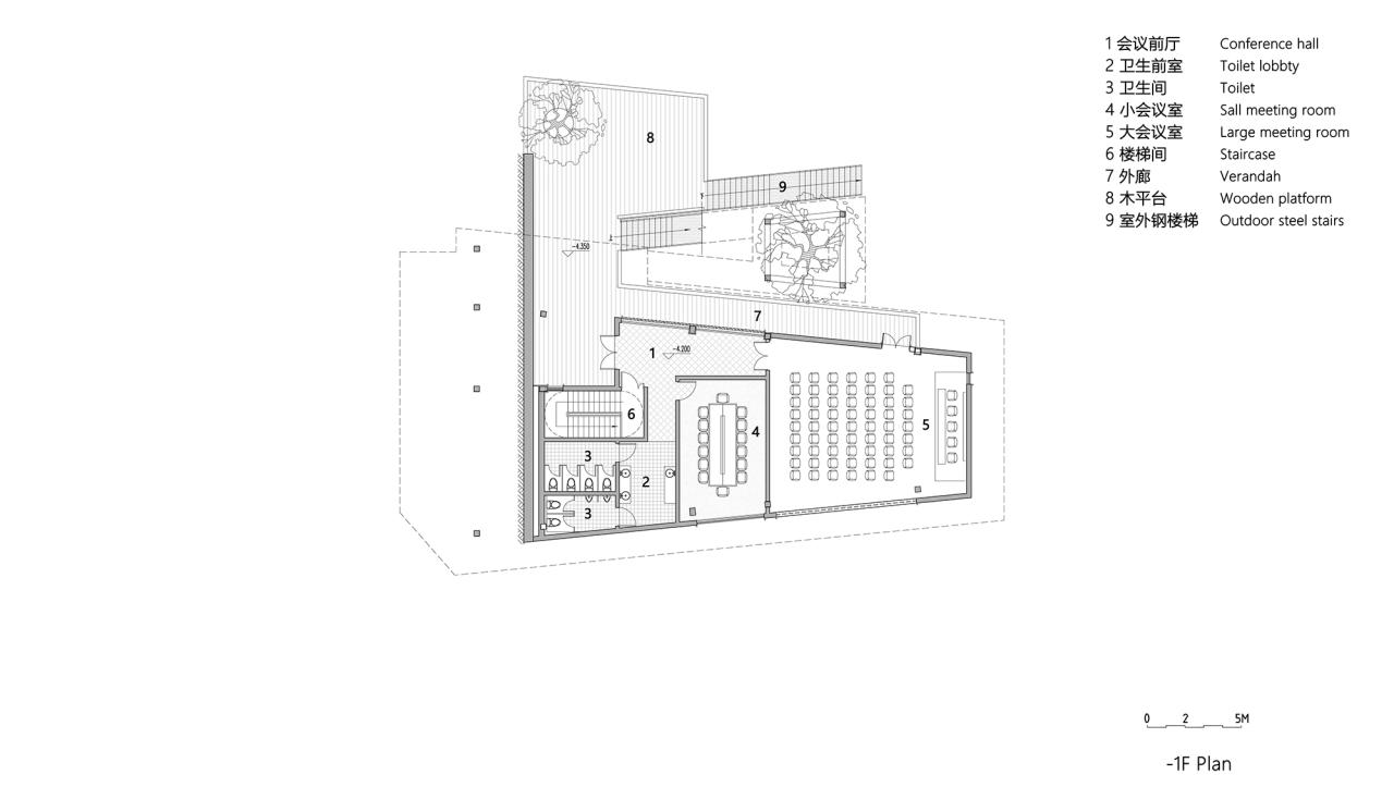
△2号楼负一层平面图
△2号楼负二层平面图
△2号楼一层平面图
△2号楼二层平面图
△1号楼一层平面图
△1号楼二层平面图
△立面图
△立面图
△剖面图
△轴测图
△轴测图
△爆炸图
△爆炸图
项目信息
建筑师: 悦集建筑
面积: 1700 m²
项目年份: 2022
摄影师:PrismImage
主创设计师: 田琦、何飙、李骏
设计团队: 王杜龙、揭定桥、郭剑、李凯锐、但承虎、刘贤哲、郭超、杨会强、王立伟、姜鹏(结构)、王月冬(水)、吴猛(暖)、陈卫(电)、翁钰展(实习)
施工方: 重庆市涪陵区宏伟公路工程有限公司
其他合作方: 重庆市涪陵交通旅游建设投资集团有限公司
委托方: 重庆涪陵慧谷科创产业发展有限公司
地点: 涪陵

BIM建筑网

































