长亭驿位于杭州市滨江区钱塘江南岸,在钱江三桥西南侧、闻涛路北侧,是同济大学建筑设计研究院(集团)有限公司·原作设计工作室承担的杭州市滨江区12公里滨水公共空间改造提升项目的一部分。
驿站系统的完善“十里五里,长亭短亭”,古时人们于道路隔十里设长亭,五里设短亭,供行旅停息,后来“亭”也成为人们郊游驻足之地。杭州滨江公共空间项目位于奥体中心以南的12公里内,以500米为服务半径,其间设置十余座驿站(含新建与改造),每座驿站均设置有休息区、卫生间和商业空间等,基本实现沿江滨水空间服务系统的全覆盖。
城市关系的整合自2015年起,原作设计工作室作为总设计师团队,先后完成了上海杨浦滨江、上海苏州河黄浦段、台州椒江、深圳茅洲河等“大江大河”的滨水公共空间实践。不同于之前的滨水空间项目,杭州滨江的江面宽(钱塘江杭州段两岸相距约1200米,黄浦江约400米)、空间尺度大,常规的驿站规模难以满足实际的需求。且江堤有防洪安全要求,无法种植大树,导致沿江一线缺乏遮阴防晒的空间。因此,在各个驿站的设计中,充分利用檐下灰空间形成半室外城市公共活动场地,并创造“长卷式”的观江视野。
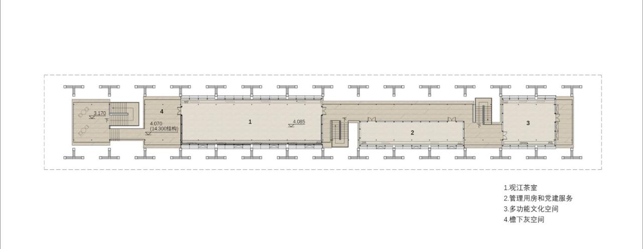
西兴文化的回响西兴古镇位于杭州滨江区城南,这里曾经舟来纤往,是连接浙东运河和钱塘江的要冲,而“过塘行”(即转运栈)是西兴文化的精粹,它不仅是古代的物流中心,也是人文中心。长亭驿作为沿江一线驿站中代表性的、现代化演绎的城市滨水公共空间驿站,又回应了“亭”之于传统文化的内涵。它是一座两层的钢木结构长亭式建筑。长亭驿总建筑面积1717.75平方米,高度9米,除卫生间、饮水等基本功能外,设置有西兴文化展示、观江茶室、党建服务等空间,周边则根据建筑特点配置了金叶水杉和狼尾草。
长亭驿相邻的原有码头就是一处渔货交易市场,长亭驿的建成,以其独特的线性室内外场景,策划将“市集”、“望江”等活动带回场地。或许这也是“西兴渡口帆初落、渔浦山头日未欹”的空间再现。
漂浮轻盈的建构
长亭驿长度约100米,宽度约15米,建筑体量整体分上下两部分:上部为轻盈温暖的木材,下部为厚重沉稳的夯土盒子。屋架为6m*6m的米字形北美花旗松胶合木梁单元组合,木梁截面尺寸200*1000mm;支承屋架的为三根一组的空间V形钢柱,柱截面尺寸200*200mm。
二层楼面由连接于钢柱两侧的水平胶合木梁承托,又因屋面向下设置的直径仅为35mm的钢拉杆吊挂,木梁尺寸大大减小。整座建筑体现了结构的真实与理性,又经由建构本身塑造的流动通透的空间,展露出建筑与自然交融的诗意
项目图纸
△一层平面图
△二层平面图
△立面图
△剖面图
△分析图
△分析图
△爆炸图
项目信息
建筑师: 同济原作设计工作室
面积: 1718 m²
项目年份: 2023
摄影师:章勇, 同济原作设计工作室
厂家: 济木建筑科技工程(上海)有限公司
主创建筑师: 章明、张姿、陈波
设计单位: 同济原作设计工作室
总体及建筑设计团队: 姚冠杰、张晓雅、冯玉青、赵爽、龙颖、牟筱童、孙嘉龙、马含笑(实习)、李辰(实习)、张洁茹(实习)、顾他一(实习)
BIM设计团队: 张东升、王凌宇、宣怡
结构设计团队: 吴宏磊、郑超毅、黄德键、李东园
设备设计团队: 刘建、贾敏、张思恩、吕宗虎、王海东、张玉洁、李玉洁、蔡婷
景观设计团队: 李修兵、邹倩、罗健、苏菁华、刘毓柯
照明设计团队: 杨秀、卞晨、李迪
技术经济团队: 庞晓琳、周凌俊、臧俊隆、陈欣韵、佟舟、葛瑀玮、张春霞、曹叶馨
绿色建筑团队: 任国辉、薛芳慧、郑晓薇、孟凡琳
合作协调团队: 浙江理工建筑设计研究有限公司:秦安华,黄嘉瑶,周康,马凯
施工单位: 杭州萧宏建设环境集团有限公司
标识设计单位: 屹珂设计
木结构专项: 济木建筑科技工程(上海)有限公司
建设单位: 杭州滨江环境发展有限公司
地点: 杭州

BIM建筑网
























