去往项目场地的路上满眼都是山野葱郁的深绿,穿过官厅水库湿地,先是远远望见了北京延庆奥林匹克园区的小海坨山,兜转几巡,见到前黑龙庙村东北角的这两排小房子时,它们在一片果园尽头,躲在院墙后和我们互相打量。院落地势由南向北逐步升高,紧邻院墙东边是一片在坡地上自然生长的树林,好似为我们想要在这里讲述一个逃离成人与城市的童话故事而特意准备。
▲ 项目一瞥 ©朱雨蒙
▲ 区位关系 ©大料建筑
整个场地朴素,浪漫。
▲ 原始场地环境 ©大料建筑
奇妙的漫游经历和舒适的使用体验如何共同存在?一望即识和静谧寻常又如何保持平衡?我们依赖场地原始模样,也寄希望于大刀阔斧。
▲ 项目与村落 ©朱雨蒙
-3.100米:洞穴
原有房子之北是一个开敞院落,院内标高远高于墙外的村路,两者之间有接近3米的高差。为了充分利用场地,也为了找到童话里主人公“上天入地”的故事体验,我们在原有院落中央向下掏出一个新的院子,使下沉庭院与院墙外村路的高度差距尽可能接近,并顺势将院落主入口由南侧调转至北侧。
▲ 沿街立面 ©朱雨蒙
院门和院墙在地势低洼的村道上看起来高耸如城堡,而踏进院门,穿过砖井投下的光影,却如孩童钻入光怪陆离的兔子洞,来到一方小小的新天地。下沉庭院被休闲娱乐厅、厨房等相关配套设施包裹围合,六根方整的立柱撑起天井庭院,孩子们轻快的脚步声咚咚地在头顶响起。庭院的尽头,细碎的光点在草茎的弯曲回弹间明灭不定。
▲ 主要出入口 ©朱雨蒙
▲ 砖井 ©朱雨蒙
▲ 门厅 ©朱雨蒙
▲ 下沉庭院 ©朱雨蒙
±0.000米:房子和池塘
从下沉庭院拾级而上,地势回到场地本身的标高后,带来的是远处开阔的视野,山峦、树梢、田野连成一片。收回视线,是院子里石板平台、茸茸草坪和柔软水面。
▲ 从平台向外望的开阔视野 ©朱雨蒙
原有的两栋房屋质量尚好,因而得以顺利保留。北侧房屋的屋顶之上额外架一层巨大的单侧钢质屋顶,在远处村庄的边缘也能一眼瞧见,乡野民居的平淡通过夸张体量得以平衡。
▲ 单侧钢质屋顶 ©朱雨蒙
▲ 从村子边缘望向大屋顶 ©大料建筑
▲ 单侧钢质屋顶 ©朱雨蒙
▲ 红砖外墙 ©朱雨蒙
大屋顶下置入玻璃盒子作为多功能厅,使钢质屋顶轻盈地漂浮在房子之上。再给原房屋复合公共休闲与交通功能,红砖堆叠中回归村土寻常。
▲ 玻璃盒子与红砖外墙 ©朱雨蒙
▲ 多功能厅室内 ©朱雨蒙
房子过去和现在的关系通过结构与工艺、功能与材料进行了充分地表达——新的结构支撑给旧的房屋主体提供骨架,原有的建筑空间为新的使用功能奠定基础。不同质感与颜色的材料如表皮般层层嵌套组合,共同组成供民宿客人使用的核心公共区域。
▲ 新旧关系分析 ©大料建筑
▲ 建筑新旧关系 ©朱雨蒙
客房设置在公共区南侧,穿过室内休息区的通廊便是安静舒适的休息区域。保留场地中一人多高的树木,用回廊串联4间客房,形成私密性较强的内向型庭院,庭院整体形式与前院的下沉庭院形成呼应。
▲ 室内休息区 ©朱雨蒙
▲ 通往客房庭院的通廊 ©朱雨蒙
▲ 客房庭院 ©朱雨蒙
▲ 从外部看向客房庭院 ©朱雨蒙
▲ 客房庭院夜景 ©朱雨蒙
走出庭院,纵身跃入紧邻房子的室外无边泳池,立即回到了儿时嬉戏过的池塘,不同的是透过玻璃池壁,这次真的能成为童话故事中的那条人鱼,顺着阳光折射,斑斓又迷幻。
▲ 纵身跃入泳池 ©朱雨蒙
▲ 阳光下的无边玻璃泳池 ©朱雨蒙
▲ 阳光下的无边玻璃泳池 ©朱雨蒙
▲ 无边玻璃泳池夜景 ©朱雨蒙
+1.200米:台阶,桥与植物
场地东侧坡地的改造顺应原有地势高度变化,被平整成不同功能、不同质地、不同高差的几个平台,平台之间由台阶串联。石板平台是几个平台中地势最低的,与外界联系也更为紧密;草地平台面向水池敞开,野趣与现代互相融合;木质平台则是树屋客房组团,也更靠近院子核心功能。
▲ 不同高度的平台 ©朱雨蒙
3间树屋以点的形式呈现在组团中,紧密联系但并不互相干扰,树屋屋顶使用仿真茅草,防火效果更佳但仍然逼真。夜晚降临,树屋开始散发出萤火暖光,躺下来听个故事,就着蝉鸣和星光晚安。
▲ 树屋组团 ©朱雨蒙
架空栈道横跨在坡地之上,把树屋和场地中保留下来的树木与草地环绕在中间。沿着栈道每转一个弯,视野也随着高高低低的平台变化发生着转变,找到童年奔跑的自由,从这头到那头。
▲ 架空栈道 ©朱雨蒙
+7.100米:树梢
顺着环绕房子的楼梯继续向上,爬上加建于整个村庄之上的钢质露台,树梢般的高度将童趣体验专注于对紧张和刺激的探索,同时也将“孩童们”的目光转向对于云朵星辰的无尽想象,村庄的俯瞰和远眺。
▲ 环绕房子的楼梯 ©朱雨蒙
▲ 钢质露台 ©朱雨蒙
远处有什么呢,是那片灯火星点的山野营地吧,也许是梦境也说不定。
▲ 山野营地 ©朱雨蒙
▲ 夜景 ©朱雨蒙
项目图纸
▲ 总平面图 ©大料建筑
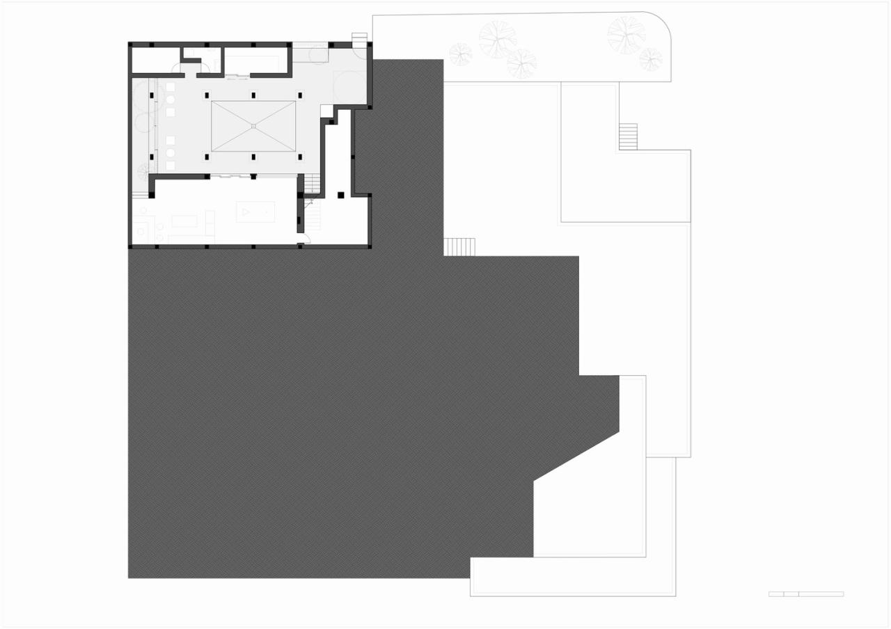
▲ 首层平面图 ©大料建筑
▲ 二层平面图 ©大料建筑
▲ 屋顶平面图 ©大料建筑
▲ 地下一层平面图 ©大料建筑
▲ 立面图 ©大料建筑
▲ 剖面图 1、2 ©大料建筑
▲ 剖面图 3、4 ©大料建筑
项目信息
位置:北京市,延庆区,前黑龙庙村
业主:板泉之野酒店和营地
建筑面积:864㎡
营地面积:18000㎡
建筑室内景观营地设计:大料建筑
建筑:刘阳,段琦,丁月文,史维维
结构:高雪梅,李平
电气:于文涛
暖通:王洪兴
水专业:黄鑫
施工项目经理:王建东
摄影:朱雨蒙工作室

BIM建筑网















































