MAD建筑事务所公布新作上海“方舟”改造设计方案。
MAD的改造设计希望通过新老建筑的并置,创造时间感官和物理维度上的立体层次。改造后的建筑,如同一艘冉冉升起的方舟,为衰败的工业遗址带去新的生命力。
“方舟”的改造对象为上海张江水泥厂园区南侧的“万米仓”。改造后,这里将成为融文化、创意、餐饮、商业、共享办公等不同业态于一体的多功能公共滨水空间。
上海张江水泥厂位于张江城市副中心,曾是上海三大水泥厂之一,1971年建成,见证了上海近50年城市建设发展,后于2013年基本停产。近年,园区改造启动,召集了国内外先锋建筑师对园区进行集群设计,通过更新再利用,保留“万米仓”、“水泥筒仓”、“窑尾塔”等历史遗留工业建筑,发展研发、文体服务和创意商业配套,将水泥厂改造为产业共生、建筑多元、人文共享为一体的复合型产业园区。
立于川杨河北畔的万米仓,曾是往来船只将原料送入水泥厂加工的第一站,也是水泥厂内现存面积最大的建筑。其势如万米画卷的沿河立面是一代代上海人民的城市记忆。如今,虽褪去了昔日往来货运和工业生产的熙攘,万米仓仍是川杨河畔连接张江副中心的重要城市节点,与地标张江“科学之门”双子塔隔水相望。
“工业遗产之所以被保留和利用,不仅是因为其所承载的历史记忆,更重要的是它能让未来也具有某种历史感。所以,我们在这里并不需要去赞美和巩固工业美学,而更应关注当代和未来的精神。”——马岩松
设计保留了万米仓原有的工业建筑风貌。老屋顶被拆除,取而代之的是一个如同来自未来的、方舟般的金属“漂浮”空间。混凝土的粗粝感与金属的光洁质感形成强烈对比,来自不同时间维度的存在相互碰撞,产生的张力让原已破败的厂房产生新的生命力。
新的办公空间如方舟般被升至空中,成为新的屋顶;原有的工业大空间被保留并转化为一个多功能的城市会客厅。原工业建筑斑驳的长向立面经修缮与加固后,成为新空间记忆和灵魂的一部分。朝向张江副中心的西侧墙体被拆除,取而代之的是整面的悬索玻璃幕墙。玻璃幕墙相对原墙体的位置往后退,外侧形成24小时开放的城市公共空间。
通透的玻璃幕墙背后,明亮、开阔的厂房空间一览无余。设计利用万米仓狭长而高大的体量特点,打造极具纵深感的室内空间。人们步入内部,映入眼帘的是徐徐展开的巨大方舟。金属悬梯直通屋面,吸引人踏上探寻未来与未知的旅程。方舟之下,是老厂房斑驳的墙体以及层层递进的退台花园。花园中设置有创意、文化、餐饮等业态,以期打造能够激活城市空间的活力新社区。
新老结构通过老厂房墙体与漂浮方舟之间的玻璃幕墙完全脱开。光线从幕墙间隙中洒下,落在花园之中,又映射在顶部微微反光的不锈钢天花上,使整个空间都充满了自然的光感与绿意。阳光随着时间变幻角度,仿佛提醒着人们时间的流逝,和这里一砖一瓦曾见证过的历史。
为了让身处建筑内部的人们也能自由享受河岸景观,老厂房的首层沿河界面被打开,与滨水广场融合。同时在建筑中部设置通廊,将园区内广场与河岸相连接。新设计的连桥连接川杨河两岸,让片区更多的人们能够更便捷地享受这处新型的公共空间。
屋顶被打造为开阔的城市公共空间。人们可自由通达至此,远眺川杨河。方舟的屋檐向下倾斜,一方面在视觉上消解了建筑高度可能对川杨河畔产生的压迫感,另一方面也优化了屋顶平台的景观视野。
“方舟”的漂浮效果通过新增立柱、楼面桁架、跨层桁架和大跨梁等结构来实现;老旧墙面则通过拉墙钉、钢丝网、扶壁钢架等方式进行加固修复,以求最大限度地保留其历史沧桑感。
上海张江水泥厂万米仓改造项目预计于2026年完工。
△原建筑
△原建筑
△原建筑
项目图纸
△轴测图
△结构示意图
△结构分析图
△功能分区
△交通分析
△总平面图
△一层平面图
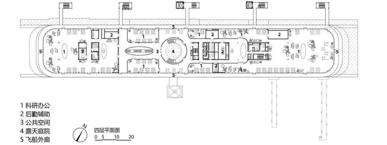
△四层平面图
△剖面图
项目信息
类型:保留改造多功能建筑
基地面积:6,742 平方米
建筑面积:15,312 平方米
建筑高度:24 米
主持合伙人:马岩松, 党群, 早野洋介
主持副合伙人:傅昌瑞
设计团队:郑程文, 张彤, 周芮, Shiko Foo
业主:上海全澄开发建设有限公司
甲级设计院:同济大学建筑设计研究院(集团)有限公司
结构顾问:和作结构建筑研究所
幕墙顾问:CIMA上海熙玛工程顾问有限公司
室内顾问:MAD建筑事务所
灯光顾问:TS上海倘思照明设计有限公司
景观顾问:DLC地茂景观设计咨询(上海)有限公司

BIM建筑网



























