几个世纪以来,人类已经学会根据当地的自然法则进行高效的建设,就像植物和动物自己调整栖息地和基因,最大限度地提高能源利用效率,保护自己,确保物种繁衍。但同时,我们也忘记了如何与大自然共生共荣。
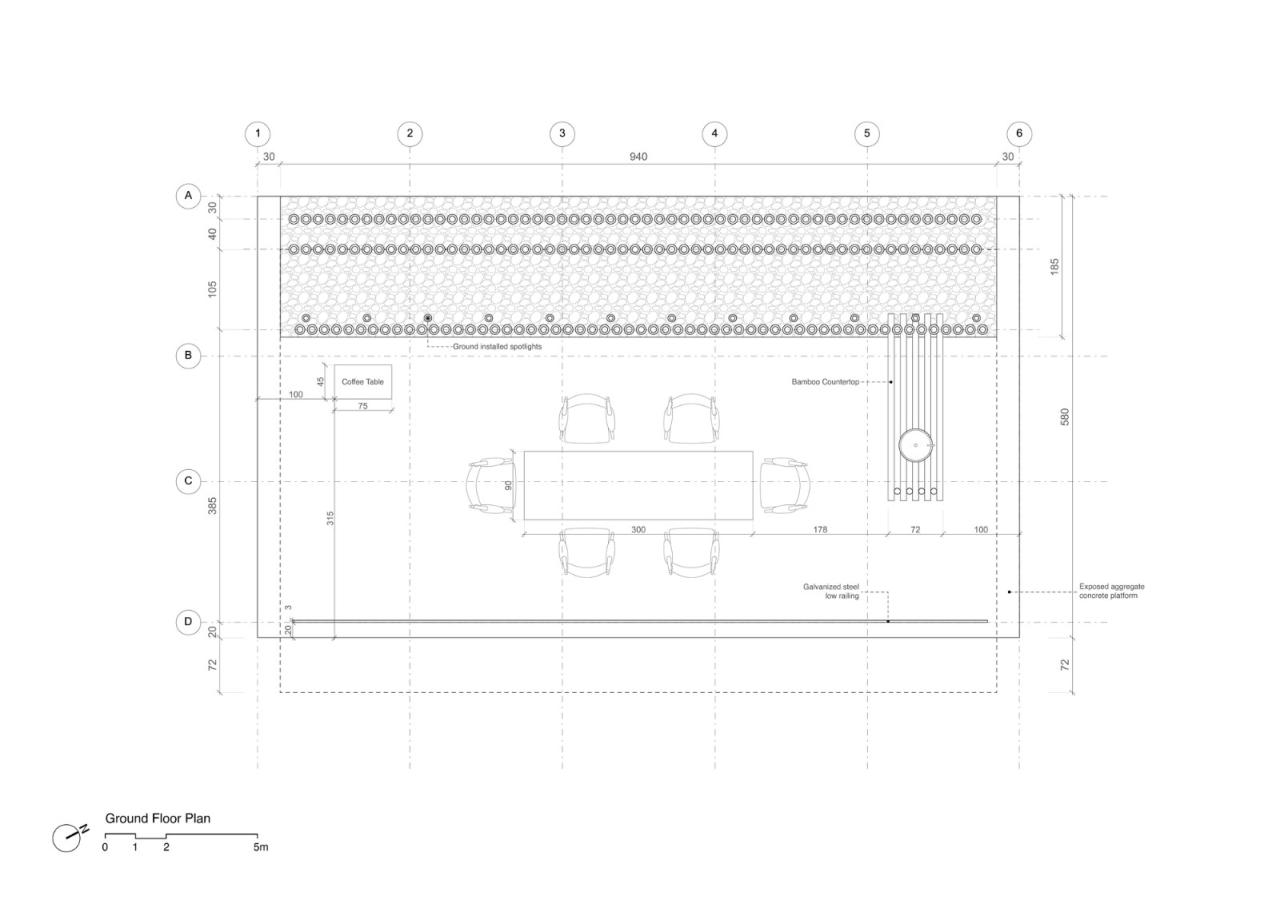
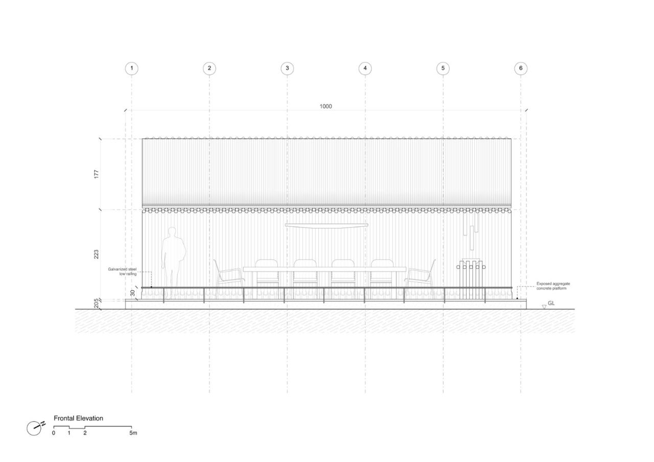
适应性清水山上的茶馆位于海拔 700 米的斜坡边缘。它使用了竹子,是南亚使用了数千年的建筑材料。大多数竹子在一年之内就能长到 6 米高。它细长的树干可以极度弯曲,以抵御台风等强风的袭击。竹子可以弯曲,以减少风的阻力,并将雨水导入山坡。它还可以切成两半,形成天然的屋顶瓦层,为茶馆遮风挡雨。所有连接处都用简单的金属绳绑扎,施工/组装时间不到一个月。
可持续性竹子在台湾很容易得到,一年内就能长到最高的高度。然后,它将达到理想的强度和柔韧性,可以用作建筑材料。它传统上经过熏烟以干燥并抵抗白蚁,作为建筑材料至少可使用五年。这使得它成为一种非常低碳足迹的建筑材料。
整体主义这座茶馆让我们感到兴奋的是以整体主义的方式与大自然合作。利用周围的材料建造一个庇护所,在风声、光影、河水声和雨声中品茶,与大自然融为一体。茶道是家庭日常生活中不可或缺的一部分,同时也为社交聚会增添了深度和意义,而且有助于提高对烹制和供应草药的独特性的鉴赏力。这不仅仅是一种消费。
建筑是有皮肤的生物,需要阳光和通气的保护。在设计结构和屋顶时,我们仔细考虑了这些因素。今天,我们所能获得的最迷人的进化飞跃是我们对微生物过程的进一步了解。我们可以非常准确地了解物种是如何适应极端天气的,并将它们千年来的聪明才智应用于建筑表面。然而,我们首先需要尊重自然。欣赏大自然对我们可持续生活质量的价值,了解大自然的脆弱性。我们需要与大自然合作,保护大自然,并发展交织在一起的轨迹,以确保我们的生活。
项目图纸
△轴测图
△总平面图
△平面图
△剖面图
△立面图
△结构示意图
△细部大样图
△细部大样图
△细部大样图
项目信息
建筑师:Behet Bondzio Lin Architekten
面积:57m²
项目年份:2018
摄影师:YuChen Chao Photography
项目团队:Behet Bondzio Lin Architekten
主创建筑师:Yu‐Han Michael Lin
施工团队:IUE SHAN STUDIO
景观设计师:Behet Bondzio Lin Architekten
地点: 中国 台湾南投

BIM建筑网
































