地块位于有着3层台阶的梯田,最大高差约3米,基地面积4000平米,周围有着不错的自然风景,环东南面有一片清幽的竹林,西北面则靠近林地,一条蜿蜒的乡村小路在此处一分为二,上下岔开,一条继续往东北方向盘山伸去,通到村人的果园与耕地,一条则下行,并入环村干道的一部分。此处位于村寨尾部,距村民住宅的聚落有一段物理距离,林地与竹林隔河相望,形成对立趋势,地块则恰好夹在这二者中间。
考虑到将四周农业景观最大化吸收运用,并组织进现代居住体验,ATLAS与贰木建筑提出“将梯田生态的自然高低差空间体验,移植到房间内部”的空间方案,针对现代生活的功能与便利,以疏密、大小、明暗等古典空间的美学手法,发展出独特的空间形态,作为回应古村落积极发展当代可再生式旅游的物质性基础。方案在3栋住宿建筑内,分别设置了3级高低差地坪,以房间入口地面为基准,依次向寝台、阳台方向递减。而在配置阁楼的套间,这种台地手法,继续往竖向延申,发展成上下两路空间形态。
出于将家具纳入空间构成的一部分考虑,在序列上等同于柱子、檩条、横梁、地面等部件,选用与房间主结构杉木保持一致的木料,以每间屋子的实际面积,量定与之相贴合的功能模块。大于常规模数的物件,诸如长达3.6米的书桌,宽2.6米的洗手台,跨度3.6米的寝台,在物理上连成一片,维系了木结构系统空间单元的内外和谐,而一体化设计思考进一步深化了梯田的地景体验。住宿的房间内不设物理隔断,以确保空间的流动性,在卧房与盥洗室之间,以竹帘百叶轻掩,同时裸露的原木结构部件,一律呼应自然建筑的轻快节奏。增加的角窗和天窗为房间营造出了一点“捕风捉影,求物之妙”的自然情致,也带给居住者多重角度的视野享受。
设计者希望在呼应传统与因循旧例之间,找到一种平衡的建筑语汇。对粮仓、禾晾架、花桥与火塘的继承性转化,则体现在新建筑对建筑原型的引用上,超越古老寓言的集体叙事。建筑的两个立面,西北面立面作法即是放大版的谷仓,去皮原木木板,不施漆饰,赋予建筑平实的外观印象,揭示材料本色,碳化押条增强了该立面水平向节奏秩序,视觉上近乎2倍阔的宽屋顶,将外墙隐藏在刻意压低的檐口之内。作为一个公共建筑,2.7米房檐高度,从山道上来看恰好不过于醒目,而2米宽的入口门洞,径直通往室内商店,建筑显示出一种与村落环境相融的谦逊品质。
朝向东南面的立面,由2组禾晾架组织起长约15米的水平向秩序,作为架空平台的栏杆,联系起另外三个立面。花桥是寨内交通路网组成部分,也是村民闲暇聚会聊天的公共场所。花桥的原型则被运用在接待大厅一层的悬挑平台,三分之二个柱距宽的长条形木廊,自然垂落,距离地面约50公分高的宽阔窗台,模仿花桥两侧的美人靠,提供给人或躺或坐。
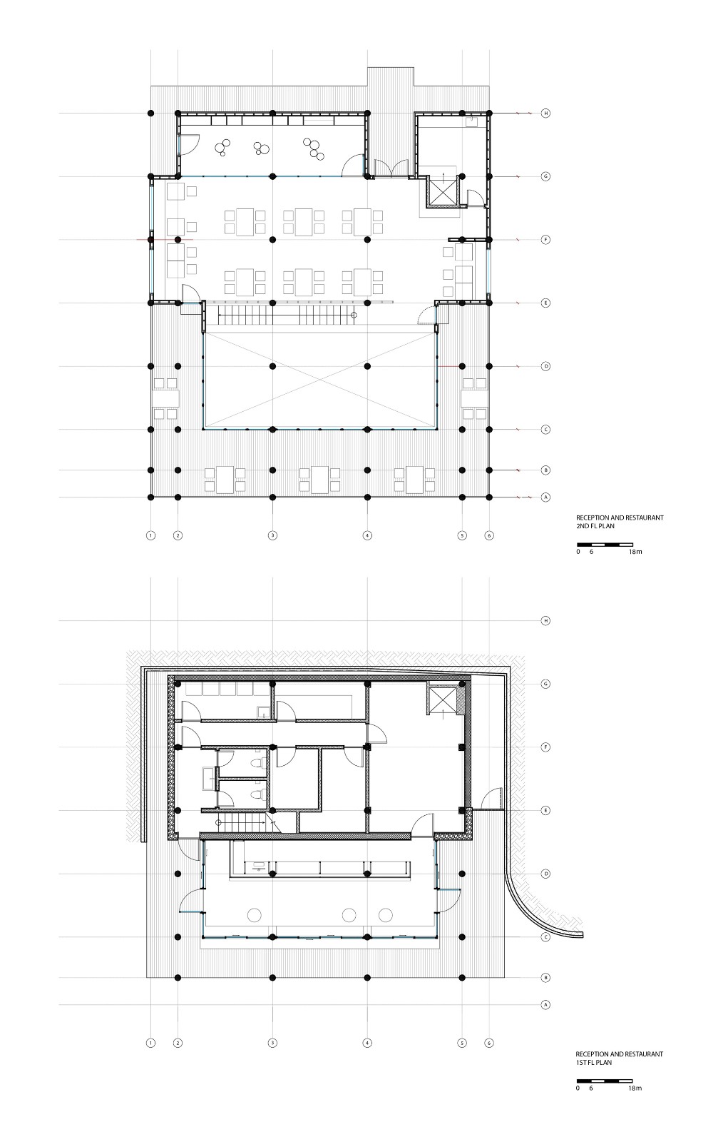
大厅空间的功能分割可归纳为四个部分,即一个贯穿上下,通高两层的中庭空间,接待区域设置在此处;一个包含厨房、布草间、设备室、储物间等服务性空间的封闭盒子;一个包围建筑二分之一表面的双层架空走廊平台;一个配置餐室与展示空间的乡村商店。从一层通往二层的室内楼梯,隐藏在接待区大面积碳化木片墙背后,后者刚好从山墙面中心将建筑一剖为二。也可以说大厅为了营造“旷奥”的空间深度,围绕接待中庭的“虚”空间组织起空间秩序。若从商店一侧渡入内部,可以明确感受到木构造空间的层级变化,由小及大,忽远忽深。
由于使用不同的隔断材料及不同的滤光方式,空间拥有多维度的身心体验,大厅室内得到三个方向的采光效果,也获得了视觉上的连续景观。建筑完全融入周边林地环境,透过光影的层层皴染,夜间呈现给人一种隐秘幽深,似真似幻的感觉,无论室外或室内,空间表现出同样丰富的纵深感,给人予身体与意识,自然与人工,虚实难辨的奇妙景象。
项目图纸
△接待厅和餐厅平面图
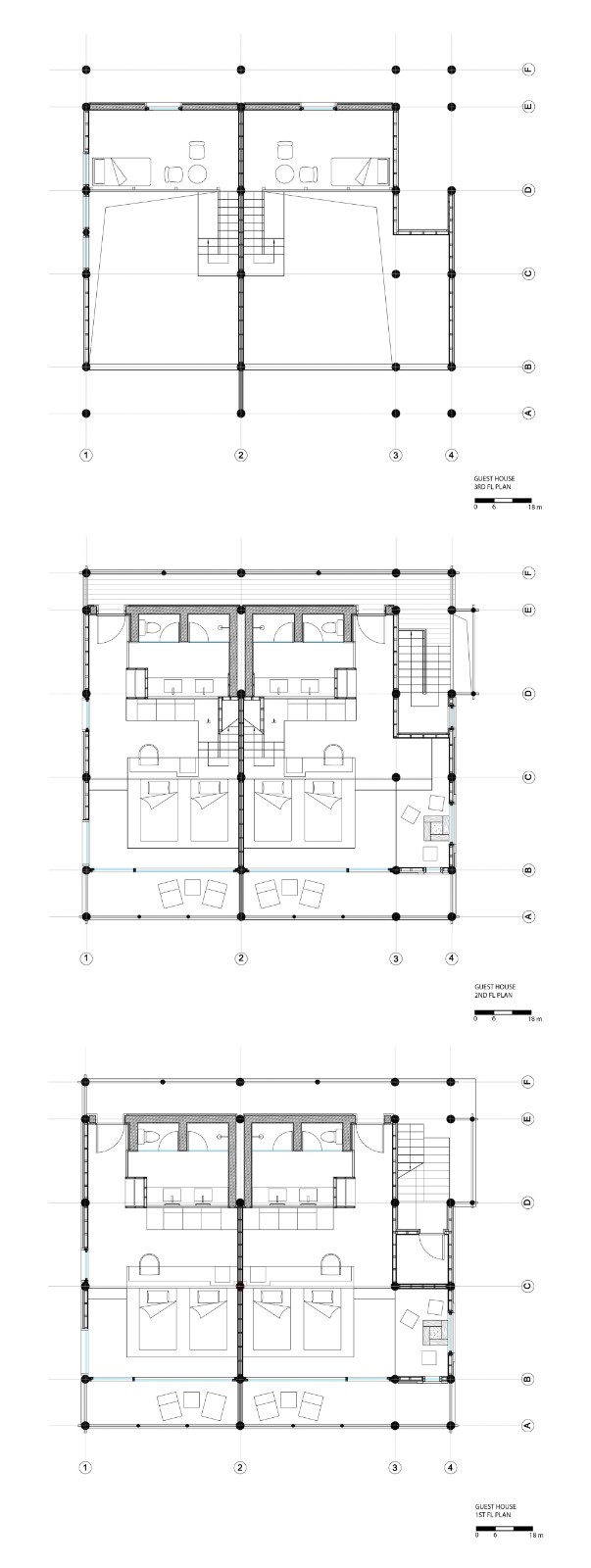
△客房平面图
△剖面图
△剖面图
项目信息
建筑师:ATLAS STUDIO
面积:1028m²
项目年份:2023
摄影师:朱雨蒙
设计团队:Jenny Chou , Yihsuan Lin, Bruce Park, Hongcheng Yin, Xinru Liu
合作方:贰木建筑Unum Studio
业主方:大利井上见
地点:黔东南地区

BIM建筑网





























