产业遗存的更新,不仅是对历史的致敬,更是要服务当下,面向未来,我们选择以金缮的方式,为都市中心的低效存量土地注入兼具历史记忆和当代精神的独特生机。——朱培栋
△Rendering byMir
位于杭州大运河畔的LOFT49前身可追溯至1958年创建的杭州化纤厂,80年代发展为蓝孔雀锦纶分厂。2003年,随着城市建设和产业结构重心由工业向第三产业转变,被闲置的工业厂房吸引了大批艺术家自发聚集于此,杭州第一座标志性文创园LOFT49因此诞生,成为浙江省首个新型文创产业聚集地,直至2019年关停开始升级改造。
△ 杭州化纤厂和LOFT49创意园区实景
line+建筑事务所联合创始人、主持建筑师朱培栋博士带领团队赢得了LOFT49园区二期的总体规划、园区整体方案和工业遗存建筑室内一体化更新的设计权,与设计总包方中外建华诚合作打造这一大运河沿线的产业更新示范园区。目前,项目建设已经全面启动,预计于2025年建成开放。
△ 区位图
△ImagebyMir
在近四十年间,LOFT49经历了从工业园区、工业遗存到创意产业园的整体转型,现阶段受困于城市核心地段工业遗产如何保护更新再利用与如何高效提升空间容量以适应产业迭代的双难题。
△ 工业遗存和文创产业的双重背景
面对棕地改造与规划提升的要求,line+基于自身在城市更新领域的研究,提出“金缮”修复理念,类似于文物修复的金缮技艺,将城市的历史与瑕疵视为有机组成,予以保留,通过异质体系的融入整合和价值赋予,实现历史保护与活化更新的双重目标。
△ “金缮”修复理念
总体规划理念“城市金缮,生机街区”以城市记忆为基础,激发公共场所的新生,实现对城市中心低效用地的赋能更新;扩充建筑容量,升级商业业态,迭代产业形态,补偿公共空间,创造未来承载复合场景的活力街区示范样本。
△RenderingbyMir
01 城市金缮:从封闭园区到生机街区
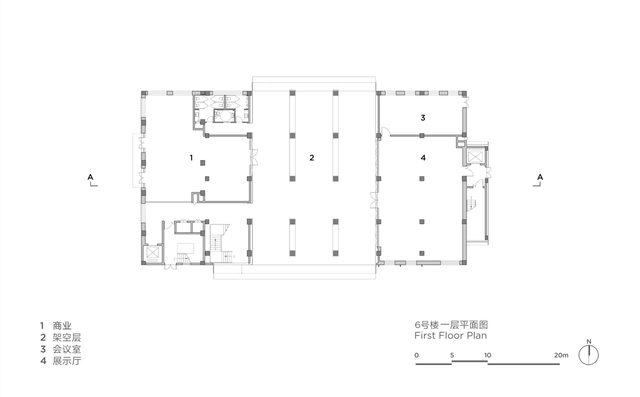
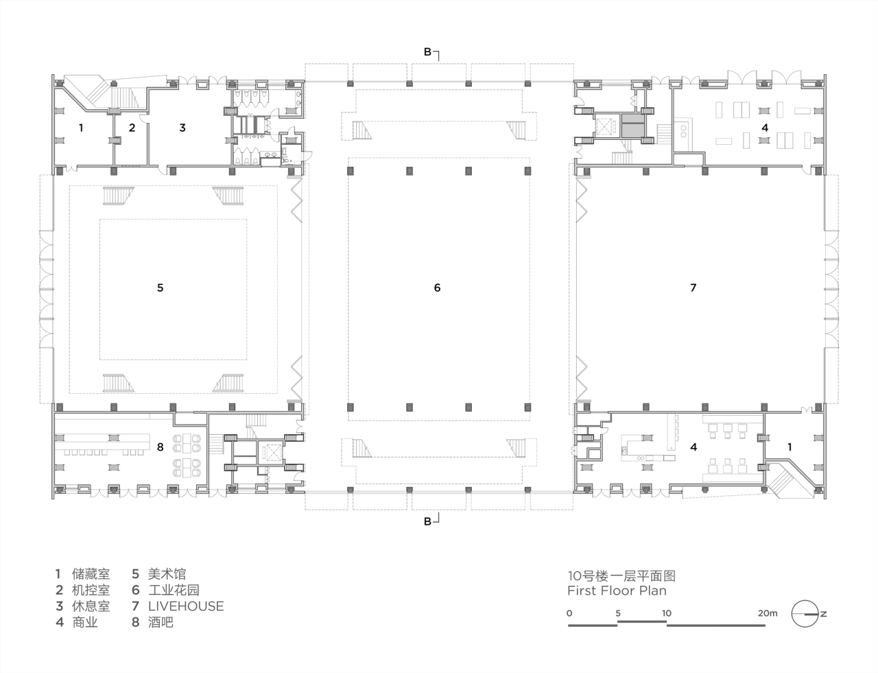
LOFT49于2018年底启动了一系列更新、拆除和提升的准备工作,在一系列风貌和历史专家的研究、甄别的基础上,基地中工业时代特征最完备,建筑留存状态较完好的6号楼和10号楼两栋被完整保留下来,周边被破坏较严重,特征性不强的其余辅助建筑则被整体拆除,为后续进一步发展预留空间。其中,一期更新工程已在用地北侧先行启动,并于2021年建成投用。本次二期的设计工作包含园区主体、两座工业遗存建筑的保护更新和近九万方提量增效的新建建筑。
△ 根据工业遗产评估报告得出拆留方案
在设计前期,设计团队从文化遗产、物质空间、风貌街坊对场地进行调研,意图彰显LOFT49的工业文脉和文创基因对城市发展的特殊意义。规划布局整体延续厂区肌理,以遗产建筑为中轴线展开,强调其中心性,仅在外围增加建筑容量。同时,保持对城市界面友好,打开边界,强化开放性,控制新建建筑的体量和尺度,形成友好可达的城市界面。
△ 区位规划改造前后对比
△ 总平面图
△ 概念规划模型
设计希望通过公共活动的向心引导与街区式的亲和开放,最大限度地将封闭厂区释放为开放的城市公共平台,办公休闲、生态生活、艺术文化等场景交融,渐进地实现城市触媒效应,激活片区。在高容积率、高度限制的要求下,仅在场地南侧角落布置两座高层建筑,与一期办公楼共同形成限定和建立形象,另外三个方向布置高低错落的多层建筑。
△ 新建建筑形体生成分析
△ ImagebyMir
建筑形体经分形处理呈风车状,有助于创造更灵活的租赁单元,以满足从初创企业到成熟公司的多样化市场需求。同时,消减了建筑体量,形成更宜人的街区尺度感。
△ 办公建筑立面生成分析
新建办公建筑的外立面采用深红色釉面陶板和陶棍作为主要材料,在符合街区整体色彩导则基础上,形成差异化的建筑表情。
△ 办公楼墙身大样
02 遗存再生:从静态空间到活态平台
10号楼是原厂区的主要生产场所,建于1987年,典型的钢排架结构大跨度厂房,内部保留具有行业开创性的先进工艺设施设备。6号楼是原厂区的腈纶袜生产车间,建于1990年,内部保留若干生产设施。在文创园时期,艺术家对两座建筑加以改造利用,主要是粉刷墙体和局部改扩窗洞口。现阶段更新的首要原则是保持真实性,在最少干预的前提下提升建筑的性能和功能。
△ 改造前10号楼
△ 改造前6号楼
△ 厂房内保留大量生产设施设备
建筑师采用整合-介入-联通的“金缮”更新策略,使两座重生的公共建筑在形式、功能、体验上形成整体感与序列性。通过梳理横跨两个时期的叠加态遗迹和原有生产设施设备,将原生产流线转换为空间流线,形成工业叙事的基础。
△ 6号楼和10号楼建筑改造形体生成分析
△ 模型照
两座建筑在首层的主动开放,加强了与园区流线的整体性,也使得原本局促的园区空间更具开放性和可达性。11.850m标高层由栈道连桥进行连接,形成以工业生产为底蕴的完整展览叙事。内部功能依据原空间布局进行旧功能的转注和新功能的置换,并对应焕新外部形象,在建筑与建筑、建筑与园区之间构建联通关系,回应街区的开放性。
△ 剖面-空间关系
△ 轴测爆炸图
10号楼的南北立面是典型的工业厂房印象,尽可能地保留窗洞位置比例、墙面材质和文创园时期的局部改建,对中部的出入口适用扩大为公共中庭;局部打开东西立面山墙,以剖面化展示内部的桁架结构和设施设备,原有桁架及两侧侧墙通过注浆及结构加固。
△ 10号楼外立面改造前后对比
△ 10号楼室内空间改造前后对比
△ 10号楼墙身大样
△ImagebyMir
原厂房的屋面状态较差,置入新的耐候板屋盖系统,与原结构脱开,应用16组格构柱支撑,垂直加建后的空中平台,也为城市中心提供了一处稀缺的空中花园和公共空间。
△ImagebyMir
10号楼内部中心大跨度、周围小单元配套的空间形式保留,水平划分为三区域对建筑尺度进行收放,适用于展览、演出等,并介入可开合的折叠门弹性承载不同空间需求的活动。中间区域为联通南北的庭院,并设有立体交通核串联屋顶地面。
△ 通过折叠门灵活分隔空间
△ 联通南北的庭院
△ImagebyMir
6号楼保留高低跨的建筑形态和立面上的窗洞位置、工业管道等特征,利用高低屋面打造活动平台,利用窗套等现代手法形成动态框景等新体验。
△ 6号楼外立面改造前后对比
△ 6号楼室内空间改造前后对比
△ImagebyMir
内部空间围绕车间内遗留的大量生产设备展开,打开部分墙体,置入耐候钢板及微水泥饰面,新与旧的体系对话碰撞,塑造全时开放的工业博物馆的全新体验。
03 业态迭代:从单维低效到多维复合
随着新型产业和生活场景的迭代,对空间的需求也在不断更迭,体现在灵活性、可变性、高度弹性、可达性、停留性等方面。结构单一和受众局限的文创园模式不再适用于LOFT49的发展,而工业文脉与文创基因的双重背景在一定程度上延展了LOFT49在工业遗存更新的内生动力。就城市发展而言,LOFT49的首要价值是开创性地完成了从“制造”到“创造”的产业转变。
△ImagebyMir
为了应对这一变革,设计以适应性的平面设计和多元化的业态前置,结合运营方的空间需求,以及新时代都市人群的空间使用特点,赋予园区在物理空间上更高的灵活性、可变性和多维扩展性,以容纳不同规模和类型的业态。同时,在业态上不再局限于传统的办公空间,还融入了livehouse、美术馆、餐饮、酒吧等多元文化和娱乐服务业态,从而为周边居住和商务氛围浓厚的街区注入L-W-P(生活+工作+娱乐)的新元素。
△ 功能置换
△ 剖面-构造细部
△Rendering by Mir
在未来,LOFT49不仅是全时开放的工业博物馆,也是展览、演出、秀场、市集等各类城市活动的集聚地。这将为园区内工作人员和外来访客提供机会,在同一地点尽情享受不同文化和娱乐体验。另一方面,LOFT49自由开放的氛围将为艺术家提供回归和创作机会,吸引多元产业自发集聚,以充满活力的新型混合街区,塑造产业地标,迎来“共造”的新时代。
△ImagebyMir
04 结语
LOFT49,作为杭州市中心最重要的工业遗存更新项目之一,备受多方瞩目和期待。从前期的遗产评估,运营策划论证,到城市设计方案推演,工业遗存更新方案的最终确认,经由社会各方专家的多轮审议论证,历时多年。这一项目是line+“城市金缮”计划的开篇之作,期望通过活化工业空间,来留存城市记忆,并将建筑视为激活城市这一复杂有机生态系统的工具和触媒,以期焕发城市的新生。
△ 项目在建中,预计于2025年建成开放
△ 施工现场
项目图纸
项目信息
项目名称:杭州LOFT49产业遗存更新
设计单位:line+建筑事务所
主持建筑师/项目主创:朱培栋
设计团队:包望韬、高科、李镇宇、梁仕秋、史心怡、王嘉琪、杨霄御、周文煜(建筑);金煜庭、范笑笑、何之怡(室内)
业主:杭州蓝孔雀文化创意有限公司
合作设计院:中外建华诚工程技术集团有限公司浙江分公司
景观设计:浙江安道设计股份有限公司
机电顾问:杭州易咨建筑工程技术有限公司
项目位置:浙江,杭州
建筑面积:95901.45平方米
设计周期:2022/5-2022/12
建设周期:2022/12-至今
结构:钢结构、钢筋混凝土结构
材料:釉面陶板、耐候钢板、铝板/金属板、玻璃
* 文中图片为设计阶段效果表现,最终以实际建成效果为准。

BIM建筑网
























































