项目是对成都二环路沿线一栋房屋的顶层进行改造,该房屋位于一座2004年开发的居住小区内。进入新千年,房地产市场狂飙突进的态势还在襁褓之中,房产开发的套路还未定型,标准化流水线模式还未固化为通用法则,中小型开发商当中的个别甚至存有理想主义情节,造就的产品呈现出后来20年少见的丰富姿态,比如成都府南河畔的“上河城”就是其中一例,2003年开发的楼盘,多层住宅将底层架空,留出公共空间,住区里还设计了一个小型美术馆。本项目所在小区也是这个时期的此类特殊产物。
第一次进入项目所在小区,有一种不真实的观感,建筑和景观并非我们常见的住宅小区范式。很多处空间、节点的设计不是以迎合标准化和既定规范条例而为,也非以效率优先为原则,单元从户型到外立面设计没有千篇一律的无感复制,整个小区因为差异化产生的疏离感显得别致清新,因为没有作势的精致显得蓬勃生机。项目的委托方是一个三口之家,男主人从事广告策划工作,同时也是一位独立艺术家和公益践行者。他们从北京回到成都,在选择居所的时候看到了这套房子,被它奇葩的户型以及非标形态下的可能性所打动,邀请我们一起打造这个顶层生活居所。设计主要从生存空间、居住氛围、生活方式三个方面展开思考和推敲。
生存空间设计通过对原始房屋平面和竖向的拓展,创造出更加有效的生存空间。城市更新的话题主要集中在公共性较强的老旧商业体,或是更具传播性的老旧厂房上,大量住宅成为被忽视的物业。我们常见的住宅改造多为以风貌为主的沿街立面改造,俗称“穿衣戴帽”,呈现出干净、整齐划一的建筑外观,同时也带来一些副作用:建筑外立面乃至街区底商招牌的机械统一,单调乏味,丧失多元化带来的城市活力;一些案例采用统一封闭阳台的办法来减少可能出现的“视觉污染”,居民丧失了阳台晾衣、晒肠、吹风打望的生存活力;风貌改造着眼城市视角,居住建筑视为被看的风景,忽略了居住者的切身感受,形式上的改头换面,并未对居住者实用的生存环境产生实质性改善。
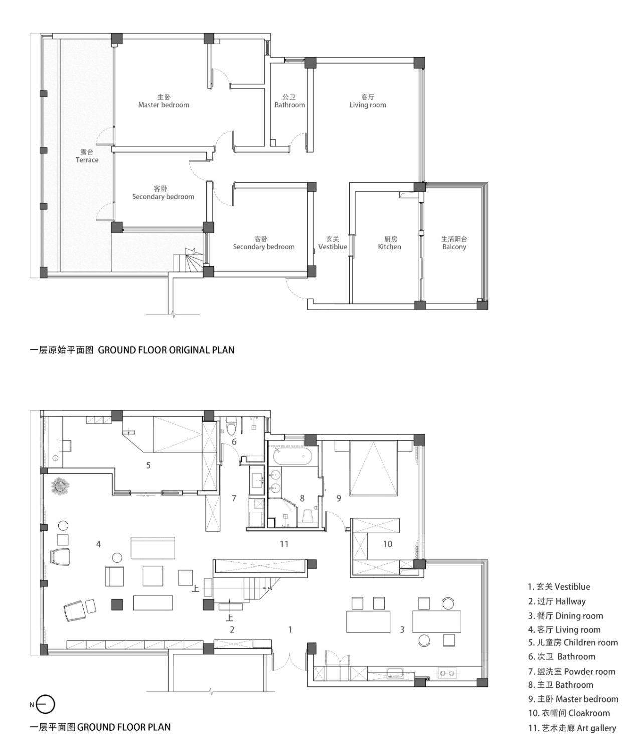
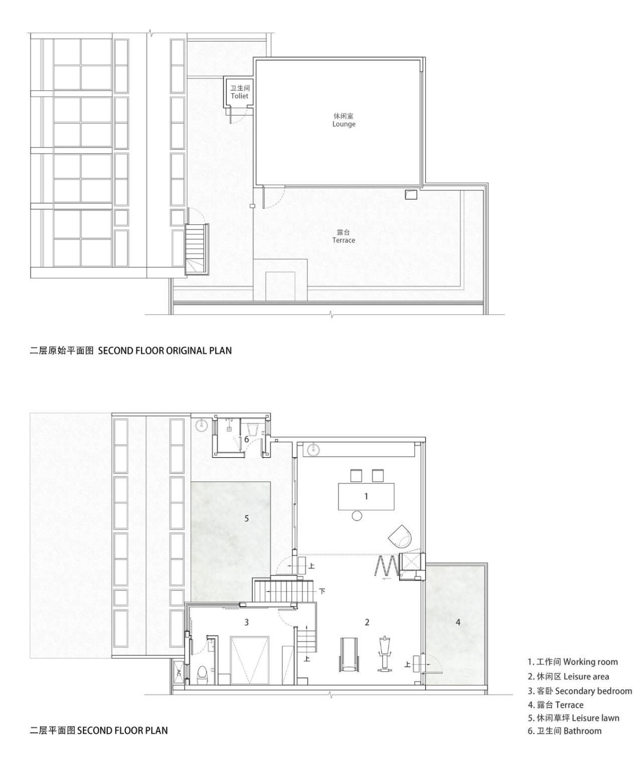
在住宅类型项目的改造中我们有一个质朴的观点:尽量扩充使用面积,更大、更有效的活动面积是承载理想生活的基础。设计在结构安全、水电管网及点位可调整、邻里关系和谐等基本条件允许的前提下,尽力扩大空间的使用范围,优化其使用效率:封闭阳台——将原有易脏污、不易清洁的阳台封闭,扩大起居活动的使用范围;楼板打拆——拆除局部屋面楼板,设计室内楼梯贯通上下楼层,提高上层空间可达的便捷性,从而提升上层空间的使用效率;板房改扩建——对原有屋顶板房进行改扩建,形成更可靠的顶层环境,以屋顶花园代替下层被封闭的阳台功能,提高屋顶空间的使用效率。
居住氛围设计通过对原始房屋材质的梳理,创造出轻松的居住氛围。空间色调以黑、白、灰加木色为主导,木色部分为必要的固定家具、柜体、房门和新建的轻质墙体;灰色部分为水泥地面、裸露的原始建筑梁柱构件;白色部分为天花吊顶、墙面和部分固定柜体;黑色部分以楼梯、扶手、入户门套等细部构件为主。清晰的材质逻辑,从梁、柱到楼板、墙体到轻质墙、柜再到局部构件,形成一套自然轻松的视觉系统。
生活方式设计通过对原始房屋使用动线的重塑,创造出有趣的生活方式。项目原有的固化居室概念无法满足主人对生活方式的要求,他们希望拥有一个结合休憩、社交、活动、工作、娱乐的综合性空间。设计重新定义了原始房屋各部分的使用及动线关系,创造出更加流动、开放、宽敞、个性的居住场所,以此承载多元复义的生活方式。厨房和生活阳台打通形成餐厨一体的通透空间;原有的客卧、主卧重组,设计成开敞的入户玄关、客厅和拥有夹层的挑高儿童房;顶层结合工作室和休闲健身房功能,设计成可分可合的灵活厅室。各个主题功能之间采用走道或楼梯串联起来,成为气韵贯穿的整体室内环境,为丰富的室内活动提供了多重可能性。
项目跨越了前后5年的建设时间,在这个相对较长的实施过程中并未产生过多的设计调整,着眼于生存空间、居住氛围、生活方式等基本问题的设计,能够承载时间的洗礼,能够经得起生活的考验。
项目图纸
△一层改造前后平面图
△二层改造前后平面图
△爆炸图
项目信息
建筑师:凡筑设计
面积:274m²
项目年份:2022
摄影师:孙海霆
主创建筑师:钟梓洵
设计团队:李玲、薛杰元
施工方:成都机础建设工程有限公司
地点:成都

BIM建筑网























