在我国城市发展逐渐进入到精细化的新时期下,建筑的设计、建设、使用三个环节的融会贯通是提升建筑品质的关键源头。如何在一线实践工作中去落实相关要求,也成为了设计团队所面临的主要挑战。
本次项目为西安高新一中高中部校区,位于西安高新区腹地,用地面积约45.6亩,东临唐延路,南临科技三路。现状由三栋教学楼,一栋宿舍楼组成。随着城市核心区域的快速发展,以及国家新高考改革背景下对办学条件的更高需求,高新一中高中部面临着校内各类教学空间不足,校外交通拥堵等多重压力,原有校园亟需进行更新改造。
从城市和教育两个维度的梳理之后,项目以“书山绿岛,拾级而上”为概念目标并明确了两个建设原则——“校社共享”和“立体化”。在此基础上,本项目设计团队与校方、政府相关部门、建设单位协同研判,形成了以下三个项目定案策略:
1.扩大规模,集约布局,立足城市区域整体协调2.校社共享,立体功能,解决校园内外困境问题3.简约现代,为时创新,引领城市风貌新景新像
本项目伊始于2021年8月,历经两年的设计建设期,于2023年8月底正式交付。项目名称——西安高新第一中学(高中部)改扩建暨社会共享停车场建设项目充分体现了前期策划中不同维度的定案。
项目总建筑面积78549.31㎡,地上总建筑面积49886.68㎡(其中计容面积48831.17㎡),地下总建筑面积28662.63㎡,容积率1.61。项目原建筑保留原主教学楼(博学楼),其余辅助建筑予以更新重建。
新建建筑包含综合教学楼(含宿舍)、架空操场(含架空下体育馆和报告厅)、下沉庭院及庭院周边教学辅助空间、地下2层停车区和室外交通连廊。设计团队从城市、校园、造型、功能、成本的建设全程中赋予相关理念和管控措施,保证了项目的完整落地。
项目图纸
△总平面图
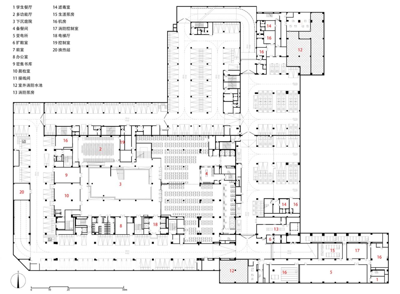
△负一层平面图
△操场一层平面图
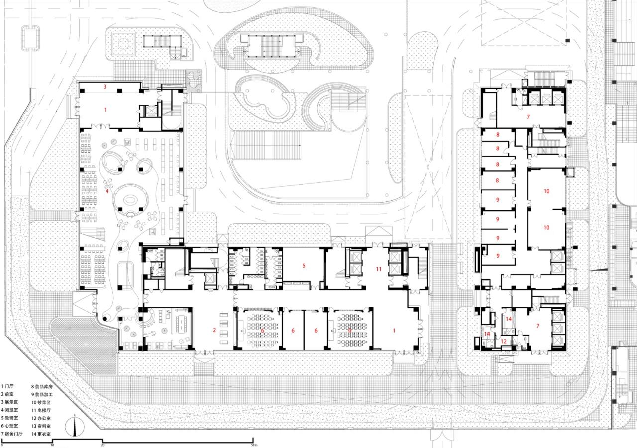
△综合楼一层平面图
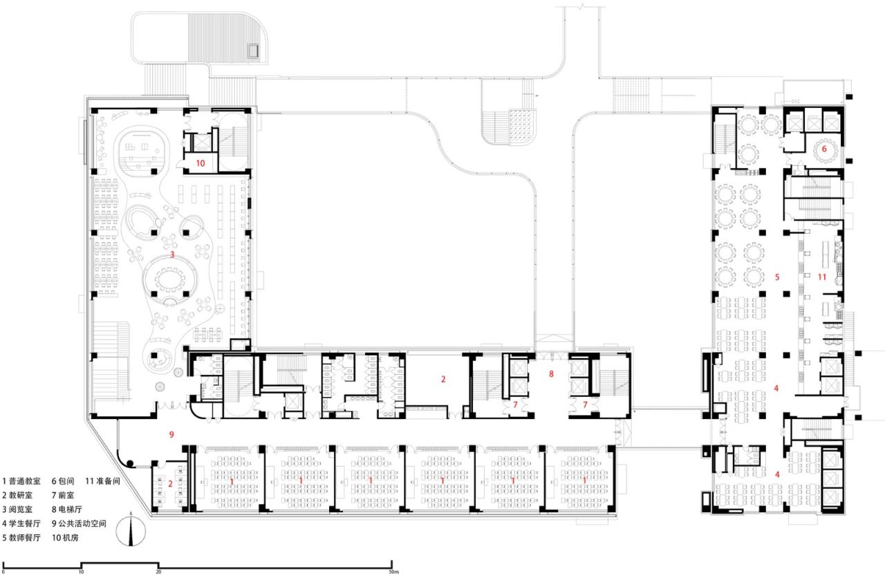
△综合楼二层平面图
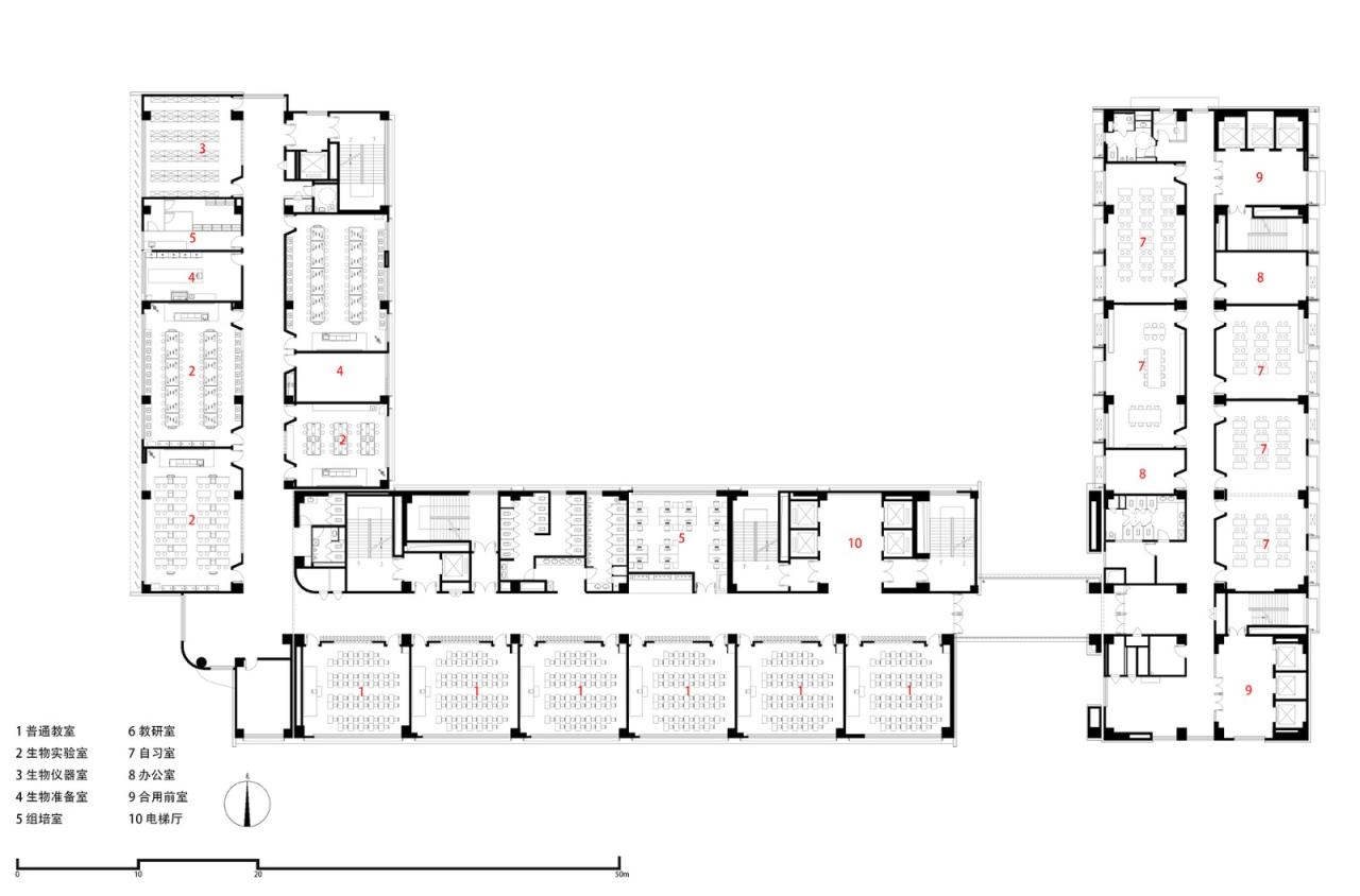
△综合楼四层平面图
△剖面图
△立面图
△立面图
△细部大样图
项目信息
建筑师:中国建筑西北设计研究院 屈培青工作室
面积:78500m²
项目年份:2022
摄影师:存在建筑-建筑摄影,张晓明摄像团队,奥格见造品牌宣传组,里昂摄影工作室
厂家: 三棵树,沃佳新材料,雍科
主创建筑师:屈培青、王琦、白雪
设计团队:中国建筑西北设计研究院有限公司 屈培青工作室
建筑设计:王琦、王一乐、白雪、高伟、张雪蕾、谢岩鹏、刘寒露、黄雅慧、程子婧
结构设计:潘映兵、桂鹤阳、刘伟、姚聪琳、马林、刘立才
给排水设计:姜令军、薛国辉、陈文捷
电气设计:李士伟 王淼 张凤
暖通设计:陈超、李欣雨、魏金焘
智能化设计:聂诚飞、赵瑾、李小雪
景观设计:同济大学建筑设计研究院(集团)有限公司
使用方:西安高新第一中学
建设单位:西安高新控股有限公司
代建单位:西安高新区基础设施配套建设开发有限责任公司
施工方:陕西建工第五建设集团有限公司十二分公司
室内设计团队:陕西奥格见造建筑设计工程有限公司
地点:西安

BIM建筑网




















































