随着当下教育改革创新的飞速发展,校园对教育硬件及使用空间的要求也随之迅速提高,许多老旧校园甚至不少建成时间不久的新校园开始难以满足新标准要求。受限于场地现状条件的特殊性,加上深圳学校项目面临学位紧缺与用地不足的双重压力,集约高效、弹性复合、开放共享等策略,成为校园改扩建项目设计考虑的关键。
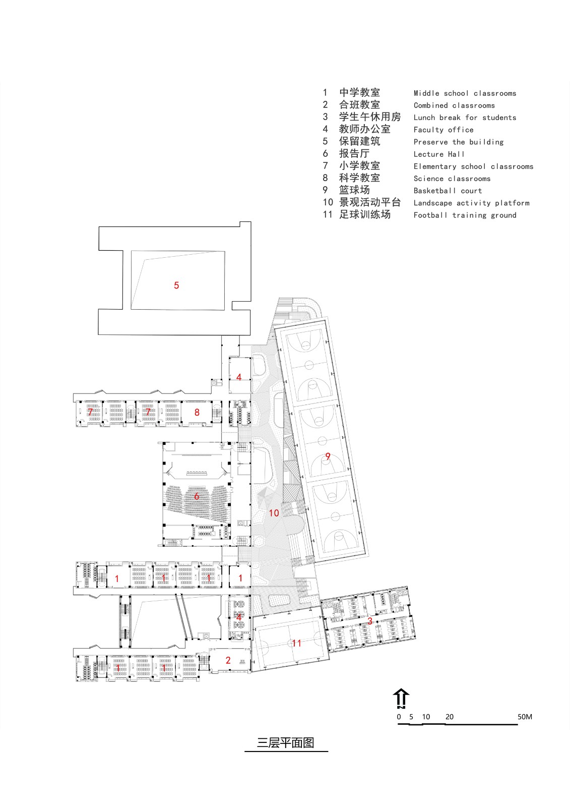
项目概况本项目位于深圳市坪山区碧沙北路与同裕路交汇处东南侧,属汤坑小学扩建工程。项目保留场地内原有教学楼、体育馆和田径场,拆除一栋实验楼和一栋宿舍楼,将29班小学扩建成为60班九年一贯制学校。校园用地面积37710.4 ㎡,可扩建用地面积约2万㎡,总建筑面积为71223.89㎡,其中扩建总建筑面积为6.2万㎡,扩建内容包括中小学教学楼、综合楼、立体活动平台、地下停车库、午休宿舍楼等。
十字共享轴:延续原有校园脉络原校园在拆除部分破旧危楼建筑后,保留的建筑在红线内呈对角布局,且操场位置保留不变,导致可扩建用地不规则,扩建用地容积率高达3.0。原校园规划分别在场地北侧和西侧道路开设出入口,有着较清晰的十字形的校园脉络关系,因此扩建建筑延续此脉络结构,主体教学楼亦延续原教学楼合院式布局,通过建筑空间语言营造十字共享主轴,形成中小学部分区、功能立体复合的特色校园空间。
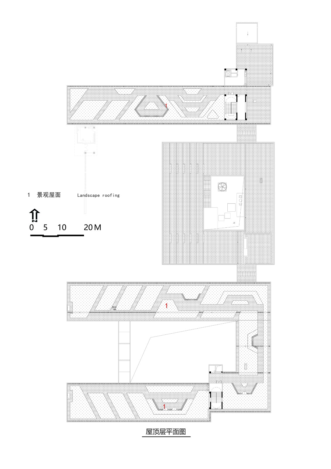
活力长街:多维运动景观轴十字共享主轴的南北长轴以北侧原校园主入口为起点,打造一条贯穿校园的活力运动长街,紧密整合新老建筑,串联小学部与初中部、教学区与运动生活区之间的功能互动与公共交流活动,构成校园非正式教学的共享核心。活力长街由首层架空活动层、地下游泳馆、二层景观平台、面向操场的千人共享看台、三层的屋面篮球场、足球训练场组成,在不同标高复合利用有限用地,为学生创造丰富的活动场所,形成一条校园多维运动景观轴线。
交互中心:垂直看台通过植入一个强有力的千人共享垂直看台,活力长街紧密联系起新旧建筑和运动空间,成为校园学生活动交流的中心和空间地标。为适应深圳地域气候,垂直看台上设置了无风雨遮阳的运动屋面,增加了三片屋面篮球场,并为操场和教学区提供全天候活动休憩空间,同时也满足了新校园扩班后校运会集会使用需求。其多标高联通首层、二层、三层的架空和活动场地,方便学生早操的快速疏散,同时也是校园各分区的转场中枢。
仪式通廊:社区共享文化轴项目在西侧道路开设全新的校园主入口,通过入口广场的渗透,以图书综合楼为核心,形成体现校园文化的仪式通廊,这便是十字共享主轴的东西轴线,它结合了公共空间社区共享,来实现校园与社区的互动与资源整合,形成一条面向社区的共享文化轴线。
考虑学校图书馆往往利用率低、藏书比较单一,学校引入坪山图书馆共建汤坑社区共享图书馆,在节假日面向社会公众开放。图书馆位于综合楼1-2层,包含学生阅读区、老师阅读区及对外成人阅览区等。馆内提供多样化阅读空间,同时可以开展阅读公共课堂、班级小组讨论等社交学习活动,其中,中庭空间为学生创造了一个开放且弹性的学习与交流场景,且作为社区共享图书馆,中庭也成了社区演讲、论坛等活动的会客厅。多功能厅位于综合楼三层,也纳入社区图书馆的范围,可容纳约750座,为新校园提供了一个校级集会场所。同时首层架空层内设置的年级阶梯教室亦可满足教师和年级组小范围集会的需求。综合楼顶层的行政办公区围绕一个景观内院展开,为老师们提供舒适的办公环境。
立面推敲:折扇山水综合楼西立面采用折型穿孔板,沿入口广场展开,通过不同大小、疏密的孔洞呈现出一幅面向社区的折扇山水画,体现校园的文化性和标志性。孔洞尺寸和间距考虑了广场尺度,对不同来向的视线进行分析,经过设计推敲后,力求达到适宜、美观的视觉效果。
结语本项目在充分尊重原有校园规划脉络的基础上,以十字共享轴空间重塑和整合校园,提升了新校园空间的功能性、丰富性和趣味性,探索校园公共空间与社区资源开放共融的可能,再次激发了老校园的活力。
项目图纸
△剖透视图
△细部结构大样图
△分析图
△分析图
项目信息
建筑师:申都设计
面积:71224m²
项目年份:2022
摄影师:方舟
主创建筑师:陈卓、陈木亮
方案团队:王宇、陈木亮、李涛、王春培、何玲、张亚文、潘勋龙、徐文灏、林艳
施工图负责人:陈国栋
施工图团队:赵亚青、陈静儿、沈钰子、刘宇、杨焰超、万励昆、刘文涛、尚双双、杜建伟、蒋钦发
委托方:深圳市坪山区建筑工务署
代建单位:深圳市天健地产集团有限公司
地点:深圳

BIM建筑网








































