深圳市第二幼儿园是一所具有历史意义的幼儿园,它随深圳特区的发展一路共同茁壮成长。校园位于通心岭社区中央,荔枝公园西畔,远离闹市,绿树成荫。校园里处处充满温馨浪漫的艺术气息,走廊上的美术画廊,花园中的艺术雕塑……几乎每一个角落,均由老师与孩子们精心布置,构成了一座以博物馆为主题的成长乐园。建筑师一贯秉持“围绕孩子们而设计”的设计信念。在紧张有限的用地内,以小见大,化繁为简,通过一系列创新设计手法,为师生们营造一座趣味盎然的成长乐园,自然环绕的森林校园,光影流动的艺术花园,绿色低碳的健康家园。纵观本项目从设计到建造的全过程,市工务署管理团队、幼儿园园方团队、施工单位充分尊重建筑师的原创设计,以科学严谨的协作精神,同心协力在短短两年半的时间里完成了这一精品工程。
趣味盎然的成长乐园通过全面分析用地周边的景观资源,梳理出不同方向的景观轴线,一方面最小化受住宅与道路的不利影响,一方面最大化争取园区由内而外的视觉通廊。建筑师采用自然有机的建筑布局,如同花蕾缓缓绽放,花瓣向四周生长伸展,形成自由而通透的流动空间,容纳面向未来的无限可能。
在校园的中央,新建筑与老校舍共同围合出一个椭圆形的大院子,可以举办各种大型的公共活动。空间连接体系让整个校园融为一体,它由三种形式组成:首层无风雨遮阳空间的椭圆环廊,二层连接新老校舍的空中连廊,以及围绕着每间教室的空中活动平台,相互交织连通。孩子们从入园那一刻起就可以在校园内自由自在的穿行,免受日晒雨淋的干扰。
自然环绕的森林校园不同于传统的围墙式边界,建筑师更愿意把周围郁郁葱葱、高低起伏的大树作为园区的外围背景。按照儿童平均视线高度,通过空间上的精密设计,让孩子们在建筑中的各个角度都可以轻易的望向自然,在心理感受上形成一种无边界的大校园界面。每一间教室都环绕在自然之中。在教室里和空中平台上,是举目可见的天空、阳光,白云、树影、小鸟……走出教室就是自然。在首层的共享后院,有随处可碰的自然,捉迷藏,堆沙子,建城堡,种花草,捡树叶,搭帐篷……各种活动应有尽有。建筑的表皮采用暖白色凸凹颗粒涂料,即使在烈日下也会呈现淡淡的柔和光泽,如同冰激凌的质感一样清凉怡人。
光影流动的艺术花园对于孩子们而言,这里不仅是学习知识的课堂,还是充满各种可能的博物馆小镇,让孩子们充满好奇心的探索,激励他们有勇气的尝试。建筑师打破传统的线性布局,有意而为之设计了不太规则的流动空间。晴天,阳光开启变幻莫测的光影游戏;雨天,盒子们散发出神秘的灯光,成为一座有吸引力的光之迷宫。园区里还有很多没有名字的空间,等着孩子和老师们自己定义。这些留白的墙面和地板,在未来的日子里会成为孩子们和老师们自由创作的背景画布和主题展厅,以艺术的方式承载和沉淀成长的记忆。
绿色低碳的健康家园整组建筑的布局遵循生态森林般的空间原则,即充足的自然光照,流畅的通风效果和与最低标准的低碳排放。无论是艳阳天,阴雨天还是回南天,保证建筑在夏天凉爽而干燥,冬天温暖而湿润。各个教室单元盒子之间留有大大小小的空隙,将阳光自然的引入室内。同时,依照精确的光照模拟计算而摆放的特定角度,让每个盒子都为旁边的教室提供有效的遮阳作用。这些实虚结合的空间非常有利于建筑的自然通风。
项目图纸
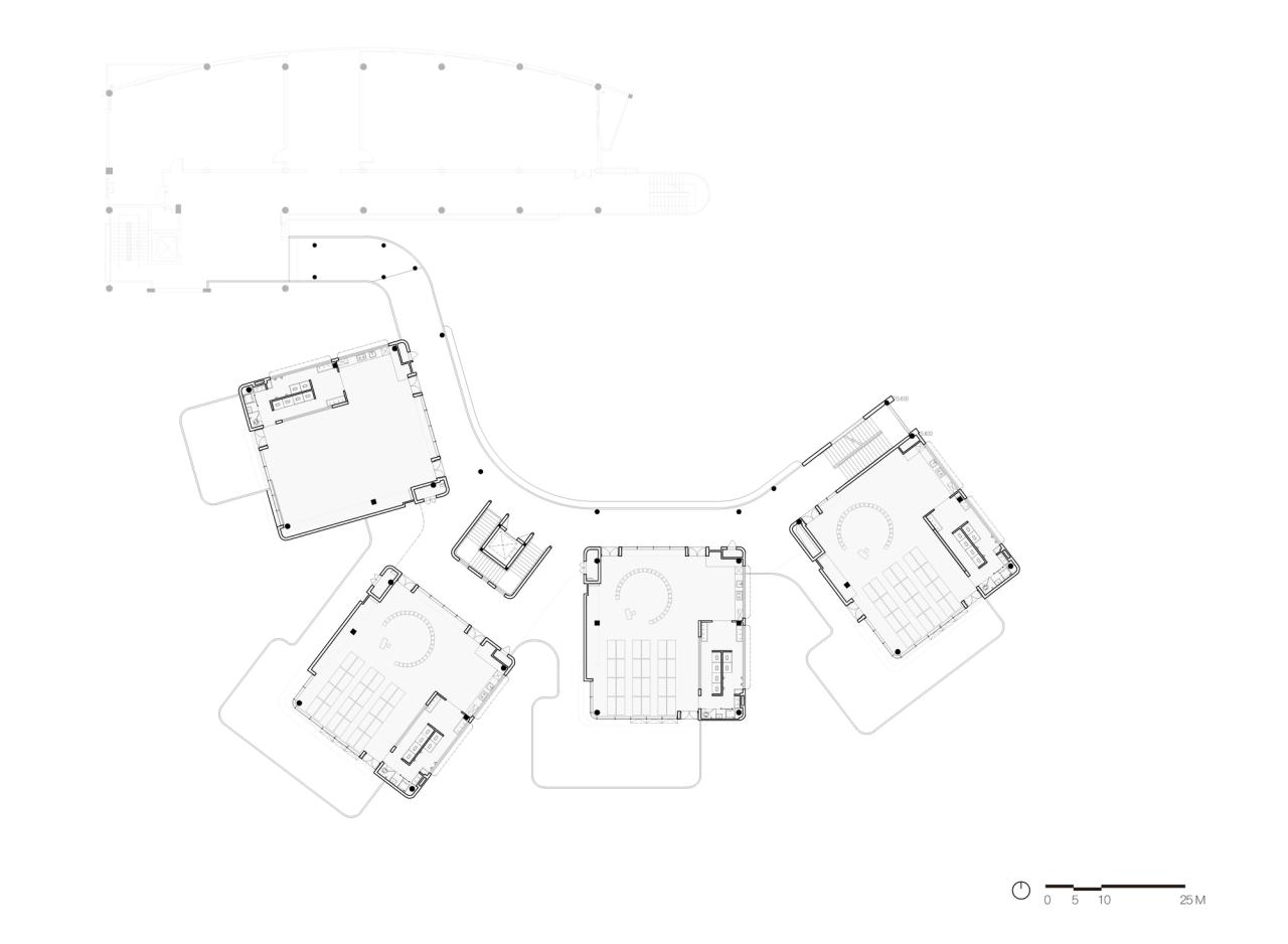
△一层平面图
△二层平面图
△三层平面图
项目信息
建筑师:徐昀超建筑工作室
面积:4515m²
项目年份:2021
摄影师:Schran Image
主创建筑师:徐昀超
设计团队:刘宏瑞,齐嘉川,陈健璇,高侃,林宇腾(Elvis Lin),石扬,张圣洁,钱坤,陈路路,李天雄
施工方:上海宝冶
委托方:深圳市建筑工务署,深圳市第二幼儿园
灯光设计:大观照明
地点:深圳

BIM建筑网



































