项目位于绍兴市的书圣故里。包括:原蔡元培广场的整治与提升、孑民电影院的改造与翻新、和孑民图书馆的新建。
△2018年本项目建设前周边文化遗产节点分析
△2023本项目建成后周边道路及建筑节点分析
书圣故里具有古城典型的文脉和风貌特征,随着时间的推进和流逝,累积演化在了城市的肌理和建筑的形式表现中,既有着良性的链接又有消极的断裂。我们从动态发展的历史语境中,辩证对待建址内的“孑民电影院”,“局弄”,“绍兴市第五医院”,“蔡元培广场”,以及紧邻的“蔡元培故居”,“解放路”——这一串没有被遗忘、渐趋混杂却客观存在着的真实的现在或过去。通过这个城市重要节点的更新与改造,希望让这些不同空间却相互关联的历史人物和事件,不同年代却又违和地存在的建筑空间与场所,在植入孑民图书馆的新功能的同时,协同全国文物保护单位“蔡元培故居”,共同承载多重开放、与古城共融共生的公共文化场所的责任。
△绍兴各个时期老地图,从左到右:南宋时期绍兴府城图书圣故里片、光绪时期书圣故里地图、民国时期1939年书圣故里地图
△书圣故里卫星图,从左到右:1968年书圣故里卫星图、2018年书圣故里卫星图
设计对原蔡元培广场、孓民电影院和已拆除的第五医院等区域,通过改造、翻建和新建等方式,整体呈现一个全新的蔡元培广场、孓民剧院和孑民图书馆等城市公共文化场所,以弘扬蔡元培思想精神,延续并增强该历史街区的城市文脉和风貌特征,从而达到“我们要做活的建筑,既应有“纯粹之美育,所以陶养吾人之感情”,又该有相应的时代活力,且能够“兼收并蓄”,协调周围的环境和多种社会功能”的项目建设初衷,完成建筑师对该项目的场所意义、现代性表达、和历史的延续、并存与再生所设立的方向和目标。
△2019年7月的建设项目设计方案草图©UAD ACRC
△2023年本项目建设后的的航拍总图©赵强
设计保留了原蔡元培广场的纪念性和市民集会功能、原广场的“L”型布局、原广场南侧的木结构长廊,为了广场更好的开放性,微调了蔡元培先生铜像位置,并作整合翻新,留住市民们广场上、长廊下闲谈休憩的记忆场景。
△ 改造后蔡元培广场入口©赵强
△改造后蔡元培广场供市民活动的台阶©赵强
项目的核心,是拆除原来极其违和的第五医院,新建孑民图书馆。我们首先保留了局弄,以建立北侧局弄与南侧广场的贯通,确保书圣故里古城肌理的延续和完整。并试图让图书馆南侧横向与蔡元培故居产生关联,由此,确立了孑民图书馆的准确建址,并思考如何让其与东侧的故居相邻,与西侧的孑民电影院为伍。这两条通道特意采用了老石板作为铺装,暗示古城肌理的延申和故里脉络的相对原真性。
△保留“学界泰斗、人世楷模”照壁©赵强
△南北第一道轴线©赵强
△游客中心主入口©赵强
改造后的孑民电影院已重新被称为“孑民剧院”,以回应50年代初建设之初的“新民戏院”。整个剧院的改造,保留了原建筑空间及结构框架,作了室内功能的更新提升和外立面重塑,以期继续保留演出与放映功能,让“新民戏院”的历史乃至古城百姓的青春记忆得以延续。
△保留的局弄©赵强
△改造后的孑民剧院©赵强
△孑民剧院保留的柱廊空间©赵强
△孑民图书馆与蔡元培故居©赵强
新建的孑民图书馆,由于限高控制,通过层高控制和合理分配,分别在地下设置了蔡元培生平事迹展,地上安排了两层图书馆及中央通高的元培讲堂,以及特别设立的屋顶观光休闲平台,从平台眺望四周,是书圣故里的故里群像和远处城市广场的大善塔.
△ 孑民图书馆西侧水景©赵强
图书馆西侧与孑民剧院以局弄相隔,东侧与故居以一水院相邻,彼此对望。水院的一侧是被完整呈现的优美的蔡元培故居山墙轮廓线,代表了书圣故里明清台门风采的传统意蕴;另一侧则是演绎了肌理与映射的图书馆现代盒子,暗红色的UHPC板,图样采撷自故里的漏窗,色彩是传统的木红色。两者通过新建建筑一层外墙通长的高反射单向镜面玻璃,淋漓尽致地讲述了新与旧、过去与现在的对话与碰撞。
△孑民图书馆室内中庭©赵强
△孑民图书馆阅览区©赵强
水院的南侧有一观景开口,远处是千年蕺山和文笔塔,开口处设有一平台,左侧是演绎了暗红色漏窗却极具现代的图书馆盒子,右侧是故居经典的山墙轮廓线。近处的浅水面,将所有的一切映入其中。
△孑民图书馆面向蔡元培故居的东立面©赵强
△蔡元培故居西立面©赵强
一片墙,一棵树,一处石,一面镜子,细述着传统与现代,感动着心绪和灵魂。能说的,自不必说,不能说的,就更不能说,那种禅机,无法抹去。
△局弄©赵强
△局弄镜中一隅©赵强
△镜中孑民图书馆©赵强
△孑民图书馆x孑民剧院©赵强
△笔飞弄口©赵强
△孑民图书馆西立面一角©赵强
△通往地下展厅的清水混凝土楼梯©赵强
这个项目的设计,以“诠释传统,重构当下”的建构理念与思想留住了一个真实的过去,建立一个真实的不同意义整合的现在。
项目图纸
△总平面图
△孑民图书馆地下一层平面图
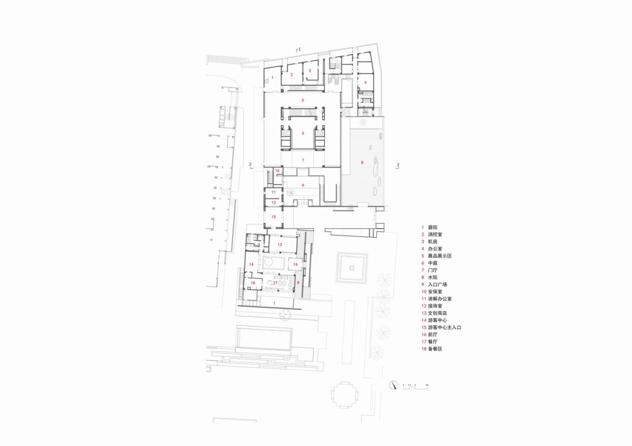
△孑民图书馆一层平面图
△孑民图书馆二层平面图
△孑民图书馆顶层平面图
△孑民图书馆1-1剖面图
△孑民图书馆2-2剖面图
△孑民图书馆南立面图
△孑民图书馆西立面图
△孑民图书馆东立面图
△游客中心东立面图
△游客中心西立面图
△孑民剧院一层平面图
△孑民剧院二层平面图
△孑民剧院设备层平面图
△孑民剧院屋顶层平面图
△孑民剧院1-1剖面图
△孑民剧院2-2剖面图
△孑民剧院东立面图
△孑民剧院南立面图
△孑民图书馆墙身大样图
△项目整体爆炸图
项目信息
项目名称:蔡元培广场及孑民图书馆
项目类型:文化建筑、改造建筑、城市更新
建筑事务所:浙江大学建筑设计研究院
公司所在地:浙江,杭州
项目地址: 浙江省绍兴市越城区解放北路
建成状态:建成
设计时间(起迄年月):2019.4-2019.10
建设时间(起迄年月):2019.12-2023.5
用地面积(平方米): 12107.0平方米
建筑面积(平方米): 14089.26平方米
摄影师: 赵强
项目参与者
主创建筑师: 胡慧峰
建筑:章晨帆 朱金运 王钰萱
结构:郑晓清 吴夏文 吕君锋 陈旭 张杰 丁子文
给排水:易家松 蔡昂
暖通:潘大红 李咏梅
电气:张薇 钱坤
智能化:李向群 杨国忠 袁骁男
照明:王小冬 赵艳秋 邢嘉仪 傅东明 冯百乐 吴旭辉
装饰:方寅 孔祥 马娟
幕墙:史炯炯 王建忠 宣赵康 苏泽奇
园林:吴维凌 王洁涛 章驰 吴敌 姚海燕 张雨晨 徐非同 顾静娴
岩土:陈赟 杨勤峰 韩嘉明
舞台:池万刚 陈涌 池佳贝
经济:褚铅波 张瑛 孙文通 张国丹
BIM设计:任伟 殳煜
EPC:房朝君 周辉阳 吴建权 贝斯伽
展陈设计:上海美术设计有限公司
委托方: 绍兴市文化旅游集团有限公司
施工方: 浙江勤业建工集团有限公司

BIM建筑网



















































