红盒子位于南京红山之麓,同为米思设计的红创PARK园区内。在红山一片绿色茂林的映托下,红盒子强烈的红色雕塑感使之与众不同。红盒子采用红色混凝土浇筑而成。“红色”回应环境,有三重含义。首先,回应年代记忆之“红色”。红创PARK前身为南京战斗机械厂,始建于上世纪50年代,历经新中国成立伊始的蓬勃发展,“红色”记忆伴随了几代人的成长,成为人们心中最美好的回忆之一。其次,回应红创PARK厂区建筑红砖之“红色”。
红盒子采用通体“红色”的清水混凝土,以木模板浇筑,宽度与红砖尺寸一致,与所在园区以红砖为主要基调的建筑群存异求同。最后,回应红山之“红色”。红山原本不叫红山,1500多年前的六朝时代,它叫“大壮观山”,陈宣帝曾在此检阅玄武湖水上练兵。民国时期的人们注意到山土泛红,发现赤铁矿,于是“大壮观山”逐渐被人们称为“红山”。1948年,“红山”已经成为正式名称,出现在《南京街道详图》中。赤铁矿主要成分为氧化铁,是红色混凝土之所为成为“红色”的主要添加剂。
建筑位于园区入口广场南侧,初见如一块红石,静卧在郁郁葱葱的红山脚下。逐步走进,人们会很快意识到将展开一段不同于日常经验的“红色”空间体验。建筑入口并不显著,像从卧石底部切开一处小角,入口曲折隐蔽其后,步入如进幽暗的红色洞穴。深处弧墙引向一扇木门,其木质感与表面的竖向波纹肌理为洞穴增添了一丝柔和。幽幽微光从洞穴顶部的圆洞渗进,木门上的圆洞也从内部透出柔光,昭示人们进入其内。从红色的幽暗中将手伸向木门的圆洞,握住竖在柔光里的黑色金属把手,推开木门,柔光倾洒,引人入胜。
红石之内宛如另一方天地。空间流动,其界面也是红色混凝土,地面是红色水磨石地砖,使红石内部的世界如完石雕琢而成,弥漫着红色的光线与空气,随着时间变幻。门厅空间两层通高,向东西两侧的公共空间流动。两个公共空间的玻璃通透,与院落内外一体。西侧空间连着红盒子中最大的院落,院内保留一颗大树,覆盖了大半个院子,寒来暑往,叶落叶生,黄绿交替,与红山上的大树不遑多让。一圈围廊绕着一片镜水面,树与天空、水波交相辉映,将红山绿意映入院中。
东侧空间南北均为院落,内外空间模糊,南侧对着一方松院,四季常青。沿着楼梯拾级而上,连廊似桥将二层的两个使用空间连接在一起,廊桥南北,大玻璃让建筑的界限消失。站在桥上,向北望去,成为园区的风景;向南望去,红山绿意映入眼帘。二层两个空间采用圆点或砖状亚克力半透材料看似随机嵌入红色混凝土墙面,光线顺之导入室内,散落在空气之中。从室内走向大露台,红山扑面而来,建筑成为景框,红山融进红盒子。
夜至,建筑向外隐隐约约透着暖光,仿佛石头内部的世界蕴含的光亮透过几道缝隙,向外挤出;又透过半透明的亚克力,形成繁星点点,融入夜空当中。红盒子做为“南京战斗机械厂”园区更新中的唯一一栋新建建筑,无论是呼应历史地名的“红色”,或是类似于工业建筑坚实内向的体量感,均表达了一种新建建筑对于场地历史和场地精神的传承。
建筑同时呈现出某种“未来感”,形成了由各种细密感受叠积而成的空间氛围。红色弥漫的空间,映入室内的外部环境,天窗的光影和透光的孔洞共同编织了一种特有的体验。这是解读场地之后对其的延续和进化,也是在厚重的历史体验中以身体感受“未来感”的另一种方式。
项目图纸
△模型图
△模型图
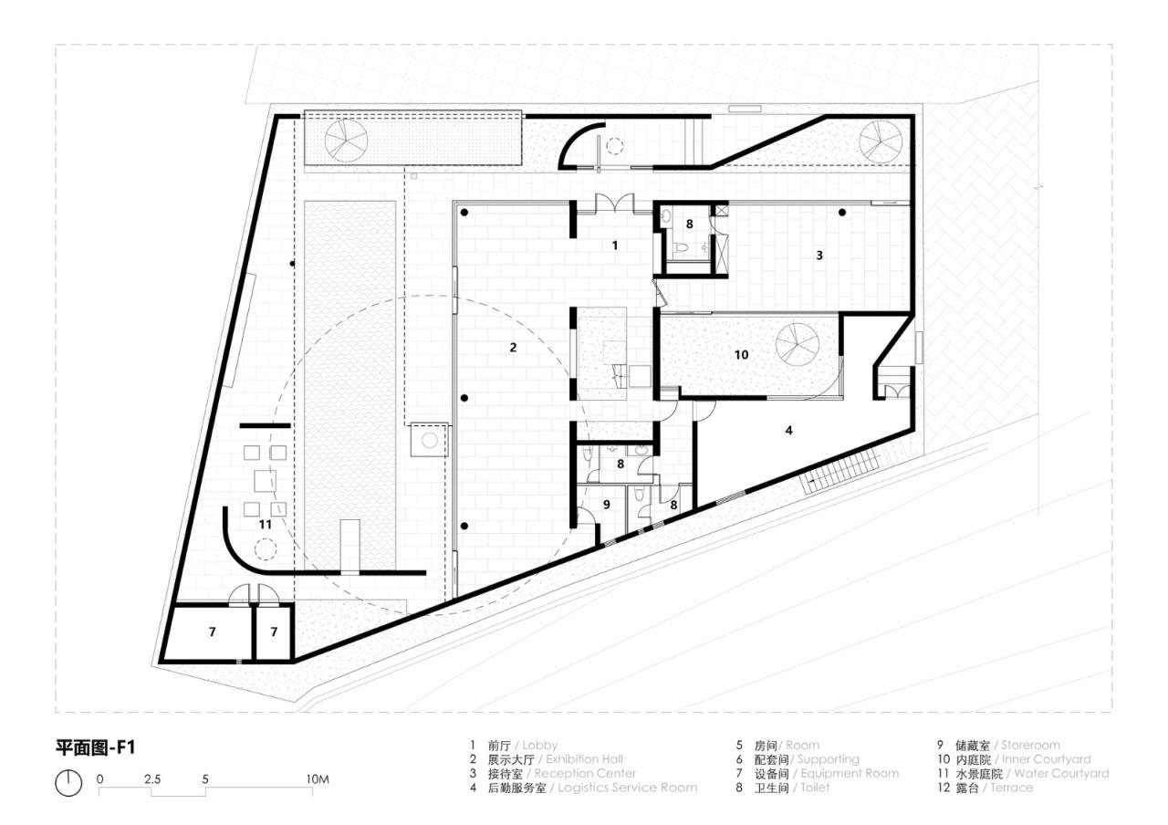
△一层平面图
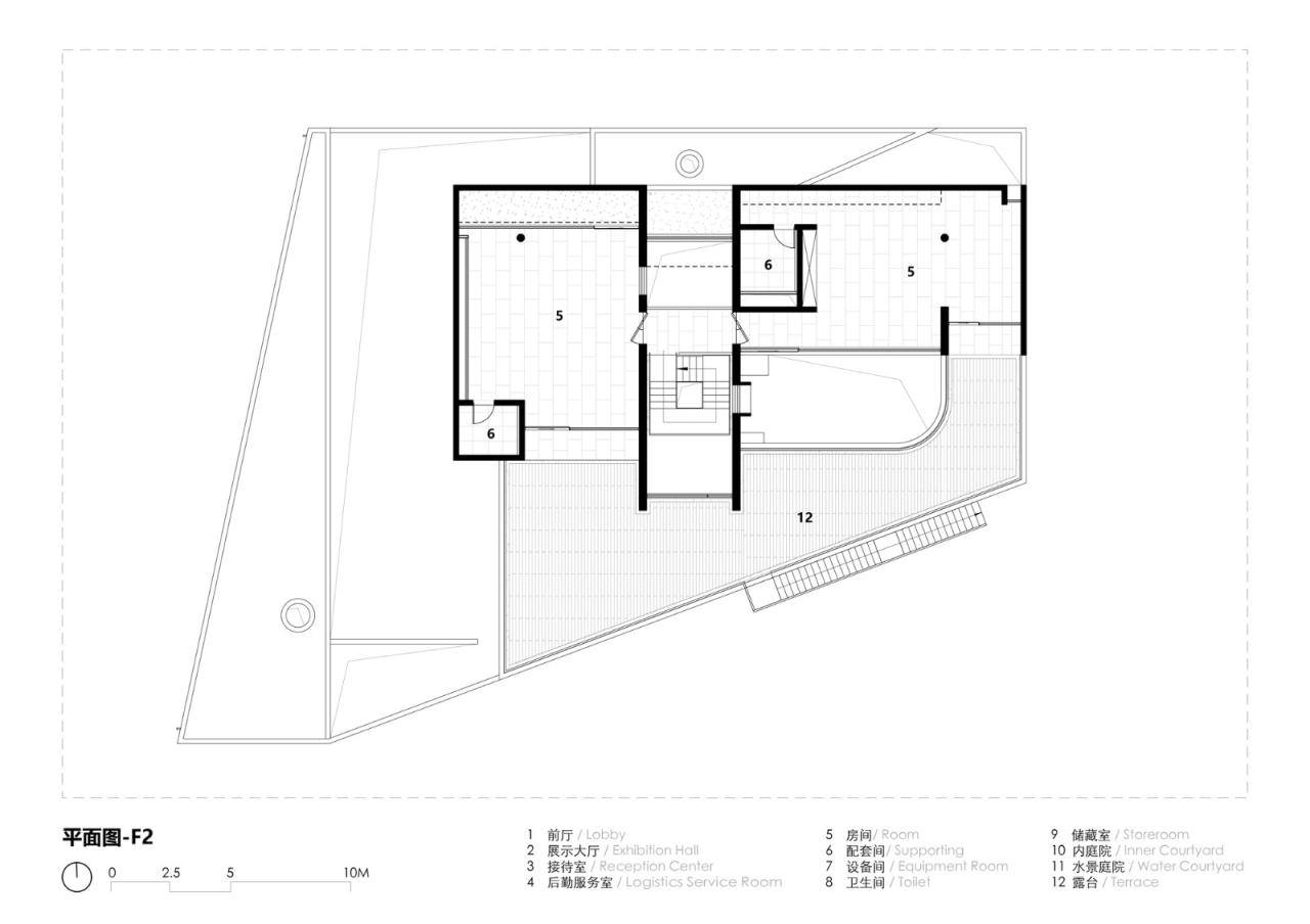
△二层平面图
△剖面图
△剖面图
△细部结构大样图
项目信息
建筑师:米思建筑
面积:700m²
项目年份:2023
摄影师:存在建筑-建筑摄影,孙海霆,吕晓斌
厂家: Betonbau,EST Building Materials Technology Co., Ltd,VBM architecture
设计团队:周苏宁、吴子夜、杨科、史倩、唐涛
门窗系统:VBM凡柏建筑系统
建筑施工图设计:南京兴华建筑设计研究院股份有限公司
景观施工图设计:南京市第二建筑设计院有限公司
建筑施工总承包/清水混凝土:倍砼堡BETONBAU 上海可建新材料科技有限公司
景观施工团队:南京恒子环境工程有限公司
结构顾问:上海源规建筑结构设计事务所
委托方:南京工程机械厂有限公司
Program:Cultural center, Exhibition center
景观设计:米思建筑
灯光顾问:麓米照明设计(上海)有限公司
地点:南京

BIM建筑网



































