“户外成为当下新的出行目的地,它提供了与城市截然不同的环境体验,而‘云海驿站’所处的山海环境无疑是加剧了这种美好的向往。我们希望通过建筑空间将这种幻想放大,进而转化为酣畅淋漓的感官知觉和身体经验。”——孟凡浩
深圳云海驿站位于三洲田森林公园核心区内,作为半山公园带的地标场景,是盐田区政府为落实“山海连城,绿美深圳”生态建设的重要基础设施。line+联合创始人、主持建筑师孟凡浩受盐田区政府委托担任该项目的主持建筑师和项目主创。
山海相望,森林环绕,在海拔380米的马峦山俯瞰日新月异的深圳,一边是日均吞吐量巨大的海港码头,一边是别有洞天的原始森林——云海驿站的特殊选址为设计的展开渲染了极其独特的氛围。功能性和标识性是设计任务书中的两大诉求,业主希望建成后能成为带动半山公园带发展的一个市民打卡点。line+以自然与城市的景观张力为锚点,以建筑空间为体验路径,触发身体知觉,将基础设施转化为独特的户外景观,触发其公共媒介性,融入社会活动。
PART.01
360度全视域折叠平台
项目选址为一处直面大鹏湾的台地,背靠三洲塘水库,360度无遮挡一览山海城实景,是马峦山绝佳的瞭望观景地。云海驿站作为公园景区的基础设施,主要设有洗手间、咖啡书吧等建筑功能。建筑设计以空间平台化和路径立体化为切入,在有限的容量中创造尽可能多的观景视角。
场地内原有三层危房建筑在倒塌后,遗留有一处基坑。考虑到快捷通达性,首先将卫生服务的功能体块布置于此,设有独立路径。而后依次将接待室、会议室、开放空间、咖啡厅、阅读书店等体块错半层布置,以Z字形立体路径贯穿体量,由坡道进入,逐渐攀升,在行为上与场地形成联系,并由此形成多层折叠的观景平台和大跨度的灰空间。
△概念草图
△生成图
△模型照
路径不仅是通道,也是户外平台和复合空间。出于人流量的考虑,我们尽可能地将步道设宽,通过设置缓坡、户外平台、大台阶缓步、玻璃露台等,创造通行、停留、观景等活动条件,在空间变奏间丰富身体知觉。
我们设想当访客在城市、码头、山海之间游走穿梭时,时空的张力亦被折叠于此,构成时空之外的超现实感。
在完整路径后对建筑的赋形,就回到了任务书中第二个要求——地标性,这也反映了基础建筑在当下的角色变化——从目的地的配套设施,变成了目的地本身。云海驿站不仅是一个可“看”的观景建筑,也是一个“被看”的景观建筑,在不同的高度、角度都会被关注。
因此,我们选用轻巧透明的现代型材,首先保证观景的通透性;对外部形体做流线型处理,形成“非日常”的曲面空间,再次强化建筑在山海环境中的视觉张力。
PART.02
异时空体验
室内设计在回应外部景观的同时,将内部空间体验导向极致的异时空感,以曲线语言、流动体块为主,沿用硬朗统一的质感材料,强调内外空间的完整性,制造强张力的空间属性,丰富刺激感官体验。
平面系统顺应建筑路径,在大跨平面的关键处置入艺术装置。三层的咖啡厅与阅读区之间的金属装置融合了书架展陈、咖啡制作等复合功能,实现区域划分,而不锈钢异形曲面与白色水磨石楼板的对比冲突,在窗外山海景观的映衬下达到赛博体验的高潮。
一层洗手间的设计同样引入了异时空的冲突感。入口处通过设置通高的异形金属装置与白色半透亚克力曲面装置墙,暗示超现实体验的序幕。内部空间围绕中央的圆形装置展开,以金属板为主要材料,注重在保障隐私的前提下创造出空间的流动感。
PART.03
结构选材
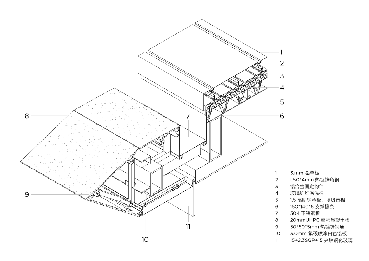
结构与材料的选择基于对施工条件和环境抗性的考虑,以及实现大跨无柱、通透纯粹、多方向悬挑的空间特征。钢结构主体、干挂幕墙体系建筑表皮均经工厂预制后现场快速安装。
3.1 钢结构主体
偏心布置的核心筒和尾部的框架结构,共同实现大跨度和多方向悬挑的观景平台,并通过结构可行性论证分析,来模拟应对山顶风压及荷载情况。
△结构可行性分析
△ 建造过程
3.2 建筑表皮
主要外墙面选用具有较好抗渗性和耐久性的UHPC材质,满足环境抗性的性能要求和多处曲线异形的形体要求。
△ 生产制作过程
在实施中,通过3D模型将UHPC面板划分为0.9m*2m以内的小尺寸,便于后续运输和安装。挂板完成安装后,通过补缝和打磨平整UHPC表面,完成面涂保护剂,沿UHPC板块边沿设置排水槽。
△ UHPC面板现场安装
△节点轴测
△节点轴测
室外吊顶的大面积平面区域采用氟碳喷涂铝单板密拼安装,预留空间隐藏排水管,与UHPC交界处脱缝自然形成滴水。核心筒外包围要求高强度、曲面无缝,选择不锈钢板外刷白色质感涂料。室外露台水磨石板预制,现场铺设。
弧线异形玻璃幕墙以钢框架副框定位,安装无立挺的夹胶玻璃,转角处使用弧线玻璃。
△高透超白夹胶玻璃
3.3 玻璃露台
四块超尺寸三寸夹胶玻璃,最大尺寸达到2.7m*4.1m,沿结构梁布置,最大程度实现通透性。
△超尺寸玻璃露台施工
3.4 室内空间
室内沿用建筑表皮的色彩质感,墙面及吊顶主要采用白色不锈钢,设备均隐藏在结构层中,出风口隐藏在金属造型与吊顶的夹缝中,水管集中布置在侧面异形墙面中。三层金属装置通过钢架龙骨定位,外覆不锈钢,现场焊接,打磨。
△三层金属装置施工
PART.04
结语
今年初,建筑仍处于收尾阶段,就已经受到了深圳市民们的关注,甚至在五一试运营期间迎来了高峰人流,新晋为深圳户外时髦打卡地。在正式运营阶段,除三楼书吧咖啡厅实行预约制外,其余空间均向公众免费开放,周末日均人流量可达两千余人,平常日均也可达千人,被市民们评选为最受欢迎的深圳新地标和最美城市看台。更有意思的是,在小红书等社交媒体中,云海驿站被称作“山海之巅的空中游轮”,在云端喝咖啡,躺平看海,甚至举行婚礼仪式,真实的空间使用状态远超建筑师的设想。
另一方面,不止于任务书所设定的“市民打卡点”,而是以云海驿站为对象展开了全民自发创作,精彩纷呈的图像和视频素材在网络平台上比比皆是,淋漓尽致地展现出深圳山海城的独特景观,更进一步回应了业主所期望的以点带面的辐射效应。
近期,云海驿站还受到了法拉利、保时捷、阿维塔、荣威等汽车品牌的青睐,选择作为其新车展示发布会的活动场地。作为艺术展示的活动空间,云海驿站再次拓展了其公共身份,成为促进文化、商业和社会交流的重要纽带。
在媒介时代,公共建筑的角色已然发生转变,而进一步促进建筑的社会意义,不仅是在形象上作为地标的呈现,成为可传播可展示的对象,更重要的是作为公共平台,云海驿站具有激发和满足任何想象的潜力。
项目图纸
△ 首层平面图
△ 二层平面图
△三层平面图
△屋顶平面图
△剖面图
项目信息
项目名称:深圳盐田云海驿站
建筑、室内、景观设计单位:line+建筑事务所
主持建筑师/项目主创:孟凡浩
项目建筑师:何雅量
设计团队:邢舒、柳超、胥昊、徐一凡、朱骁靖、李昌昊、金玲冰(实习)、魏旭贞(实习)、申涵(实习)、虞其正(实习)(建筑);祝骏、金煜庭、杨莉、张思思、吕斯琪(室内);李上阳、金剑波、饶非儿、王昕宇(景观)
驻场建筑师:邢舒
业主:深圳市盐田区人民政府
施工总包单位:深圳市粤通建设工程有限公司
施工图合作单位:中铁城际规划建设有限公司
钢结构施工分包单位:深圳市特区建工钢构有限公司
室内施工分包单位:深圳承旺建设有限公司
幕墙施工分包单位:深圳建安建筑装饰集团有限公司
项目位置:广东,深圳
建筑面积:1390㎡
设计周期:2021/08-2022/03
建设周期:2022/07-2023/01
结构:钢框架结构
材料:钢材、混凝土、UHPC板、幕墙玻璃、哑光不锈钢、水磨石
摄影:存在建筑-建筑摄影、line+

BIM建筑网





































































