火车站是在一个城市开启一段旅程的起点。在厦门岛,火车站一带同时还是自然山体与繁华城区的交接点。金榜小学就选址于厦门站东侧的山边。
地之被基地上曾经有粮食仓库和大型车场,在新的城市道路形成后,场地变得狭促且不规则,地面也因使用功能的需要被完全硬化。为修复土地伤痕,化解基地上的不适高差,设计团队在自然与城市之间,寻找谦和、融洽,能促进山与城互为增色的衔接方式,再合理地置入学校的使用功能。东坪山的一脉入城被保留下来,它与不规则的基地东西向贴邻,倚山邻路,顺势而为。
山之形金榜广场的对面,绿色屏障郁郁葱葱,山体连绵。设计团队选择了相对集约的形态策略,依山就势、错落连接,将原来山坳一侧的陡直化为有节奏的退台,运动区建筑体平铺般倚山面城,用长而低的体量护住山体,延续其平缓的趋势。山脉是建筑的背景,围抱校园,建筑群体量适宜,一部分有节奏地抬升、一部分自然放松地舒展开,整体塑造了金榜路东侧新的城市形态,自上而下展示自然与人、与城市积极融洽的图景。
风过庭新的校园建筑群以集聚的形态坐落山坳,各个庭院周边的开口互通,带来视线通透、便捷联系,山谷风顺坡而上,轻拂绿植,过庭穿廊,再由天井拔起。对流过程改善了当地春夏季节湿热气候的不利影响,引导林间新鲜空气进入校园,使得教室内外,清爽宜人。庭院空间为学生们提供了课余交流的多样选择,学生们在不同标高上下跑动,风雨无阻,享受着校园里的山地之乐,庭院之乐。
阳光顶建筑在多个台地上架起、连接,整体校园形成一个具有充分可达性的观景平台群,在坡向城市的山脉西侧,不同标高的屋顶平台,适合远眺,也适合对望。金榜路上的人们看着学校,在火车站旁的绿色山边,台地与屋面的错落、堆叠,塑造了多个环游路径,想像孩子们在课间自由地跑出教室,去到不同高度的平台眺望,一边是山,一边是城。
项目图纸
△区位示意图
△基地标高
△总平面图
△总平面图
△一层平面图
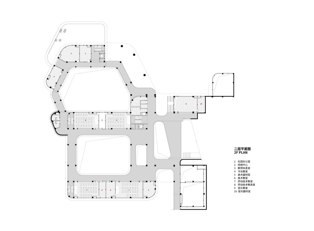
△二层平面图
△三层平面图
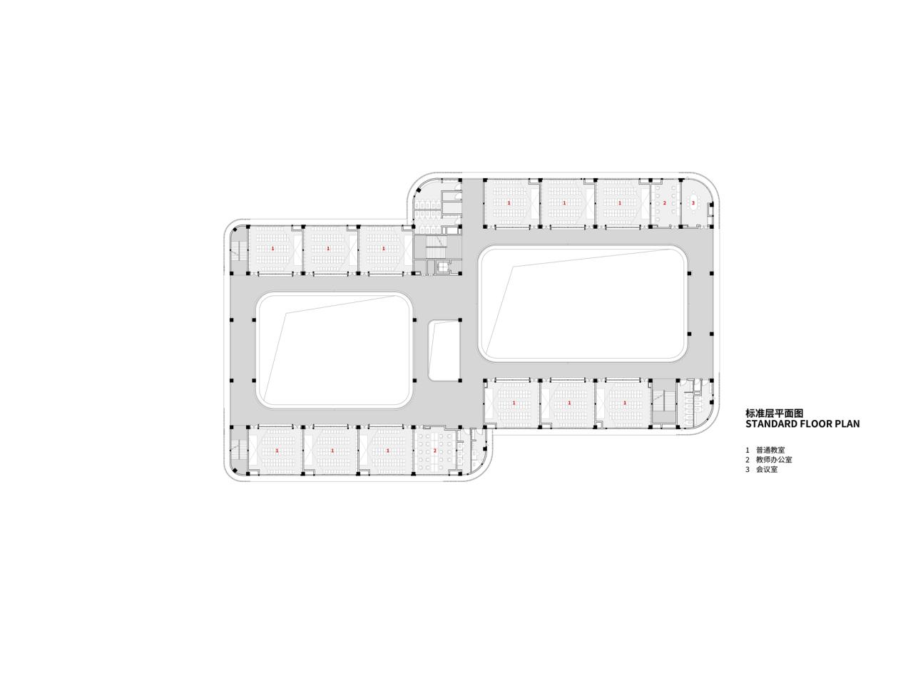
△标准层平面图
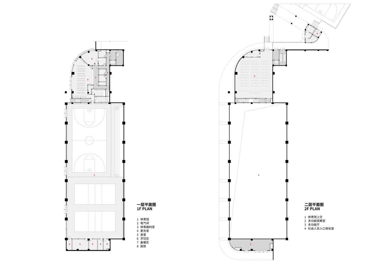
△体育馆平面图
△剖面图
△剖面图
项目信息
建筑师:厦门合立道工程设计一院 一致建筑工作室
面积:19870m²
项目年份:2023
摄影师:罗联壁
主创设计师:郑思洋、魏伟
项目经理:黄哲威
建筑方案设计团队:陈茜颖,贺韬,许志钦,林仕超,余晨铭,李名泽,黄镇洲,王林祺
施工图设计团队:柯森夏,陈健榕,黄晓聪,李仁义
结构设计团队:陈伟力,余金峰,林智寰,杨超,彭晨星
电力设计团队:汪启丁,陈德刚,李弘晟
给排水设计团队:陈超南,王旖岚
暖通设计团队:陈建胜,王琪
委托方:厦门市思明区教育局
设计公司:厦门合立道设计集团
施工方:中国建筑第八工程局有限公司
地点:厦门

BIM建筑网











































