自然生长的白色聚落这是一组由16个白房子错动、交织组合在一起的聚落,整体坐北朝南,每个房子的朝向、高低、开窗都略有不同,因此每个房间也拥有了各不相同的风景。它坐落在田野之中,西侧有池塘,南侧有小溪,东北侧是一片村落,远处周边是不高的群山。聚落中每个小房子的尺度都接近于旁边村落的民居,每个小房子相似而不同的形态模仿了村落自然生长的结果。这是一组白色的聚落,就像田野中奶牛、白鹭的白色,凸显的同时也与环境和谐共处。外墙的主要材料是大颗粒、深凹凸的白色肌理涂料,随着阳光的变化,肌理的亮面和暗面会不断变化,呈现出丰富的白色。这是一间有23间客房的乡村酒店,包含了餐厅、咖啡、手作工坊、面包房、泳池、会议等公共空间,也包含了周边的溪流、田野和远山。
28种可能在几无遮挡的田野中造一座100多米长的建筑,用整体的方式多少会显得突兀,所以我们希望把整体拆分、打散,选择了由抽象的白房子组合而成的聚落方案,这除了呼应周边村居的尺度和生长方式之外,多少也受到了我们当时感兴趣的建筑师的一系列作品的影响,有路易斯·康的多米尼克修道院、西泽立卫设计的森山住宅和十和田市现代美术馆、藤本壮介设计的儿童精神病康复中心等,这些作品都表达了去中心化的空间倾向,将建筑打散后重新组合,形成一些随机的意想不到的空间,有很强的灵活性,我在毕业设计的茶室方案中也尝试过用类似的方法来创造曲折的体验。当然具体设计时还需要针对具体问题,提出适合场地和功能的空间设想和体验方式。所以随着项目功能的调整以及对同一功能的反复推敲,我们尝试了28种组合方案。每个版本都在尽量贴近每个阶段的特定条件,在看似随机的结构中寻找确定性,让抽象的方法导向具体的结果。最终,看似随意的开始导向了相对确定的结果,聚落分成两组:西楼为串联式结构,顺应了西侧的窄长红线以及客房为主的功能;东楼为放射式结构,顺应了东侧方形红线以及公区为主的功能。
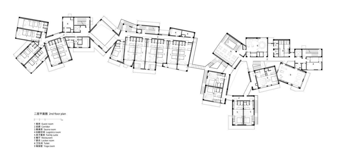
温暖的内部和小木屋外部是白色的抽象的,内部我们希望是温暖的、有材料质感的。在人们经常会接触到的界面或常呆的空间如客房、餐厅、咖啡等,我们选择了实木、抹泥质感的肌理涂料、暖色水磨石等作为主要材料,在人们不常接触或不常呆的空间如公共大厅、交通空间等我们采用了竹模肌理预制板、不锈钢板、黑或灰水磨石等作为辅材。因此,从外部进入内部可以感受到空间慢慢有了质感,逐渐温暖。另外,我们还在室内设置了一些小木屋,让使用者有温馨而有趣的体验,比如民宿大厅的前台就是一个坡屋顶的小木屋,让使用者进入这个建筑就有了家的感觉,同时坡屋顶里还隐藏了空调,让整个空间更加整洁;还比如,每一个亲子套房的阁楼都是一个可爱的木房子,希望小朋友在房间里还能找到独属于自己的小空间。
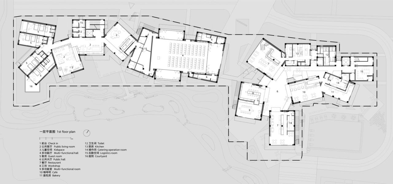
既独立又连续的公共空间整个建筑里主要有两组公共空间,一组是东楼的公共空间,整个空间呈放射状,中间两层高,像个带天窗的小广场,四周围绕着向中间敞开的店铺,有餐厅、手作坊、咖啡等,咖啡又串联着面包房,二层除了餐厅和瑜伽房等公共功能,还有五间亲子套房,它们与公共空间之间有实墙阻隔,只在局部空隙处可以看到公共空间,整个东楼因为有了居住功能而更像一个小社区,既有与家人相处的私人空间,又很容易进入到连续的公共空间,既能自处又能与人交流。另一组是西楼民宿入口的连续公共客厅,它由三个方形空间在角部连接而成,第一个空间通透、两层通高,光可以从各个方向进入,进入之后可在小木屋前台办理入住手续,也可以在此休息、等待,上空有一段竹模混凝土的折廊穿过。第二个空间一层高,水平转角大窗,座位沿窗安排,中间是壁炉,是安静温馨的公共客厅。第三个空间比第二个空间下沉600mm,用矮书架区隔,是相对热闹的亲子读书和游乐区。三个空间视线连续,使用者既能感知整个空间又能各自找到独处的角落,各得其所。
各种面向的客房23间客房中的17间是标间/大床房,它们有相似的基本格局,因为朝向、位置、开窗、尺寸的细微不同,而没有完全相同的客房,有带阳台的客房、有露台带泡池的客房、有带院子的客房、有大面落地窗面向自然的客房、有面湖的客房、有面山的客房等。另外6间客房是特色套房,分别是三种带阁楼的亲子套房和一间屋顶套房,屋顶套房拥有通向往三个方向的屋顶花园,可以居住也可以举办屋顶派对。
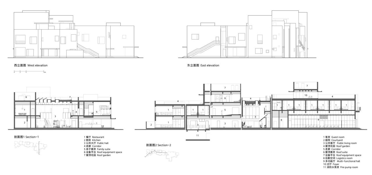
向自然打开建筑中还设有一个多功能厅,它呈十字形,常规使用时是一个规整的约10mx20m的长方形空间,可以用于会议、小型演出等,主厅的两侧藏着两个侧舞台,当两侧近8m宽的洞口全部打开时,建筑和自然就没有了边界,视线可以从北而南穿透整个建筑,这时可以举行一场自然音乐会,或者把自然作为背景,举行一场自然婚礼,期待更多的可能性在使用过程中被发现。
曲折游线聚落中有一条曲折的游线,串联起了两栋楼,串联起了客房和公区,区别于多数城市酒店直线、没有风景的走廊,这条游线有曲折,偶有分叉,过程中常有风景,穿过两层的通高空间,穿过室外,可以通向屋顶花园,也可以通向田野。
漫长的旅程这个项目从开始设计(2018年)到建成(2023年)经历了五年的时间,包含了三年的疫情,中间经历了功能的变动、甲方的变动、运营方的变动,过程中,参与到项目中的每一个人都在帮助、促进我们工作室的成长,我们心存感激。同时,这也是我们工作室一段漫长的面对变化随机应变的旅程,幸运的是,经历了多次的变动,我们最初的想法并没有多少改变。
短暂的集体生活越来越多的城市人去乡间度假不是为了看某个景点,而是为了与朋友、家人去到不同的环境中、大自然中呆一段时间,所以乡村酒店不仅是休息睡觉的旅馆,也需要是一个可游可居的有趣的小世界,这也是我们在这个项目中试图创造的。一间好的乡村酒店也是一群陌生人短暂的集体生活的理想之地,希望在这片田野上的聚落中,人们可以独处、可以欢聚、可以静观、可以狂欢……
项目图纸
△总平面图
△一层平面图
△二层平面图
△一层平面图
△二层平面图
△三层平面图
△立面图
△立面图、剖面图
项目信息
建筑师:跳房子建筑工作室
面积:3711m²
项目年份:2023
摄影师:夏至,南西空间影像,王田田
主持建筑师:王田田、罗雅琴
项目顾问:徐永永
建筑施工图团队:沈仙明、方韵平、张佳、邢家斌、胡一峰、余志军、余伟阳、翁丽君、郑筱筱、王栋
室内照明顾问:方方
运营方:德清县西坡酒店管理有限公司
景观设计:初写蓝(上海)建筑设计顾问有限公司
室内施工图团队:方军华、钟跃、叶海超、戴海光、王亚军、刘辉
合作设计院:浙江合艺建筑设计有限公司
软装设计:德清无尽夏软装设计有限公司/沈雅、平凤佳、钱启帆
土建施工:浙江中诺建设有限公司
室内施工:浙江乔兴建设集团有限公司
委托方:德清县莫干山国际旅游度假区发展有限公司
地点:湖州

BIM建筑网










































