梁溪区作为“城中区”,存在校舍资源不足的现象。因此,政府着力优化教育资源布局,打造真正的”百姓家门口的好学校“。对于一所包含36个小学班级和18个中学班级的九年一贯制学校而言,不仅需要使生均用地达到标准要求,还要在满足建设标准的基础上为未来预留出足够的发展空间。
不规则的地块使学校总体布局稍显局促,放置标准400米跑道和配套体育设施之后,校舍布局在所余地块上已无太多变化可能。因此,在保证功能要求和建筑效率的同时,兼顾空间趣味性和独特性,化解西南不规则地块的影响,都成为设计的重要关注点。
四幢基本的教学单元放置之后,一条曲廊的引入让理性的布局有了感性的情绪,效率至上的精确中被植入一种柔和的松弛感。曲廊既是融合了行政楼和若干专用教室的重要功能空间,也是必要的交通与公共活动空间:环绕各个区块并进行连接,在建筑之间产生围合空间,形成大小不一的景观庭院,使二层以下的教学、辅助用房与自然环境融为一个气氛感性活跃的整体,与二层以上需要保持理性、安静氛围的普通教室和行政办公形成竖向分区。
校园在场地南侧设置主入口,进入场地后沿曲廊竖向延伸处为行政楼,向北两栋教学楼供小学使用,小学的出入口和接送系统集中设置在校园南侧;最北侧的五层教学楼供中学使用,将中学的出入口和接送系统设置在北侧。基地东南角的不规则用地,集中建造艺体楼,包括食堂、报告厅和风雨操场。
扬名实验学校,在严苛的限制条件下,实现了完备的教学功能要求,我们希望通过简单且突破常规的手段,为校园带来诗意的元素,在冷静的理性维度上,融入感性的温暖。
项目图纸
△总平面图
△一层平面图
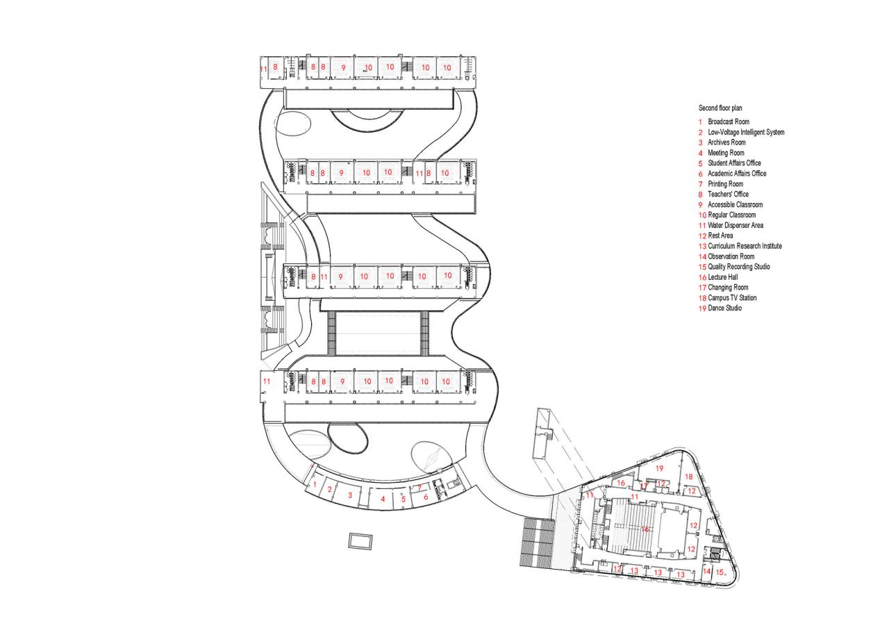
△二层平面图
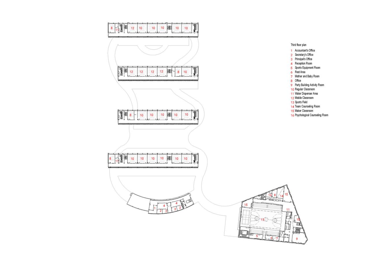
△三层平面图
△四层平面图
△五层平面图
△地下一层平面图
△地下二层平面图
项目信息
建筑师:米丈建筑
面积:73000m²
项目年份:2023
摄影师:吴清山
设计团队:黄聪毅、刘志睿、刘畅、赵雪、李至特、吴妮丹、陈剑、郝彤
主创设计师:卢志刚
合作设计方:江苏合筑建筑设计股份有限公司,南通六建(施工方)
委托方:无锡市梁溪区教育局
地点:无锡

BIM建筑网








































