▲项目视频 © 是然建筑摄影
隐匿千年古村落,消隐在人间烟火中……
▲全区鸟瞰 © 是然建筑摄影
▲中国传统古村落碧山村 © 倪楠
场地处在一个具有悠久历史的传统村落里,周边都是具有典型徽式元素的传统民居。既有悠久历史的明清建筑也有叠加近代及当代新建的村民住宅。而我们场地所在位置是这个村落里比较深的区域,到达这里必须穿过村落中或宽或窄、蜿蜒曲折的村中巷道。
▲建筑鸟瞰 © 是然建筑摄影
第一次来勘察场地的时候,我还有一丝丝的困惑。汽车也不能直达场地,村落里建筑参差不齐,场地也有限,景色并不好。
▲融入在碧山村的建筑 © 倪楠
不过踏勘时我站在场地中,看着周边青瓦白墙与层叠错落的马头墙。远处炊烟升起,隔巷听着传来的声音,柴火烟熏味中夹杂的饭菜香味飘入鼻中。我忽然觉得是不是可以抛开一些固有的印象及标签,从实际的场地出发,将建筑隐匿在村落中,创造一个内向型的独处世界。融入村落却又能与外部看似杂乱、错综、多样的环境有着极度反差的空间!
01无序中寻找秩序
▲概念草图 © y.ad studio
中国传统村落的建筑肌理,都是通过自然生长及历史沉淀累积而成的,错落无序却又充满生机。项目所处的周边建筑肌理同样如此,它不是呈横平竖直状,而是呈歪歪扭扭的不规则形状,非常的无序。
开始确实也造成了一定的困扰,总觉得在这样一个很紧凑的场地里塞进去一个建筑体块,感觉没有“景”也没有“空间”,利用率也不高。在反复思考后“既然要做一个内向型的空间,何不引入一些中国园林的思维?完全隔绝于外部环境,制造一个内部世界,在充满复杂性的围合中制造一个极度纯粹、纯净及静谧的内部空间。”
▲概念草图 © y.ad studio
确定原则后,我原本想做一个与周边建筑极度反差的现代建筑。但是政府主管部门批复“碧山村作为传统古村落,他有风貌保护原则,必须要有徽式建筑的元素。”但是我们并不想复刻一个传统的徽式建筑,形式上的传承既无新意和突破,也不符合当代人的生活使用习惯,我们更希望传承的是它的一些精神内核而不是表象和形式。于是“如何将传统建筑元素与现代形式及生活方式相结合?”一直都是我们重点思考的问题。
▲分析图 © y.ad studio
场地的设计策略并未作大的调整。在将各个功能填满后,我们保留了场地中已有百年的大树与古井,再将庭院、天井植入各个建筑体块中,在各个体块间隙中嵌入或大或小的内庭院进行虚实之间的转换与过渡,并形成视觉重心。在制造丰富的内部视觉意像的同时,也通过内庭院及天井,让建筑内外之间、自然之间形成一个过渡与连接。
02动态视觉感受
在设定空间动线的时候,我们设定了很多转折与过渡。希望用空间的节奏、人的流动、视线的游走,可以达到移步换景。随着人在空间中前行停顿、或上或下的轨迹制造不同的身体感受与体验,以此来回应“空间”、“时间”与“情感”,感知空间的多样性与丰富性。
▲入口前庭院 © 是然建筑摄影
▲内廊道 © 是然建筑摄影
▲向上楼梯 © 是然建筑摄影
▲楼梯局部 © 是然建筑摄影
▲室内望向庭院泳池 © 是然建筑摄影
▲室内往庭院泳池 © 是然建筑摄影
▲内庭院泳池 © 是然建筑摄影
所以我们有违常规的将公共客厅与接待区放置在建筑的中心位置,从中心再往四周辐射。从入口开始进入到前庭院,再转换到玄关处将视线定格在玄关处的墙上,再转经过泳池、楼梯及内庭院最终到达接待公区。我们希望当人们在进入到这个建筑的时候就开始整理思绪和调整心理,虽然这是一段短短的行走路径,但当他行走在这种“不确定性空间”的时候可以让他感到新奇,激发他对这个空间的探索和好奇心。
▲室内望向内中庭院 © 是然建筑摄影
▲中庭上空空中连廊 © 是然建筑摄影
▲中庭上空 © 是然建筑摄影
从外面复杂的村落巷道推开门进入到一个充满意味的空间,让人产生一种别样的思绪和内心喜悦。体验最终停留在屋顶露台之上、瞭望塔之中,从幽远深邃的空间到豁然开朗的视野。站在露台与瞭望塔之上眺望远山、回望内院、俯视屋顶。通过这一系列的空间大小、视域收放、视距远近和向心与向外的营造让人产生动态视觉感受。
03向内造景,向外借景
▲接待大厅望向内中庭 © 是然建筑摄影
▲过道望向内庭院悬浮树 © 是然建筑摄影
▲客房空间与缝隙式庭院的对景 © 是然建筑摄影
我们希望建筑内的活动与周边私人住宅不要有冲突与干扰,不希望它受到周边环境的干扰,也不希望干扰到周边村民,真正做到共融、共生。所以通过空间的错落与布局制造一个完全隔离于外界的内向型的布局,让活动在建筑内的人不受外界干扰也不干扰到外界。
▲向外开窗借景,框景斑驳马头墙 © 是然建筑摄影
临周边民居的建筑的墙与院落几乎不作任何的开窗,通过内部庭院和天井去制造视角与景观,在内部间隙中去与自然互动。在一些不得不开窗但又与邻居离的很近的空间,为了保留一定的隐私性与舒适性,我们采用视觉错位的方式去进行规避。如突破常规高度视角的高窗或极低的低窗,让它既可以保证光线和通风又能避免视觉上的直视。同时还尽量将窗创造成一个取景框,将外面斑驳的古砖墙框成一副画,将绿郁葱葱充满生机的植物内庭塑造成一个橱窗,抑或是框住远处的碧山。
我们试图让每个房间都可以有不同的景。不管是“远借、邻借、仰借、俯借还是应时而借”,都让人从室内往窗外的视线可以有景可观。将“幽”、“雅”和“放松”的意境、氛围植入空间。
▲向外开窗借景,框景后山 © 是然建筑摄影
▲楼梯间望向天台 © 是然建筑摄影
▲框景后山感受四季变换 © 是然建筑摄影
▲远瞭村落起伏屋顶 © 是然建筑摄影
▲瞭望塔远望村落起伏屋顶 © 是然建筑摄影
我们试图通过这些做一次全新的居住尝试,不希望它只是一间具有居住功能的贫乏产品。而是希望它是一个充满惊奇、生活情趣、空间意境及情感寄托的体验场所。用空间的营造让人在复杂与多样性中去体验纯粹,在当代中感受传统,从喧嚣中步入平静,感受时光、感受静谧。在一成不变中去感知“不确定”与“惊奇”。
04共融与新生
▲与建筑共融共生的玉兰树 © 是然建筑摄影
场地中已近两百年的玉兰树,属于外来树种,听村民说其为经商的前辈从上海带回来植栽至今。原场地中的古水井我们也未将其填埋,而是将其融入建筑之中,我们希望在留存一些曾经的记忆的同时也能与其共同在地生长……
▲传统元素的延续与新生 © 是然建筑摄影
▲传统元素的延续与新生 © 是然建筑摄影
在黄山区域,马头墙这种建筑元素不仅遍地开花,还被视为“徽派建筑”的象征。对于新建筑也必须加入“历史元素”的做法,作为建筑师有时候还是有点排斥的。总觉得新建筑应当使用当代的方式去叠加,而不是去延续、重复复制过去的做法。我们希望这里有时空的交叉、时间的交错,有呼应现代和传统的共融。最主要还是要符合当代人的生活及审美,不去复刻、模仿。所以除去建筑形式外,会更侧重于空间的塑造,和如何让它更人性化、更符合当代人的生活习惯、使用及审美。用一种符合当代的语言与形式去做一个衔接与传承。既保持其神韵又想要做出一些改变,用一种新的方式去延续、融入达到一种共生的状态。既不违和又能保有独特性。
▲古朴青砖与现代玻璃砖的建筑融合 © 是然建筑摄影
我们使用青砖来作为主要的建筑材质。一是觉得青砖与周边的传统建筑群比较契合,二是我们觉得青砖也能有很多种表达,他有很强的兼容性。我们将青砖与玻璃砖进行搭配,把青砖的沉重与厚重进行消解,让他呈现出一种轻盈与现代的视觉感,玻璃砖与青砖碰撞又能融造出一种别样的观感。
05让空间发生故事
▲复合使用的内中庭空间 © 是然建筑摄影
▲具有多义性的公共交流空间 © 是然建筑摄影
不仅仅只是满足居住的需求,除了具备一定的精神性与松弛感外,我们希望空间也具备叙事性。通过场景与人的活动,让空间发生故事,放大社交属性与交流功能。通过创造空间的方式去鼓励人与人之间进行互动与交流,让空间不仅仅只是住宿、度假空间。茶室、书吧,餐厅也都会以一种相对开放与灵活的方式展现,让它变成一个“交流会客厅”。甚至有可能每个房间我们都不设电视,在公共空间营造一种观影氛围,以这种方式引导人走出独处空间,走向公共空间。
▲兼具聚会与交流的BBQ空间 © 是然建筑摄影
▲露台空间 © 是然建筑摄影
泳池、BBQ、露台、瞭望塔的设置都是鼓励多元社交的一些方式。
但是我们仍然会去创造一些既能独处,又能和其他人共融的空间。除保持各个房间的相对独立与隐秘性外,在屋顶的温室花房设计中,将它塑造成一个相对安静独立的屋顶花房秘境。所以在一些社交公共空间上让它既向内生长,还向上生长。
06让光影与空间交织成诗
▲光斑在白墙上变幻,由圆到方的转变 © 是然建筑摄影
▲光斑在白墙上变幻,由圆到方的转变 © 是然建筑摄影
▲充满诗意的光影,感受时间的变换 © 是然建筑摄影
▲充满诗意的光影 © 是然建筑摄影
▲光影穿透砖墙 © 是然建筑摄影
▲充满诗意的光影,感受时间的变换 © 是然建筑摄影
光是雕琢建筑空间的一种介质,光影的相互作用会在视觉上产生一定特定的效果。某种程度上光也是一种变化的建筑材质。平时在建筑实践中我们也尤其注重建筑对光的引导与塑造,希望可以通过光影的注入让空间变的丰富,充满诗意,让空间具有情感、意境及趣味性。也希望人们通过空间光影的变化可以感知时空。
▲感受时间的变换 © 是然建筑摄影
▲慵懒、轻松的光影氛围©是然建筑摄影
▲朦胧的光感 © 是然建筑摄影
▲具有丰富质感的光影 © 是然建筑摄影
为了保证室内的光线,庭院与天井仍然是我们整个设计中的核心,用天井及庭院分离建筑体块来保证充足的采光。通过玻璃砖墙、屋顶的天窗、不同形态的格栅导入光线,营造不同的空间情绪。通过光影的变化和移动,让在这个空间的人可以感受时光、引人遐思。
项目图纸
▲总平面图 © y.ad studio
▲首层建筑平面图 © y.ad studio
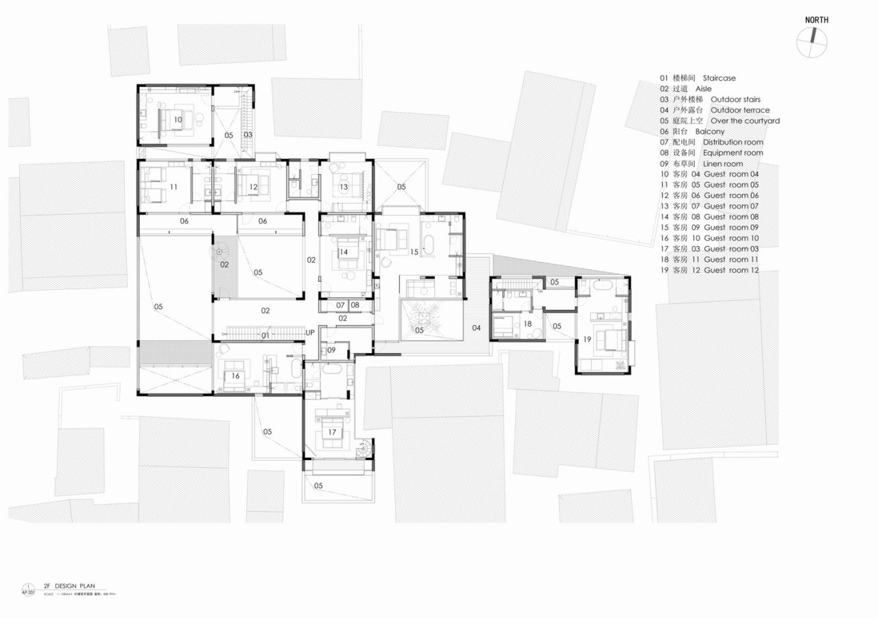
▲二层建筑平面图 © y.ad studio
▲三层建筑平面图 © y.ad studio
▲屋顶建筑平面图 © y.ad studio
▲建筑立面图 © y.ad studio
项目信息
项目名称:黟云·碧山酒店
项目地址:安徽省黄山市黟县碧山村欧村路8号
设计单位:y.ad studio | 上海严旸建筑设计工作室
主持建筑师:严旸
项目建筑师:吴可嘉
项目室内、景观设计师:吴可嘉、赵思缘
设计团队:严昱、霍振忠(结构)
VI指示系统:严旸、吴可嘉
施工单位:黄山朝桦装饰设计有限公司
建设单位:黄山市逸阳文化旅游发展有限公司
主要材质:青砖、水磨石板、竹钢板、锰镁铝金属屋面、玻璃砖、微水泥涂料、木饰面
建筑面积:1286.25平方米
设计时间:2020/12-2021/06
建造时间:2021/09-2023/10
摄影版权:是然建筑摄影

BIM建筑网





























































