学校在2-3万平米的时候是一个比较理想状态,既有规模产生的空间模糊又不至于被交通效率所要挟。而以关系冗余方式来营造空间透明性满足学生多样生活是我们一贯的策略。
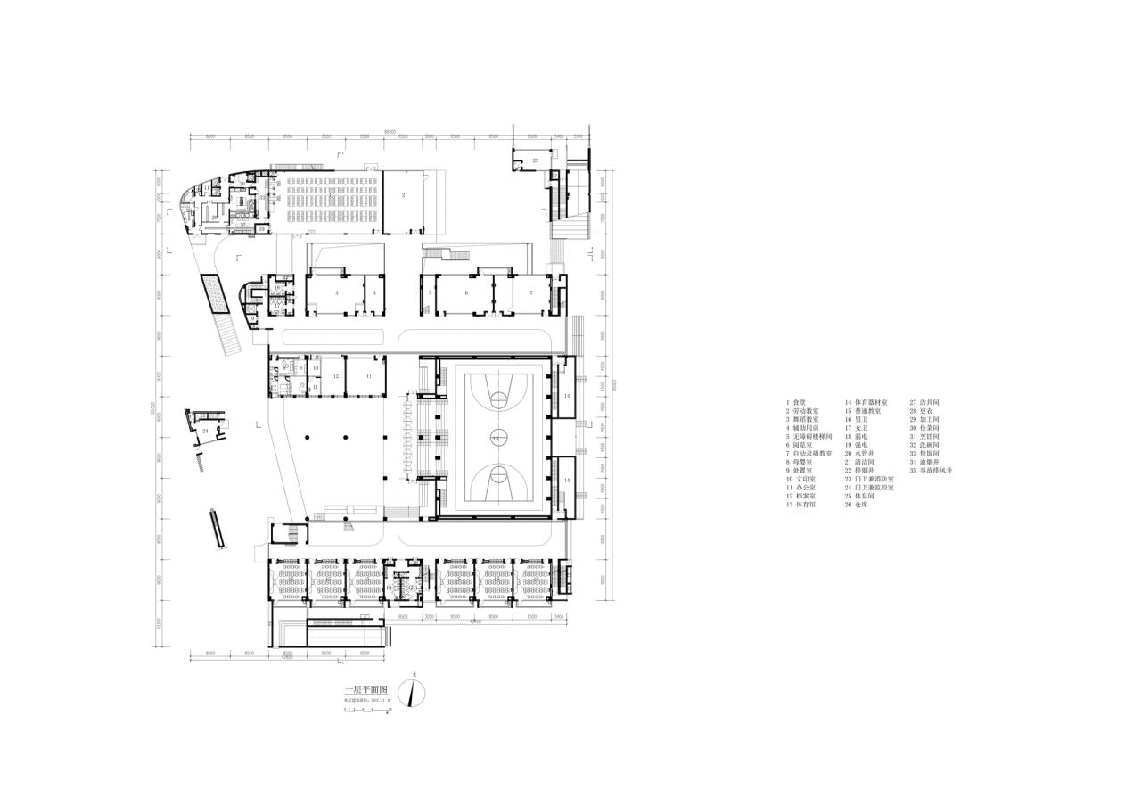
1:入口灰空间 这是一个多重叠加的灰色空间:学校的入口广场、底层教室的课件活动场所、内部体育馆的外延、二层空间的交通转换、开放的图书馆、学校的集会场所…多重关系的叠加让空间体现了充分的冗余性,让入口灰空间的定义非常模糊。它是一个多义的大厅,不仅是交通更多的是展示、活动、交流的场所。
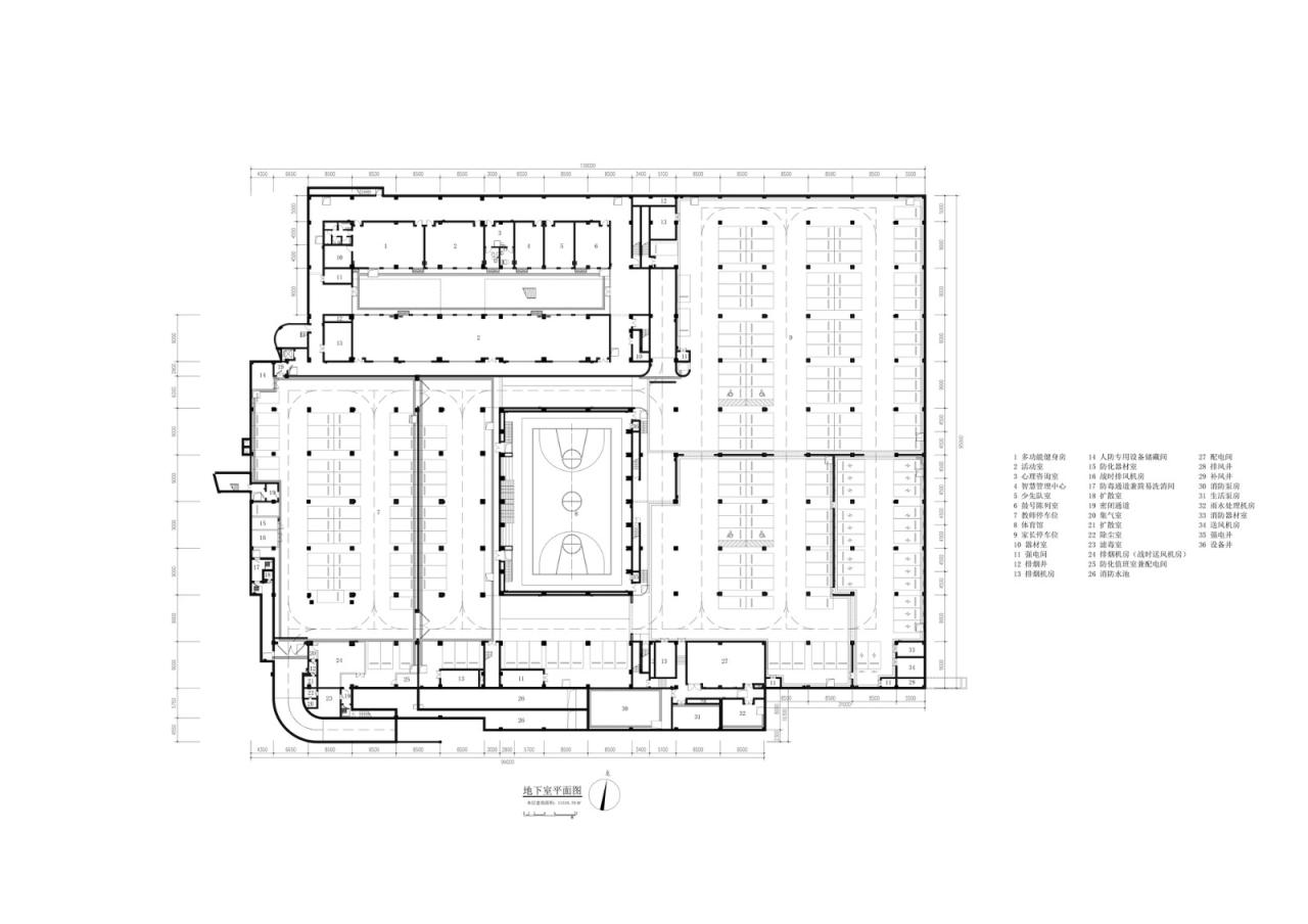
2:中心体育馆将体育馆作为一个公共空间放置在中心是学校的最大特点,将体育馆空间的公共性发挥到极致。体育馆的剖面设计上将内场标高下降至-3m,使入口空间和体育馆有了更好的互动关系,内部的活动成为了学校展示的一部分。同时体育馆和地下车库形成了非常友好的界面,让体育馆就成为了整个学校放学接送孩子的中心。顶部光线的处理照亮体育馆的同时也给室内带来了丰富的光线变化。
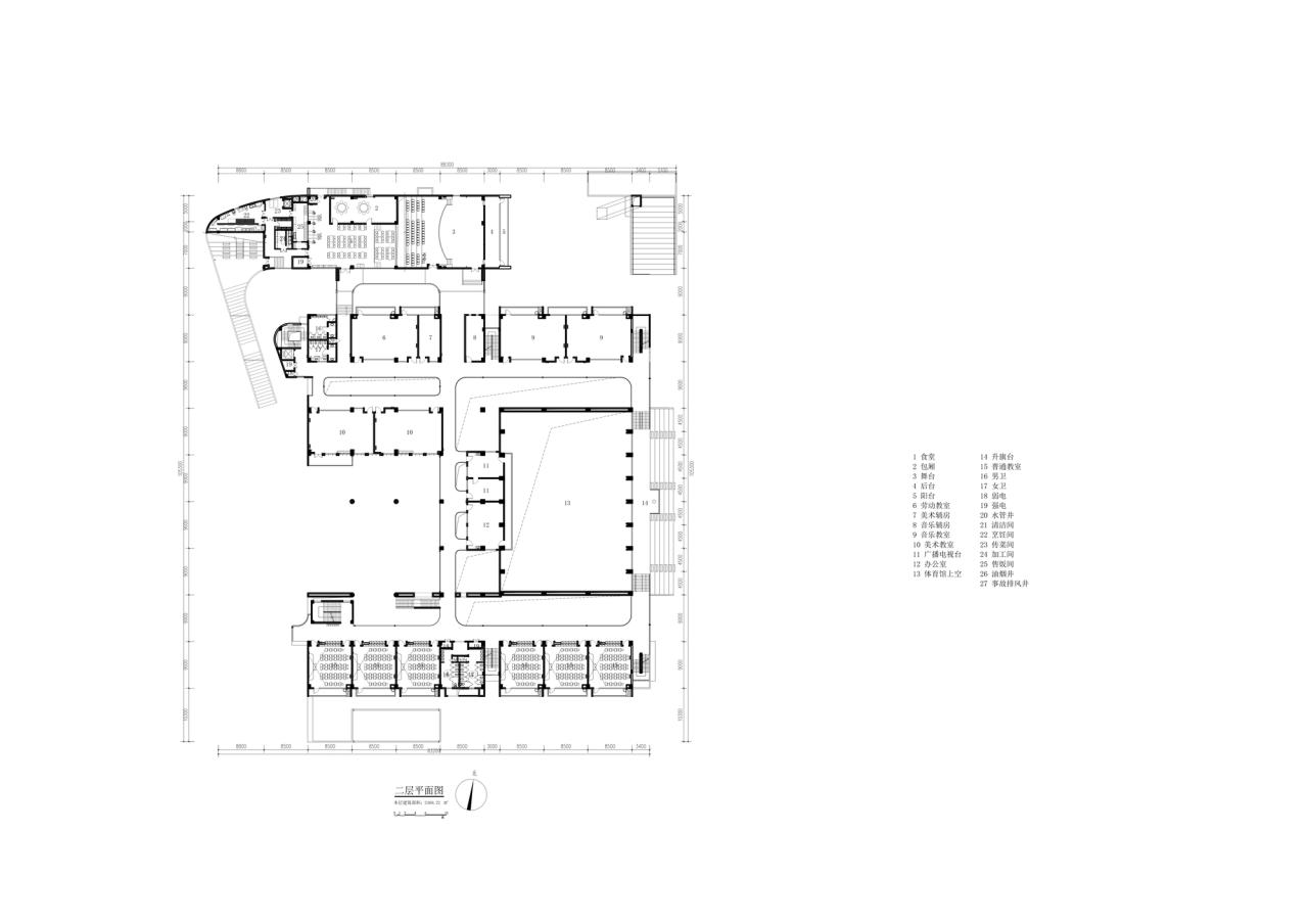
3:屋顶大平台一个可攀爬的立体平台覆盖下部的体育馆和入口灰空间。成为上部学生的乐园。每一层学生都获得了课间十分钟的活动场地。屋顶平台从中间向两侧退层,自然形成了面向西侧景观带的观景台和面向东侧城市的看台。和这些外部环境的互动关系也将成为学生重要的在校记忆。
4:大侧廊中心体育馆的介入让学校中恼人的25m间距规范限制自然消失了,学校体现出了强烈的整体性,呈现出常规规范限制下的不同空间品质。处理问题的最佳方法就是让问题根本不存在。南北教室和体育馆的间距都转化为日照间距。南北教室外的大侧廊转化了更有活力的类中庭空间。学校没有被25m规范划分为一个个排列的监视空间,减少了无奈的南北向交通连廊,整个学校体现出了极强的整体性。
5:小院食堂、会堂和入口坡道在建筑南北两侧包裹着中央的核心空间。给学校营造了区别中央空间的宁静小院,让学生在校有更多的空间体验。
6、城市表情文齐路小学延续了我们一贯立面呈现内部空间的设计手法。空间的组合形成立面真实的虚实关系,建构的技术处理形成建筑立面的细节。造型上完全顺应空间,和空间高度一致。因而文齐路小学的立面表情在建筑的东西向强烈表达出剖面建筑的特点,而南北教室阳台的重复错位成为另一个重要元素。
文齐路小学从关系冗余出发,营造了一个空间高度复合的学校。我们一直认为学校建筑不能像机器一样生产标准的产品,而应该是容器去催化出未来的无限可能。
项目图纸
△分析图
△分析图
项目信息
建筑师:荣朝晖工作室
面积:23538m²
项目年份:2023
摄影师:侯博文
主创设计师:荣朝晖
设计团队:王雪丰、赵旌名、黄羽迪、李晶、刘永平、周霞萍、陈振伟、刘竞希、陈刚、苏鹏程、钱威;室内:张婷、梅利华;景观:王劲涛
委托方:南京江宁区教育局
地点:南京

BIM建筑网



































































