婚纱集合店LAN Bridal 不同于传统婚纱馆一成不变的布局和销售模式,在4层小别墅内,通过有效的设计干预,重新定义零售体验的概念。
△入口门厅
空间设计呼应品牌集合店婚纱款式打破传统婚纱的形式感,个性的同时保有艺术感,品牌集合店的设计也摒弃了通常婚纱店采用的典雅或华丽的流行设计元素,用素净统一的色调、简洁的体量和强烈的秩序感等建筑语汇,建立全新的试衣购物体验,打造浪漫以外的更多可能性,营造一个具有生长力量感的仪式感空间。
△分析图
△展示中庭
△俯瞰图
解构重组
商业逻辑及场地的限制衍生了空间动线、功能规划和体验方式,空间集合了试纱体验,陈列销售,会客接待,艺术展览等不同功能区域,相比于传统的功能并置的组织方式,设计探索艺术体验,试妆,会客之间的共存共生的新模式,三种空间之间既可独立运行,也可交互共享。
△建筑外观
△一层空间概览
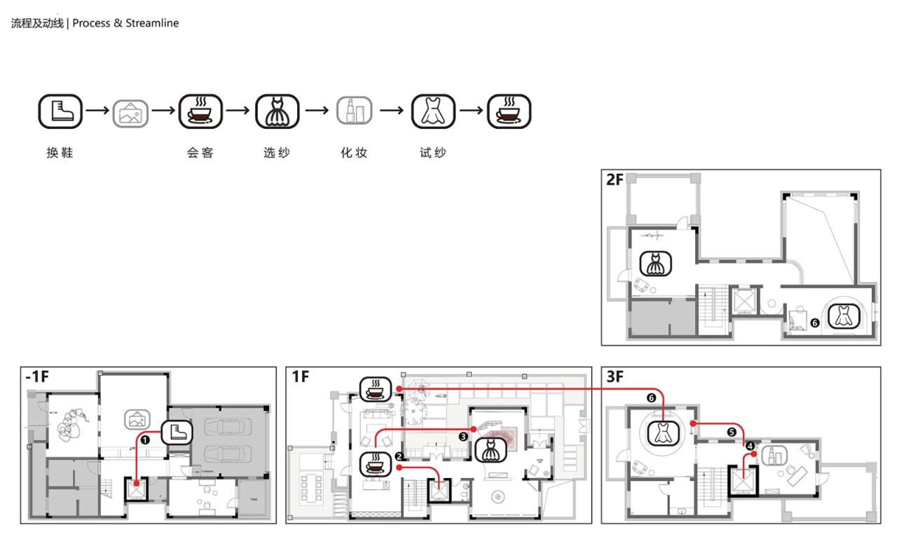
根据商业流程:客人预约-婚纱选款-卸妆化妆-试纱-拍摄,设计了可满足多个客户巧妙互不干扰的“游园”动线,提升用户的行为体验。
在动线的规划上,负一层作为主入户区及婚纱艺术展示,一层设置会客主厅,二层则是婚纱陈列区,三层为试纱试妆体验区。
△中庭陈列区
△序厅
△试衣间概览
△化妆间
秩序感线条”元素成为主导性的语言贯穿始终,有节奏地串联具有独特语义的不同单元,错落生成。
△秩序感门洞
光之容器
主厅会客区采用功能迷你吧,水吧台,休闲沙发区中轴对称的布局,类比传统建筑中的厅堂关系,方正典雅,得体而舒展。客人在主厅会客区稍作停留和交谈后,自然衔接婚纱展陈区域,开放布局间访客自如游走。沉浸其中,以情绪引导为空间场景的转折作铺垫。
△会客厅空间
△会客厅空间
光线的优势使空间内部成为“自然之影”的容器。以建筑的物理性质和用户情感体验为设计思考点。物质化的光影通过建造、形式、肌理、体量,在亲人尺度的日常空间中塑造“深远感”。
△水吧台
△试衣间休闲区
△细部
冗长的通道两端化利用海派门框构建端景画面,介入延伸,每个单独的区域都通过无限的视线与其他区域保持联系,增强了空间的尺度感。
△过道区
△婚纱陈列区
石材壁炉、大理石端景桌、饰品摆件陈列中,传递古典氛围,糅合当代空间艺术的先锋态度。
△壁炉区
△中式礼服陈列区
空间家具陈设和照明的精妙布置,打破常规的陈设套路。围合与抽离并存,空间属性更包容多元化。
△卫生间
△壁炉区
项目图纸
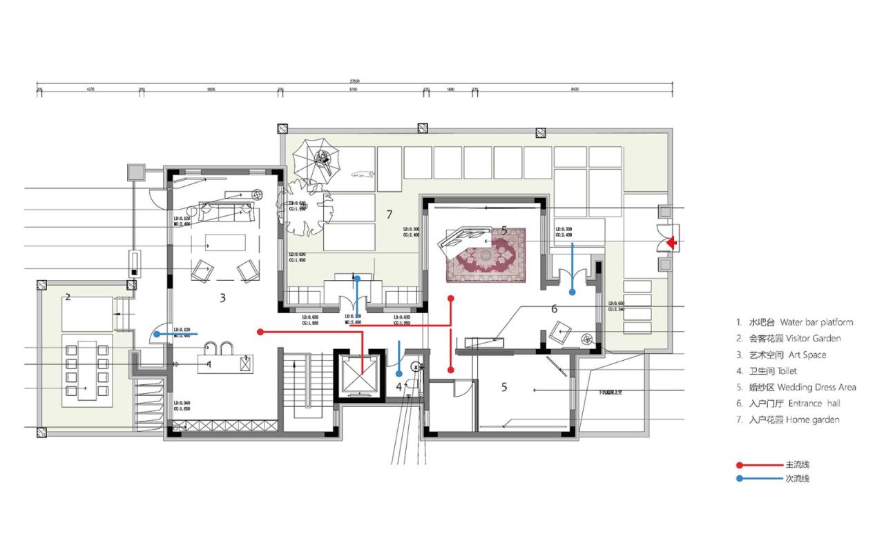
△一层平面图
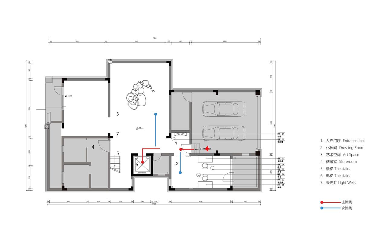
△地下一层平面图
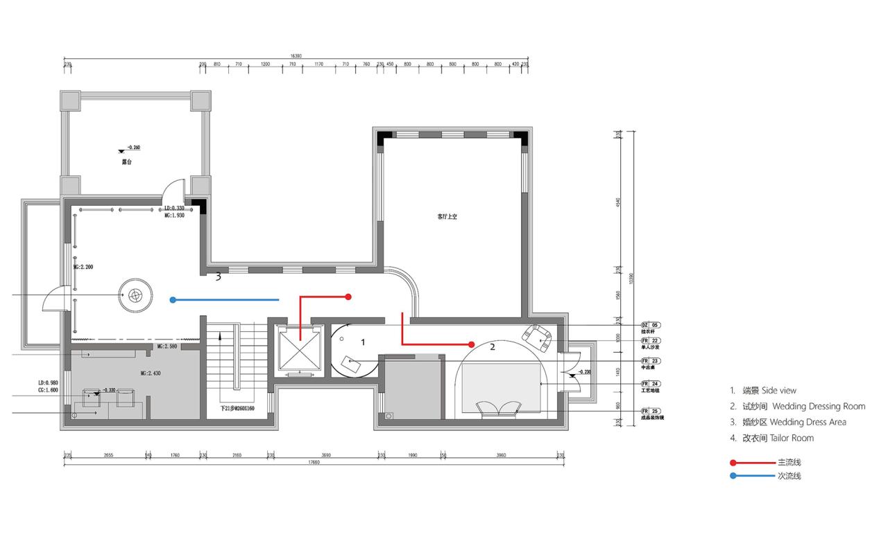
△二层平面图
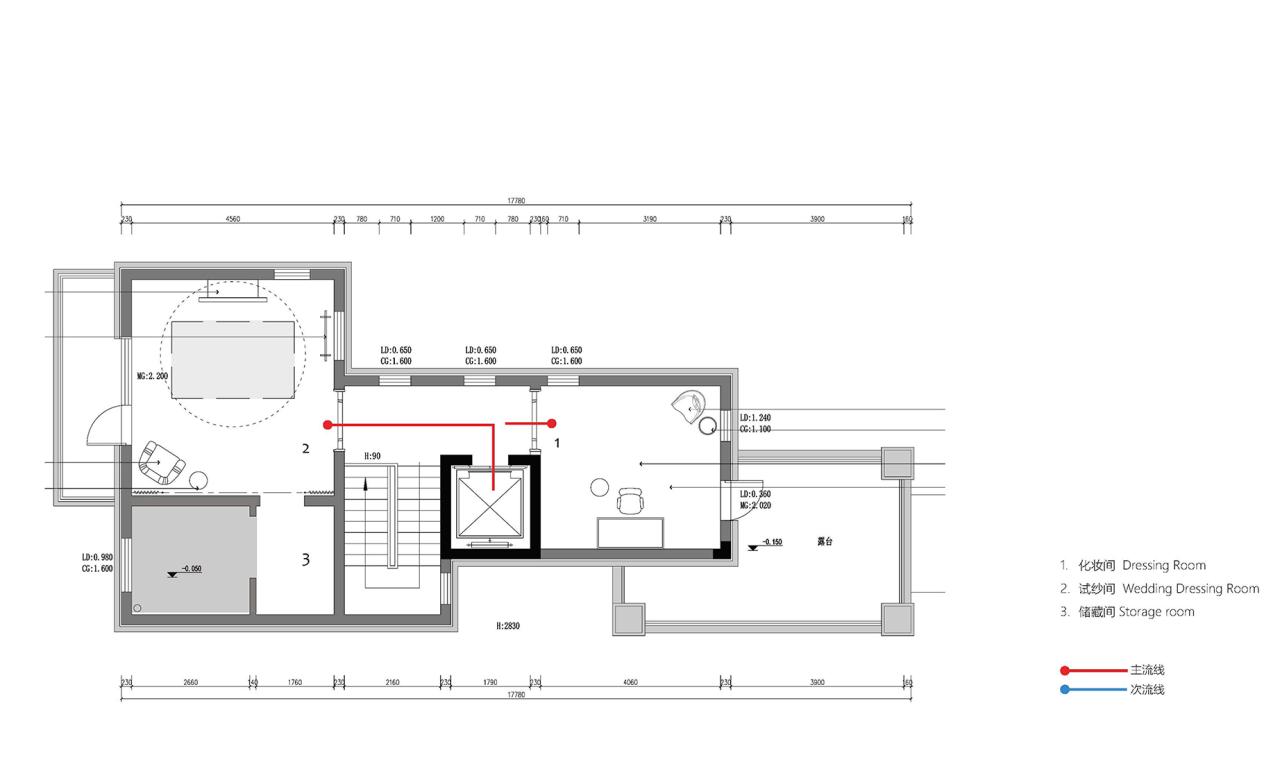
△三层平面图
△流线分析图
项目信息
项目名称:LAN Bridal婚纱集合店
场地地址:中国合肥
项目类型:婚纱体验集合店
设计公司:WUMICHI伍米尺建筑设计事务所
完工日期:Dec 2023
设计团队:曹伟,李裕瑶
面积:350 sqm

BIM建筑网





























