项目背景村口,不仅是一个村落的出入口,更是村落的标志性空间,承载一定的集体记忆。在松阳县大岭根村,有一栋存在多年的公厕占据在村口空间,比邻水域。我们得到机会对此公厕重建,希望不仅能够提升公厕空间品质,更为村口空间塑造场所精神。
虚实相生厕所往往被设计的相对封闭,我们打破这种固有的空间观念。将厕所分为内外“虚实”两个空间层次,“实”为如厕单元空间,相对封闭以保证隐私;“虚”为盥洗空间,半封闭的界面既分隔了内外空间,又保证空间的通透性,实现与自然的互动。
犹抱琵琶半遮面半遮半掩的面具,掩饰住了内部的粗粝。架空的做法,打破了厕所封闭的界面,隔而不隔,界而未界。竹竿编织的幕墙做法使得“面具”是可呼吸的,内外关系进一步变得朦胧暧昧。
近水高台浮光盒以原有河岸挡土墙作为台基,连绵高台之上漂浮着一个“盒子”。钢结构悬挑使得体块架空,实现举重若轻的漂浮感。盒子超脱于地面,又融于自然,落在水中成为倒影。夜暮降临,“盒子”开始散发影影绰绰的光芒,像一个灯塔伫立在水边高台,守候寂静的村庄。
项目图纸
△基地示意图
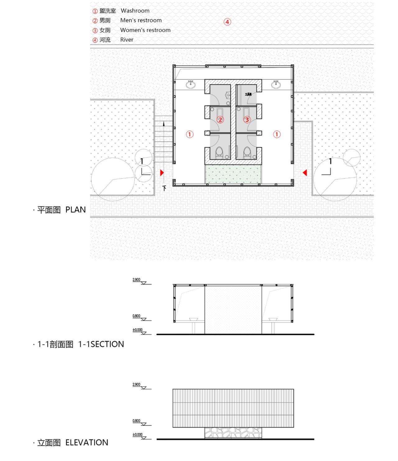
△平面图及剖面图
△爆炸图
△分析图
△分析图
项目信息
建筑师:有氧建筑,元坤设计
面积:47m²
项目年份:2022
摄影师:蔡万成
主创建筑师:蔡万成
设计团队:蔡万成
委托方:松阳大岭根村
地点:丽水
微信公众号:xuebim
关注建筑行业BIM发展、研究建筑新技术,汇集建筑前沿信息!
← 微信扫一扫,关注我们+

BIM建筑网






















