项目位于中国陕西省安康市宁陕县渔湾村,是在村庄聚落中一处酒店。场地内自然资源丰富,环境优美,原生态保护良好,是朱鹮的栖息地。地处梯田层叠的山坡上,山坡外围环绕着毛石堆砌的挡墙。场地前面有开敞的农田景象,令人印象深刻。
在这个项目中,酒店融入到村庄,后续将分几个阶段开发,我们遵循尽量减少对生态系统的破坏目的,创造一种与景观融为一体的设计,以及减轻新建筑对环境产生负担的建造方法。 因此,我们在规划该项目时,尽可能多地使用当地采用建筑材料,并将当地长期使用的工艺融入到我们的建筑中,使得建筑更好的协调村庄的风貌。
在有高差L形场地上,我们规划了一座连续的两层建筑,场地面向开敞的农田。 一楼的地坪同田野的标高一致,设计旨在将视线与前面展开的田野保持齐平,外墙采用了当地熟悉的毛石挡墙,和原有石墙连续,延展为一个整体。
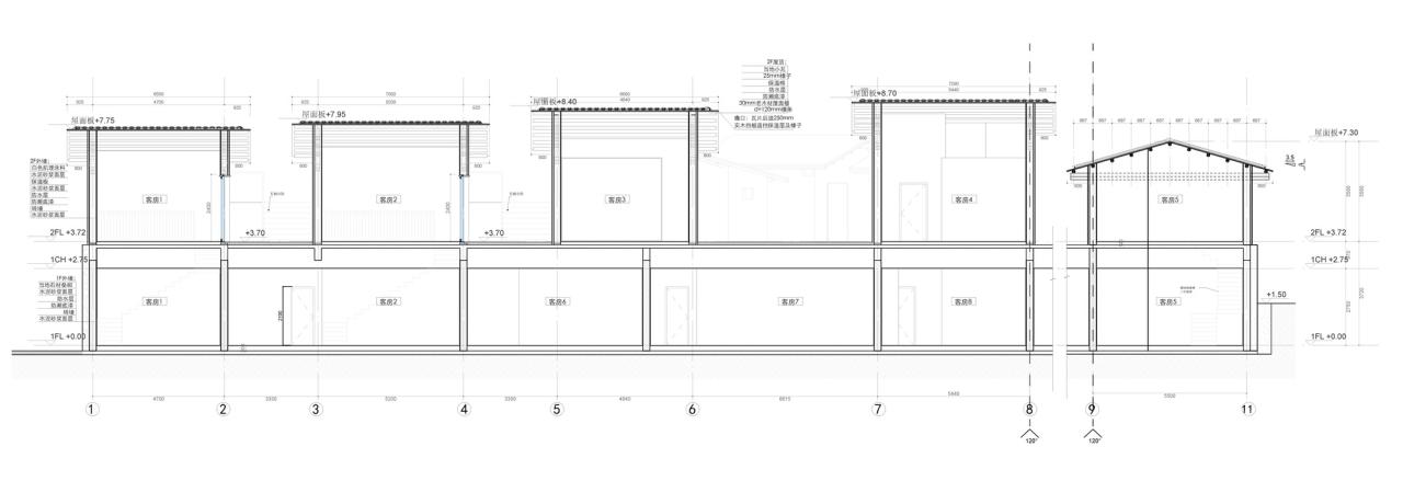
二楼的露台和屋顶构架,与当地建筑类似,椽子均由原木制成,即使是一座新建筑,也能够让建筑融入到原有的村落中。
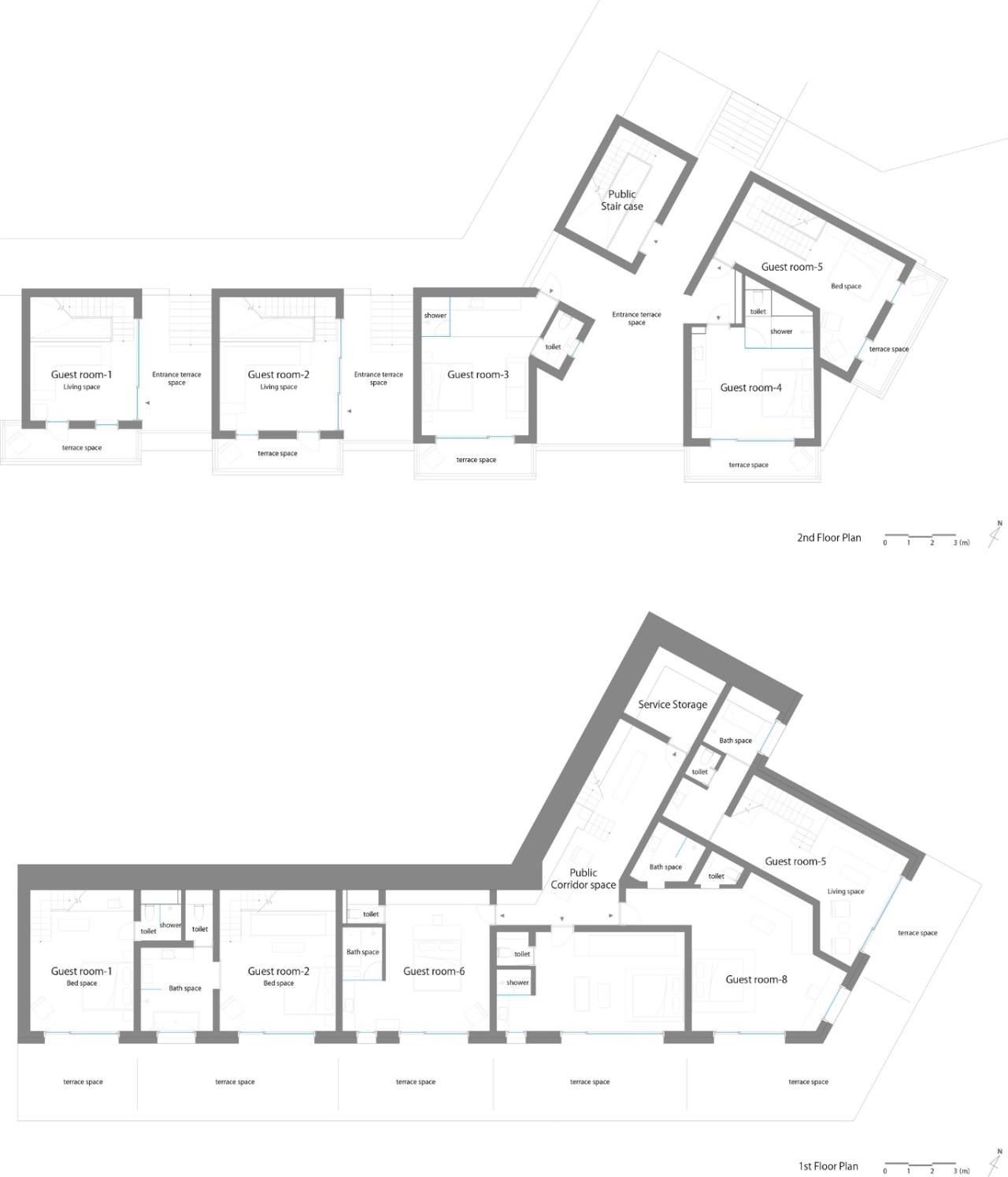
在整体规划中,我们在客房之间插入了一个“间隙”空间作为入口,形成客房间的户外庭院。同时使得建筑的体量分散,以便协调周围的单层住宅的尺度和风貌。 当客人从接待处前往每间客房时,他们通过二楼的“间隙”空间进入客房之前,可以欣赏到外面开阔的田野景观。
此外,客房内部,卧室等私密性要求较高的功能,设置在由石墙包裹内的一层,同时面向梯田。让客人享受舒适入住的同时,还能体验到丰富的外部环境。
项目图纸
△基地位置示意图
△平面图
△剖面图
△立面图
△分析图
项目信息
建筑师:小大建筑设计事务所
面积:544m²
项目年份:2023
摄影师:Keishin Horikoshi / SS
主创设计师:小嶋伸也、小嶋綾香
设计团队:北上紘太郎、林鸿缔、井丹、田哲铭
结构设计:小大建筑
景观设计:小大建筑
施工方(建筑):宁陕县松耀工程有限公司
施工方(室内):陕西一诺装饰装修工程有限公司
功能:民宿
委托方:宁陕县渔湾逸谷田园 鹿柴山集
照明设计:Artelds
地点:安康

BIM建筑网





































