△视频 ©直译建筑
沐沣悦汤泉酒店位于中国陕西的沣西新城,归隐自然原野,又与城市咫尺之遥。它是城市与自然相融合的交界之地,是宁静雅致的世外桃源,设计师通过“自然而然,顺势而为”的建筑哲学,将他打造成一座外在质朴、内在丰富的雅致空间。
△宁静雅致的世外桃源摄影 ©直译建筑
△外在质朴内在丰富的雅致空间摄影 ©直译建筑
△整体鸟瞰摄影 ©直译建筑
"这里塑造的不是建筑而是一个环境"
设计师通过设置一系列墙体重新定义和编辑场所,将空间加以折叠与展开,并将这一 “环境”融进了其所处的更大的环境之中。
△墙体将空间加以折叠与展开摄影 ©直译建筑
△墙体局部摄影 ©直译建筑
从自然中生长出的东方韵味
因地制宜的下沉庭院,让建筑仿佛从自然中生长出来;采用黄土色清水混凝土保持与大地相似的色彩与质感,不冲击和破坏城市风景;还有极具东方韵味的架空“米纸灯笼”茶室、静水面、水楼梯和水面橙色玻璃亭为整个建筑增添了神秘色彩。
△从自然中生长而出的建筑摄影 ©直译建筑
△极具东方韵味的庭院景观摄影 ©直译建筑
△“米纸灯笼”茶室通向水面橙色玻璃亭摄影 ©直译建筑
△透过落地窗看庭院摄影 ©直译建筑
△拱形走廊摄影 ©直译建筑
△黄土色清水混凝土墙面细节摄影 ©李辉
这座3,440平方米建筑规模的酒店为宾客提供6间豪华客房,每间均配备私属室内汤池,同时还设有8个带有私人淋浴和休息区的户外汤池。
△户外汤池摄影 ©陕西沣西新城投资发展有限公司
隐逸安宁的疗愈之地
精致餐厅和茶室,为宾客供应地方特色茶品和美食。酒店的10005平方米用地面积允许相对宽松而舒适的景观布局,包含了花园、水景、大草坪和季节性花海。
酒店营造了隐逸安宁的心理氛围,对于那些处于精神困境中希望寻找放松与疗愈的都市人来说,这里是一个极具吸引力的选择。
△餐厅茶室与凉亭夜景摄影 ©直译建筑
△酒店的季节性花海摄影 ©直译建筑
因地制宜,尊重与利用场地
值得一提的是项目与城市泵站和配电站结合在一起,新的结构需要建立在原有结构之上,受到已有设施的制约。因为泵站深处地下二层,为了减少土方回填,设计师从地下一层开始规划建筑功能,因地制宜,巧妙利用地形,设置了下沉庭院,并通过两个方向的绿坡与地面层相连,既为甲方节省了造价,亦体现出了人工建造对自然场地的尊重与利用。
△下沉庭院通过两个方向的绿坡与地面层相连摄影 ©直译建筑
△与室内大楼梯同步的室外“水楼梯”摄影 ©李辉
△绿坡夜景摄影 ©直译建筑
可持续建筑
另外,项目中设置了温度感应可智能开启的天窗,可促进空气流通,调节室内微气候,同时为室内公共空间引入垂直方向自然光。同时设置了采光筒将自然光引入地下层,达到节能降耗的目的。此外还设有大量种植屋面,净化空气、合理回收利用雨水的同时还能节能降温,为室内空间降低温度。这些环境敏感性设计为日后甲方的长期运营极大地节省了成本,反映了设计对可持续建筑的承诺。
△私密户外汤池兼做采光天井摄影 ©李辉
△室内局部及客房内部摄影 ©直译建筑、©陕西沣西新城投资发展有限公司
项目图纸
△总平面图 ©STUDIO A+
△立面图©STUDIO A+
△立面图©STUDIO A+
△剖面图©STUDIO A+
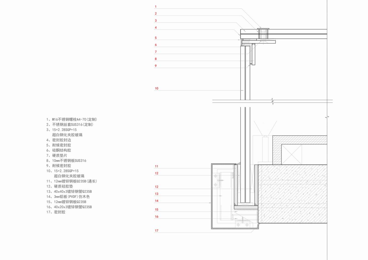
△细部大样©STUDIO A+
△细部大样©STUDIO A+
△细部大样©STUDIO A+
△剖透视图©STUDIO A+
项目信息
项目名称:沐风悦温泉酒店
项目地点:中国,陕西,沣西新城
建筑面积:3,440 sqm
用地面积:10,005 sqm
建筑高度:8.4m
设计团队:STUDIO A+(优加设计)
主创建筑师:王敏
团队成员:王敏、丁梅、王玉良、李辉、王轩、王崇硕、张雯雯、许斌、施国珍、刘科峰等
设计团队:
建筑设计:STUDIO A+(优加设计)
室内设计:公共区域——STUDIO A+(优加设计);客房及汤池——西安西旅文化旅游发展有限公司
结构设计:北京清华同衡规划设计研究院有限公司
机电设计:北京清华同衡规划设计研究院有限公司
幕墙顾问:哈尔滨工业大学建筑设计研究院有限公司
灯光设计顾问:北京宁之境照明设计有限责任公司
景观设计顾问:西安共生建筑景观规划设计有限公司
甲方:陕西沣西新城投资发展有限公司
设计时间:2019年8月-2021年1月
施工时间:2021年4月-2023年8月
施工方:陕西建工沣西建设有限公司
主要材料:黄土色木纹清水混凝土、锈钢板(耐候钢板)、聚碳酸酯板、超白钢化夹胶玻璃做数码打印、极窄边框大型可移动门窗、温控可开启天窗系统、导光筒等
摄影:直译建筑(摄影师:何炼、庞家森),陕西沣西新城投资发展有限公司,李辉
摄像师:庞家森

BIM建筑网









































