项目缘起项目位于彭州老城区的核心地带,区域内有一座千年古寺——龙兴寺和多条历史老街,各类餐馆、茶馆鳞次栉比,是当地最有特点的区域。但改造前整体条件破败,建筑以70,80年代的低矮民居为主,北部有大量已经停产的工业厂区。2019年,政府决定投资主导整个区域的更新,项目的功能主要包括商业、文化、酒店、住宅。
重构彭州城市新中心我们以 “开发成本平衡”和“运营资金平衡”为原则,推导出核心区的总体量与主要功能的体量分配,设计总体布局。并以“功能切分,动线融合”的方式,实现商业与文化功能的“分与合”。
传统空间的现代表达用“城市建筑化”方式体现区域空间的历史文化感我们希望通过表现城市的空间意象来还原城市特征,并从中国传统城市空间中提取了三个相关意象:“十方丛林”、“坡屋顶”与“天际线”。“十方丛林”(北靠山,南平阔,东有林,西有水):以寺庙为中心,北面将高于寺内建筑的博物馆布置于寺院之后,南面将现状道路还原为前广场,东面将废弃的工厂改造成绿地,西面则从场地北部引水形成一条贯穿整个区域的水系。“坡屋顶”:直到90年代,当地很多区域还维持着坡屋顶的城市形象,这也是我们采用坡屋顶的主要原因。为了强调这种空间意象,这些层叠的屋顶被打造成了一个独立的空间,通过步道与平台使其贯穿于整个核心区,让人感受传统城市特有的视觉冲击。
“天际线”:传统城市中低矮的民居和突出天际线的宗庙、钟鼓楼等共同构成了一座城市独特的形象。在我们的设计中,核心区大部分商业建筑都不高于三层,与传统城市中的民居相似。这些建筑的顶层则是独立布置的几栋文化建筑,它们体量较大,立面被设计为两边翘起的弧形,透过玻璃能看到内部屋顶悬挑的结构,表现了传统城市中庙宇与钟鼓楼檐角飞起的形象。
打造立体的景观公共空间,体现符合传统美学的尺度与体量现代功能的大空间需求几乎占整个项目的八成,以传统方式很难将它们隐藏。因此我们尝试将重要的步行公共空间与景观设计密切结合进行立体化处理,使人行走其中视线内尽可能是符合传统美学的画面。一个弧形的大连廊将区域南北分开,围合出一片开阔的水面。并通过控制靠近水面建筑的层高缩小视线内的尺度感;再将靠近水面的庭院面向水面打开,形成三合院空间,达到周边视线最大化。场地内有一条由南向北穿过的老街名为“龙兴街”,自清代就已存在,为了还原其风貌和空间尺度,我们保留了它的路径,同时将路面整体下沉3米,用当地的老石板进行重铺。
还原区域内的生活场景,构建有“烟火气”的城市空间彭州气候冬暖夏热,老人们尤其喜欢室外活动。我们专门在水系上设计了一个供他们放松休息的曲水长廊,并在上桥的坡道上设计了温暖防滑的木质扶手。在龙兴寺东南侧,有一条老街名为“桂花街”,街道两边布满了小餐馆和熟食铺子,建筑风格也颇具地方特色。为了保留街上的“烟火气”,我们建议商管将其打造成当地的美食一条街。
因地制宜”体现区域的记忆与文化据龙兴寺方丈所言,现今周边有银杏树的地方都是寺院的范围。我们便以龙兴宝塔为中心,将屋顶、银杏的意象向外扩散,使银杏成为禅意的载体。并“挤出”空间新建了一个用于讲经授课的佛教禅院,还在其东侧,设计了一处下沉的流觞亭。场地内有很多老建筑,如果将它们都保留下来,则无法满足停车需求,如果将其拆除又损坏了彭州的城市记忆。我们咨询文保顾问后,选择了相对折衷的方式:按照建筑历史价值的高低分类,并采取差异化的保护措施。我们在典型建筑上沿用了川西较为常见的穿斗式结构和山墙纹理,但因材料防火性能问题只能将竹子用同色铝质材料代替。考虑到瓦片用量极大,我们决定选用当地材料,质地光滑但颜色较浅。虽然最终山墙、青瓦与立面颜色都比设计时略浅,但与当地植物相映衬却体现出一种和谐。
总结在设计过程中,我们始终在解决两个问题:一是试图从现代建筑功能的需求下,将区域塑造为具有传统形象和宜人尺度的“小空间”;二是平衡商业与文化功能之间的矛盾,塑造一个有“烟火气”的新型商业文化街区。希望这次尝试能为这座历史悠久的城市注入源源不断的生机与活力。
项目图纸
△手绘图
△ 功能示意图
△ 功能示意图
△ 功能示意图
△ 功能示意图
△路线分析图
△路线分析图
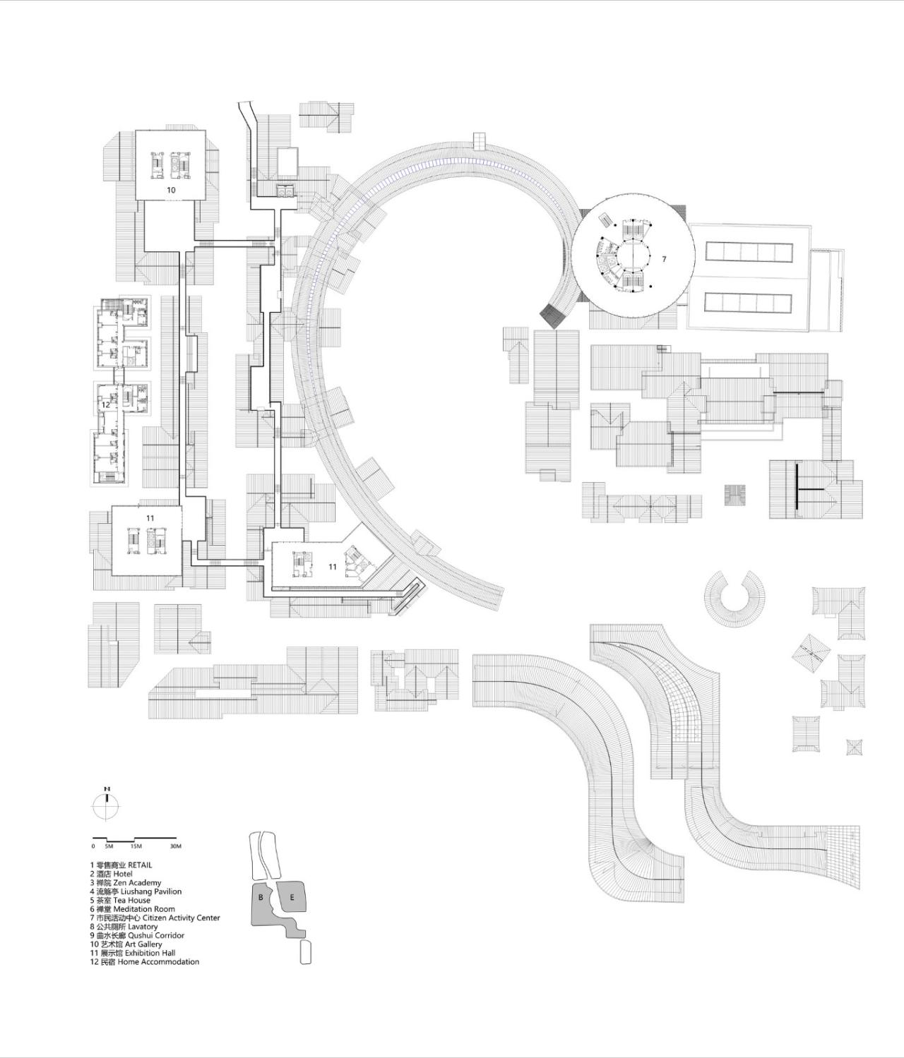
△总平面图
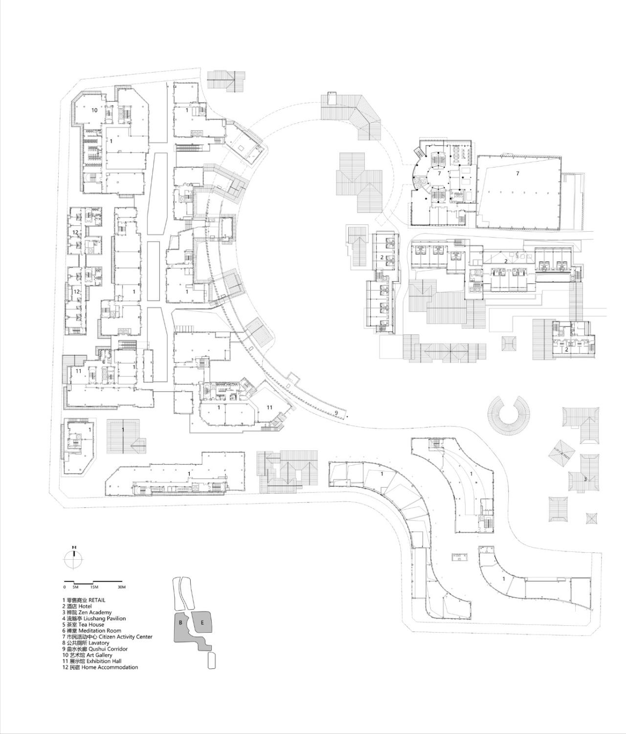
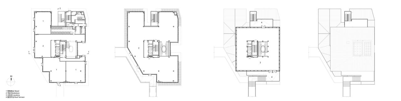
△平面图
△平面图
△平面图
△平面图
△立面图
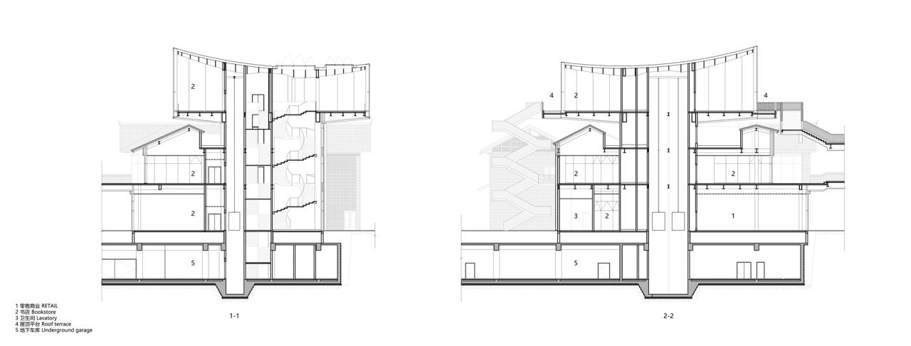
△剖面图
△细部结构大样图
△剖透视图
△剖透视图
项目信息
建筑师: BIAD-ASA Studio
面积: 157768 m²
项目年份: 2023
摄影师:存在建筑-建筑摄影
厂家: 彭州市瓦子工艺陶瓷有限责任公司, 彭州市瓦子工艺陶瓷有限责任公司, 重庆中南巨隆实业集团股份有限公司
主创设计师: 尹荦懿
规划/城市设计: 郭晟楠、张晓峰、李伟、汤欣达、罗爽、尚夕云
建筑设计: 徐丰、孔祥源、陈芳菲、康宁、程丽、尼宁、李建伟、王昊楠
景观设计: 丁玲、苏頔、翟雪、杨洁、陈一心
商业设计: 何欣、林建先、罗舒文、王平
室内设计: 李建军、孔祥源
施工图设计: ABE地块建筑:李先荣、李伟、高巍、张博、宋建豪 CD地块建筑:周虹、周润、孔维、赵娜、裴燕、王悦星、李思佳、杨鹏、王翔宇 结构:段世昌、卜龙瑰、高志军、唐艺峤、邢珏蕙、王立涛、白子轩 机电:孙亮、梁鹏、郑甲珊、张沫、赵萌、阎博萱
商业策划团队: 戴德梁行、中盈仁合
室内设计咨询: 沈若凡ARCHIEE(巴黎)事务所、山隐悦界空间设计有限公司
景观设计咨询: 北京源树景观规划设计事务所
标识设计团队: 北京飞瑞肯拓广告有限公司
灯光设计团队: TS 倘思照明
绿色建筑设计咨询: THAD
文保咨询团队: 更生历史保护事务所
施工方: 中建三局一公司
委托方: 成都濛江投资集团有限公司
地点: 成都

BIM建筑网











































