苏州大学高邮实验学校是一所包含8轨48班小学及15轨45班初中的九年义务教育学校。我们把校园分为清晰的三部分,由南至北依次为:由读书廊串连的公共图书馆、中小学教学楼以及开放的公共教学区。北侧公共教学区作为校园展现给城市的第一界面,我们通过连续的大屋面将多功能餐厅、剧场、风雨操场、游泳馆等文体设施融合在一起,其完整的建筑形体在该区域形成了清晰的城市界面。同时我们试图通过一种模糊型边界空间的设计,让学校以一种开放的姿态与社会形成沟通。
北区一楼架空层的对外界面以落地安全防爆玻璃(实际围墙)为主,只在安全防护高度以上开启窗户。玻璃内部的门厅、餐厅及舞蹈教室成为接送时学生们的临时等待与缓冲空间,玻璃外部的架空区则成为家长的等候空间。南侧则利用河道清晰分隔校内校外,临河是阳光充足的读书长廊与图书馆。作为图书馆阅读空间外溢的读书廊,成为学生课余活动的休息廊,也是学生放学时的等待廊。
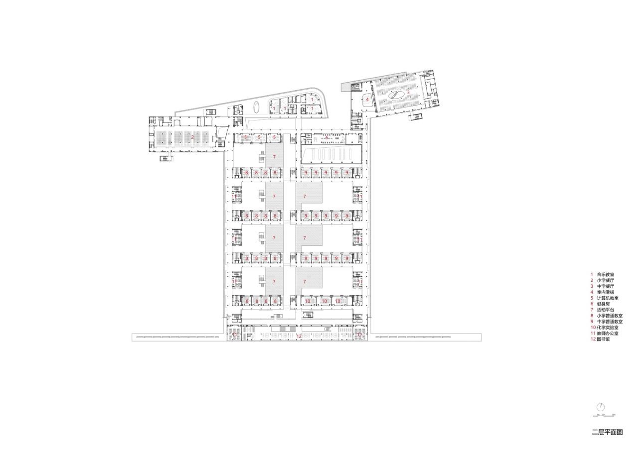
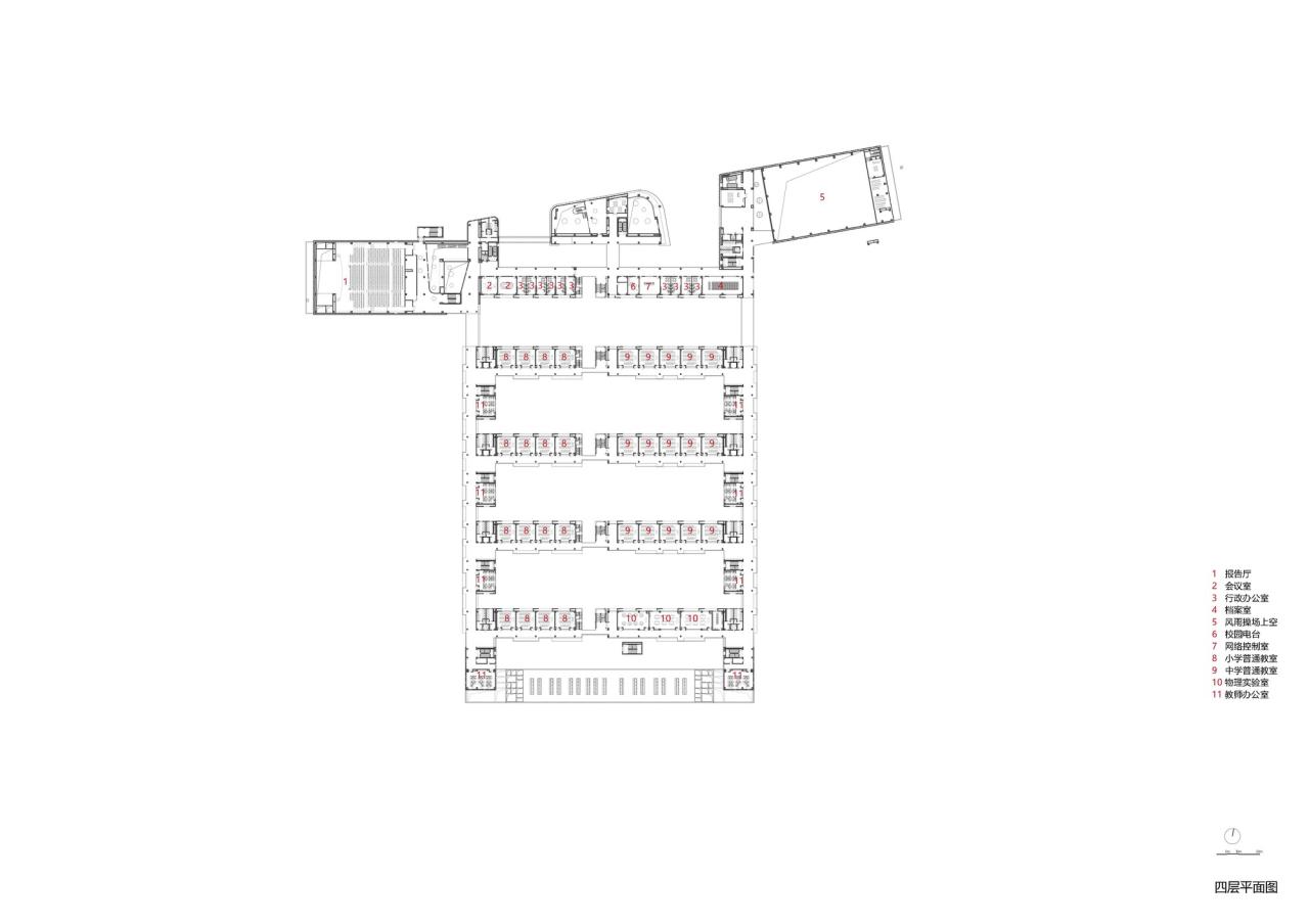
水网体系是苏州与高邮共有的地域特色。贯穿南北的中央文化水街,在不阻碍视线通畅的同时自然清晰的分隔了小学部与初中部。水街两侧串联起的各类专用教室和公共教学用房,让中小学生在充满江南水乡建筑特征的空间氛围里彼此间看与被看,消解了物理隔离带来的陌生感。
走廊既是日常通行空间,也是自由穿梭、驻足观望的场所,是学生与学生之间,学生与老师之间互动交流的重要空间。
图书馆首层南侧窗户边有几个围合的下沉空间,可以作为小组教学的创意教室,也可以是学生自由阅读的场所。室内通过木质大台阶联系上下,书架沿台阶侧边拾级而上,为学生提供灵活自由的阅读空间。为了增加趣味性,大台阶边设计了一个“山洞”一样的空间,洞穴般包裹的空间感给阅读带来更多的空间体验。
项目图纸
项目信息
建筑师:九城都市建筑
面积:99812m²
项目年份:2021
摄影师:建筑译者姚力
主创设计师:张应鹏
设计团队:黄志强、钱舟、高腾、刘凤勤、沈春华、钱宇川、夏润钢、宋如意、蒋皓、李红星、陈允许、王永杰、王俊、张贵德、孙家锋、姜进峰、胡鑫、李琦波、梁瑜萌
施工方:江苏省华建建设股份有限公司
委托方:高邮市经济发展集团有限公司
结构设计:九城都市建筑设计有限公司
地点:扬州

BIM建筑网














































