“如果说文保建筑集中展现了文化与历史价值,其周遭的日常空间语境就是丰富其价值的血肉,同样具有延续的意义。”
——陈斌鑫
goa大象设计总建筑师
里直街位于绍兴上虞老城区,是曹娥庙历史文化街区的一部分。其所在的“老坝底”区域与漕运文化有着千丝万缕的关联,承载着老上虞人的集体记忆。随着上虞新城在城市北部的崛起,老城区面临着建筑破败、道路拥塞以及人口外流等问题,旧城更新计划就此展开。历时三年光阴,里直街从一条传统的集镇街道转变为集文商旅于一体的特色街道,作为“老城会客厅”焕发出新的活力。
非名录内的寻常历史地段
△ 场地位置及周边肌理原状 ©goa大象设计
△ 场地及历史建筑概况 ©goa大象设计
约200m长的里直街背后是一段漫长而混杂的生活记忆,街巷两侧留有自清末民国至九十年代叠加建造的低矮建筑,其中散落振华旅馆、大东轮船公司、大王庙和陈宗海道台府四座文保建筑,此外多为民宅及小街铺。
作为一段已孤立破败、非编制在案的老街,最初的规划条例仅要求散点保留四座文保建筑,此外的街道建筑物均允许全部拆除,退让为运河公园,若如此做,承载了集体记忆的空间载体将不复存在。
△ 老街原状及更新后俯拍 ©goa大象设计
立项之初,开发团队对里直街展开“拆与留”的思辨。团队认为:与许多寻常集镇街巷类同,里直街虽不在保护名录内,却能够“较完整地体现出某一历史时期传统风貌和民族地方特色”,具有其作为“历史地段”的价值。[1]
△ 老街原状及更新后鸟瞰 ©goa大象设计
基于此,团队上下达成一致,在规划要求的基础上建立更严格的更新条件设定,在保留场地肌理和风貌的基础上进行功能再生,使其维系城镇的地方认同,反哺城市公共生活。
承载生活记忆的空间褶皱
街道中建筑年代丰富,从清末民国木结构台门类建筑到建国后的砖瓦水泥墙,从七八十年代砖混预制板房到九十年代之后陆续出现的小洋楼,无法以单一的时期或风格予以概括。
同时,老街目前所面临的诸多问题需要被正视。伴随建国后的人口增加,街巷界面被挤压,逐渐趋于无序和杂乱。一方面,长期无序加建导致的拥塞空间需要被疏导;另一方面,被生活所塑造出的肌理和场所,构建了街道的生动性和记忆的独特性,需要被予以恰当的保留。
△ 开街前的老街 ©goa大象设计
设计团队通过多次场地踏勘辨识街道上值得保留的片段,以此为信息基础建立疏导与保留之间的平衡。更新设计采用总体肌理-空间关系-细部构件三个层次的策略:
1)萧绍运河在里直街段向北内凹,拥有柔和的街巷曲线与空间肌理,整个场地具有30厘米的高差,设计团队保留街道肌理,重点保留其非正交平面系统及微弱高差。
△ 开街前的老街 ©goa大象设计
2)街道中建筑的结构与形制随年代不断叠加,呈现出丰富的空间关系,有别于现代城市中统一规划的街区,富有人情味。设计团队对这些空间关系的细节进行辩证性的筛选和延续。例如,某2层砖混建筑与街巷之间的院墙,在转角位置特意做了圆弧的处理,以避免转角干扰对门的邻居,这一特别的细节是里直街过去邻里关系的映射,其空间关系被特意保留。
△ 某带弧形院墙民宅改造前后 ©goa大象设计
3)设计还保留了一些构件与要素,包括运河边的泊坎、矮墙、河埠头、老树、街上的门牌、花砖墙、老家具等,在这些富有年代感的构件与要素之外,属于现代工业体系的玻璃砖墙、铝板盒子的融入则预示新功能的置入。
△ 一些构件(电线杆、院墙老砖等)回收利用于更新后的街道©goa大象设计
功能的再生与公共性的提升
老街在空间结构、安全性、通达性上均无法满足现代商业及文化空间的使用标准,设计团队在尊重原有群落空间肌理、建筑错落关系的基础上,拆除复用率较低的加建结构、整合细碎的使用空间、加高室内净高、加强河岸开放性,使老街胜任现代化运营的需要。
△ 开街后实景 ©goa大象设计
四座文保建筑经修缮改造后成为街区中的公共节点。例如,大王庙被改造为兼具演出、集会、展陈功能的复合活动空间,陈宗海道台府则成为挖掘本地文化、举办各类文化活动的公益书院。沿街商铺面积在40㎡-500㎡不等,包括大型院落式商铺、单双层商铺等多元形式,满足后续运营的可变性。
原有民宅贴驳岸建造,运河沿岸亲水空间并未得到有效挖掘与利用。设计团队在整理驳岸场地后,增建院落观景平台、沿河观赏步道、码头堤岸与入街景观广场,形成滨水景观系统,提升区域的公共性。
△ 街道上的人群活动 ©goa大象设计
△ 道台书院(陈宗海道台府改造后)内院 ©goa大象设计
△沿河夜景 ©goa大象设计
材料与工艺的新旧并置
浙东绍兴民居以轻薄檐口为特色,不仅节省瓦片,更具有轻盈的美感。改建后,建筑檐口采用混凝土构造改善防水,以表面单层盖瓦、搭五露五的构造设计延续原檐口“轻盈感”的特质。
设计以改良工艺运用老街质朴而富有年代感的既有材料。例如,以干粘石塑造墙面并做抗裂处理,以水磨石和水洗石分别处理踢脚线和窗套。老街中最富有材料特色的是一幢80年代建造的养老院建筑,改造过程中其墙面粘玻璃渣工艺被延续下来,并通过选用无棱角玻璃渣、采用压实做法等手段改进工艺、规避人员划伤。
△ 墙面做法工艺样板 ©goa大象设计
△ 养老院建筑改造后立面 ©goa大象设计
东部入街的片墙构成人们进入街道的第一印象。设计团队于落架大修时采用空斗砖墙的砌筑方式并于青砖中散点布置透光混凝土砖,以此隐喻里直街新旧混杂的更新手法。
△ 入口山墙原状及落架大修后 ©goa大象设计
△ 墙面细部 ©goa大象设计
2023年5月,里直街开街运营, 昔日运河商贾贸易繁荣的景象,重现于新生的里直街。一批老街坊受邀来到故地探访,82岁的原住民发出感慨:“阔别四年重游故地,旧时模样依旧清晰。”
[1] 王景慧.历史地段保护的概念和作法[J].城市规划,1998,(03):34-36+63.
技术图纸
△总平面图©goa大象设计
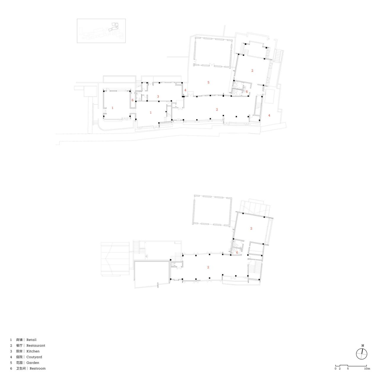
△ 首层组合平面图(改造前)©goa大象设计
△ 首层组合平面图(改造后)©goa大象设计
△ 1#楼一二层平面图(改造后)©goa大象设计
△ 1#楼东立面对比图©goa大象设计
△ 10#楼沿街北立面对比图©goa大象设计
△ 13#楼沿街北立面图(改造后)©goa大象设计
△ 13#楼剖面图(改造后)©goa大象设计
△ 1#楼墙身大样图©goa大象设计
项目信息
项目名称:里直街有机更新
项目地点:浙江省绍兴市
业主:浙江省上虞曹娥江旅游度假区管理委员会
建筑设计:goa大象设计
景观设计:杭州蓝颂园林景观设计有限公司
设计/竣工:2019 / 2022
建筑面积:4300㎡
摄影:goa大象设计

BIM建筑网































