「动力车间」位于上海浦东新区金桥板块的EKA•天物艺术街区内,原址为上世纪五六十年代中船航海仪器厂-462栋设备动力车间。受业主方委托对该地区进行整体规划改造设计。作为园区的核心建筑,在更新与活化中,既要尊重历史底蕴,尽可能保留其原本的文化记忆,又要满足当代商业、生活方式等多功能业态的需求,为老建筑注入新活力,展开一场跨越时空的对话。
△「动力车间」整体质朴自然,兼具几分工业风,仿佛跃然水上(冬)©苏圣亮
「动力车间」保留了原有的双人字梁结构和红瓦坡屋顶,外立面使用大面积清水红砖,风格质朴自然,搭配设计黑色耐候钢板制成的屋檐与窗台,让建筑不失亲和感的同时,重拾了几分原有的工业气息。整个建筑体块通过穿插、叠加、排列、镂空设计等多种方式,营造了移步异景、层次丰富的感官体验。向南临水一面,通过延展清水红砖地面,使露天外摆区仿佛漂浮于水上,模糊了建筑本体与自然的边界,充分展示出本哲建筑的设计理念:关注建筑与人和自然的关系。
△「动力车间」整体鸟瞰(夏)©王策
△商户入驻前「动力车间」正南立面(夏)©王策
△建筑南面多层次的视觉体验,细节丰富。(夏)©王策
△建筑细部及外摆区(夏)©王策
△EKA·天物艺术街区 ©本哲建筑
△建筑原貌 ©本哲建筑
底层多为开放式设计,避免二次装修给建筑带来的伤害,让建筑可持续发展。建筑南面左右两侧各外置一处斜插式楼梯,方便向楼上的商户引流,同时令外立面视觉更为丰富。中间部分二楼向外插出贯通式的长条黑色耐候钢框架玻璃窗,无遮挡地向外展示内部的挑高空间,整体通透感十足,兼具工业风;一楼则巧妙运用折线造型手法,为建筑增添优雅与秩序感。
△「半仓」、「动力车间」在EKA·天物艺术街区内之间的关系(夏) ©王策
△南面左侧楼梯与二楼阳台隔空相望,增强空间互动感和趣味性(夏) ©王策
△建筑南面右侧同样外置斜插式楼梯,二楼向内叠级设计小阳台,整体凹凸有致(夏) ©王策
△南面右侧二楼外立面使用镂空设计,虚实结合,让空间互相对话(冬 ) ©苏圣亮
△东南外置楼梯和建筑空间之间的关系(冬)©苏圣亮
东南拐角处插入一钢框玻璃盒子,引入自然光线。同时在南面山墙中部做切口打开,设置悬空阳台,形成虚实对比,山墙下部采用向内叠级,玻璃盒子好似浮在空中,造型别致,为老建筑注入时代脉搏。
△「动力车间」东南角(冬)©苏圣亮
△东南角悬浮的玻璃盒子(冬)©苏圣亮
△隐逸在树林中的「动力车间」(冬)©苏圣亮
△东南拐角玻璃盒子细部(夏)©王策
建筑北立面朝向主街,采用现代简约风格,通过大面积的平面长条玻璃窗与插出的条状黑色耐候钢板阳台,塑造了流畅的整体视觉体验。同时,局部采用的连续叠级式造型、玻璃砖与红砖的交叉排列,以及别具匠心的钢网面小阳台,让北立面层次更为丰富,造型更为独特。
△「动力车间」与东面玻璃连廊贯通(夏)©王策
△开放式的底层设计(夏)©王策
△EKA·天物艺术街区中的「动力车间」(冬)©苏圣亮
△清晨独有的光影韵味(冬)©苏圣亮
△北立面局部(夏)©王策
△「动力车间」北立面建筑细节(夏)©王策
为了提升建筑与整个艺术街区的互动体验,「动力车间」在东西两侧均设置了空中连廊,人们可以直接由此进入临近的建筑空间。其中,西面的连廊位于建筑西端的庭院之中,采用黑色耐候钢板制成,左右各开方形窗,仿佛一个空中阳台,与建筑本身的红砖形成冷与暖、现代与传统的视觉对比。东面的连廊因穿梭在树木掩映的绿荫之中,特意采用钢构透明玻璃材质,让建筑与人、自然融为一体。
△合院里的连廊(冬)©苏圣亮
△合院中的一棵树(冬)©苏圣亮
建筑室内设有挑高中庭,老木梁结构被暴露,增加了多个高低阳台,错落有致,阳光透过狭长天窗 ,洒进室内,明亮、通透,过去与当下在这里交错重叠。旧墙面开有连续圆形窗孔,就像船舱的舷窗 ,引导人们一探究竟。岁月留下的斑驳粗犷的旧红砖墙与石灰肌理在光影的变化中显现出不同时期的历史印记。
△阳光从天窗洒进,明亮、温暖。©苏圣亮
△水磨石楼梯贯穿整个中庭 ©苏圣亮
△在中庭连廊上穿行 ©苏圣亮
△建筑室内细部 ©苏圣亮
室内主要以水磨石、拼色原木、红砖为肌理,与外建筑表皮相呼应,暖色系的水磨石楼梯在建筑空间中穿行,迂回灵动。原木装饰直达电梯、走廊、连廊与温润的水磨石,古朴又温暖,身处室内亦可感受自然的律动。
△温暖的水磨石楼梯在室内迂回穿梭 ©苏圣亮
△水磨石楼梯细部 ©王策
△透过舷窗,一探究竟 ©王策
△拼色原木外观的直达电梯 ©苏圣亮
△建筑、人与自然之间的对话 ©苏圣亮
整个空间动静相宜,温润有力,故名「动力车间」。
△冬季时节的「动力车间」南主立面(冬) ©苏圣亮
△破晓时分的「动力车间」与中央水池(冬) ©苏圣亮
项目图纸
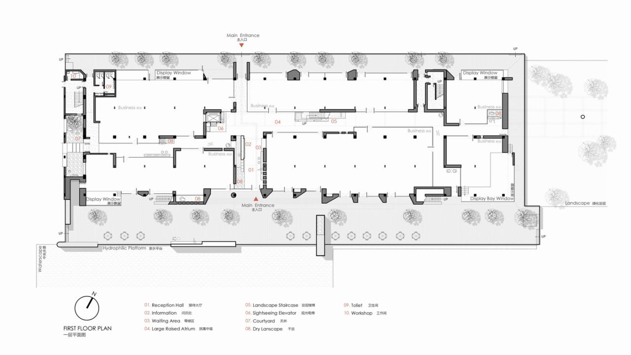
△一层平面图 ©本哲建筑
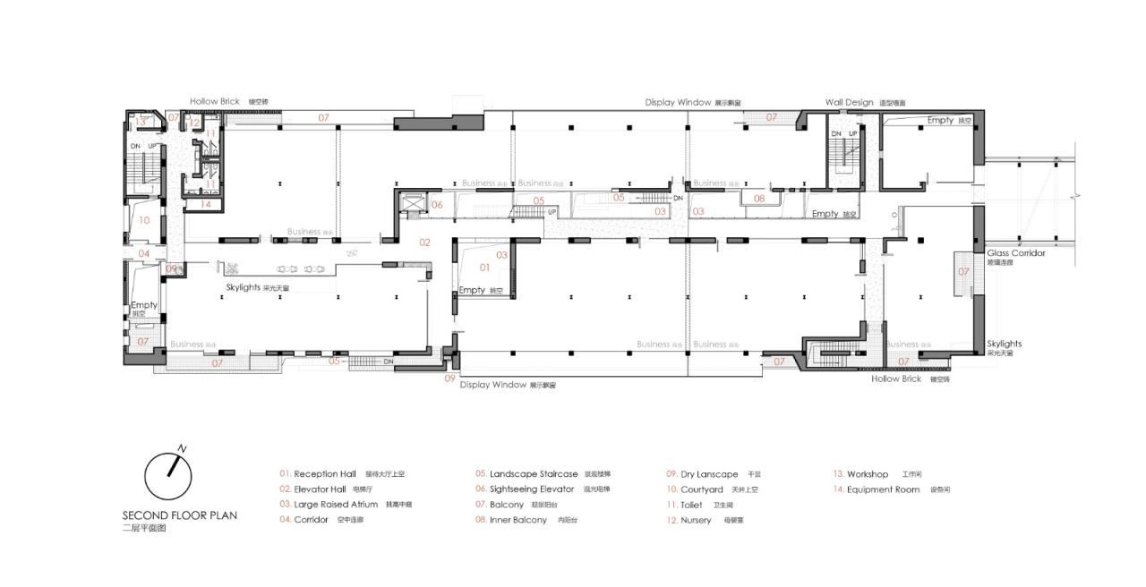
△二层平面图 ©本哲建筑
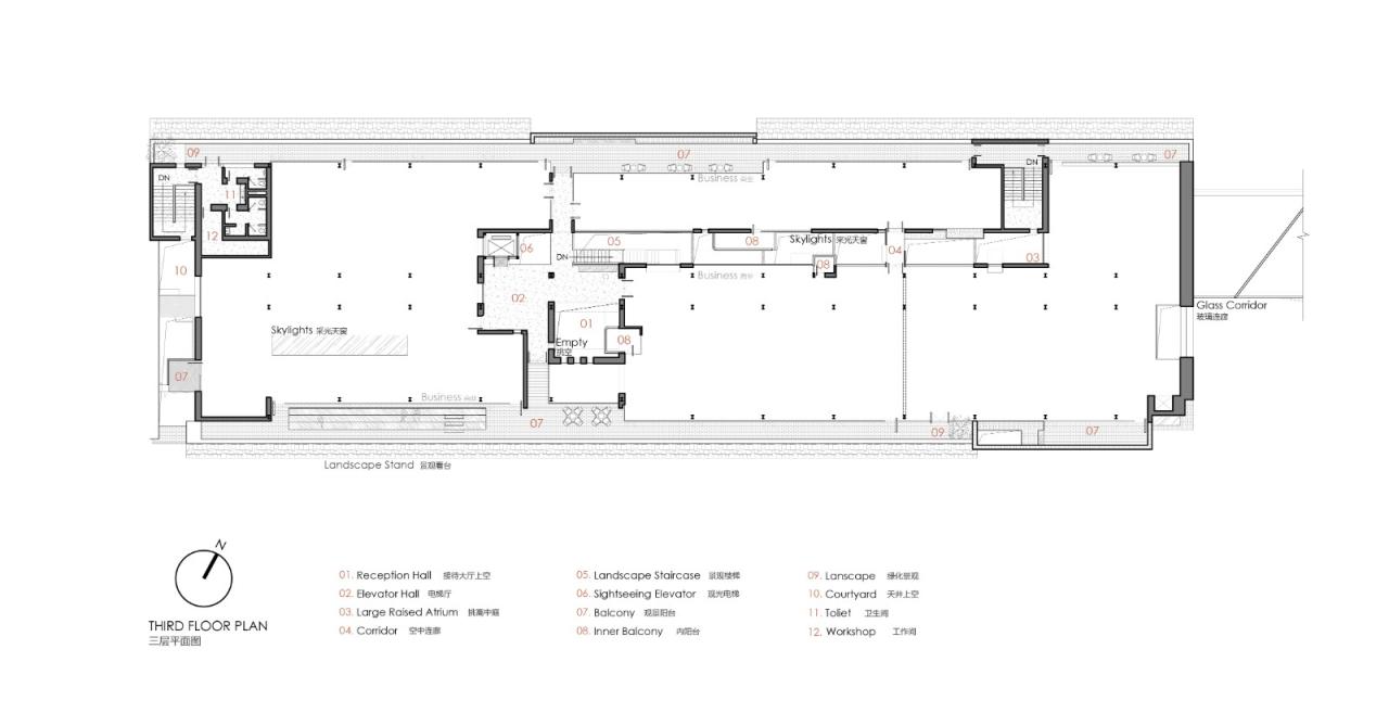
△三层平面图 ©本哲建筑
△北立面图 ©本哲建筑
△南立面图 ©本哲建筑
△东立面图 ©本哲建筑
△剖面图 ©本哲建筑
△剖面图 ©本哲建筑
△剖面图 ©本哲建筑
项目信息
项目名称:动力车间
项目地点:中国上海市浦东新区金桥路535号(EKA·天物)
建筑/室内/景观设计:本哲建筑
主创建筑师:蒋华健
设计团队:姚瑞艮 林桐
建筑面积:5280 m²
占地面积:1920㎡
设计时间:2022年2月-2022年9月
竣工时间:2023年8月
业主方:上海嘉韵投资管理发展有限公司
结构设计:上海同宴土木工程咨询有限公司
摄影:苏圣亮 王策

BIM建筑网














































