青浦区兰生·思源中学坐落于上海市青浦区淀惠路9号,占地面积约54亩,建筑面积约25000平方米,可容纳36个教学班。
兰生·思源中学以青浦地区特有的生态环境为底色,以多层次的立体公共交流空间为核心,在用地条件极为苛刻的条件下,打造了一所功能分区明确、空间布局合理、环境景观精心设计、形象鲜明,满足新教改走班教学要求,同时又具有人文气息的校园建筑。
地处城市湾头与洼地
本项目基地位于于青浦主城区西侧淀山湖大道与西大盈港交汇处,是“双桥下的一片洼地”,北侧和东侧紧邻淀惠路,南邻淀山湖大道,淀惠路东侧部分从淀山湖大道下穿经过。
基地东侧及北侧均有河流,有天然的景观优势,可以充分利用。
△项目远景鸟瞰图 ©彭晓凯 张毅
多重限制条件的高密度校园实现
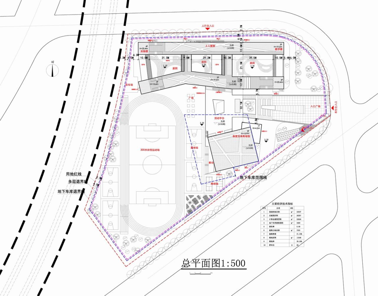
基地总体地势平坦。占地3.35万平方米,基地南北向长228米,东西向长238米,呈不规则梯形。
考虑到操场的朝向、教学楼间距等硬性条件的限制,总图设计的选择便有了必然的答案:
△方案生成 ©创霖-泽柏
△总平面图 ©创霖-泽柏
△场地鸟瞰 ©彭晓凯 张毅
面向城市的积极界面
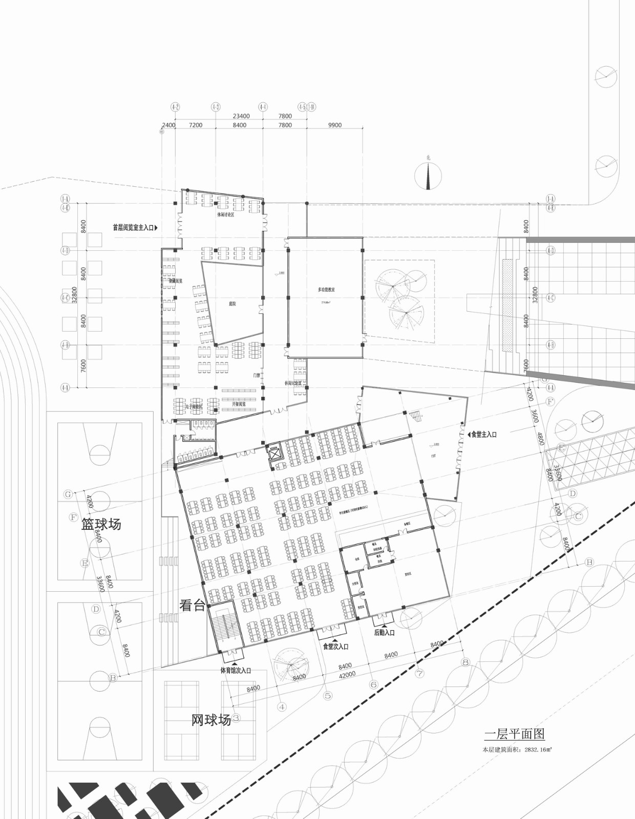
(1)基地南侧的淀山湖大道及平和学校是本项目面向城市最重要的一个界面,同时,沿桥下的空间日照不良,因而我们将体育馆布置于此,旋转一定角度,形成来往车辆能看见的标志性建筑。
△白天与傍晚的校园 ©彭晓凯 张毅
(2)东西向作为基地的主入口方向,利用入口广场 – 交流大阶梯 – 共享平台 – 景观操场形成一条贯穿校园中央平缓的视线通廊。
△傍晚的教学楼 ©彭晓凯 张毅
△交流大台阶 ©彭晓凯 张毅
△操场看台 ©彭晓凯 张毅
(3)而紧邻淀惠路的北侧较为安静,同时又作为家长接送孩子的主要出入口,我们布置了长向教学楼,结合局部架空,作为面向城市的开放主立面。
△北侧架空入口 ©彭晓凯 张毅
面向走班教学的功能组织
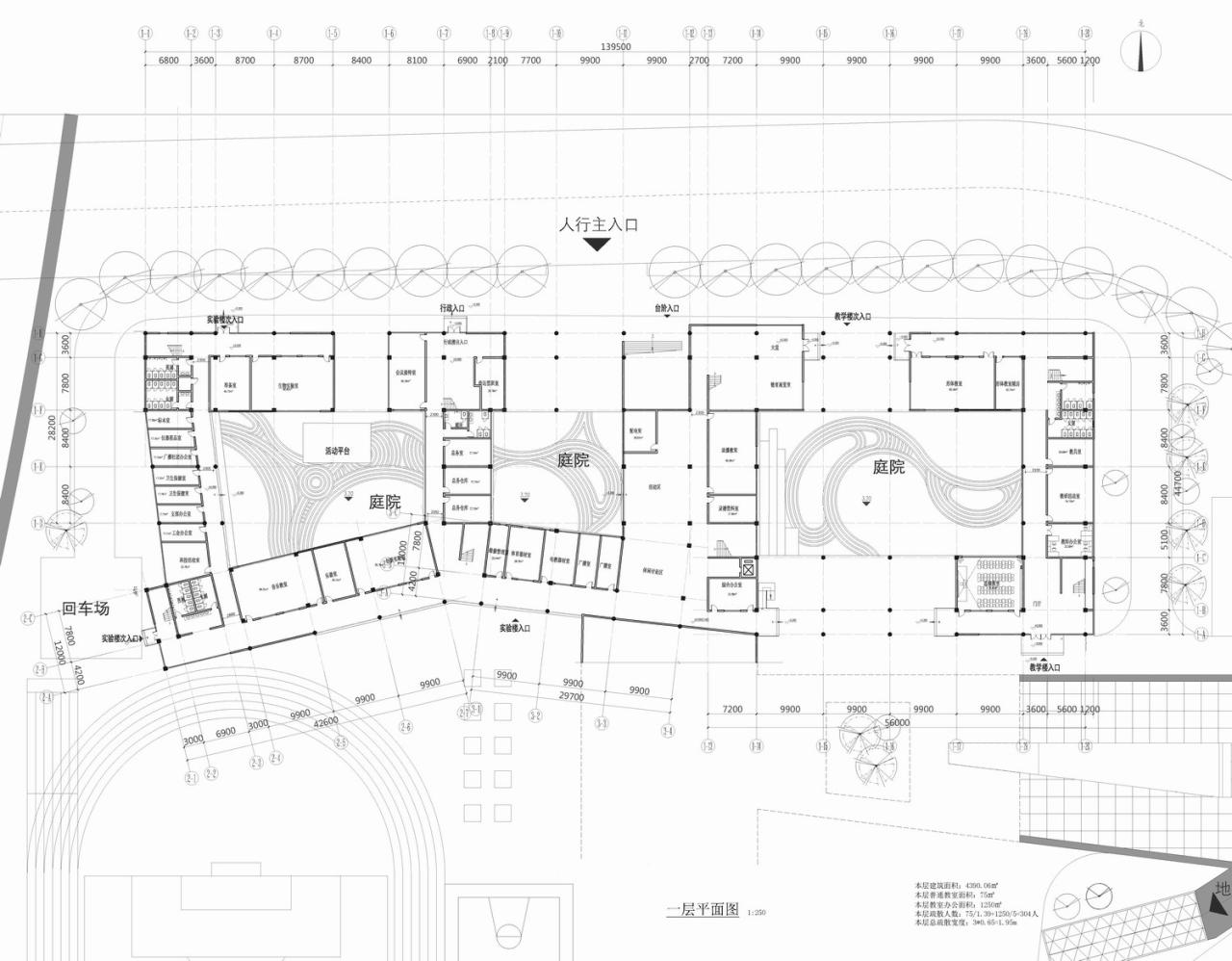
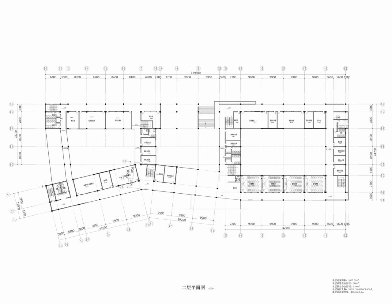
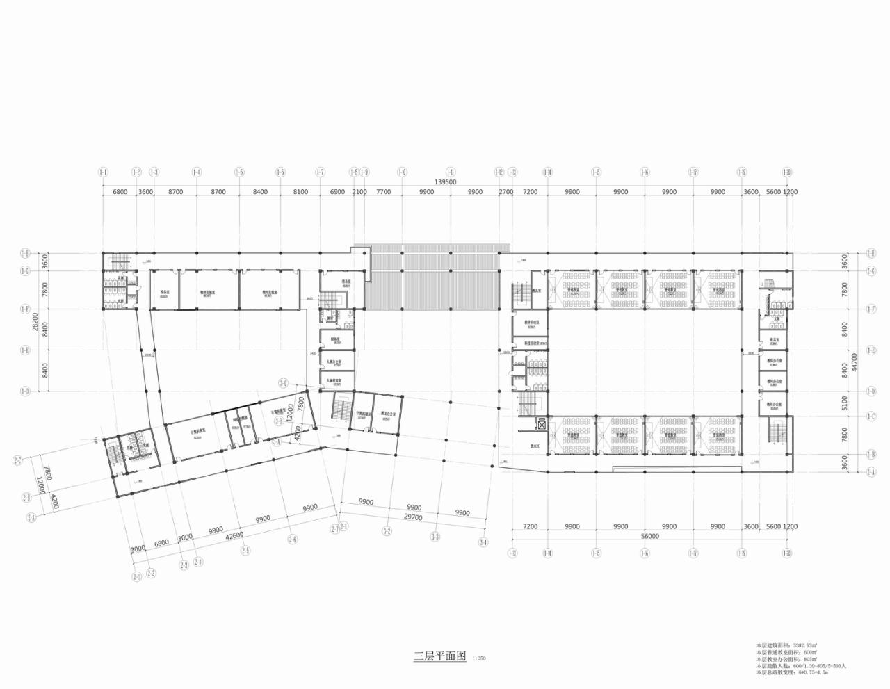
青浦区思源中学作为一所走班教学的学校,大教室、实验室等专业教室需求量大于普通学校的需求。
△模式的改变 ©创霖-泽柏
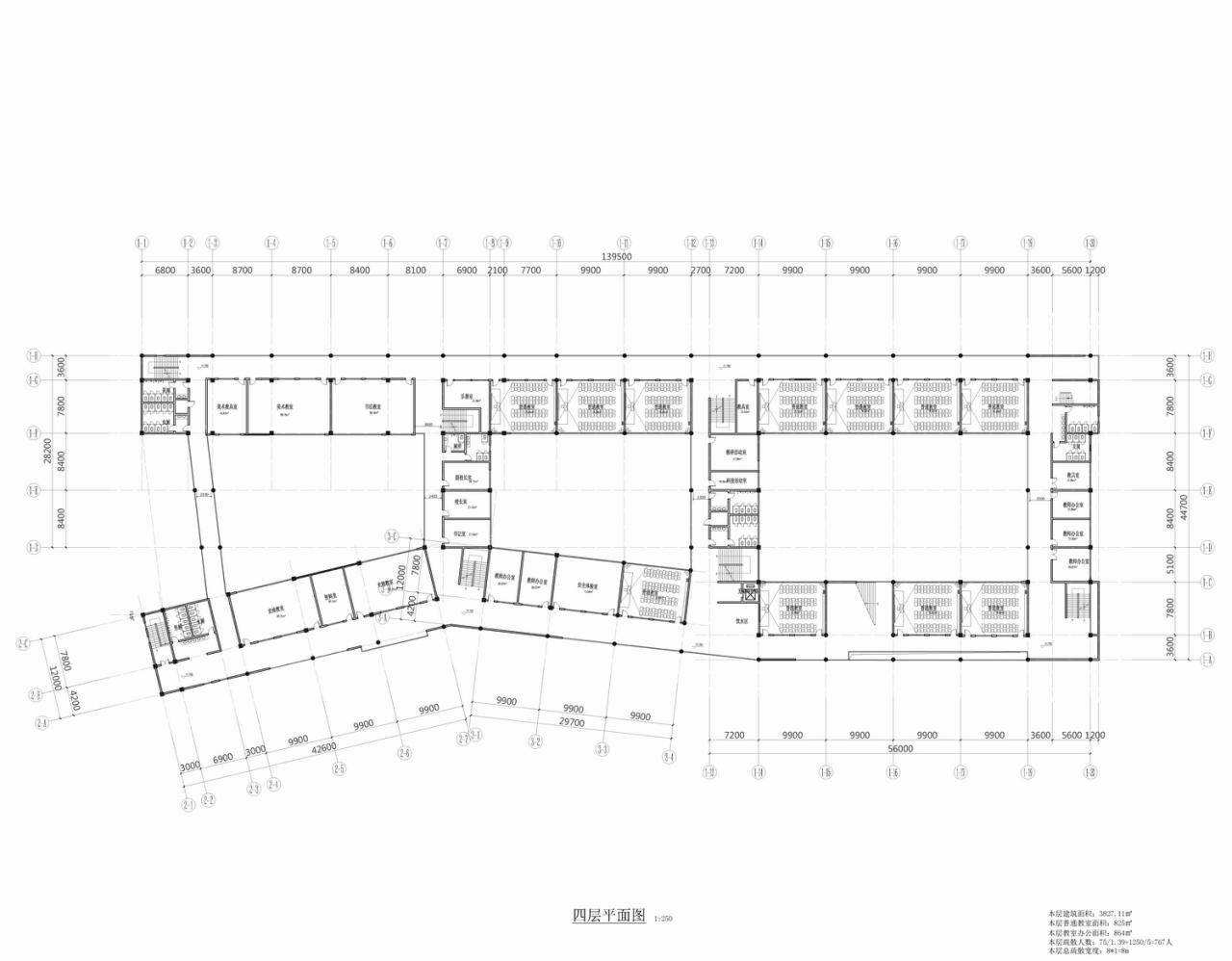
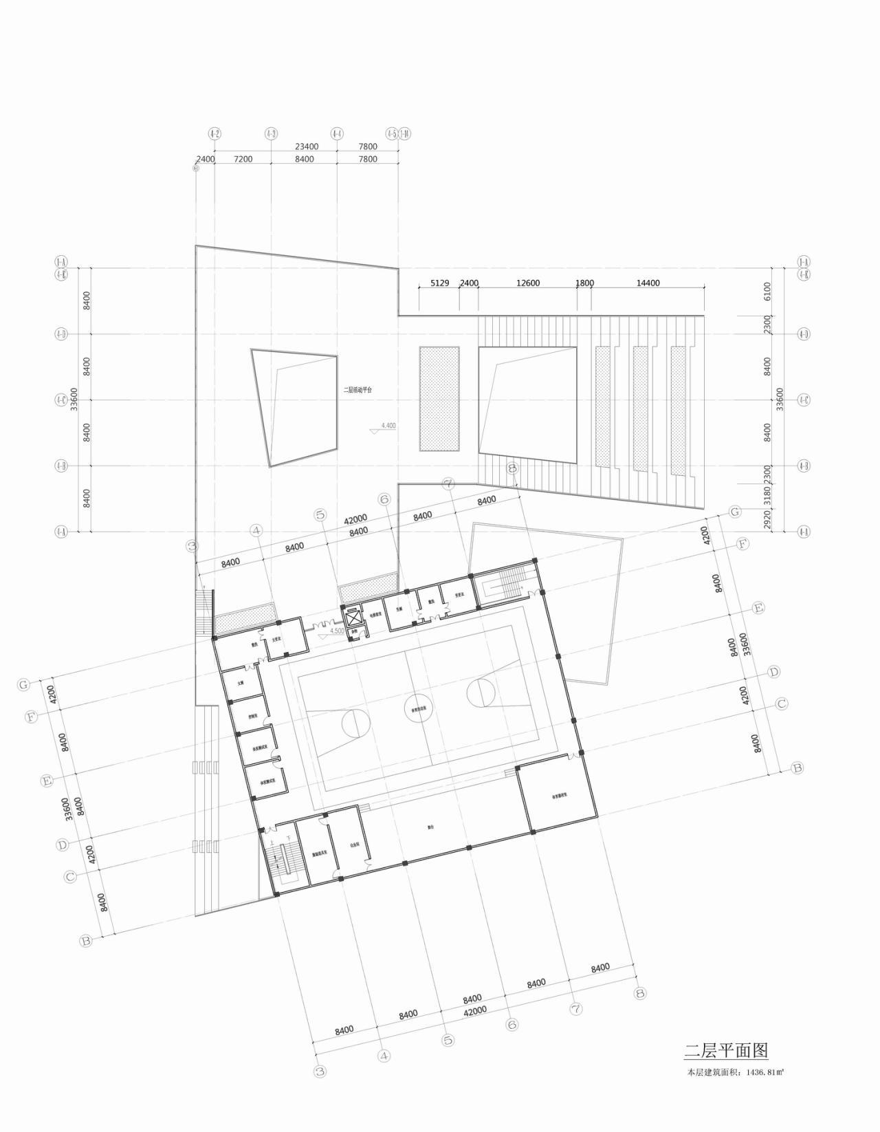
学校拥有40间标准教室、室内体育馆、小剧场、风雨操场、地下停车库。同时建有多功能演播厅、数字化图书馆和阅览室、书法创新实验室、历史地理专用教室、科技创新实验室、音乐教室、舞蹈房、心理中心等十多个专用教室,为实施素质教育提供了良好的硬件设施,是一次面向走班教学的高密度校园实践。
△体育馆内部空间 ©创霖-泽柏
△专业教室©创霖-泽柏
因而在面积有限的主楼布局上,我们将较为安静的东北部分布置普通教室,作为教学区;而靠近操场的西南部分布置专业教室,作为综合区。连接南北楼的连廊则布置办公室等行政功能。
多层次的立体公共交流空间
本项目主要通过共享平台、交流大阶梯、退台、廊道及屋顶空间将学校的主要教学用房,图书馆和风雨操场连接成一个错落有致、形体流动的开放式校园综合体,也为周边高架桥的不同视角提供了一个城市空间第五立面。
△功能剖面 ©创霖-泽柏
△空间与流线©创霖-泽柏
而不同平台的设置,保证课间活动时候,各楼层抵达活动平台都是距离最短:4、5F可到屋顶平台活动,2、3F可到共享平台活动,而1F的同学更是拥有多处庭院活动空间。
(1)我们在形体上进行加减,在立面上加以开放与围合,使得观景平台、共享空间穿插各层,赋予每栋建筑一个对外伸景,对内蓄景的中国传统内向性建筑空间意向,将各栋建筑进行有机的结合。
△场地鸟瞰 ©彭晓凯 张毅
△露台看向教学楼 ©彭晓凯 张毅
(2)我们取“知识的阶梯”的概念,再加以共享平台,一方面成为连接教学楼和体育馆的纽带,另一方面形成入口到建筑的一个导向,而平台的一层自然而然地成为了图书馆和一些公共功能所在的空间。
△入口看向体育馆 ©彭晓凯 张毅
△共享平台 ©彭晓凯 张毅
(3)我们部分推后了原有体育馆,一方面减少了建筑对场地的压迫,另一方面形成了看台空间,且通过楼梯与原有共享平台和交流阶梯形成了一个共享交流的整体。
△操场看台 ©彭晓凯 张毅
(4)我们架空部分底层,同时打开部分立面,形成廊道以外的大面积共享型半室外空间,一方面活跃了建筑空间,另一方面也在建筑内部形成了一个自由开放、情景共享的空间,让师生在建筑内部也可以充分地感受到阳光与景观。
△场地鸟瞰 ©彭晓凯 张毅
△活动空间 ©彭晓凯 张毅
△北侧架空入口 ©彭晓凯 张毅
△架空空间 ©彭晓凯 张毅
(5)我们将屋顶平台设计成绿化及活动场地 ,供学生课间活动娱乐,以屋顶步道串联各个活动场地,形成一个活力的共享平台,同时也实现了各个场地间互相独立而又有机连接的形态。
△屋顶鸟瞰 ©彭晓凯 张毅
△平台与楼梯 ©彭晓凯 张毅
(6)庭院是一个重要的放松、共享、交流的空间,我们的庭院空间形态和尺寸都因地制宜,有些由建筑围合而成,有些则是由形体的减法形成,让景融进来,视线行为的交织于整个教学综合体中。
△庭院空间 ©彭晓凯 张毅
项目图纸
项目信息
项目名称:青浦兰生·思源中学
设计方:上海创霖建筑规划设计有限公司
联系邮箱:slazebra@vip.sina.com
主创设计师:贺佳
项目经理:董小波 张勤
设计团队:钱昱馨 张泽民 胡晓霞 陈辉 彭晓凯
项目设计 & 完成年份:2019.06&2022.06
项目业主:上海市青浦区教育综合事务中心
项目地址:中国 上海 青浦
建筑面积:25174.5㎡
摄影版权:彭晓凯 张毅
施工图设计:上海申联建筑设计有限公司
室内设计:上海都品建筑设计有限公司

BIM建筑网




















































