柏丽德禄亚太生产研发总部被设想为一个微型环境,承载研究、实验、管理、展览和产品发布等功能。从平面上,四个相互交错的矩形体量保护着一个长条形的庭院。从剖面上,底层的大型体量由人造石材勾勒而成,而玻璃幕墙覆盖的二层则是一个由锌板包裹的雕塑体量。建筑的外部造型深受德国跑车(如宝马 M1)棱角分明的线条的启发。内部花园是研发中心所有部门的中心聚会场所,花园也是一个非正式的室外舞台,设有阶梯式座位和中央舞台。所有三层办公空间都向内部花园开放,既能采光,又可借助阳台和露台通向中心空间。修长的庭院也让人联想到永恒的意大利都灵的菲亚特工厂。
一楼的内部空间主要属性是公共的,包括主大厅、会议室、柏丽德禄的独立展厅、及与访客频繁互动的咖啡厅以员工空间。所有上述空间都可直接通往中央花园。二楼是管理办公空间和贵宾用餐及接待空间,这些空间相互贯穿,但又被一系列室外露台分隔开来。在这里,室内和室外空间的划分变得模糊起来。由于每个体量的尺寸较小,所有办公空间都能享受到自然光和交叉通风,营造出舒适节能的工作环境。三楼是研发中心,展示一些正在开发中的待发布产品。此外,三层还设有一个多功能阶梯式舞台,可举办演出、讲座、培训及其他集体活动。
建筑西南角的垂直塔楼是公共聚会空间:它的底层是公共餐厅,其上的所有楼层都设有开放的公共开放空间。这里所有的内部空间都朝向西侧流淌的溪水。
室内采用简洁的材料,公共区域铺设人造石地板,办公和研发空间铺设地毯,便于未来灵活布置。大部分垂直表面采用金属、石材和玻璃材料,天花板保持干净裸露,以创造高度和空间灵活性。所有的室内隔断、滑动门、嵌入式橱柜都采用的是柏丽和德禄自己的产品。我们的想法便是,研发中心的内部工作空间同时也是一个 “现场展示厅”,员工们在自己设计和生产的产品间穿梭。
员工们可以共享大部分朝向风景和通向露台的空间,包括餐厅、员工休息室、多功能厅等。 我们希望为工作人员创造一个充满灵感、感到自豪,且能放松的环境。与此同时我们还努力创造许多功能不明确的空间,希望在这里工作的每个人都有自己最喜欢的角落,无论是室外、室内,还是介于两者之间。
室外材料的色调延伸到生产厂房的外墙。垂直方向的渐变为水平体量提供了视觉韵律,同时与窗饰设计相融合。厂房内部采用大量天窗照明。生产线在几乎零粉尘的室内环境中运行。景观设计基于海绵城市的理念,借助自然雨水的地下渗透。大型水景和起伏的地面景观打破场地本身的单调感。建筑南侧种植了大量树木。随着时间的推移,这些树木将逐渐长大,为停车区提供遮阳,并为研发中心的主立面提供视觉缓冲。
柏丽(Nobilia )1997年进入中国市场,成为首家将德国安装进口橱柜引入中国的进口品牌。 2013年起,柏丽连续多年荣获中国房地产500强开发商首选进口橱柜品牌,成为众多高端房地产开发企业的合作伙伴。
德禄(Raumplus)是1986年由Mr. Jürgen Guddas创建于德国不莱梅的家族企业,Raumplus来源于德语raum和plus的组合,raum 意为空间,plus 代表着扩大与整合升级。 Raumplus是欧洲顶级定制家居品牌,覆盖70多个国家地区,1000多家展厅。2018年柏丽Nobilia 与德禄Raumplus在中国成立合资公司,2019年投资兴建国内首家,由德国两大家居业巨头打造的高端衣柜及移门生产研发基地。
这个标志着工业4.0的亚太总部项目位于江苏无锡,占地300亩。项目中使用有机的、可持续的新技术材料,融合设计与绿色,致力于“碳中和”及自身在可持续发展中的社会责任。这些付出也得到了认可:2024年项目落成之初,便喜获国际绿色建筑LEED的金牌认证。
这个融合设计与绿色的建筑致力于“碳中和”及自身在可持续发展中的社会责任,其绿色指标包含:
✓ 绿电光伏屋顶:50,000平方米光伏一体化,每月发电量350,000度电,相当于植物造林33,600亩;
✓ 海绵城市系统:单次可收集200吨园区地表及屋面雨水,自动净化,用于绿色灌溉整个园区绿植及浇洒道路降尘;
✓ 能源管理:全面及时地掌握企业能源利用和管理情况,实时响应生产及办公需求,将厂区水电气能耗精准控制到极致;
✓ 中央除尘系统:欧洲最新技术,杜绝车间扬尘,保证产品表面无污染,且每月减少对外颗粒排放物900KG;
✓ 热交换利用工程:回收60%以上生产废热,搭配190㎡太阳能集热板,解决千名员工24小时热水供给等热能需求;
✓ 固废回收系统:拆解无毒生物处理,固废垃圾平均减量70%,资源化回收,再利用率超过65%;
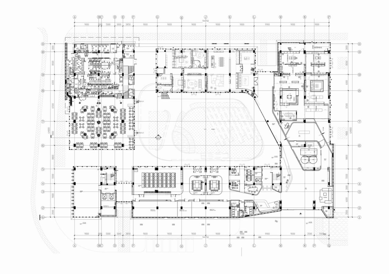
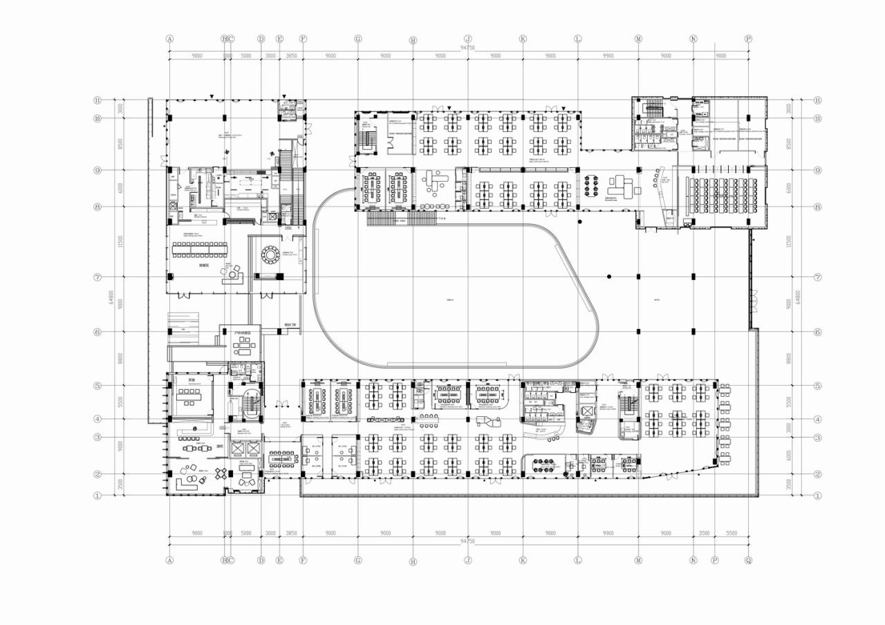
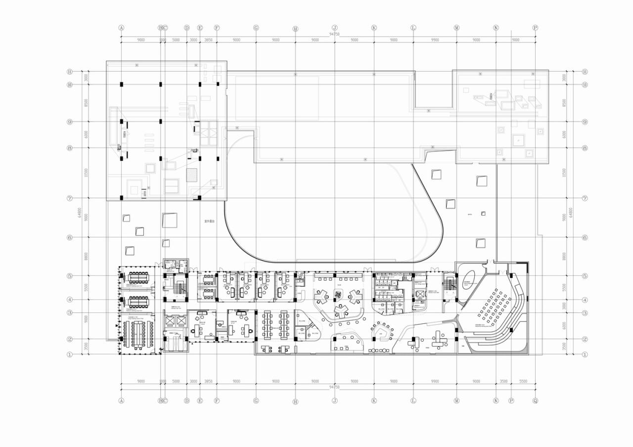
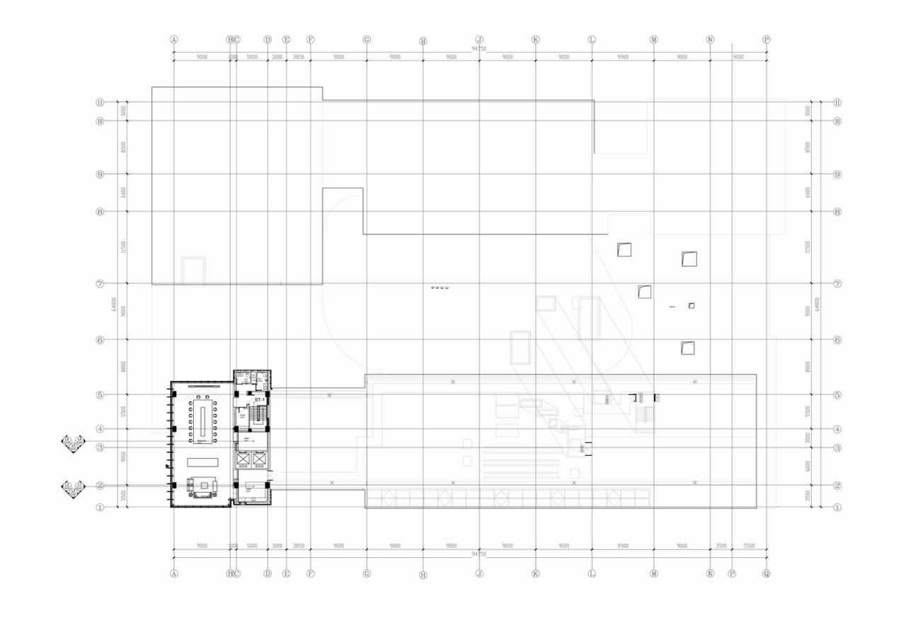
项目图纸
△手绘图
△效果图
△总平面图
△一层平面图
△二层平面图
△三层平面图
△四层平面图
△景观分析图
△剖面分析图
△效果图
△植物平面图
△竖向分析图
项目信息
柏丽德禄亚太生产研发总部 / Chiasmus Partners
建筑师:Chiasmus 建筑事务所
面积:60000m²
项目年份:2023
摄影师:存在建筑-建筑摄影
主创设计师:柯卫 ( James Wei Ke )
设计团队:卜翔坤,殷风昆,孙智,程琛,魏磊,韩尚威,徐钰婷, 樊玉璇
委托方:睿博无锡家居科技有限公司
项目管理:北京世邦魏理仕物业管理服务有限公司上海分公司
室内设计:Chiasmus 建筑事务所
施工图设计方:信息产业电子第十一设计研究院科技工程股份有限公司
LEED:上海迦画建筑工程咨询有限公司
施工方:中国二十冶总承包公司
地点:中国无锡

BIM建筑网




























































