△建筑全景 ©存在建筑-建筑摄影
△书廊 ©存在建筑-建筑摄影
△建筑内外在视觉上彼此贯通 ©存在建筑-建筑摄影
背景
先锋巍山崇正书院坐落于云南大理巍山古城西隅。巍山是南诏文化的发源地,巍山古城距今有600多年的历史,仍完好保留着明清的城市格局;崇正书院始建于明朝弘治年间,至今已有500多年历史,几历兴衰。
2021年,TAO受当地政府及先锋书店之邀为崇正书院进行保护修缮和活化利用设计,将书院改造为含有书店、展览、小剧场、咖啡等综合功能的先锋书店,希望借此唤醒场所曾经的蓬勃生机与人文精神,为巍山的城市复兴助力。设计任务同时还包括书院周边区域的城市设计,力图通过先锋书店和其他相关新业态的引入,构建一个充满活力的生活方式目的地,以此带动这一区域的城市更新。
△区位分析 ©迹·建筑事务所(TAO)
△巍山古城民风民俗 图源网络
△项目位置 ©迹·建筑事务所(TAO)
城市设计
很多巍山人在崇正书院度过了小学时光,书院南侧门前那株330年的高山榕,是县城区内冠幅最大的一棵树,他们年轻时曾在这树下纳凉、嬉戏、组办乐队。相比明代的书院和清代的榕树,场地内还有个“年轻”的废弃建筑,是上世纪60年代的铁工厂,木构依旧完好。
△崇正书院与330年高山榕(左);上世纪60年代铁工厂(右)©迹·建筑事务所(TAO)
区位上,该片区处在古城和新城之间,交通便利,周边服务配套日渐完善,是引入新鲜血液、激活城市的绝佳位置。片区更新的目标就是以先锋书店为引擎,引入新业态,形成新老生活方式的集群,营造包括文创、咖啡、酒吧、公共艺术、开放集市等多元化空间,通过城市活力动线连接织补片区周边。
△概念草图 ©华黎
△1:500场地模型 ©迹·建筑事务所(TAO)
△城市设计 概念拼贴 ©迹·建筑事务所(TAO)
在这个连接乡愁和未来的关键时空节点,先锋书店和新业态的引入必须与过去鲜活的记忆共生。因而进行城市设计时,上述三个场地重要存量的保护和有机更新是重中之重。
设计完好保留了崇正书院以及铁工厂的历史原貌,为古树重新设计了树池,并倚靠着大树和书院设置了下沉户外庭院,激活人和巨树间的互动关系。以巨树为视觉中心,略微旋转角度的城市广场成为城市空间的中心,意在连接东西两边城市街道、激发户外城市生活的多种可能。围绕广场设计打造了一个“架构下的城市群落”,连续折叠的坡屋顶以老厂房屋顶为基础尺度生长,一方面延续了巍山古城蔓延而来的城市肌理和建筑意象,另一方面又在形象上与古城建筑有所不同,广场与檐下空间希望引入市集、歌舞表演等原住民文化及咖啡、餐饮外摆等街道生活要素,而内部空间则满足新业态对空间品质和尺度的多样性诉求,以期形成新老建筑、外来游客与原住民文化、多元业态复合空间的共生共融。
△总平面图 ©迹·建筑事务所(TAO)
△城市鸟瞰 ©存在建筑-建筑摄影
△入口处三百余年树龄的古榕树 ©存在建筑-建筑摄影
崇正书院/先锋书店
先锋书店和崇正书院以书结缘。崇正书院是云南历史上第一批书院,始建时也是云南当地存书最丰厚的书院,古时由知府胡光从江南中原运来蒙化(巍山古称),用以启蒙教化兴学;而先锋书店也是从江苏入驻云南,不远千里运来图书,将书香散布至各地。这既是巧合,又有一种相似的文化传播精神,其载体在于书,又不止于书。据记载,古时这里有观文楼用于藏书,现不见踪影。既然昔日有这样的辉煌,先锋书店也期望先锋巍山崇正书院能重现其“积书之富”,成为先锋店面中藏书最多的一家。因此,书院内书的呈现方式与重塑书院精神是设计的重中之重。
△崇正书院原貌 ©迹·建筑事务所(TAO)
基于对场地历史以及整体景观的尊重,设计以“轻”的态度谨慎介入历史建筑,力求保持原有建筑的空间氛围及院内名木古树,遵循真实性和可逆性的原则,最大化保留老墙、木构的历史细节。设计主要由这样一些元素构成:在内部沿东西轴线两侧置入两条漂浮的书廊,连接书院原本分散的各功能区域的同时,赋予内外空间更多节奏性的转换;在中间第二进院落则通过两边的看台,围绕原有树木,营造出一个树下的户外露天剧场和休憩庭院;而最东侧的新建体量塑造了面向城市的书之橱窗及活动舞台,与街道形成互动,还原书院文化精神面貌的同时赋予其新生。
△概念草图 ©钟升
△精神隧道|书廊 概念拼贴 ©迹·建筑事务所(TAO)
△读诗御景|户外剧场 概念拼贴 ©迹·建筑事务所(TAO)
△城市舞台|剧场空间 概念拼贴 ©迹·建筑事务所(TAO)
书·廊与室外剧场
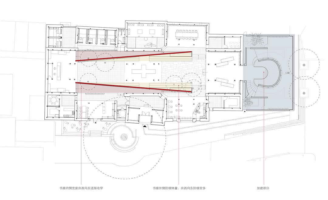
书廊是对书的颂扬。设计在中轴庭院两侧置入了两条长29米钢架图书长廊,图书贮藏和阅览功能高度浓缩进构筑物尺度,贯穿东西庭院。
△轴测爆炸拆解图 ©迹·建筑事务所(TAO)
△1:75混凝土剖面模型 ©迹·建筑事务所(TAO)
△书廊俯瞰©存在建筑-建筑摄影
平面上,一条对角线将书廊分为内外两个部分——内侧空间维度逐渐横向收缩,最终凝聚成远方的一个视觉焦点,非平行布局加强了内部空间的透视和纵深感,犹如行走在图书的“精神隧道”,与周边古建形成了截然不同的空间体验。
△概念草图 ©华黎
△书廊与加建部分 ©迹·建筑事务所(TAO)
△书廊内部 ©存在建筑-建筑摄影
书廊外侧的阶梯体量则成为过厅内的文创展台和庭院里的看台空间,在庭院内两边看台围合形成树下的露天剧场,供人们读书、交流、休憩或举办户外文化活动,而坐在台阶高处又给人提供了一个俯视观察书院的独特视角。
△过厅内的文创展台 ©存在建筑-建筑摄影
△文创展台和看台空间 ©存在建筑-建筑摄影
△剖面图 ©迹·建筑事务所(TAO)
△剖透视 ©迹·建筑事务所(TAO)
书廊虽然是沿轴线对称布置,但因着书廊对角线这样两条斜线的切割,使中轴庭院空间由西向东逐渐放大,一方面自然地遵循和强化了古时崇正书院坐东朝西的中轴格局,回应书院“崇尚中正”之名;另一方面塑造了沿东西两个方向看一收一放两种不同的空间透视体验。
△书廊贯穿东西庭院 ©存在建筑-建筑摄影
书廊的设计不仅重新划分了书院内部空间格局,同时也将周边院落、主殿、厢房和耳房重新联系起来,在下雨天客人也可以便利地在西大殿和过厅之间及咖啡和阅读空间之间自由穿梭。而因巍山绝佳的温度条件,四季如春,书院内不设封闭的气候边界,有意模糊室内外的边界,在有屋顶覆盖和露天区域之间获得最大的开放性和连续性。
行走于书院中,穿梭在书廊和古建筑内外之间,步移景异,有如游园般极丰富的空间体验和穿越古今的意趣。
△模糊的室内外边界 ©存在建筑-建筑摄影
△书廊联接两侧厢房 ©存在建筑-建筑摄影
△耳房看向书廊 ©存在建筑-建筑摄影
△咖啡厅 ©存在建筑-建筑摄影
书廊的建造遵循可逆性原则,采用轻质的钢结构建造方式,仅在院落内落柱并悬挑于古建的过厅地面之上,院内古树悉数保留。原生古树与书廊交错穿插,使得古树也成为了引入空间内部的独特景观。
△书廊外侧 ©存在建筑-建筑摄影
△漂浮的书廊 ©存在建筑-建筑摄影
△书廊内部 ©存在建筑-建筑摄影
△剖透视 ©迹·建筑事务所(TAO)
加建部分——城市界面与空间嵌套
书院最东侧的加建部分是整个中轴空间的高潮。位于东西轴线的尽端,这里既是空间序列的结束,同时又是面向街道连接城市的开始。传统的书院作为合院类型其本质是内向性的,从外部无法觉察内部的事件,而改造后的先锋书院需要与城市建立一种连接,提供一个窗口,来展示书院内部的改变,并吸引游客进入。加建部分作为整个书院面向城市街道的界面,成为营造空间外向性唯一的机会,因此这里是非常重要的连接建筑内部与城市的节点。
△概念草图 ©华黎
△1:75混凝土剖面模型 ©迹·建筑事务所(TAO)
△街景 ©存在建筑-建筑摄影
结合建筑地坪标高与街道的关系,以及这里要承载的功能内容,设计在剖面上将空间处理为上下两个要素,上部是室内剧场,也是建筑内部尺度最大的活动空间,沿着剧场的观众台阶拾级而上,可抵达二层平台俯瞰整个古城风景;而下部则是一个半下沉的书店陈列区,通过两边的台阶和坡道到达。
△庭院看向室内剧场 ©存在建筑-建筑摄影
△室内剧场 ©存在建筑-建筑摄影
△二层观景平台 ©存在建筑-建筑摄影
△楼梯 ©存在建筑-建筑摄影
下沉区采用大面积落地玻璃打造临街立面,使得建筑内外在视觉上彼此贯通,改变了古书院固有的纯内向格局。街边路过的人们一眼便可望见店内丰富多彩的书籍陈列和空间设计,成为书院面向城市的书之橱窗及人的活动舞台,与城市形成互动。对于城市,这样一个由书构成的下沉空间犹如蕴藏着文化财富的的精神宝藏,引发人想要向内挖掘和探寻的愿望。
△街道看向半下沉空间 ©存在建筑-建筑摄影
△建筑内外在视觉上彼此贯通 ©存在建筑-建筑摄影
△半下沉的书籍陈列区 ©存在建筑-建筑摄影
下沉的动作,不仅令空间富于变化,亦是遵照了一种地质学的演变现实——在明代,地平线是明显低于现代的。“建筑是与大地和时间的关系”,在如此一家始建于明代的书院中,设计用一种贮藏的姿态向时间致意。
△长剖面图 ©迹·建筑事务所(TAO)
△半下沉的书籍陈列区 ©存在建筑-建筑摄影
加建部分与老建筑紧密相连,新建筑采用什么样的形式姿态来处理新旧关系和营造书院的城市形象,也是一个非常重要和敏感的命题。这部分设计过程中曾尝试过诸多想法,为了平衡新建设计的当代性与历史文化名城建筑风貌之间的关系,最终的设计采用“阁中阁”的概念,内部的阁用一个向上张开的筒状造型来容纳室内剧场空间,外部的阁则采用传统人字坡屋顶形式,与古建的硬山瓦屋面相连接,形成连续和谐的建筑轮廓线。
△1:30加建部分手工模型 ©迹·建筑事务所(TAO)
两重形式的阁内外嵌套,在内部又形成了独特的缝隙空间,丰富了建筑内部视线关系和空间张力。
△两重形式的阁内外嵌套 ©存在建筑-建筑摄影
△缝隙空间 ©存在建筑-建筑摄影
△加建部分 长剖面 ©迹·建筑事务所(TAO)
△加建部分 短剖面 ©迹·建筑事务所(TAO)
作为阁中阁之“内阁”的筒形体量,其体块在落地处收分,由下向上放大托举,在内部形成马蹄形剧场。“外阁”由传统屋盖形式包裹,以木椽和瓦屋面的硬山顶建筑意向回应城市街道和城区肌理。力学上,传统屋面由“内阁”的木纹混凝土墙体和钢梁支撑,由上及下,形成了视觉上的力的反转,犹如漂浮于半空中,一定程度打破了传统建筑的图解。
△轴测爆炸拆解图 ©迹·建筑事务所(TAO)
△二层看向内阁 ©存在建筑-建筑摄影
△半下沉的书籍陈列区 ©存在建筑-建筑摄影
实际上,加建部分的二层山墙为主要受力构件是剪力墙上延伸出的墙形梁,以极大的梁高大跨度悬挑支撑起二层出挑平台,并由混凝土斜柱共同支撑出挑平台和屋顶,形成不可分割的整体受力体系。
△结构分析图 ©迹·建筑事务所(TAO)
△1:30加建部分手工模型 ©迹·建筑事务所(TAO)
△缝隙空间 ©存在建筑-建筑摄影
△街道视角 ©存在建筑-建筑摄影
外部,漂浮的硬山顶与大殿体量相近,在其两侧生长出两个平屋顶,与大殿耳房高度一致,并围合出两个耳房院落。如此一来,加建部分的外部形体节奏和平面布局分别与古建形式和院落布局形成了连续。
△1:30加建部分手工模型 ©迹·建筑事务所(TAO)
△看向耳房院落 ©存在建筑-建筑摄影
而材料上,加建部分除屋面做法外均采用钢混结构,清水木模混凝土的灰色在色泽上与古建筑墙近似,混凝土肌理由6公分宽的樟子松板错缝排列拓印而成,小尺度木模肌理给人以木的温和亲近感,柔化了混凝土本身坚硬冰冷的印象。
从设计到建造整体经历了两年多的时间,先锋巍山崇正书院于2023年底正式开幕营业。我们欣喜地看到500年的历史建筑在经历改造更新后重新介入城市生活的当下,并且成为巍山新的城市IP和目的地,书店每天都吸引着来自不同地方的人群,大榕树下的树池、广场中的镜面水池也是当地人经常逗留游戏的场所;书店开幕至今举办了多场诗歌、文学、音乐活动,以及展览。在此意义上,曾经承载着文化启蒙意义的古老书院犹如凤凰涅槃重生,将继续为巍山的文化与日常生活书写未来。
△街景 ©存在建筑-建筑摄影
项目图纸
△首层平面图 ©迹·建筑事务所(TAO)
项目信息
项目名称: 先锋巍山崇正书院
业主: 先锋书店,巍山文旅局
项目地点: 云南省大理州巍山县
项目功能: 书店、展览
设计单位:迹·建筑事务所(TAO)
主持建筑师:华黎
设计团队: 华黎、钟升、张鹏、汪浪欢、何元曦、杨蕙如
结构工程师:马智刚、赵晓雷、廖宇飚、马瑜杰
机电设计:吕建军及kcalin卡林机电设计:孙晶、李鑫
施工团队:云南喜洲建设工程有限公司、巍山宏基建筑安装有限责任公司
建筑面积:1, 384平方米
结构体系:传统木结构、钢结构、钢筋混凝土结构
设计时间: 2022.1-2023.4
施工时间:2022.5-2023.12
摄影:存在建筑-建筑摄影

BIM建筑网
















































































