这座度假别墅位于上海浦东郊外。2018年春天,我们收到业主的委托邮件,希望拆除旧宅,建造一栋新房,供兄妹两家在周末和假期从都市切换回乡村,看望父母、品茶聚餐,在田园的宁静中休憩,体验自然的生活节奏和氛围,远离外界的打扰。
我们的设计概念包含以下三点。自然的要素被放在首位,虽然基地正对一片果树林,且建筑正前方有一片场地可用作花园,我们仍然希望在建筑空间中引入绿色,借鉴了东方古典园林的理念,让自然渗透到建筑内部,消除室内外的对立与隔绝。其次,作为大家庭住宅,内部的公共空间成为重要议题,开放舒适的公共空间可以为家人间的交流创造更多的机会,获得融洽的家庭生活氛围。第三,现代性是这次乡村建造实践贯彻和坚守的原则,无论周围村镇环境如何,我们认为在这块小小的宅基地上树立一座现代建筑白房子,是这个项目的重要意义。
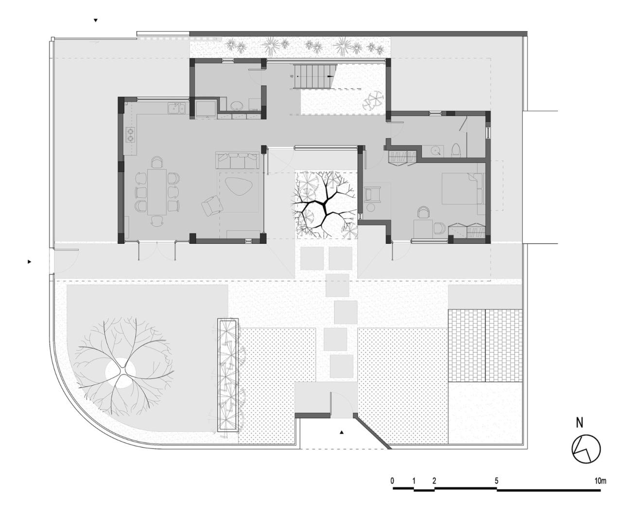
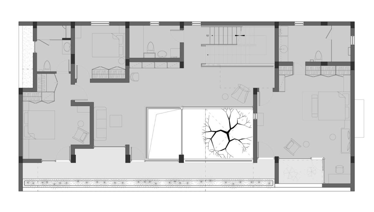
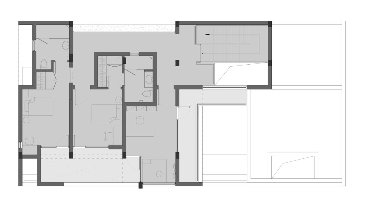
根据上海的乡村住宅建造规范,拆除前的老宅体量决定了新建建筑的形态——一层的建筑轮廓线被确定,东侧的体量高度被限定为2层,其余为3层,且坡屋顶和檐口高度也有明确的限制。在这些条件下,我们仍希望贯彻自然的设计理念,在不同楼层植入内庭院和天井,创造立体和内向的庭园,以确保其营造的内在氛围;同时,建筑主体的姿态是外向的——21米长的横向体量被明显地悬挑架空托出,面向果林,西侧3.5米的悬挑体量直抵基地的边界,也解决了因空出内庭院而产生的面积需求问题。自然光通过内庭院和天井的大面积开窗进入室内,营造出充足且柔和的光感氛围。结构和构造的设计也完全遵循当地农村施工的技术,我们指导那些没有任何现代建筑施工经验的工人,以最普通的钢筋混凝土框架填充砖墙的方式构造建筑体量。
别墅建成后,现代的外观从某种层面影响了村民对现代住宅的认知和接受。业主家的老人作为原住村民照常在这座现代建筑里过着农耕生活——种植蔬菜养殖家禽,中年的业主也将上海城市生活的习惯带回乡村,面向庭院喝着咖啡,达到了某种程度的和谐。对于上海这座大都市,郊外的乡村别墅可以缓解城市环境的压力,让人远离手机和消费社会的广告及信息打扰;乡村居民们认为,自建的住宅相比于大多地产别墅项目,更有机且贴近生活的需要,结合中国当代的土地政策,对于他们这些有宅基地的本地居民来说建造自己的住宅相比购买也更加经济。希望这个项目在美学、实用性和建造技术上可以探索出适合当代中国的现代乡村住宅类型。
项目图纸
△一层平面图
△二层平面图
△三层平面图
△剖面图
△剖面图
项目信息
建筑师:柯笠建筑
面积:430m²
项目年份:2023
摄影师:WM STUDIO
主创建筑师:李柏,李璇
结构:谢金辉
机电:张道光
实习:徐煜超
给排水:顾宗良
项目类别:住宅
地点:浦东新区

BIM建筑网





































