建筑所在的村子叫李桂芬,光听村名就有一种好奇又亲切的感觉。这个像极了祖母那一代人的名字,现在的人很少叫了,自带一种普世包容与坚韧的特质。
又到了收小麦的季节,车窗外金黄色的麦田在几千年的文明长河里一直伴随着我们所生活的土地形成某种烙印在骨血基因里的集体无意识。这种集体无意识在芒种这个节气,对应着某一种憧憬,一种期盼与愿望,一种对丰收的想象。
随着年龄一岁一岁,有关遥远的儿时记忆一年比一年模糊,最后模糊到类似抽象画一样,只剩下一些浓重的笔触标记着底色,这种金黄色在中国人的文化里其实就是一种希望——希望在田野上,金黄色的麦田拥有一种童年的意向。
在济南北商河县一个叫殷巷的小镇,两个村子紧紧的毗邻在一起。在绵延几千年的农业产业背景下,我们国家的村子通常会形成细胞型的村域地理格局,田野像细胞质,聚落像细胞核,远到川西的林盘聚落,近到山东的大田村庄,图形格局上往往都是细胞质围合细胞核而存在,像这种两个村子如此毗邻的情况相对较少。这是一种微妙的状态,两个村子必然拥有大量的共同话语又同时拥有些许差异的次文化体系,所以因此在很长一段时间里中间的场地形成了一种颇具趣味性的非私密要素聚集——坑塘,林地与养殖场,随着养殖场的废弃,我们得以重新思考此处的边界应该拥有的状态——一种界定性明显的公共生活集合体。
这种集合体亦是创作中心有关乡建思考的具体证明,由于此次讨论焦点聚焦于建筑之上,那抛却有关社会学与经济学的思考,仅就建筑范畴来说,建筑作为一种文本所指代的叙事性与时空感,冲突性与合理性等等在一组后现代的语境中得以有效表达。区别于江南小乔尔布亚式的乡间图景,齐鲁大地上似乎与这热烈的底色更为适配。当在同意时间与空间片段下,多重行为与身体精确互动 ,大地上的山水天地人与空间上的对透藏漏框在这处场所形成不同维度的有机。
*项目描述
我们设计了一组乡村巨构——似乎是在强调边界,希望某一种明晰的边界作为空间能够定义东西两处村落,通常来说,清晰的边界感是安全的保障。与传统村居东西向布局的模式不同,在总体格局上,设计采用了南北向线性布局的方式,一方面顺应场地尺度,另一方面是一种差异化的公共秩序的建立。
事实上很难用某一种特定的功能诸如文化馆、展示馆、文体馆等等去界定乡村的公共空间,乡村公共建筑的功能是泛化的,而不是清晰的门牌号上的名称——就像好多南方村落的祠堂空间一样,是一种共生场所。北方以前也是又祠堂的,现在少一些。所以在空间串联上,除却必要的室内外空间的界定,设计上没有设置明显的室内分区,食堂、活动、服务、展览展示等等以一种弥漫的状态顺应布局产生。
在朱旺村体会到了红砖在乡建领域的适用性,在很长一段时间里甚至被认为是我们的风格化。我尝试着在不同的时间地点阐述着对材料单一论、个人风格化的批判却仍旧在带有期待甚至交涉的眼神中又答应下来——“那我们就继续用红砖吧”。安慰自己道可能也是我们又一次选择了砖——它给我的感觉,简单,真诚,浑厚,与李桂芬的名字一样。所以有关红砖的演绎又再一次上演,但其实这种簇状材质的组织背后的建构学、构造学、几何学知识的调度远远大于甚至任何一种看似昂贵的材质。
当然这可能并不是实施环节最棘手的地方,最棘手的在于施工单位的抵触情绪,这种工艺与精度要求下,显然是不出活的,民工的工钱按天算,一天又砌不出多少能达标的墙来,焦急转换成负面情绪,一开始是嘟囔,后来越来越松弛,开始变成吆喝——“不动脑子是原则问题!我当年干施工就是为了能少动脑子。你不知道动脑力劳动比体力劳动还累得慌吗!”“好好”我们的设计人员一边应承,一边应对,一边应付着。我听下来觉得十分有趣,既带有一份对施工单位技术脱离程度之大的讶异,又有一份由于自己的工作违背对方初心的歉意,甚至还有一点点憋不住的苦笑。
似乎这也是北方,好多争吵最终没有个定论,大家就又开始各司其职,甚至又多了一些执拗与较劲。这个圆不够圆,不够圆却又似乎拥有一种差异于工业感的生动性。我就随口说了一句“虽然没那么圆,但也可以的!”哪知在老师傅的耳朵里,这似乎是在暗示对他们工艺的否定,于是第二天拆了重新垒,没多久我便看到一个又一个溜光溜光的圆被砌起来,似乎在暗示着一种倔强的和解,也似乎看到工业与工艺在这种执拗下变成了一种工人的较真,这种较真是否可能也是齐鲁北地人多少年来苦涩又坚强的原因?
其实就工艺来说,我们一直在倡导传统材料与传统工艺回乡返乡,但也每次会在使用传统建材反倒收到施工单位抵触时思考“是否自己追求的传统工艺的再生与转换本身存在局限,传统这个概念本身就是相对的,五千年前我们可能没有使用铸铁的农具,三千年前我们也没有耕种玉米,一千年前不会考虑水泥和玻璃,所以随着时代适应时代才是真正的传统。”
在竣工后的某一个清晨,走到建筑跟前,我边看琢磨着这种简单又复杂,粗野又精致的感觉是否会就像当年李桂芬这个人。猛地想起那年在胶东调研时候一个片段,粗粝的海草房院子前站着一个老奶奶,她热情的邀我去家里喝水,推开那几十年的老门板,满院子都是盛开的玫瑰花。在那一瞬间一种完全意料之外的感动久久不能平静,在无论与海浪搏击还是在焦土耕耘的一个又一个齐鲁大地上的村子里,依然存在着一处又一处满院的花香。不知道那个老奶奶叫什么名字,但总感觉她如果叫李桂芬的话一点也不会违和。
最后想说的是,建筑里出现了一系列差异化的窗户。一直觉得窗户是建筑最重要的部分,是建筑的眼睛,也是人的眼睛得以被引导的关键存在,由于内与外存在一种看与被看的关系,所以在框定的视野中,我觉得要素应该被更为真实的聚焦与放大。在这几个平方米的沟通室内外的空间里,故事像镜头一样随着时光记录着。
猛然一想,这组建筑已经竣工两年了,有时候想想很久很久,但细细回眸,却又感觉好多事情近在眼前,这时断时续的印象,也像这次写下的文章,一个又一个片段跳跃着拼贴在一起,像塔可夫斯基的电影,像极了阳光灿烂的日子里我们有关童年的追忆。
项目图纸
△轴测图
△总平面图
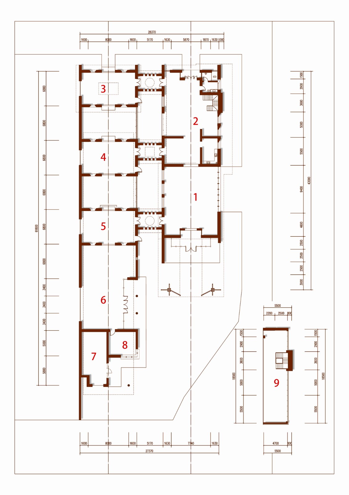
△平面图
△屋顶平面图
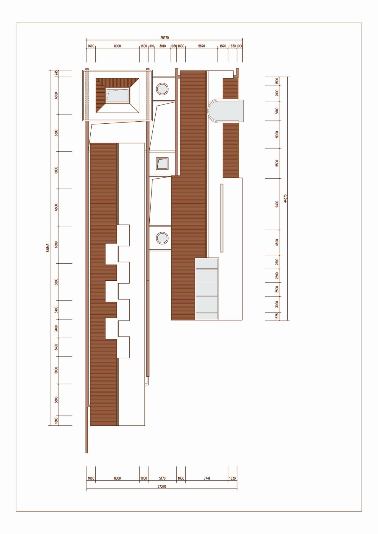
△立面图
△细部大样图
△细部大样图
△爆炸图
项目信息
项目名称:李桂芬乡村综合体
建筑事务所/公司:山东省城乡规划设计研究院有限公司建筑创作中心
公司所在地:山东省济南市历下区解放路9号
项目完成年份:2021年12月-2022年7月
建筑面积:1543㎡
项目地址: 山东省济南市商河县殷巷镇李桂芬村
主创建筑师: 盖帅帅
摄影师: 水刀木
设计团队: 梁树阳、李真、李媛媛、刘权仪
委托方:商河县殷巷镇人民政府
结构设计: 张健、董兴平
机电设计:卜庆贵、李涛、王永伟

BIM建筑网





















































