W-Mission是韩国最优质的纺织品制造商之一。他们的新总部位于首尔的城东区,以传统红砖建造的制鞋工厂建筑闻名。这个重生的地区已经成为韩国首都艺术、文化和设计的充满活力的城市地标。
该设计委托基于三个主要的存在概念,这些概念最能代表客户的精神特质:神圣、庇护所和社区。灵感反映了客户出生地的海浪以及纺织品的材料特性,如轻盈、编织图案、起伏和包裹与披露。建筑特点强调了精神性,主要体现在将传统哥特式高拱立面的内部(教堂内)反转至外部城市街道。
在纺织品协会行政大楼的设计过程时,石雕中的窗帘再现一直代表着一个迷人的悖论。在这种情况下,传统砖砌系统提供了很大的适应和表现曲线的能力。砖砌建筑在首尔有着悠久的历史传统。本案采用的解决方案是一种字面上的“幕墙”系统,使用砖块附着在现场浇筑的混凝土墙上,作为建造曲线的导向。借助数字计算工具,我们能够设计出一个相对简单的算法,用于创建升向天空的预期波浪效果。通过520层砖的高度,每24层砖增加一块砖,以实现预期的曲线增长。波浪幅度从第三层开始的0,增长到屋顶线的170厘米。
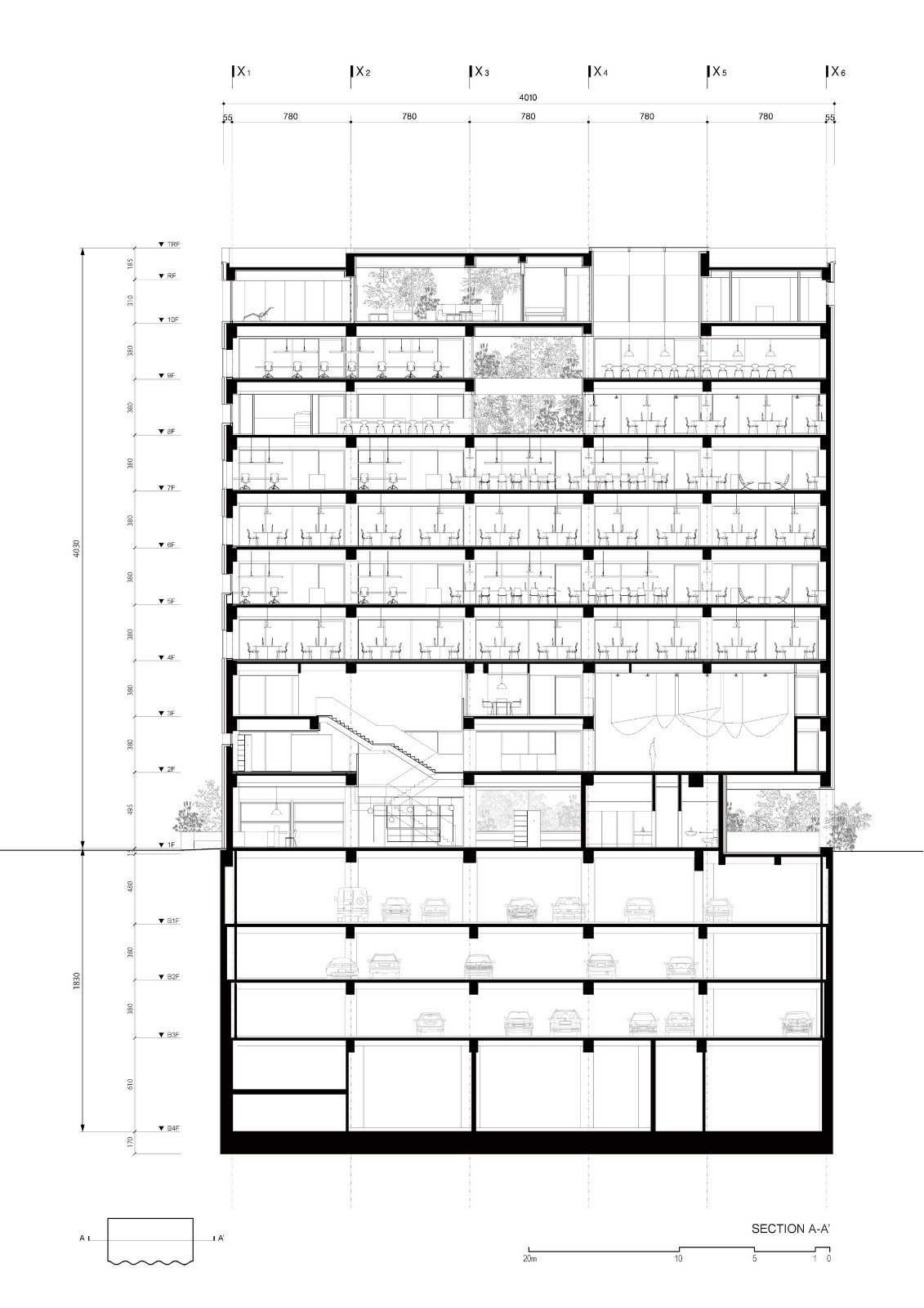
建筑由3个分层的功能区组成:
– 面向街道的社区,包括WM咖啡馆和花园、W-Mission学院、工作坊和展览空间。一个三层高的中庭连通了建筑的公共空间。
– 四层开放的办公区位于公共空间之上。W-Mission的总部位于顶层三层,包括办公室、工作坊和聚会空间。在建筑的这一私人区域内,受basilicanave类型启发的双层挑高连通空间,引入自然光,营造出一种精神和冥想的环境。
– 所有三个区都提供半户外双层挑高的庭院。组合在一起,建筑形成了一种垂直的社区,拥有宽敞的户外空间和内部庭院,这些庭院彼此错位但相互连接,所有庭院都向户外空间和天空延伸,强化了社区感。
波浪状的立面作为通往西边首尔森林公园的街道上的城市景观背景。这一特征性的实体立面容纳了服务功能和垂直流通空间。相对的,东立面的户外花园和露台提供了面向汉江和城东区的宽阔视野。北立面由表面上随机的开口组成,这些开口分为三种不同类型,以响应空间的功能需求。
项目图纸
△总平面图
△一层平面图
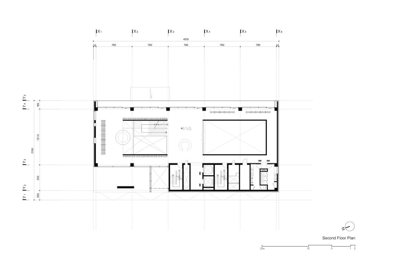
△二层平面图
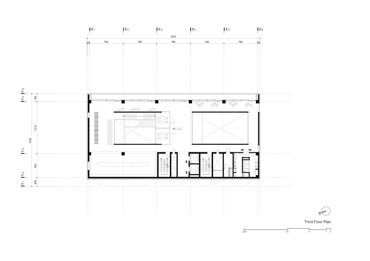
△三层平面图
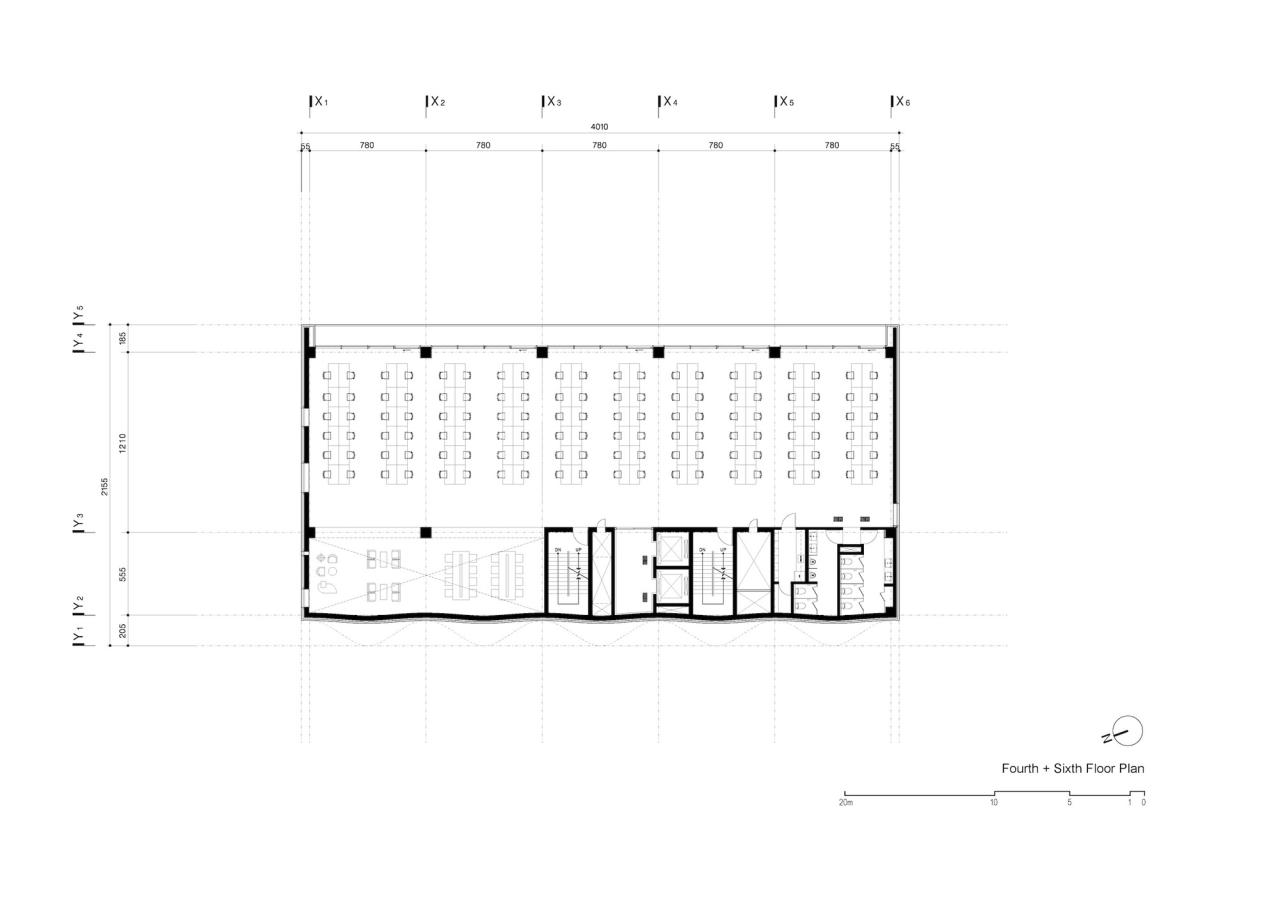
△四层平面图
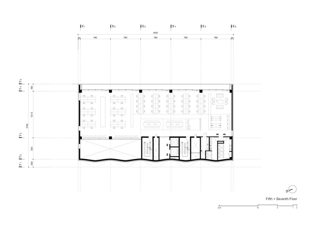
△五到七层平面图
△八层平面图
△九层平面图
△十层平面图
△屋顶平面图
△轴测图
△立面图
△立面图
△立面图
△剖面图
△剖面图
△细部结构大样图
△细部结构大样图
项目信息
建筑师: Behet Bondzio Lin Architekten
面积: 9483 m²
项目年份: 2024
摄影师:YuChen Chao Photography
厂家: Bulthaup, Toto, Vola, panoramah!®
主持建筑师: Yu‐Han Michael Lin
设计团队: Behet Bondzio Lin Architekten, Chen Yu Tang, María Eugenia Carrizosa, Rodrigo Reverte
家具设计: Joh Yun Seok
亚克力艺术家: Rahee Yoon
灯光设计: Fuse Inc.
空调工程师: Sahmwon Mechanical Engineering Co., Ltd.
电气管道工程: Smtec & Dongnam Mec
结构工程师: Eun Structural Engineering Co., Ltd.
景观设计: Landscape Design studio KnL
平面设计: MYKC Studio
施工方: Janghak Engineering & Construction Co., Ltd.
室内设计师: BCHO Architects, Behet Bondzio Lin Architekten
本土设计师: HNSA Architects and Designers
地点: 韩国,城东区

BIM建筑网





































