△ ©存在建筑Arch-Exist
从产品到建筑
△ @朱潇俊 Violin Bunny
△ ©存在建筑Arch-Exist
△ ©存在建筑Arch-Exist
柏丽(Nobilia )1997年进入中国市场,成为首家将德国安装进口橱柜引入中国的进口品牌。德禄(Raumplus)是1986年由Mr. Jürgen Guddas创建于德国不莱梅的家族企业,Raumplus来源于德语raum和plus的组合,raum 意为空间,plus 代表着扩大与整合升级。 Raumplus是欧洲顶级定制家居品牌,覆盖70多个国家地区,1000多家展厅。2018年柏丽Nobilia 与德禄Raumplus在中国成立合资公司,2019年投资兴建国内首家,由德国两大家居业巨头打造的高端衣柜及移门生产研发基地。这个标志着工业4.0的亚太总部项目位于江苏无锡,占地300亩。项目中使用有机的、可持续的新技术材料,融合设计与绿色,致力于“碳中和”及自身在可持续发展中的社会责任。这些付出也得到了认可:2024年项目落成之初,便喜获国际绿色建筑LEED的金牌认证。
△ ©存在建筑Arch-Exist
△ ©存在建筑Arch-Exist
△ ©存在建筑Arch-Exist
△ ©存在建筑Arch-Exist
设计从产品到建筑,都是对人体尺度的转化,有节奏的比例搭配形成韵律,而韵律形成被人所能感知的美感,柏丽与德禄产品的设计无不体现了对产品质量及设计本身的要求,也服从于具体的产品功能。
△ ©存在建筑Arch-Exist
△ ©存在建筑Arch-Exist
柏丽和德禄品牌关注产品的环保及绿色健康的理念,也启发我们在本项目中使用有机的、可持续的新技术材料。品牌也致力于投身一种当代的、环保的、自然的国际化设计工厂与品牌总部基地的建设,而这一付出也得到认可:2024年项目落成之初,便喜获国际绿色建筑LEED的金牌认证。
从外到内的可持续
△ ©存在建筑Arch-Exist
△ ©存在建筑Arch-Exist
△ ©存在建筑Arch-Exist
△ ©存在建筑Arch-Exist
简洁有力的体量是形成品牌认知度的重要因素,我们着重考虑建筑本身的视觉张力,并利用虚实关系的对比,形成多层次的空间关系。使用品牌的企业色,设计富有节奏感的建筑立面外观,形成一种简洁有效的品牌认知。
△ ©存在建筑Arch-Exist
通过对树林意境的重构,创造出一种类似于音乐乐谱的节奏感,来打破建筑物大体量对环境的压迫,也在这种序列中间形成一系列的橱窗,让生产本身成为观看的主题,如同一出现代工业的电影演绎,昭示着一种新的、革命性的生活方式的到来。
△ ©存在建筑Arch-Exist
△ ©存在建筑Arch-Exist
△ ©存在建筑Arch-Exist
△ ©存在建筑Arch-Exist
△ ©存在建筑Arch-Exist
柏丽德禄亚太生产研发总部被设想为一个微型环境,承载研究、实验、管理、展览和产品发布等功能。从平面上,四个相互交错的矩形体量保护着一个长条形的庭院。从剖面上,底层的大型体量由人造石材勾勒而成,而玻璃幕墙覆盖的二层则是一个由锌板包裹的雕塑体量。建筑的外部造型深受德国跑车(如宝马 M1)棱角分明的线条的启发。内部花园是研发中心所有部门的中心聚会场所,花园也是一个非正式的室外舞台,设有阶梯式座位和中央舞台。所有三层办公空间都向内部花园开放,既能采光,又可借助阳台和露台通向中心空间。修长的庭院也让人联想到永恒的意大利都灵的菲亚特工厂。
△ ©存在建筑Arch-Exist
△ ©存在建筑Arch-Exist
△ ©存在建筑Arch-Exist
员工们可以共享大部分朝向风景和通向露台的空间,包括餐厅、员工休息室、多功能厅等。 我们希望为工作人员创造一个充满灵感、感到自豪,且能放松的环境。与此同时我们还努力创造许多功能不明确的空间,希望在这里工作的每个人都有自己最喜欢的角落,无论是室外、室内,还是介于两者之间。建筑西南角的垂直塔楼是公共聚会空间:它的底层是公共餐厅,其上的所有楼层都设有开放的公共开放空间。这里所有的内部空间都朝向西侧流淌的溪水。
△ ©存在建筑Arch-Exist
△ ©存在建筑Arch-Exist
△ ©存在建筑Arch-Exist
室内采用简洁的材料,公共区域铺设人造石地板,办公和研发空间铺设地毯,便于未来灵活布置。大部分垂直表面采用金属、石材和玻璃材料,天花板保持干净裸露,以创造高度和空间灵活性。所有的室内隔断、滑动门、嵌入式橱柜都采用的是柏丽和德禄自己的产品。我们的想法便是,研发中心的内部工作空间同时也是一个 “现场展示厅”,员工们在自己设计和生产的产品间穿梭。
从办公到工厂的契合
△ ©存在建筑Arch-Exist
△ ©存在建筑Arch-Exist
△ ©存在建筑Arch-Exist
除尘装置
室外材料的色调延伸到生产厂房的外墙。垂直方向的渐变为水平体量提供了视觉韵律,同时与窗饰设计相融合。厂房内部采用大量天窗照明。生产线在几乎零粉尘的室内环境中运行。景观设计基于海绵城市的理念,借助自然雨水的地下渗透。大型水景和起伏的地面景观打破场地本身的单调感。建筑南侧种植了大量树木。随着时间的推移,这些树木将逐渐长大,为停车区提供遮阳,并为研发中心的主立面提供视觉缓冲。
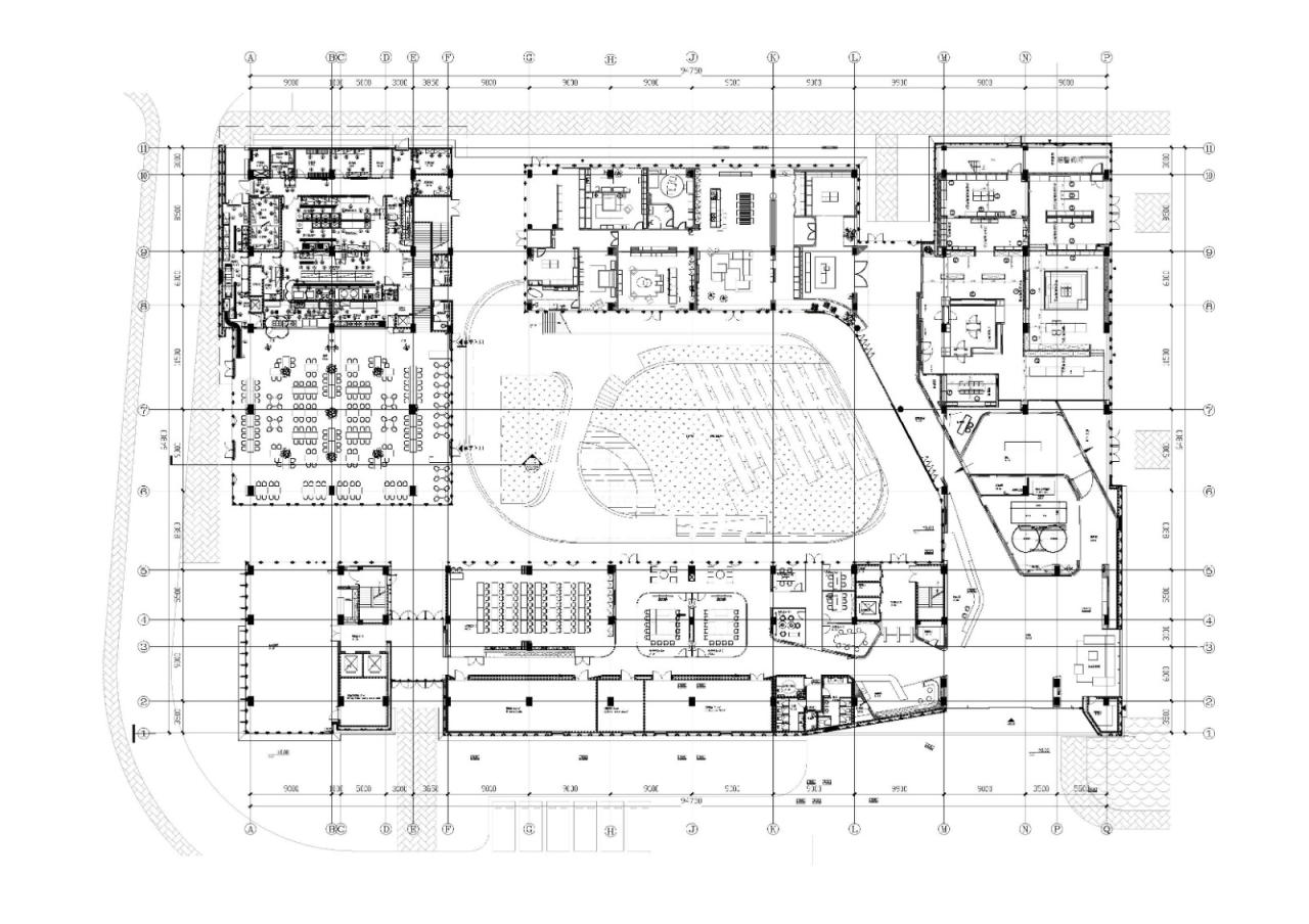
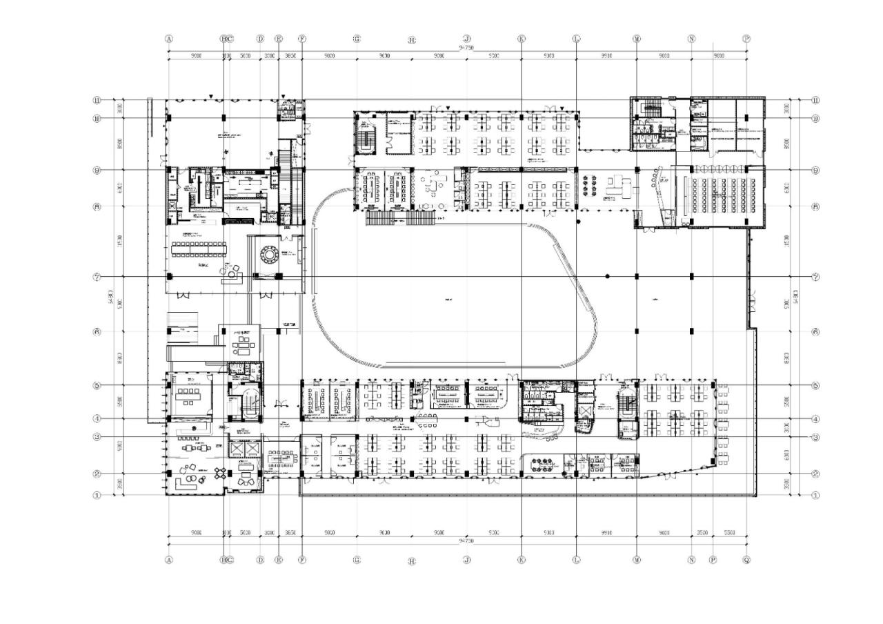
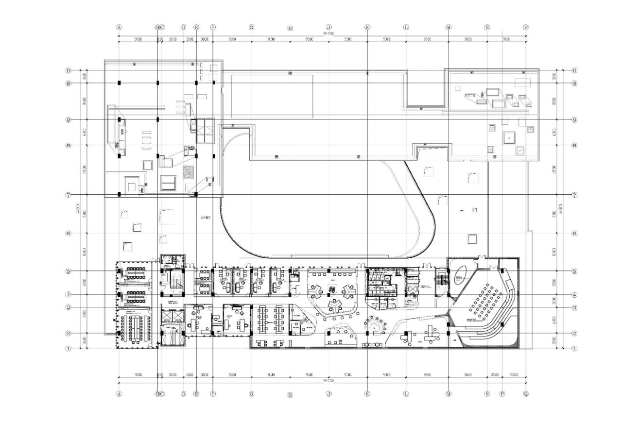
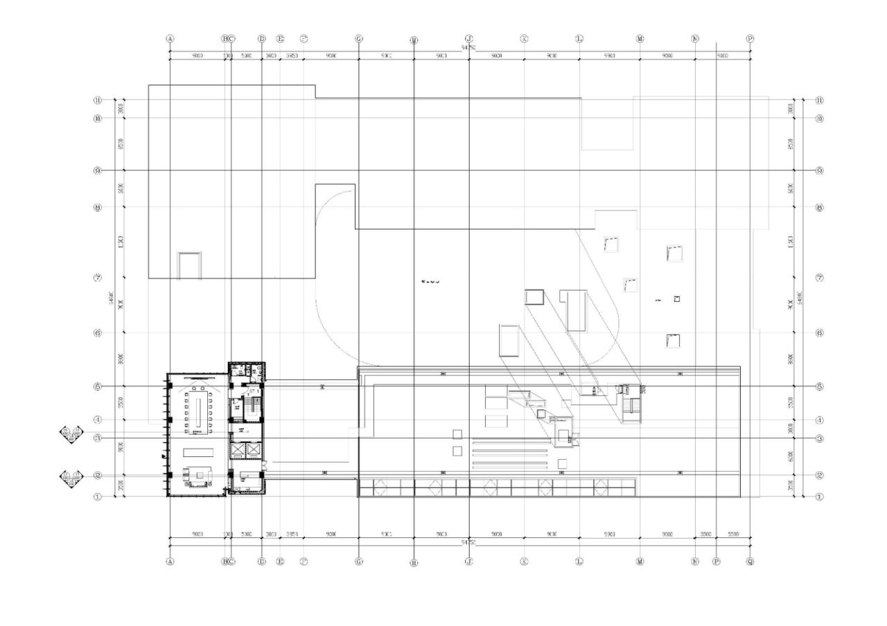
项目图纸
△一层平面图
△二层平面图
△三层平面图
△四层平面图
项目信息
项目名称:德禄柏丽亚太生产研发总部
客户公司:睿博无锡家居科技有限公司
设计公司:Chiasmus
主创建筑师:柯卫
设计团队:卜翔坤,殷风昆,孙智,程琛,魏磊,韩尚威,徐钰婷, 樊玉璇
项目管理:北京世邦魏理仕物业管理服务有限公司上海分公司
室内设计:Chiasmus 建筑事务所
施工图设计方:信息产业电子第十一设计研究院科技工程股份有限公司
LEED:上海迦画建筑工程咨询有限公司
施工方:中国二十冶总承包公司
项目地址:江苏省无锡市
摄影版权: 存在建筑Arch-Exist , 朱潇俊 Violin Bunny

BIM建筑网



































