2022年初,我们作为最年轻的设计团队之一,参与了深圳市南山区组织的“百校焕新”行动中碧榕湾幼儿园的改造设计。在短短40天暑假内,幼儿园完成了全部施工,并实现了空间形象脱胎换骨般的转变。
弹性策略:渊图远算
“百校焕新”的项目兼具“校园”及“改造”两类设计的难点,既受限于暑假短暂的施工周期和建筑规范的严格要求,又受限于原有建筑的空间和结构现实。而疫情又令我们在整个设计过程中都无法前往深圳踏勘,仅能依靠残缺不全或与现场不符的原始图纸和大量照片视频来了解基地信息,因此我们在项目启动初期便意识到,必须在设计策略层面综合预判各类限制前提和施工困难,精准找出可供建筑师发力的设计点,并预留充足的方案弹性来应对现场数据误差及实施过程中可能出现的各类问题,以“四两拨千斤”式的设计逻辑和手法来化解异地改造项目中饱含的不确定性。
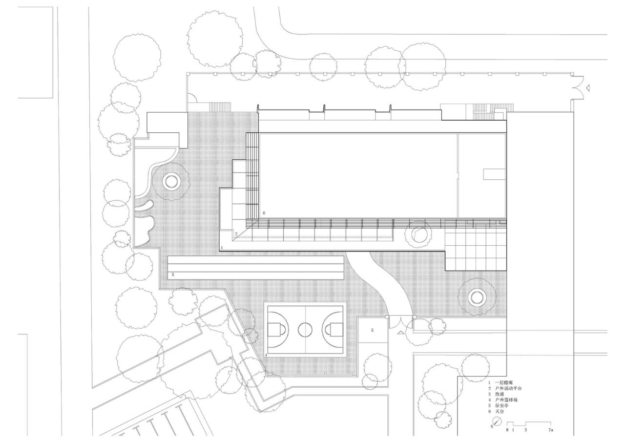
碧榕湾幼儿园仅有一栋主体建筑,经多年使用和加改建后,建筑外部形式比例失调、体量纷乱、色彩欠佳,内部也存在诸多问题。除水、电、消防等基础设施安全隐患外,园方提出诸多局部空间问题,如户外平台的加建玻璃棚结构脆弱且不防坠物、音体室因历史遗留的违建夹层结构不安全且占据层高而无法满足篮球课等活动需要、走廊与教室间的隔墙导致走廊空间利用率低并减少教室本就不足的采光,等等。
在紧张的设计周期压力下,我们力求避免对这些需求进行“头痛医头”式地逐一回应。由于待改造的室内空间都直接与外立面相接,我们决定以外立面改造的设计概念为叙事线索,来统合完成各处局部空间的设计。这样的设计策略大幅降低了前期沟通成本,让园方得以从宏观视角理解建筑师的设计意图,从而快速推进方案。
重塑立面:“榕林日暖”
改造前的立面开窗混乱、遍布杂乱的局部加建与空调外机。原外立面以蓝白为主、橙色为辅的涂装配色虽然效果欠佳,但有“蓝田日暖”的美好寓意。我们由此出发,结合幼儿园园名及师生的自称“大、小榕娃”,提出“榕林日暖”概念,将立面主色改为象征榕树的深棕、墨绿,并保留了园方设计的象征朝阳的橙色点缀。
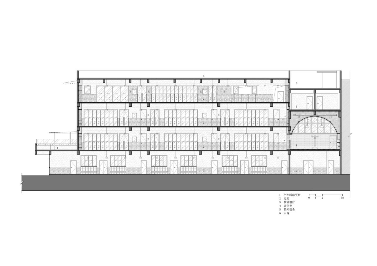
为改善室内采光,我们把音体室立面窄窗改为大型圆、拱窗,并在东南立面的教室窗外安装了反光板。在西北立面,我们将走廊窗洞扩至极限,并设置了遮阳百叶、空调机罩和首层、二层平台的檐廊,它们共同形成多条如同层叠的树盖般横贯整个立面的绿色水平线条,充分利用建筑本身横向展开的体量比例,简单而强势地统合了改造前纷乱凹凸的外观,构成新的建筑形象。音体室的圆窗则如同透过树荫升起的初阳,成为主立面的点睛标志。
我们用新建钢结构檐廊取代了二层平台的加建玻璃棚。轻质的聚碳酸酯板屋面过滤直射光,并以自身弹性降低坠物风险。柔软的黄色EPDM地面既能保护儿童活动安全,又能通过光线漫反射提升室内走廊亮度。平台与走廊间的外立面实墙被改为通透的落地门窗,将室外景色和阳光引入建筑的同时,也连通室内外形成环状动线,吸引儿童自发到户外平台上探索。
“暖阳大厅”:穹顶之下
作为幼儿园最大的室内集会空间,音体室拆除违建夹层后的空间挑高达到5米,虽可满足室内篮球场功能,但对儿童来说尺度过于空旷、缺乏安全感。因此,我们将天花设计为一面巨大的拱顶,既保证篮筐处净高,又以垂翼营造出舒适的空间包裹感,还可利用拱顶两肩隐藏杂乱的暖通管道。
在拱顶两侧设置的圆洞既可让声波穿过吊顶被布置在墙、顶面的橙色吸音板吸收,解决了拱面带来的拢音回声问题,又能作为空调风口,并在视觉上让人联想到篮球、太阳等意向。于是,一面吊顶同时处理了空间、心理、声学、设备、审美等问题。
与拱顶配合,木地板上翻形成适合儿童尺度的墙裙及壁龛,强化了空间包裹感。空间两端的大型拱窗和圆窗为室内带来充足自然光线,也让音体室成为概念故事中的“树洞”空间,被园方命名为“暖阳大厅”。吊灯、投光灯与轨道射灯的组合则能满足房间的多功能属性,为音乐舞蹈、演出会议等活动提供不同照明方案。
开放走廊:时间共享
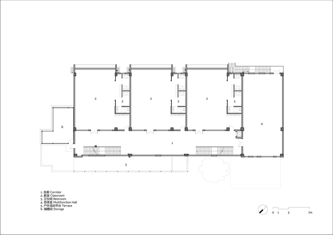
幼儿园的教学并不需要中小学式的全封闭课室,拆除教室与走廊间的隔墙在改善教室采光之余也可让每层儿童的日常自由活动范围扩大,这恰符合长期从事幼儿园设计的建筑师 Jure Kotnik 提出的“时间共享空间”理论。Kotnik经研究指出,当学校的学习、游戏、生活空间打通为一个自由平面后,儿童的自我认知能力、学习能力、社交技能与身体素质都可得到提高。
我们以此为据,用每间教室宽达5米的玻璃折叠门取代原有隔墙,与曾经利用率极低的走廊无缝衔接,将每层楼面连通为一个供儿童自由活动“串班”的完整大空间。自然光线也得以从扩大的外立面长窗直接穿过走廊进入教室。延续音体室的“树洞”意向及材料,走廊1.2m高度以下的墙地面及家具均使用原木色材质,在儿童尺度形成温暖而具有包裹性的心理暗示。
考虑到紧张工期,走廊设计中还采用了一系列“低技”手法:如新设灯具均以明管走线以避免开槽、如仅用局部挑板灯槽遮住原有桥架而不做整体吊顶、又如楼梯栏杆仅加高扶手部分以满足安全规范而非整体拆除重建。
经历了为期一个多月改造后的碧榕湾幼儿园旧貌换新颜,不仅得到了众多小朋友们的喜爱,也获得了家长、园方以及社会的一致认可。作为建筑师,我们认为物理环境也是儿童学习成长的重要参与者,良好的教育空间对儿童的性格养成和心智开发都会产生积极影响,希望未来会有更多校园从规训化的空间范式回归到呵护、启迪的教育本源,给孩子们的校园时光增添温暖明亮的色彩。
△原始建筑
项目图纸
△手绘图
△总平面图
△平面图
△立面图
△剖面图
△轴测分析图
△分析图
△细部结构大样图
项目信息
建筑师:不也设计工作室
面积:3000m²
项目年份:2022
摄影师:ACF 域图
厂家: Gerflor,JBS,欧氏地板
主持建筑师:姜伯源,王静雯,杨硕
设计团队:姜伯源,王静雯,杨硕,何子杰,丘容千
顾问单位:深圳市规划和自然资源局,香港中文大学建筑学院
代建单位:深圳市振业(集团)股份有限公司
施工单位:深圳市建匠工程有限公司,深圳中铁二局工程有限公司
照明:上海格锐照明设计有限公司
地点:深圳

BIM建筑网





































