作为一名设计师,能有机会去实现自己设计的独立住宅,是一件极其幸运的事情,这件事自设计师进入设计行业开始,就一直在畅想。
然而,这个契机对设计师本人来说来得多少有些让人猝不及防。事后想起,机会好像就是不喜欢给人时间准备。一场大雨,老宅房子变成了危房,申请危房,重建新房,立刻就提上了日程。
十余年的室内设计经验,让设计师更多地是从内往外看,而从建筑开始,多了一层由外而内的思考。当人有了更多的选择,就会变得贪心,尤其是设计师本人即业主,就会想要更多公共空间,更大可用面积,更多自然光线,一旦思考的东西变得繁杂,就会丢失真正想要的部分。
设计师希望能做出一个有情绪的房子。情绪的表达方式有很多,可以是音乐,文字,电影等等。而房子的情绪,他的理解是光线以及家人之间关联。光能很好地表达一个房子的情绪,光因四季、天气而变化,可以给人带来各种不同的感官体验,进而触发人的思绪。
在家庭人员不多的条件下,空间则用“呼唤"形成家人之间的互动,从而激活房子的活力。
四代同堂的自建房需要照顾到每一代人的生活方式以及习惯,在保持距离的同时,互相关注。
所以在空间的规划上,采纳了分区生活的方式:一个楼层一代人。每层除了设计独立卧室外,还会以小客厅、户外庭院、阳台等形式,配以独立的活动空间,以便去延续各自的生活习惯,会各自的朋友,打造各自舒适的环境挑空。
从一楼贯穿到屋顶,既解决了采光问题,也通过挑空的空间实现了家人间的互动。有什么事情,直接抬头或低头喊上一声,应答之间,柴米油盐。
建筑部分
中国大部分农村的住房,都相对紧密、集中,“墙贴墙”,“握手楼”的场景比比皆是,如此带来的问题就是采光和通风的严重不足。这栋老宅16米进深,左右间距只有1.5米,中间段的空间基本处于黑暗阶段。建筑的6个面中,3个面处于无光状态。因此在设计时就得从另外三个面入手:通过不同方式,把光引至黑暗区域。通过不同尺度,形状的窗,去规划光线进入的方式。窗构造形成的同时,建筑的形态也就自然而然地出来了。
室内部分
动线是我在设计时考虑最多的一个部分,设计师一直理解为,它就像人体的血管一样,能够顺畅流动的同时,行径过程中又充满趣味。
阁楼的设计更像是一个给“贪心”的自己的彩蛋。从进入的旋转楼梯,到屋顶的天窗,到南阳台的中轴门,再到北阳台的霍比特人门洞,大部分都是结合现场感受的“即兴”改动,多了一些随心所欲和任性。
当然在入住后的未来,会有很多新的思考在接下来的几十年里,会慢慢的由内而外的变化,这可能才是建筑真正的生命力所在。
项目信息
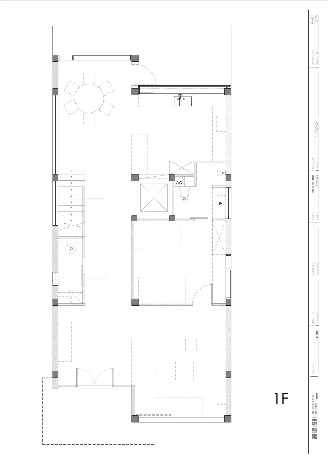
△一层平面图
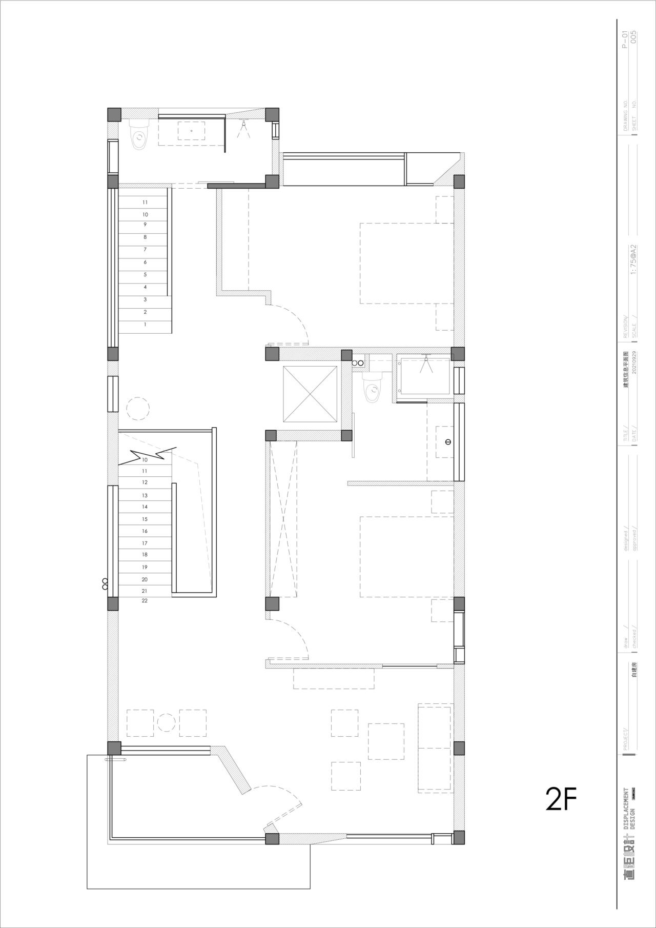
△二层平面图
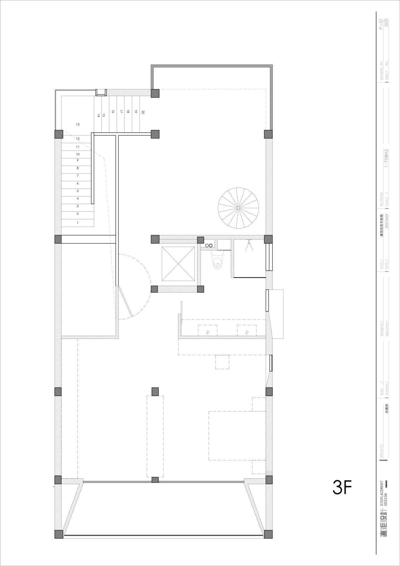
△三层平面图
△四层平面图
△屋面平面图
项目信息
建筑师:直距建筑
面积:460m²
项目年份:2023
摄影师:Wmstudio
厂家: Nippon Paint
主创建筑师:徐俊伟
设计团队:施玮,舒之捷
结构设计:施维
景观设计:直距设计
施工方:泰州澳洋建筑装饰工程有限公司
其他合作方:上海三圆照明科技有限公司
委托方:设计师自宅
地点:上海,中国

BIM建筑网





































