01 项目分析
三峡巴蜀中学位于重庆市三峡地区巫溪县,占地面积92995.12平方米,总建筑面积80876.11平方米,设有84个班级,其中高中48个班,初中36个班。项目功能齐全,涵盖教学楼、礼堂、体育馆、食堂、宿舍、户外活动场地和连廊等,可同时容纳4,200名学生。
基地整体呈东西向横向延展,东高西低。场地最高点位于南侧山头,标高308.75米,最低点位于基地西侧谷地,标高254.75米,最大高差达54米。
02 设计理念
① 自然旋律:建筑与大地的共鸣之曲
设计灵感源自三峡地区壮丽的自然景观,捕捉其群山连绵的灵动与韵律。建筑巧妙融入地形,与山水共生,宛若自然的一部分。通过将三峡山川的壮美与力量转化为建筑艺术,创造出与自然共鸣的和谐空间,展现出自然与建筑交织的美学理念,书写一篇篇建筑与自然共舞的诗篇。
② 高差之韵:层次空间的艺术演绎
项目通过顺应地形设计,巧妙利用54米的自然高差,实现人与自然的和谐共生。层层退台设计增加了建筑层次感,使师生能够随时享受自然美景,同时提供了丰富的教学和活动空间,满足现代教学需求。悬挑和架空设计提升了建筑的现代感和美观性,提供了额外的活动空间,融合了功能性与审美性。
03设计呈现
① 生态诗章-校园中的自然与梦想
本项目以“自然共融、梦想启航”为核心理念,致力于打造一个融合科技教育、人文关怀与艺术创新的未来教育空间。校园设计巧妙地融入三峡地区的自然景观与文化底蕴,独具匠心,兼顾功能与美学。每一处建筑如同自然生长的一部分,为师生提供了一个激发创造力、实现梦想的理想场所。这里不仅是知识的殿堂,更将成为三峡地区又一独具魅力的标志性高中校园,象征着人与自然和谐共生的美学理念。
②立体视界-多维空间的美学演绎
在山地校园建筑设计中,我们注重与自然的融合,将建筑与地形的起伏巧妙结合,形成独特的多维空间体验。每一层建筑、每一个视角,都是风景的一部分。通过精心规划的布局,校园不仅是知识的殿堂,更是探索自然和激发灵感的场所,为师生提供一个与自然共生、实现梦想的理想环境。
活力轴将校园划分为东西两大功能区,东区为学习区,西区为生活区,两区功能互不干扰。活力轴本身也兼具运动场地功能,汇集了各种球场、跑道和风雨操场等活动空间。
风雨操场作为北侧临城市道路的主形象建筑,具有典型的山地建筑特征。该建筑结合场地高差设计为覆土结构,屋顶与地面平接。全玻璃幕墙使其宛如山体中长出的璀璨宝石,光彩夺目。
04特色空间
结合现场地形,我们提出了空中社交网络系统与自然山体景观公园的设计概念,旨在创造出多层次的互动空间。建筑依山而建,与景观公园无缝相连,通过步行天桥和悬空平台连接各区域,提供交流与观景场所。此设计不仅增强了社交互动性,还利用山体高差形成独特景观视角。景观公园作为生态保护区和校园的一部分,为师生提供休闲与灵感空间,打造科技、自然与社交完美融合的学习环境。
① 空中社交网络系统
为解决高密度校园中活动和社交空间不足的问题,我们设计了空中社交网络系统。面对4200名学生在7层教学楼内的瞬时人流压力,仅靠楼梯和电梯无法解决。该系统由串联教学与实验单元的架空层组成,形成多个不同标高的空中平台,既是便捷通道,也是观景场所。这一系统不仅提供了全新的交通方式,还通过架空层分割教学楼,构建了高效便捷的立体社交通网络,缓解了社交空间不足的问题。
②自然山体景观公园
我们对保留的山体进行了科学梳理和景观设计,使其有机融入校园布局。自然山体景观不仅提供丰富的视觉体验,还通过步行天桥和悬空平台连接各建筑区域,形成多层次互动空间。此设计在保持场地自然特征的基础上,创造了多样化互动空间,同时提升了校园功能性和使用效率。
③ 建筑生态呼吸系统
设计结合场地的退台、庭院和底层架空特点,有序组织串联这些空间,促进空气流通,减少空调使用,从而降低能耗和碳排放
项目图纸
△总平面图
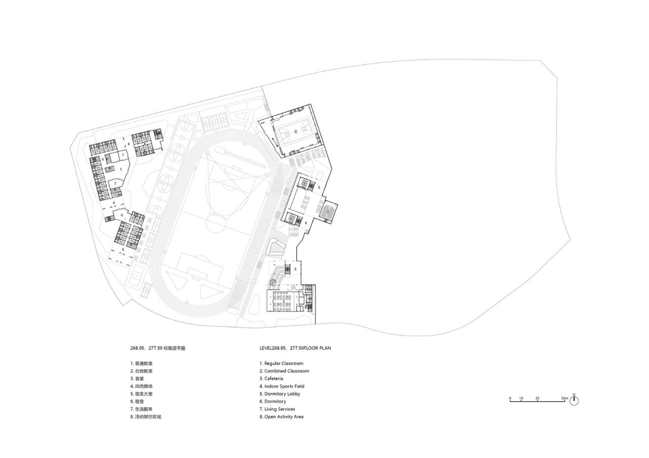
△268.95标高层平面
△282.45标高层平面
△286.95标高层平面
△290.50标高层平面
△剖面图
△剖面图
项目信息
项目名称:三峡巴蜀中学
设计单位:西筑建筑设计事务所+中机中联工程有限公司
设计时间:2023年1月—至今
主持设计:何光乾 王宜廉
建筑专业:邹娟任泓州陈梦鸽黄启川高洋曾晓李黔渝张瑞鹏陈俊杰邹洋江恋马聪易茂杨光明曾非
结构专业:李杰 朱宇峰 刘啸 董伟 杨波 刘遥 卿展波
给排水专业:刘雨佳 冯学健 傅健 颜海波
电气专业:廖丹 辛永祥 赵建兴
暖通专业:王策策 周一芳 李霜玲 沈虎 陈晓乐
总图专业:管伟康 朱凌霄 白波 薛飞
项目地点:重庆·巫溪
建筑面积:80876.11㎡

BIM建筑网




































