在1960年代,斯洛文尼亚现代主义建筑师 Savin Sever 设计了青少年图书出版社印刷厂。这是当时最大最现代的印刷厂之一,其模块化的重复混凝土结构代表了其核心的建筑表达。可见的混凝土结构,这种诗意的建筑元素,是战后现代主义时期的一个特征。Plečnik 最重要的学生之一 Edvard Ravnikar ,是这一时期斯洛文尼亚建筑界的关键人物。他受到了自己在勒·科布西耶工作室的合作的强烈影响。Edvard Ravnikar 发展了自己的建筑诗学,既汲取传统又以现代主义的方法推进,成为了战后斯洛文尼亚建筑师一代的标志。Savin Sever 是这所谓的卢布尔雅那建筑学派的最杰出代表之一。
这家老印刷厂在21世纪初进行了现代化改造,当时的管理层引进了最先进的机器,但遗憾的是这些机器并没有先进太久。由于新数字技术的出现,印刷行业的环境发生了变化,这对传统印刷厂来说是致命的。老印刷厂很快关门大吉,大部分机器被卖掉,巨大的建筑物空置了好几年。然后,一些创意企业在这栋建筑里找到了落脚点,一个独特的项目开始在这个地点引发新的兴趣。
新业主决定在2022年对其进行翻新。现有的建筑结构受到保护,而且作为 Sever 非凡建筑理念的体现,这栋建筑本身就非常有趣,拆除它简直是不可想象的。这座建筑原本是为重型机械设计的,因此无需额外加固就能适应各种现代用途。最大的挑战在于建筑的隔热问题。如何在一栋按相反逻辑建造的建筑中确保现代化的气候条件呢?这座薄壁结构充满热桥,最初是为了散发印刷机产生的多余热量。现在,这个原理必须彻底颠倒过来。
因为需要保留可见的混凝土结构,并添加新的隔热外壳,建筑师通过在建筑内部增加隔热层和额外的玻璃来应对这一挑战,这样原有的屋顶玻璃棱镜得以保持完整。置于混凝土构件之间的玻璃棱镜为整个建筑深处提供自然光线。外墙的翻新是基于 Sever 原本未能在建筑建造时实现的设计方案。他原本想用水泥板,但当时太昂贵,所以外墙改用了模块化砖块。重新采用 Sever 的原始构想为建筑的技术升级提供了解决方案。
对原建筑结构唯一的重大改动是新增了一个入口。原先,印刷厂的工人是通过办公区的更衣室进入大楼的。这种设计不适合翻新后建筑的用途。因此在南侧增设了一个宏伟的新入口。阶梯式的大厅在建筑内部营造出一种城市广场的氛围,欢迎进入的人们,并成为一个会面点。它还可以作为举办活动和表演的场所。这里保留了一部分原建筑的印刷机械,以展示并铭记其昔日的用途。
近几十年来,Sever 的多个建筑作品被拆除。尽管 Sever 本人倡导功能主义原则,认为一旦建筑不再发挥功能就应该被新建筑取代,但这些拆除行为实在是不必要的悲剧,多半是出于经济利益的考虑。相比之下,这座老印刷厂获得了尊重性的翻新,重获新生,这不仅是对其创造者的最好致敬,也为在被遗忘的工业遗产背景下注入当代新内容提供了一个范例。
项目图纸
△总平面图
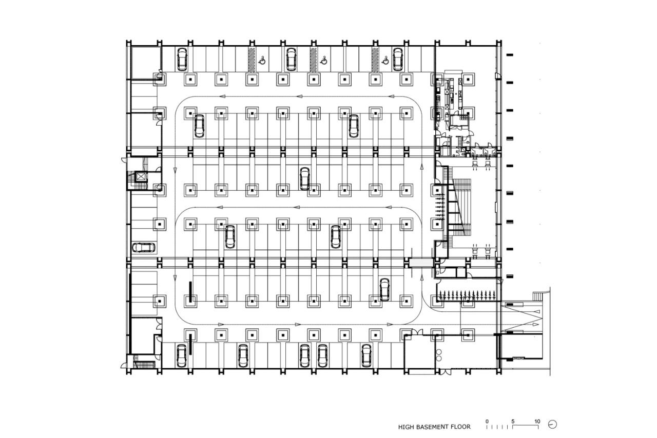
△地下室平面图
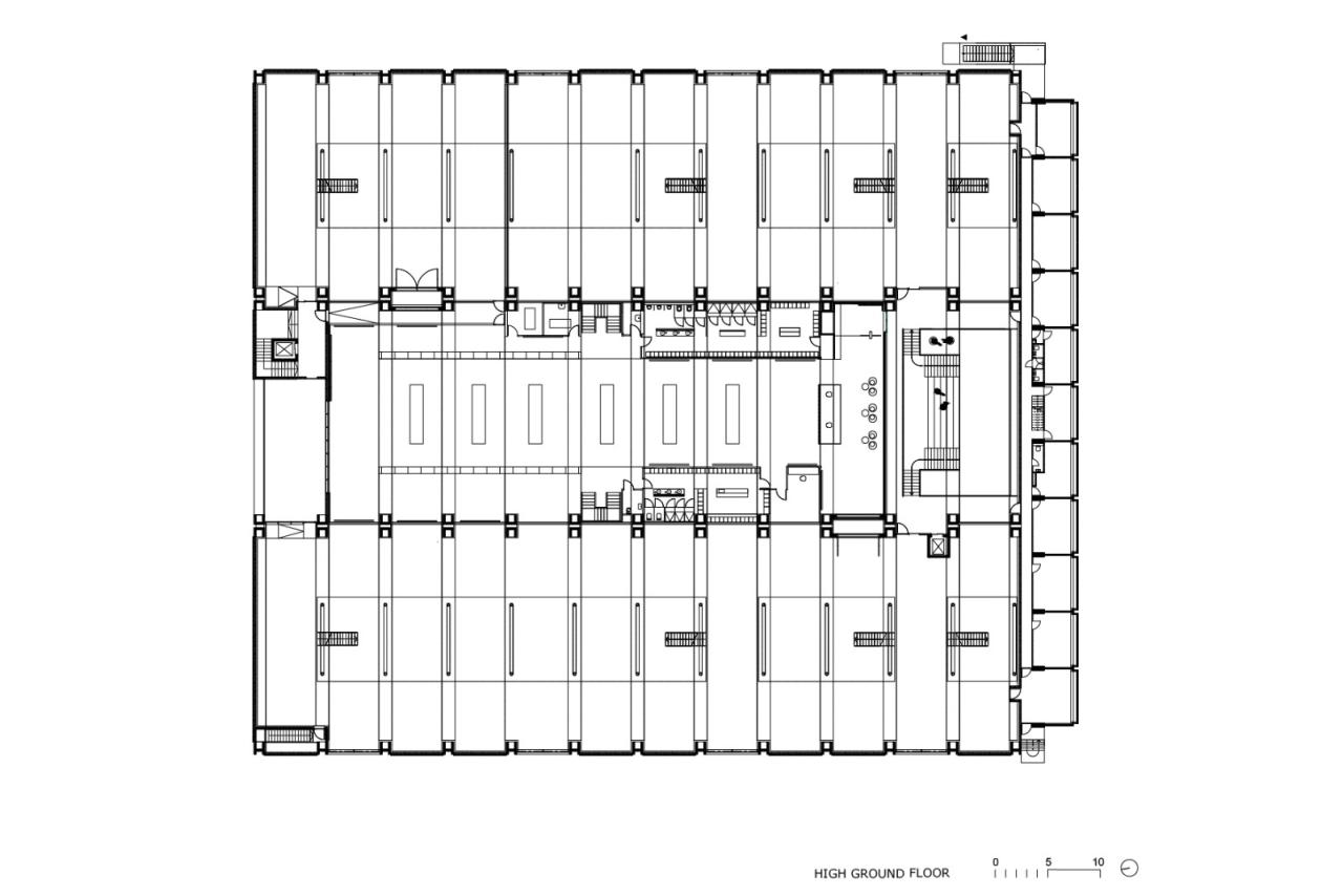
△平面图
△屋顶平面图
△剖面图
△立面图
△立面图
△立面图
△立面图
△细部结构大样图
项目信息
建筑师:OFIS Architects
项目年份:2024
摄影师:Tomaz Gregoric,Janez Martincic,OFIS Architects
OFIS项目团队:Rok Oman, Špela Videčnik, Janez Martinčič, Andrej Gregorič, Matej Kranjc, Rok Vrenko, Borut Bernik, Marieke Van Dorpe
结构工程师:Milan Sorč – Project PA
项目:2021-24
电气工程师:Pro-elekt
结构工程:Project PA
机械工程:ISP
地点:斯洛文尼亚

BIM建筑网









































