书村幼儿园位于广东粤西阳西县沙扒镇,是一所邻近风景优美的月亮湾的滨海乡村幼儿园。用地面积 4567 ㎡,总建筑面积 4405 ㎡,包含 12 个幼儿生活用房以及音体、美工、科学、阅览活动室,还有可供幼儿活动的室外和半室外场地。
项目旨在缩小阳西县乡村与城镇之间的教育差距,推动乡村幼儿基础教育发展,打造一所可以“开创阳江,面向未来”的示范性乡村幼儿园。通过华南理工大学建筑设计研究院设计团队的技术帮扶,在有限的建设场地和低廉的造价限制下,打造了一所低能耗、高品质并具有滨海文化特色的乡村幼儿园,获得 2023 年度 IDA 国际设计大奖教育类建筑银奖。
基地位于典型的粤西乡村中心地带,周边由密集的次干道和支路划分出独栋的乡村自建房,基地入口正对两条主要村道的交叉口,是村民外出和货物运输的主要通道。设计将建筑入口向内退让 17 米,既方便人流和车流的通行,减少幼儿日常出入的安全隐患,又为在此等候接送的家长和周边活动的村民提供舒适的场地。
设计理念围绕“简洁、纯粹、融入自然”展开,建筑主体由若干模块化的方形体量组成,犹如从场地中生长出来,通过架空连廊限定出场地边界,自然地融入到周边以方盒子为形态主体的乡村自建房肌理中。整个建筑采用纯白色作为主色调,在月亮湾海边蓝天白云的背景的映衬下,营造出一种和谐自然的教育环境。
为充分展现当地特色的海洋文化,方案从海洋的涟漪、生物曲线元素中获取灵感,二层连廊融入曲线的形态,对场地内部形成环抱之势;主要的教学空间融入乡村典型的建筑肌理,化整为零设计为若干标准模块盒子,顺应场地进行扭转,由走廊呈鱼骨状串联。
设计巧妙地从“风、帆、波浪”中提取设计元素,将纯净的体量与简洁现代的设计手法相统一,通过若干组挑出的弧形山墙模拟海风吹拂的状态,干净利落的线条创造出流动的视觉效果,增强建筑的动感与轻盈感。
在幼儿生活用房的墙面上布置大面积的玻璃窗,引入充足的自然光线,提供开阔的视野,让室内空间与外部环境无缝连接,增加空间的通透性,并通过合理的窗户布局和开口设计,保证室内空气流通,提供健康的学习环境。
为增强建筑的趣味性和活泼氛围,外立面格栅选用明亮的红、黄、蓝三色,在海边阳光映照下,与弧形山墙共同呈现出具有丰富光影的立面效果,在满足美观实用的同时增强了建筑的视觉层次和童趣。
阳西县夏季炎热多雨,常有台风侵袭,为应对高温多雨的天气,设计通过架空连廊增强各个功能模块之间的联系,提供了遮风避雨的首层灰空间和可远眺的二层活动平台,不仅提升了空间利用率,保证了幼儿活动的连续性,还形成了良好的自然通风廊道,改善局部微气候。内部空间布局灵活,可根据不同的教学活动进行调整,满足幼儿园的多样化需求。设置开放的活动区,鼓励孩子们自由玩耍和探索,激发他们的创造力和想象
建筑选用成熟可靠的框架结构和较为易得的本地建材,降低了施工成本和难度。设计优先采用被动式节能技术,例如东西向山墙以实面为主,南向通过挑檐减少日晒,架空连廊提供遮风避雨、通风降温的环境,保留和利用原有植被等,创造了一个舒适、安全、环境友好的学习和活动空间。
项目图纸
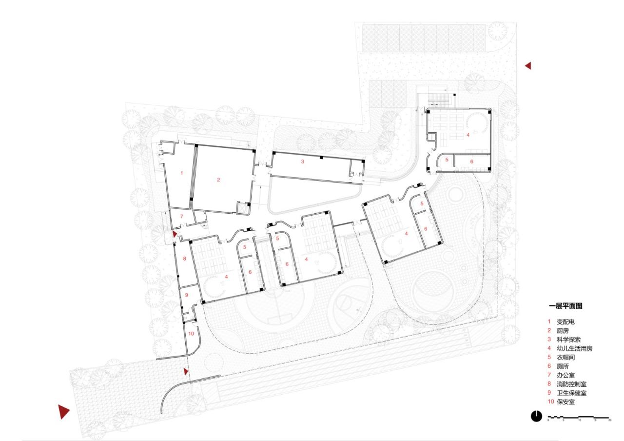
△一层平面图
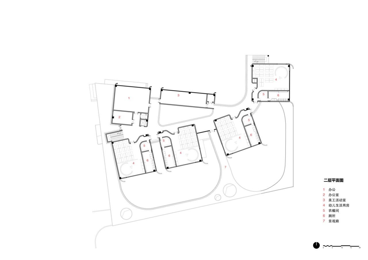
△二层平面图
△三层平面图
△四层平面图
△剖面图
△剖面图
△立面图
△立面图
项目信息
建筑师:华南理工大学建筑设计研究院有限公司
面积:4405m²
项目年份:2023
摄影师:徐勉
厂家: 华润,南玻,豪美
主创建筑师:丘建发、包莹、谢君琳
设计团队:丘建发、包莹、谢君琳、曹韫烨、黄雪英
合作设计方:一方设计集团有限公司(施工图)
景观设计:华南理工大学建筑设计研究院有限公司
施工方:中铁二十局集团有限公司
委托方:阳西县教育局
地点:阳江

BIM建筑网



































