“不,这个无限寂静的世界一点儿也不好客。”—托马斯·曼《魔山》
2024年,Wutopia Lab 设计的玉山岚峰:由三种穿孔率组合的半透明白色法拉利膜包裹的正大太阳河咖啡小镇艺术中心在海南万宁落成。在印尼归国华侨开拓的咖啡种植园上的艺术中心,以日夜交替的戏剧性视觉表达,成为当地一个象征奇迹和希望的文化地标。
△玉山岚峰夜景远眺©刘国威
故事开头还是救场的老套路
甲方不满意艺术中心的方案,在上一位建筑师江郎才尽后,找到我,希望我能创造具有内涵和视觉兼顾的形象。限制条件是地下室已经动工,我不能改变梁板结构类型,新建筑不能超过原来结构的设计荷载,也不能超出原来的建筑控制线。
△玉山岚峰日景区域鸟瞰©刘国威
启示
咖啡小镇的前身是印尼排华时期回国的华侨,在一片蛮荒的丛林中开垦出来的咖啡种植园并建设了咖啡厂。印尼归侨的这段迫害,流亡,回归,垦荒并创造了中国的咖啡产业的传奇深深触动了我,我把这看成对那个阶段正在挣扎的我的一种鼓励,一个关于奇迹的启示。
△玉山岚峰日景广场鸟瞰©刘国威
△玉山岚峰湖对岸视角©刘国威
唤醒了一个Meme
甲方说,虽然在万宁,但咖啡小镇看不到海,有海就好了。华侨能创造奇迹,既然没有海,那就造一个吧。看到原方案确定的三栋楼的布局,综合造海的冲动唤醒了一个在我脑海里的Meme,一池三山。我在浮山云舍项目中使用过这个概念,区别是在浮山我把建筑作为罗浮山和太平山之后的第三山来创作的。在太阳河咖啡小镇,我决定把原有的三栋楼直接作为三山,并在主山前创作一个人工海子,以一池三山这个传说中的仙境来致敬华侨们的奇迹以及对未来更富足自信的生活的希望。
△玉山岚峰主立面©刘国威
△总平面图©Wutopia Lab
Plot : 造山
原方案的三栋楼中,东西附楼为接待和办公,中间主楼是艺术中心主体。东西附楼是辅山,主楼是主山。主山前造海。沿着海子上的栈道进入主山大厅,海也如潮汐漫进大厅,在大厅分两条路线登山,一路东进,先进入咖啡接待区经过开敞洽谈区来到二层华侨文化展区然后到室外外摆区,这里通过天桥可以汇聚辅山过来的人流,然后沿着室外楼梯到达三楼多功能厅的室外平台。另外一条线沿着大台阶登上夹层再到二楼或者电梯直上三楼,或者在二楼直梯到达三楼,穿过多功能厅在平台和第一条路线会合沿着户外楼梯登上屋顶,最后是一个隐藏的小咖啡园,并能极目整个小镇。
△玉山岚峰入口栈道©刘国威
△太阳河大厅©刘国威
△太阳河大厅楼梯©刘国威
△太阳河大厅夹层©刘国威
△艺术中心一层轴侧图©Wutopia Lab
△艺术中心二层轴侧图©Wutopia Lab
△艺术中心三层轴侧图©Wutopia Lab
登山的路线穿插室内外,让原来方盒子的主楼建筑变成了层层退台的抽象的主山。大厅则通过加强局部主梁拔掉了一根柱子而让空间空旷起来。造山的Plot一旦建立清楚。所有的细化文本都会按照这个深化细化和展开。
△户外平台及连廊©刘国威
△连廊©刘国威
△一层平面图©Wutopia Lab
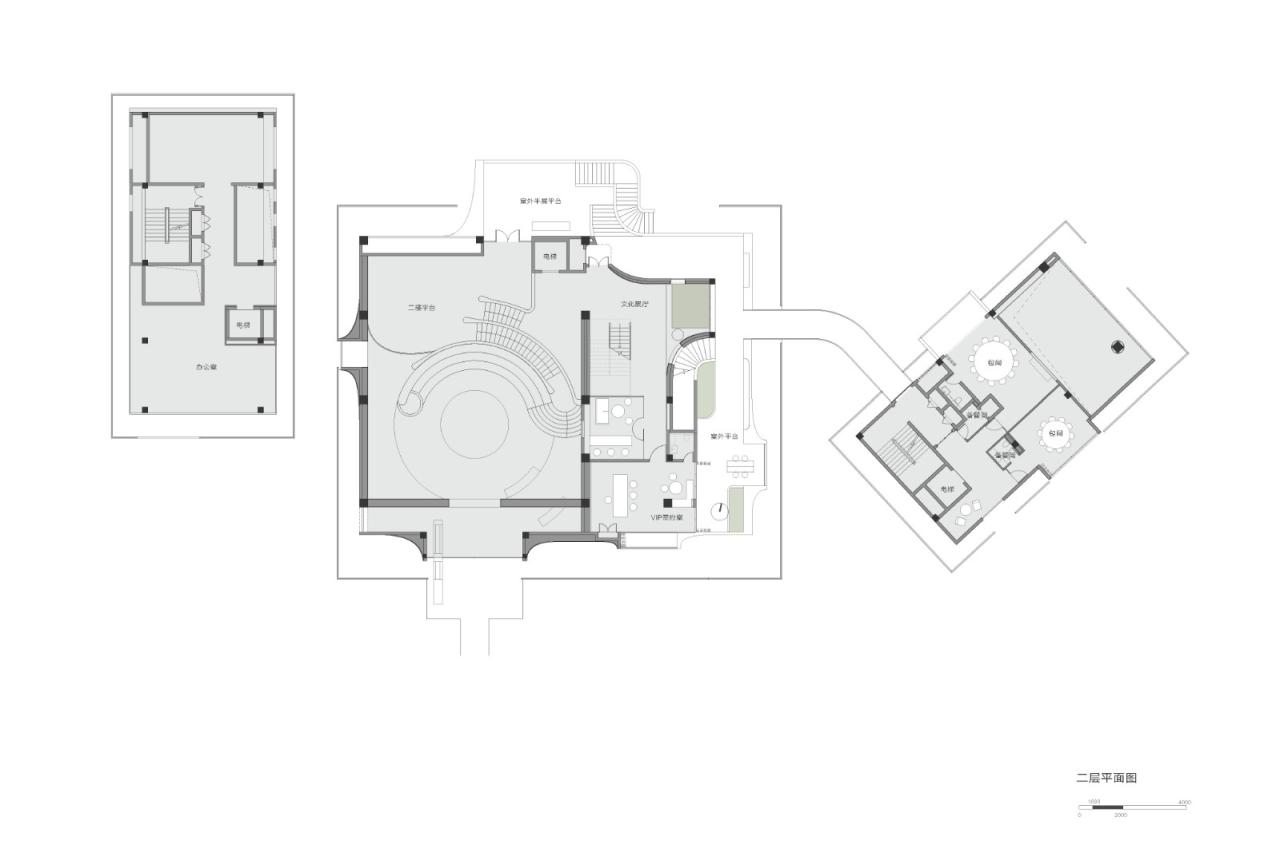
△二层平面图©Wutopia Lab
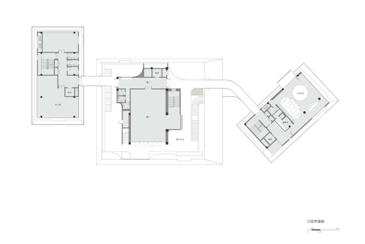
△三层平面图©Wutopia Lab
作为加法的减法
退台的主楼结合功能确定的附楼,在视觉上不统一,也很容易淹没在背后开发的集群建筑中。我决定做一个加法,为三栋楼各自罩上一个半透明的罩子。三个罩子可以摆脱三栋楼的功能立面而独立塑造抽象过的山峰。最后达到在丰富背景中做减法的突出效果。
△整体主立面图©Wutopia Lab
△西北-东南向剖面图©Wutopia Lab
△水面-栈道-膜结构©刘国威
△膜结构与平台©刘国威
罩子脱离建筑的气候边界会形成了一个新的视觉边界,两个边界之间是真正意义上有遮阳的灰空间。我对把视觉边界和气候边界剥离的实验一直保有极大的兴趣,这其实是中国传统建筑的实际使用经验,对于不同天气下,中国传统建筑如何利用临时构筑物扩大或者减少灰空间而提高居住舒适度的研究文章将发表在书籍《唯美:江南,江南》中。
半透明的山
因为结构荷载的限制,我用轻质的膜代替常用的穿孔铝板。三种不同穿孔率的法拉利膜从低往高,透明度渐变为大,形成了半透明的仿佛山峰一样的视觉边界。并在海南炽热的阳光下在屋顶形成了闪烁的效果,这也是flickering的由来。
△玉山岚峰鸟瞰©刘国威
△膜结构与场地关系©刘国威
互文本(intertextuality)
山洞和拱形大厅,山路和户外楼梯,太阳和玻璃圆窗,洞口和天光,膜结构和树荫,水渠和造景,海子和水池,沙滩和地面,悬崖和平台,自然被抽象后结合建筑部件形成一组组互文的文本,镶嵌成艺术中心和山这一组超级互文本。在文本的解读中发现历史,神话,记忆,自然,象征乃至谜语包括建筑的模式语言等等而可理解。
△太阳河大厅©刘国威
△洽谈大厅©刘国威
双子座
白天,白色的玉山倒映在白色水池中会不自觉具有了神圣性。双子座建筑师着迷于即时的神圣性的转化。于是邀请照明设计师在暮色中创作出神圣性的另一面物质性,临时的物质性。半透明的玉山会转化成不同颜色的灯山,象征不同但丰富的欲望。
△黄昏中变色灯光渲染膜结构©刘国威
△变色灯光与湖面©刘国威
不过在主山的大厅里,最后会有个饱和度极高的灯光设计。在蓝色背景下,红日照耀,这个时候,是罗斯科的复活,这个时候,就在外面看上去变化多端的物质性背后,一个不同于纯净白色的神圣性即时诞生。
△太阳河大厅灯光变幻©刘国威
在物质生活中即时即兴的神圣性,其实是中国传统建筑在真实使用中最具有哲学意义的时刻。我用玉山表达了这个时刻。
△太阳河大厅灯光细部©刘国威
建筑即媒体(等价于文本,行动,事件)
建筑是特定人群出于特定理由在特定时间在特定地点创造的特定事件,并通过口述,文字,绘画,摄影,印刷,摄像,互联网等工具介入到社会,交织着作者,读者各自的解读和误读形成对社会特定层面的文化习惯的影响和改写。就这点而言,建筑即媒体。
玉山岚峰就是这么一个作为结合了记忆,传说,神话,限制,不确定性(疫情的反复),挫折,等待,雄心,希望以及建筑学一些常识,隐性知识和历史的超级文本而受媒体欢迎的事件。
△玉山岚峰夜景鸟瞰©刘国威
“一种心灵(意即有意义的)现象之所以有意义,全然是因为它超越了自我的局限,表现并象征着某种精神上更为宽广、普遍的东西。”—托马斯·曼《魔山》
项目信息
项目名称:玉山岚峰 正大太阳河咖啡小镇艺术中心
设计公司:Wutopia Lab
主持建筑师:俞挺
项目经理:穆芝霖
项目建筑师:詹孛迪,郭宇辰,杨思齐
建筑施工图设计单位:海南省设计研究院有限公司
室内施工图设计单位:上海呈煜空间设计有限公司
室内施工图设计团队:戴云峰,吴晓艳,郭家女,张敏敏,赵如意,马川川
织物幕墙结构概念设计:必思博工程设计咨询(上海)有限公司
织物幕墙深化及施工单位:北京中天久业膜建筑技术有限公司
景观设计公司:重庆纬图景观设计有限公司
业主单位:正大(海南)兴隆咖啡产业开发有限公司
施工单位:中铁建设集团有限公司
照明设计:张宸露
摄影:Daily建筑摄影|刘国威
出镜: 张含瑄
地址:海南省万宁市,中国
时间:2022.3-2024.7
面积:2606 平方米
材料:法拉利膜,回收材料水磨石,艺术涂料

BIM建筑网















































