济南金石中心是济南市中央商务区的标志性建筑之一,涵盖办公、商业和多功能大型会议等多种功能。整个建筑由一高一低两座塔楼和一座局部架空的裙楼组成,围绕中央庭院而建。设计以“灵岩藏玉”为理念,创造出质朴而精美的建筑形象,并形成开放友好的公共空间,同时结合一实一虚的立面处理,营造出内外有别的城市界面,寓意“君子怀瑾,胸藏锦绣”。
01灵岩藏玉
济南中央商务区是济南城市建设和发展的核心区域。金石中心坐落于中央商务区的东南片区,邻近山东省博物馆和济南奥体中心,是一个集办公、商业及多功能大型会议活动于一体的高端综合体项目。
项目总面积超过10万平方米,盖博建筑在遵循中央商务区城市设计导则的基础上,以“灵岩藏玉”的美好意象,雕琢项目特色,打造高品质的建筑空间。
△济南金石中心 ©Gerber Architekten
△“灵岩藏玉”概念示意图
“玉孕于天地,藏于石中,无纷繁重复之态,有拔俗硕德之雅”——设计将占地1.5公顷的场地空间视作一块未经切割的原石,而后精雕细琢,展现出完美的建筑形态。
场地的西北与东南角,凿刻出一高一低两座塔楼,挺立于裙楼之上,犹如刚刚切开的美玉;场地中央,则镂出开放的中心庭院,通过架空空间与外部环境相连,形成充满活力的城市公共空间。
02 打破同质化的城市环境
金石中心位于较高密度的城市核心区,周边建筑相对同质化,因此设计通过围绕中心庭院而设的塔楼和裙楼,创造出内外两个空间。这一设计既回应了周围高楼林立的城市环境,又为城市空间带来了绿色和活力的“附加价值”,使建筑以开放的姿态融入城市。
△项目鸟瞰 ©Gerber Architekten
外部空间主要由塔楼和裙楼塑造。
西北角的塔楼高106米,贴近城市主干道,以完善城市街墙,具有地标性;东南角的塔楼高68.3米,位于场地南侧塔楼群的空隙处,可远眺公园绿带与奥体中心,具有良好的景观视野。
两座塔楼呈对角线分布,高低错落、相对而立,并以斜切内倾的屋顶趋向彼此,形成建筑上的呼应与对话。裙房则环绕场地,并采用局部双层架空及退界的手法,形成柱廊灰空间,使人们可以从双子塔下方穿过街区,也邀请公众进入场地内部。
△中心庭院及室内庭院视野 ©Gerber Architekten
内部空间即建筑的中心庭院。
一方面,中心庭院作为建筑使用者的休憩与交流空间,提高了办公和商业空间的品质。另一方面,它与架空层连通成景观街道,面向城市开放,不仅削减了建筑庞大的体量,呼应了周围的城市尺度,而且使场地南北贯通,在建筑首层形成了值得停留的公共活动区域,打造了建筑“内向型”完整形态。
03塑造丰富的城市界面
在空间处理之外,设计亦通过立面手法延续“石中之玉”的意象,在高度契合城市设计与功能需求的同时,塑造出友好、亲切的城市界面。
△建筑外立面及细节 ©Gerber Architekten
建筑向外一面似是保留了原石圆润的形态。主立面沿街道伸展,并在转角处特意采用弧线设计,从人视点上削弱了建筑的强硬感,避免了连续界面过长而视觉单调,并借转角处的透视关系为立面带来变化。
向内一面则如同经过切割——平齐利落的立面简洁美观,并有利于空间的高效布局。
同时,外立面由暖色的竖向金属构件包裹,如同岩石一般;内立面则采用大面积玻璃幕墙,如玉石一般相互影映。一实一虚的立面处理相辅相成,如同“破岩开玉”一般,为城市勾勒出不同的界面形态,丰富了城市空间。
△建筑内立面及细节 ©Gerber Architekten
04 打开城市景观空间
在建立建筑与城市和谐关系的同时,设计结合场地内外多种空间形态,打造出了富有层次的景观区域,以进一步提供开放、自然、宜人的空间体验。
除了场地中央的绿色庭院,西北和东南两角设有结合绿植的缓步台阶,以人性尺度的景观空间,柔和地削弱塔楼的压迫感,并巧妙消化从西北到东南的4米场地高差。
西南和东北入口处设有与周边地块持平的入口广场,以散布的绿植和休闲座椅,邀请人们在此停留,并给沿街商业带来人流与活力。
△入口广场及缓步台阶 ©Gerber Architekten
此外,在裙房屋顶,设计还创造出独特的城市观景平台。这一空中花园结合了微地形、绿植和木栈道,形成了多样性的停留空间和视线通廊,为塔楼办公的人群提供了休息和交流的绝佳场所。
△多层次景观空间 ©Gerber Architekten
这些精心设计的公共空间、景观空间,以及建筑内的商业空间、办公空间,正是建筑的内在品质之所在。它们共同建立了建筑与城市的对话,塑造了空间的价值,也回应了金石中心“君子怀瑾、胸藏锦绣”的美好寓意。
项目图纸
△基地示意图
△基地示意图
△总平面图
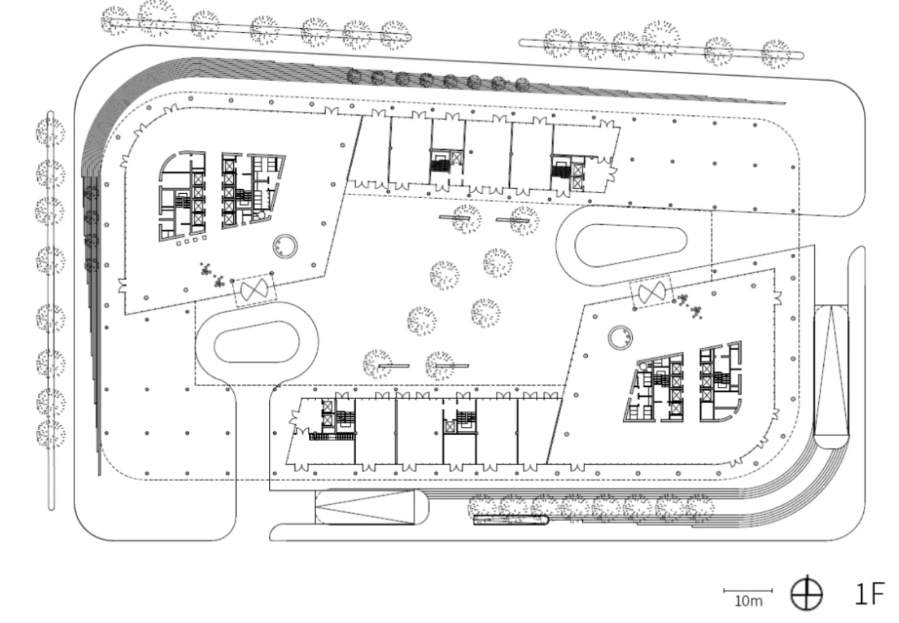
△一层平面图
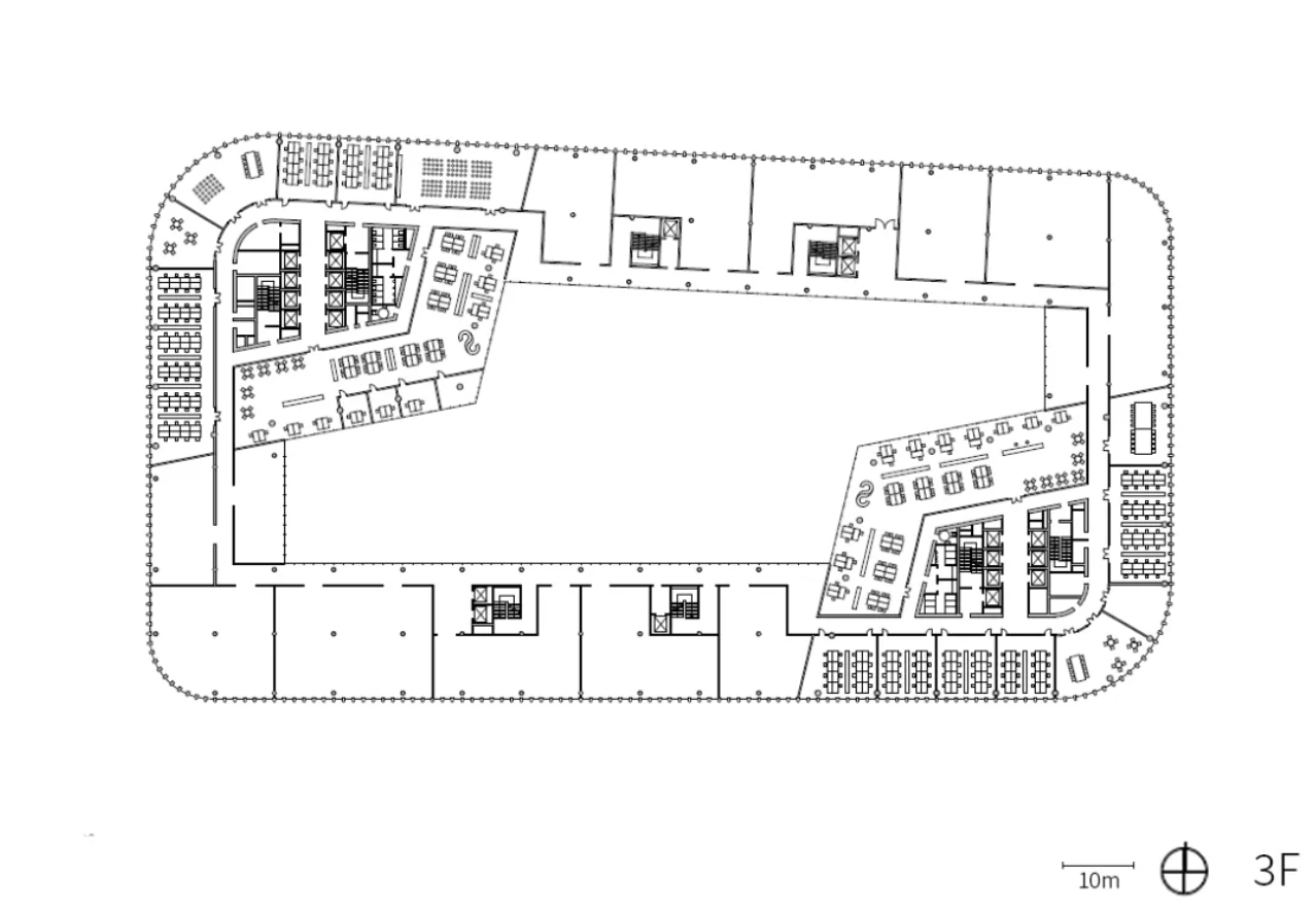
△三层平面图
△四层平面图
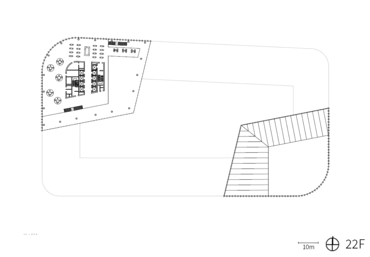
△22层平面图
△剖面图
△剖面图
△功能分区图
△分析图
△分析图
项目信息
项目名称:济南中央商务区金石中心
业主:济南中央商务区投资建设有限公司
设计联合体:盖博建筑设计事务所 / 中国建筑西南设计研究院有限公司
设计时间:2017
建设时间:2018-2022
建筑面积:103,122 平方米
用地面积: 14,963 平方米

BIM建筑网






























